MIX瓷砖工作室 | 有物空间设计 | 2024 | 中国重庆

在600元/㎡的极限预算下,我们将本次设计的关注点放到人的内心感受之上,创造一个亲切,平静,自然的场所,让客人在购买产品的同时,也让其融入到空间之中。

▽项目概览© 偏方摄影 石梓峰

vsszan195452061139511.jpg
vsszan195452061139512.jpg


原始场地层高有限,但好在拥有良好的自然采光,空间也比较规整,第一次踏勘现场,对空间便有了大概的轮廓。在结合展示功能的前提下,我们希望让空间关系尽量丰富一些,通过空间的开合,遮挡与局部的穿插,以纯粹的功能性体块构建出多层次的视觉与空间体验。同时,我们希望尽量削弱被动式的传统展厅体验,尽量创造一个充满自然随想与温暖光线的空间。胶合板的自然纹理,随处可见的绿植,绿色手工砖,将自然,空间与产品和谐相融。

▽多层次的视觉与空间体验© 偏方摄影 石梓峰

vsszan195452061139513.jpg
vsszan195452061139514.jpg


入口的内退空间,通过质朴的手工砖与胶合板围合成一个半开放的盒子,而胶合板展台上放置的手工砖,矿石,也在开始讲述空间的故事,吸引人们在此驻足。虚实结合的墙体关系,将观者视线通过玻璃引入室内,激发着观者进入空间的好奇心。

▽入口的内退空间© 偏方摄影 石梓峰

vsszan195452061139515.jpg

▽虚实结合的墙体关系© 偏方摄影 石梓峰

vsszan195452061139516.jpg

▽展台© 偏方摄影 石梓峰

vsszan195452061139517.jpg

▽激发进入空间的好奇心© 偏方摄影 石梓峰

vsszan195452061139518.jpg


核心区域作为接待与社交空间,我们希望这里不仅局限于产品的交易,更是一种过程的体验。主理人可以在这里与业主,设计师或朋友愉悦的交流;也可以在此安心享受阳光,绿植与咖啡带来的惬意时光…

▽吧台© 偏方摄影 石梓峰

vsszan195452061139519.jpg
vsszan1954520611395110.jpg
vsszan1954520611395111.jpg

▽接待与社交空间© 偏方摄影 石梓峰

vsszan1954520611395112.jpg
vsszan1954520611395113.jpg
vsszan1954520611395114.jpg


窗边绿意盎然的花池,将内外空间融合,与室内绿色手工砖呼应,俨然一个迷你小花园,令人心神愉悦。

▽绿意盎然© 偏方摄影 石梓峰

vsszan1954520611395115.jpg

▽迷你小花园© 偏方摄影 石梓峰

vsszan1954520611395116.jpg

▽窗边花池© 偏方摄影 石梓峰

vsszan1954520611395117.jpg

▽橱柜© 偏方摄影 石梓峰

vsszan1954520611395118.jpg
vsszan1954520611395119.jpg


在有限的预算下,设计选择最简单常见的材质构筑空间,胶合板制作的柜体,家具;墙面以最普通的腻子刮涂出自然的肌理与质感。局部手工砖的搭配,强调出空间的细节与质感,也将产品自然的融入空间中。

▽胶合板细部© 偏方摄影 石梓峰

vsszan1954520611395120.jpg

▽绿植细部© 偏方摄影 石梓峰

vsszan1954520611395121.jpg


我们希望以人为出发点,构筑一个能够打动人,且产生熟悉度,放松戒备心的展厅空间;同时塑造出其自身的气质与专属的场景记忆点。

▽一角© Youwuu Space Design

vsszan1954520611395122.jpg

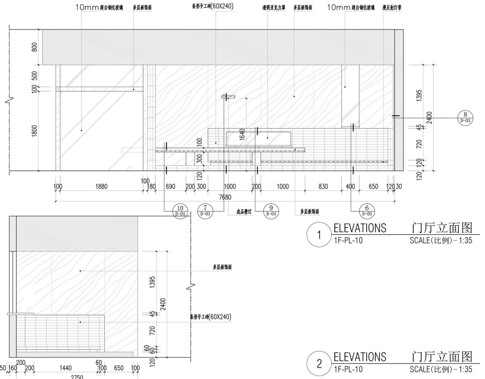
▽平面© 有物空间设计

vsszan1954520611395123.jpg

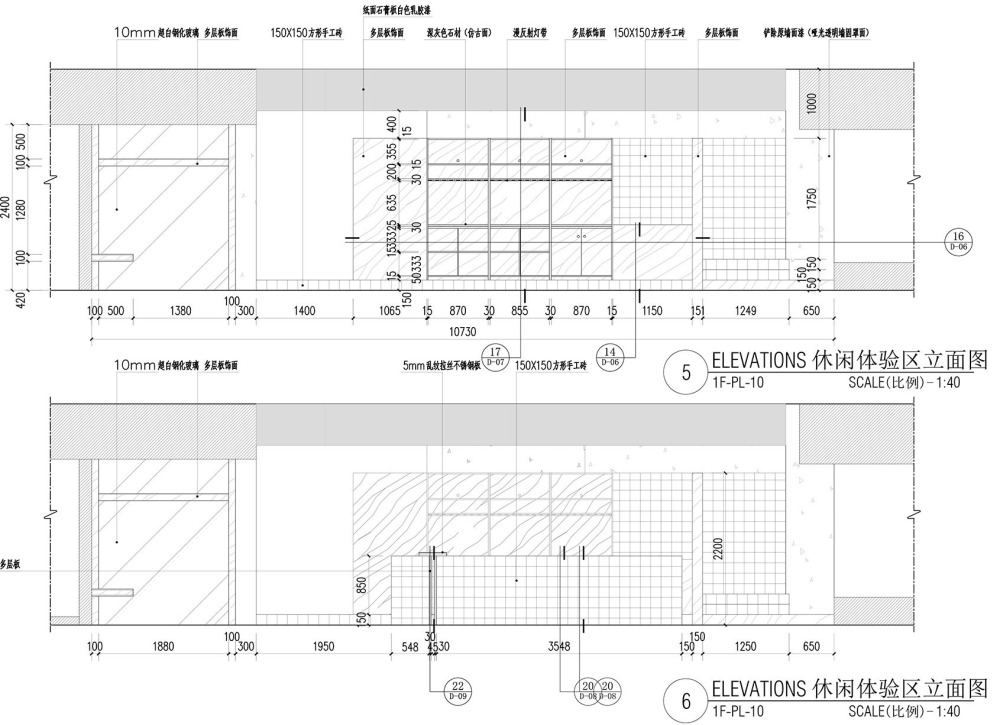
▽立面© 有物空间设计

vsszan1954520611395124.jpg
vsszan1954520611395125.jpg

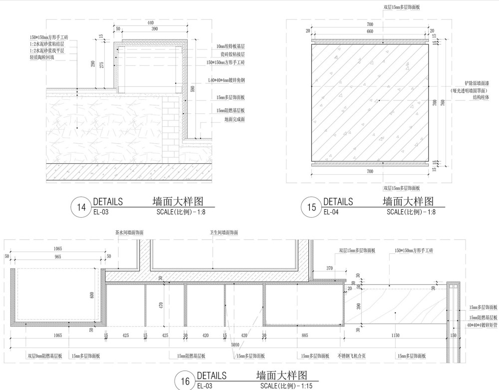
▽细部大样© 有物空间设计
vsszan1954520611395126.jpg

vsszan1954520611395127.jpg

vsszan1954520611395128.jpg
vsszan1954520611395129.jpg
vsszan1954520611395130.jpg
vsszan1954520611395131.jpg
vsszan1954520611395132.jpg
vsszan1954520611395133.jpg


项目名称:MIX瓷砖工作室
项目类型:展示空间
设计方:有物空间设计
联系邮箱:30961146@qq.com
项目设计:有物空间设计
完成年份:2024.12
设计团队:黄磊 阙桂平 皮宏林
项目地址:重庆市
建筑面积:280㎡
摄影版权:偏方摄影 石梓峰
客户:MIX瓷砖工作室

AI文本分析中……
AI色彩命名中……

序赞Ai时刻等待着你的命令!~

与Ai对话形式持续执行相关Ai智能体任务。

HZ小青年2025-3-6 18:07:01
感谢分享!感谢分享!
您需要登录后才可以回帖 登录 | 注册序赞号

快速回复 返回顶部 返回列表