LANLANLI兰兰里医疗美学中心 | 退化建筑 | 2024 | 中国福建

在医疗美学品牌LANLANLI的创始基因中,空间观念与当代艺术即作为其重要组成,因为它们同样是不断讨论技术、审美和身体的过程。

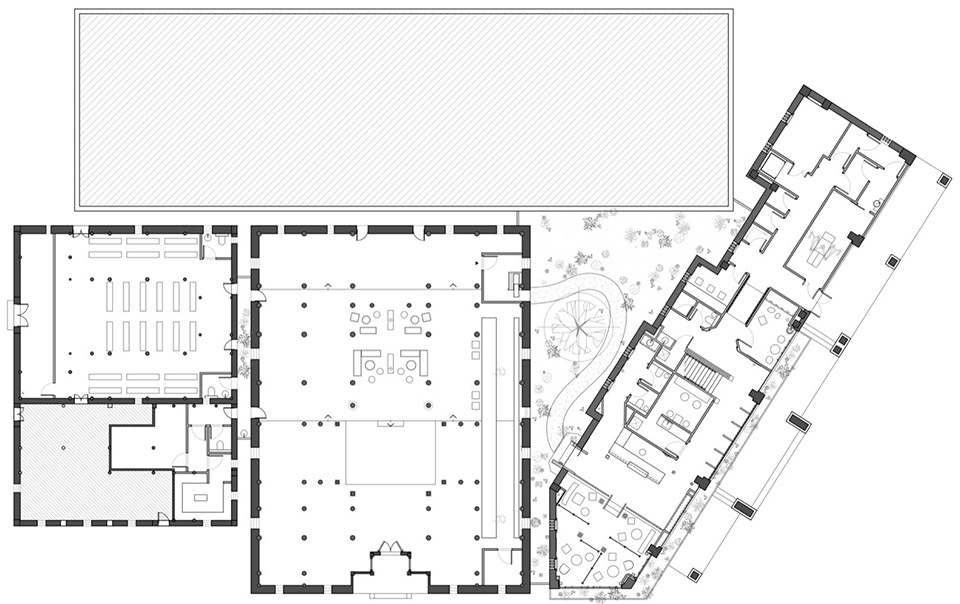
▽项目概览© Elias

vsszan196147141209531.jpg


2022年时,DEVOLUTION退化建筑曾为LANLANLI设计了其厦门机构的2F空间,这是一个融合了新媒体艺术装置的现代空间。以此为契机,在之后几年中,DEVOLUTION退化建筑深度介入了这个年轻但观念开放的医美品牌的基因塑造。

▽融合了新媒体艺术装置的现代空间© Elias

vsszan196147141209532.jpg

▽空间中的艺术装置© Elias

vsszan196147141209533.jpg


首先,在LANLANLI“新亚洲面孔”概念的基础上,我们提出了「SITUASIAN」一词,这是一个由Situation与Asian结合的生造词。当一切复杂事物都在简化为可被消费的形式时,我们希望LANLANLI的“新亚洲面孔”不是对“亚洲”或“新”的简单定义,不是把面孔简化为他者化的符号(如同如同东方之于西方、女性之于男性那样),而是窥探面孔内在的复杂与多样,捕捉这种流动性的一个多元视角。

▽传统古厝改造后的室内空间© Elias

vsszan196147141209534.jpg


以此为线索,我们策划了2022年的「新▇▇面孔」展览。更在LANLANLI空间中,推出了一个以一面LED屏幕为媒介的艺术计划「Onepiece gallary 片面艺术」,它面向全球关注着身体、性别、流行性、大众审视、身份意识等议题的艺术家,考验医美空间里美的“平滑”意图和它身后的深刻成因之间是否或如何产生对话。

▽入口© Elias

vsszan196147141209535.jpg

▽中庭庭院© Elias

vsszan196147141209536.jpg


在这些项目中,DEVOLUTION退化建筑扮演着多重角色,除了空间与软装设计,更在观念、策展、视觉(或顾问)等领域工作。这种服务方式也延续到了此次泉州五店市的LANLANLI新空间中。

▽由室内看中庭© Elias

vsszan196147141209537.jpg

▽室内一角© Elias

vsszan196147141209538.jpg

▽传统格栅© Elias

vsszan196147141209539.jpg
vsszan1961471412095310.jpg

▽光影© Elias

vsszan1961471412095311.jpg


此次设计基于两栋不同时期的闽南建筑(传统古厝与1980年代红砖楼)进行改造,在保留和整理传统建筑语言的基础上,DEVOLUTION退化建筑通过克制的元素处理和介入——混凝土体块和温润的野生柚木及泉州白石的拼贴;南洋桌椅和1970-80年代的现代主义家具与灯饰的交互等,让这个空间既传统质朴又不乏摩登,闪现一些碰撞的趣味。

▽混凝土体块和温润的野生柚木及泉州白石的拼贴© Elias

vsszan1961471412095312.jpg

▽楼梯© Elias

vsszan1961471412095313.jpg
vsszan1961471412095314.jpg

▽楼梯细部© Elias

vsszan1961471412095315.jpg
vsszan1961471412095316.jpg

▽夹层空间© Elias

vsszan1961471412095317.jpg

▽走廊© Elias

vsszan1961471412095318.jpg
vsszan1961471412095319.jpg


同时,在这个LANLANLI,我们希望艺术是被用来解析这个独特的空间,不是仅将空间作为容器,而是和空间发生关系。因此它区别于一般展览,DEVOLUTION退化建筑此次邀请了envy envy、File Studio和PAPAPAPARTNER三个小而有创造性的创作团队,在闽南大厝中创作了一件名叫“枢核”的作品,它是一个空间装置,破坏和重构了传统木结构建筑的制式感受,是这个闽南古建筑的一种新的情境生成。

vsszan1961471412095320.jpg
vsszan1961471412095321.jpg
vsszan1961471412095322.jpg
vsszan1961471412095323.jpg
vsszan1961471412095324.jpg
vsszan1961471412095325.jpg
vsszan1961471412095326.jpg
vsszan1961471412095327.jpg
vsszan1961471412095328.jpg
AI文本分析中……
AI色彩命名中……

序赞Ai时刻等待着你的命令!~

与Ai对话形式持续执行相关Ai智能体任务。

syhgdesign2025-3-16 23:18:30
感谢楼主辛苦分享  
您需要登录后才可以回帖 登录 | 注册序赞号

快速回复 返回顶部 返回列表