科技园区咖啡空间 | 边界探索设计 | 2025 | 中国湖北

这是一间位于光谷科技园区内的咖啡店,园区承载着大量高科技从业者。忙碌与高效是场地内日常状态,因此放松、休憩是这个项目首要考虑的因素。

▽咖啡厅室外© 吴辉

vsszan197023071658441.jpg


在此咖啡厅项目设计中,现场地貌是设计场地的线索。呈现出西高东低,室内外最大高差达到1.8米。室外与室内空间之间的关系需要得到进一步梳理。

▽大厅入口© 吴辉

vsszan197023071658442.jpg

▽入口区域© 吴辉

vsszan197023071658443.jpg


在思索过程中,我们将西侧的地面进行两段式抬高并设置窗边高桌,靠服务台的一段形成用餐区,靠窗的一段形成阅读区。咖啡厅位于建筑群的西侧,更多的阳光会从午后西侧照进屋内,以人的尺度来消化内外高差,室内外得到新的空间感受。

▽吧台区域轴测© 李贤达

vsszan197023071658444.jpg

▽吧台© 吴辉

vsszan197023071658445.jpg

▽吧台和阅读区© 何开焰

vsszan197023071658446.jpg

▽西入口区© 何开焰

vsszan197023071658447.gif


场地的中心我们放置了咖啡岛台,将咖啡店切割为不同的功能空间,以岛台为中心,用餐者四向而坐,入口、点餐区、用餐区、交流空间、阅读空间应运而生。

▽空间分析© 李贤达

vsszan197023071658448.jpg

▽用餐区© 吴辉

vsszan197023071658449.jpg
vsszan1970230716584410.jpg

考虑与科技创新的日常产生连接,岛台形似一台巨型“散热装置”。光通过鳍片向四周发散,充满能量感。

▽咖啡岛演变分析©李贤达

vsszan1970230716584411.jpg

▽咖啡岛© 吴辉

vsszan1970230716584412.jpg
vsszan1970230716584413.jpg

▽咖啡岛节点© 吴辉

vsszan1970230716584414.jpg

▽节点© 何开焰

vsszan1970230716584415.jpg


空间的北侧是一块独立的区域,我们为园区设置了一个休憩空间,不同时段提供交流、轻会议及午休功能。在中午的特定时间旋转隔门进行虚掩,灯光随之关闭,空间左右两侧的长条座椅可以便捷的躺卧,而休憩过后,光线随着门的打开,逐渐射入空间,对午后情绪进行有效调节。

▽多功能空间© 吴辉

vsszan1970230716584416.jpg

▽多功能空间旋转门© 何开焰

vsszan1970230716584417.jpg
vsszan1970230716584418.gif

▽多功能空间吊顶© 吴辉

vsszan1970230716584419.jpg

▽室内景观© 吴辉

vsszan1970230716584420.jpg

▽咖啡岛© 吴辉


▽现场施工过程© 何开焰

vsszan1970230716584421.jpg

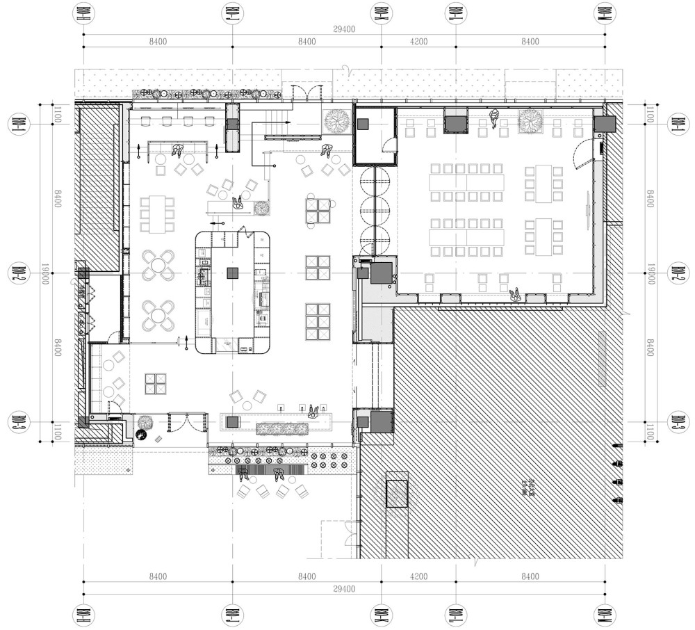
▽平面图© 何开焰

vsszan1970230716584422.jpg

vsszan1970230716584423.jpg
vsszan1970230716584424.jpg
vsszan1970230716584425.jpg
vsszan1970230716584426.gif


项目名称:科技园区咖啡空间
项目类型:商业空间
设计方:边界探索设计事务所
完成年份:2025年1月
设计总监:何开焰,雷磊
设计团队:陈述,李贤达,申翊
项目地址:武汉,光谷
建筑面积:400㎡
摄影版权:吴辉,边界探索
材料:石材 岩板 金属 木板 不锈钢艺术漆 砖石 水泥 混凝土

AI文本分析中……
AI色彩命名中……

序赞Ai时刻等待着你的命令!~

与Ai对话形式持续执行相关Ai智能体任务。

syhgdesign2025-4-8 03:07:17
感谢楼主辛苦分享  
HZ小青年2025-4-9 10:47:40
感谢分享!感谢分享!
aguai102025-4-12 15:17:27

谢谢分享 谢谢分享
阿茂_design2025-7-18 08:30:55
谢谢分享!!!谢谢分享!
您需要登录后才可以回帖 登录 | 注册序赞号

快速回复 返回顶部 返回列表