玉兰别院 | 张津玮 | 2025 | 中国浙江

vsszan197386230054391.png

屋中有院,院中有树树上见天,天中有月——林语堂

01

时光回响
vsszan197386230054392.png
vsszan197386230054393.png

暖光氤氲了路面的湿气,循着记忆中的回声,走进白房子的小院里,唤起熟悉的古朴静谧。
vsszan197386230054394.png
vsszan197386230054395.png
vsszan197386230054396.png
vsszan197386230054397.png

设计深切回应业主期许,将这栋30年龄的联排老房改造为四层民宿,重设开窗布局与外立面翻新,引入建筑美学的独特与兼容,与周边环境和谐过渡。
vsszan197386230054398.png
vsszan197386230054399.png

庭院作为入户前序,引导自然与室内交替,抒发现代语境下的慢治愈。暖光透出窗外,轻易捕捉到一抹稍纵即逝的光,此间俯仰、行走、感知,细细描摹专属的情感印记。
vsszan1973862300543910.png
vsszan1973862300543911.png

公共区呈挑空之势,原木楼梯逐层堆叠镂空结构,如踏云般轻盈而上,搭建上下界面的交互感。
vsszan1973862300543912.png
vsszan1973862300543913.png
vsszan1973862300543914.png
vsszan1973862300543915.png

茶室与景观交相掩映,东面墙体凿一横窗构成天然框景,抱揽四时变化。手作艺术、自然灵趣与生活韵致交织,邀三俩好友品茗入席、烹茶听雨,体验一番闲适雅意。
vsszan1973862300543916.png
vsszan1973862300543917.png

廊道入里,循序递进至厨房、餐厅区域,制造内部流动循环。一墙之隔解构方形镂空,使内外通透,共享自然与光,打通场景之间的意趣联动。

02

自然治愈
vsszan1973862300543918.png
vsszan1973862300543919.png
vsszan1973862300543920.png
vsszan1973862300543921.png

民宿共布局5间客房,结构与软装从人居关系出发,寄情内心深处的自然治愈。双人套房简化空间体系,触达历久弥新的润白,汲取原木的自然属性作为情绪引导,赋予时间沉淀下的安宁,如归,如至。
vsszan1973862300543922.png
vsszan1973862300543923.png
vsszan1973862300543924.png
vsszan1973862300543925.png
vsszan1973862300543926.png
vsszan1973862300543927.png

带有浴缸的套房将空间核心回归到身心的沉浸式私享中,抬高的地面与窗景相协,形成一方天地,环绕飘逸纱幔,把美好遐想留给每一个到访者。

03

静默之诗
vsszan1973862300543928.png
vsszan1973862300543929.png
vsszan1973862300543930.png

循梯而上,观游间制造高耸的视觉纵深。偶然捕捉一隅光束流转,物件置景融合独到的艺术诠释,感受质朴守拙的空间调性,于内心深处衍生一方道场。
vsszan1973862300543931.png
vsszan1973862300543932.png
vsszan1973862300543933.png
vsszan1973862300543934.png

阁楼静辟一处茶室,由方洞入里,保留原始木质斜顶,笼罩于现代古朴之下。

清幽烛光,素手烹茶,氤氲一份雅致。与友人相对而席,侘寂的时间感环绕周身轻柔浮动,体悟人间清雅,静影沉璧。
vsszan1973862300543935.png

入夜,星云璀璨变化,空气、光、风成为最真实的感知元素,在出世与入世之间,感受这份“居则安,游则野”的宁静致远,探索更多意趣。
当建筑落于自然,举动之间衍生出生命的韵律与感佩。叶落花开,日夜更替,人与空间逐渐产生更微妙的情愫,皆融于那一缕清风之中。

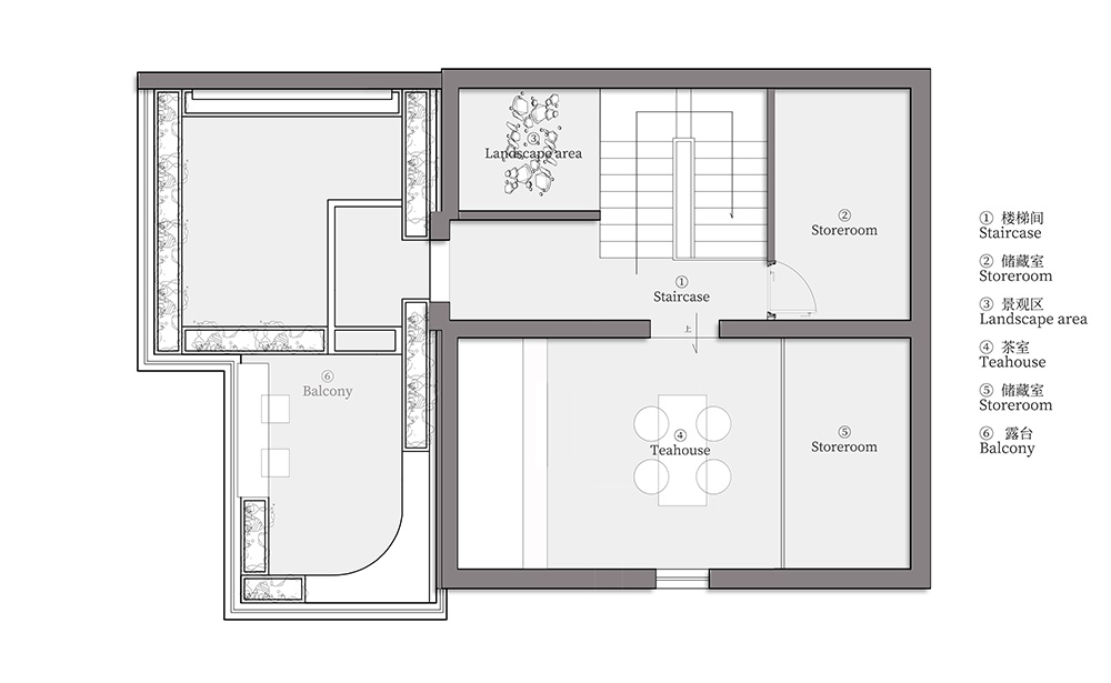
项目平面
vsszan1973862300543936.png
一层平面图
vsszan1973862300543937.png
二层平面图
vsszan1973862300543938.png
三层平面图
vsszan1973862300543939.png
四层平面图
vsszan1973862300543940.png
阁楼平面图

  • 项⽬名称:玉兰别院
  • 设计公司:温州津玮空间设计
  • 项⽬地点:浙江 · 台州
  • 项⽬⾯积:465㎡
  • 主案设计:张津玮
  • 参与设计:厉若婷
  • 内容策划:橙设传媒
  • 项目摄影:吴昌乐
  • 主要材料:木饰面、金属、瓷砖、艺术漆、实木地板

vsszan1973862300543941.png
vsszan1973862300543942.png

张津玮

温州津玮设计创始人/设计总监


津玮设计是一家充满梦想、激情和创意的设计公司,我们始终秉承创新精神,专业的服务态度,励志于呈现高品质的设计作品。

致力于运用建筑思维组织室内空间,赋予场所新的生命和意义,重新定义空间品质,为每位客户量身打造独特而理想的空间。


AI文本分析中……
AI色彩命名中……

序赞Ai时刻等待着你的命令!~

与Ai对话形式持续执行相关Ai智能体任务。

闫金辉2025-4-23 13:27:55
感谢分享   真不错的方案  顶  顶  顶
syhgdesign2025-4-23 15:28:14
感谢楼主辛苦分享  
阿茂_design2025-5-22 12:08:48
感谢楼主辛苦分享  
您需要登录后才可以回帖 登录 | 注册序赞号

快速回复 返回顶部 返回列表