活力之家 | iredale pedersen hook architects | 2024 | 澳大利亚

vsszan115078150722581.jpg

活力之家+作品是一个仅限会员的空间集合,提供独特的设施和服务组合,以支持一个人的生活和工作,并鼓励与志同道合的个人社区的联系。
vsszan115078150722582.jpg

vsszan115078150722583.jpg

vsszan115078150722584.jpg

空间经过精心设计,以适应个人反思和社会参与,一系列大气策划的空间响应程序和人。旨在反映活力之家的健康/目的/连接/生活乐趣的价值观,空间精心制作,触感丰富,引人入胜。对自然、外部和更广阔的环境的认识有助于工作空间,创造一种心理健康的感觉,结合身临其境的身体健康空间。这是一个独特的主张,使人们能够将工作空间,社交空间,反思空间,物理和恢复空间结合在两个建筑的一个成员下。
vsszan115078150722585.jpg

vsszan115078150722586.jpg

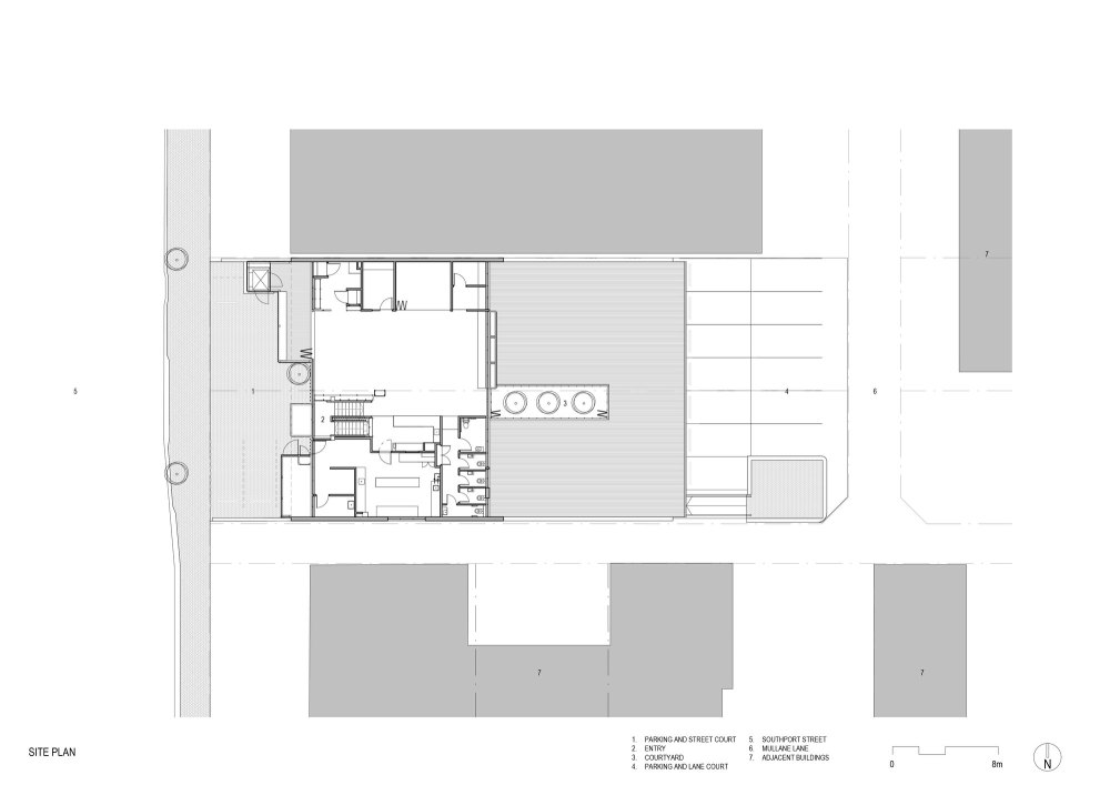
活力之家和工程改造了疲惫不堪的建筑,创造了多个正面,与街道和巷道相结合。隐蔽的阳台和露台使公共领域充满活力,挑战了邻近建筑的匿名性。电梯和坡道提供通往隐蔽阳台和主要空间的通道。现有的结构是分层的,丰富了木条,涂油和风化,以表明时间的痕迹。
vsszan115078150722587.jpg

活力之家创造了一个高层次的活动,一个共享的工作环境,有小组会议空间和个人私人空间。咖啡厅、商店/展览空间、录音室和隔音电话亭完成了工作环境。空间沿着基本点组织,早晨的光线激活人们的感官,过滤的下午光线鼓励人们放慢速度完成工作。屋顶提供了额外的北光,大型木灯盘旋在空中,聚集了所有的共享空间。木材板条和镶板从外部延续,以保持温暖和环保意识。这个空间鼓励社交互动,并结合选择性隐私
vsszan115078150722588.jpg

vsszan115078150722589.jpg

vsszan1150781507225810.jpg

vsszan1150781507225811.jpg

vsszan1150781507225812.jpg

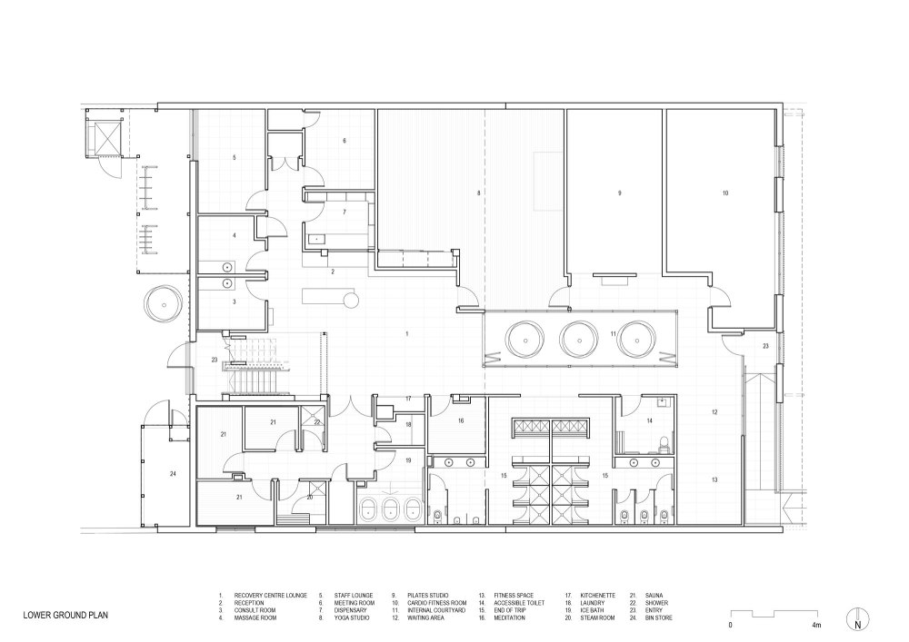
相比之下,较低的楼层减少了照明,引入了较暗的纹理表面,创造了一个更具反射性和沉思性的氛围。以前的音乐仓库空间被雕刻成一个巨大的空间,里面充满了落叶树和鹅卵石,让光线进入周围的空间,同时保持了季节变化和日常气候条件的焦点。瑜伽、普拉提、冰浴、桑拿、药房和其他设施鼓励反思、恢复,并为每项活动设计了一个独特的慢节奏空间,创造了多感官体验。
vsszan1150781507225813.jpg

活力工作室创造了一个长期的办公环境,一棵象征性的生命之树从街道入口生长。欢迎桌的灵感来自Hakea种子荚的形状,固定在地面上,但在空间内保持平衡,向上和向外生长,通过嵌入土著艺术和木条的木板延伸到空间的各个角落。黄铜碎片渗透到空间中,贯穿树的核心。
vsszan1150781507225814.jpg

大型会议室变成了一个静心的空间,回收的木条和深色细木工创造了一种隐私、平静和神秘的感觉。色彩的口袋表达了空间,代表了Hakea花的生长,边缘微妙,但随着你进一步进入空间,强度会增加。
vsszan1150781507225815.jpg


vsszan1150781507225816.jpg
vsszan1150781507225817.jpg
vsszan1150781507225818.jpg
vsszan1150781507225819.jpg
vsszan1150781507225820.jpg
vsszan1150781507225821.jpg
vsszan1150781507225822.jpg
vsszan1150781507225823.jpg
vsszan1150781507225824.jpg
vsszan1150781507225825.jpg
vsszan1150781507225826.jpg
vsszan1150781507225827.jpg
vsszan1150781507225828.jpg
vsszan1150781507225829.jpg
vsszan1150781507225830.jpg
vsszan1150781507225831.jpg
vsszan1150781507225832.jpg
vsszan1150781507225833.jpg
vsszan1150781507225834.jpg
vsszan1150781507225835.jpg
vsszan1150781507225836.jpg
  • 项目设计:iredale pedersen hook architects
  • 项目面积: 1020m²
  • 项目年份:2024
  • 项目摄影: Peter Bennetts, Dion Robeson
  • Mechanical Engineer:HMWC
  • Town Planning:Element
  • Category: Houses
  • 项目团队: Adrian Iredale, Finn Pedersen, Martyn Hook, Naomi McCabe, Mary McAree, Tom See Hoo, Shiqi Yu, Patrick Bendall, Takara Putland
  • 项目业主: Amy Coleman
  • 项目承包商: McCorkell Constructions (Vitality House) and Opra Projects (Vitality Works)
  • Interior Design Vitality House: State 28- Kate McGee, Miriam Terry, Emma Bland, Montana Roberts
  • Structural And 土木工程: Terpkos Engineering
  • Electrical Engineer: FOCUS
  • Hydraulic Engineer: Hydraulics Design Australia (HDA)
  • Building Certifier: Milestone Certifiers
  • 财务顾问: HW and Associates
  • Fire 工程师: Flint
  • 项目成市: West Leederville
  • 项目国家: Australia
  • 转载自:Archdaily
  • 设计师:iredale pedersen hook architects
  • 图片©iredale pedersen hook architects
  • 语言:英语
  • 编辑:序赞网
  • 阅读原文
AI文本分析中……
AI色彩命名中……

序赞Ai时刻等待着你的命令!~

与Ai对话形式持续执行相关Ai智能体任务。

暂时没有评论,你回一个呗!~

您需要登录后才可以回帖 登录 | 注册序赞号

快速回复 返回顶部 返回列表