Art Legacy Hotel | Rebelo Andrade | 2023 | 葡萄牙

vsszan115110180002201.jpg

Rebelo de Andrade Studio was responsible for the interior design of the five- star Art Legacy Hotel, located at Rua do Ouro, also known as Rua Áurea - and nothing less could be expected than a renovation that would enhance it.

vsszan115110180002202.jpg

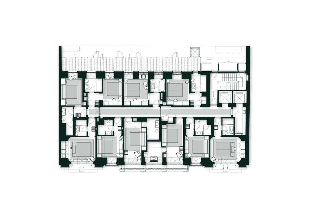
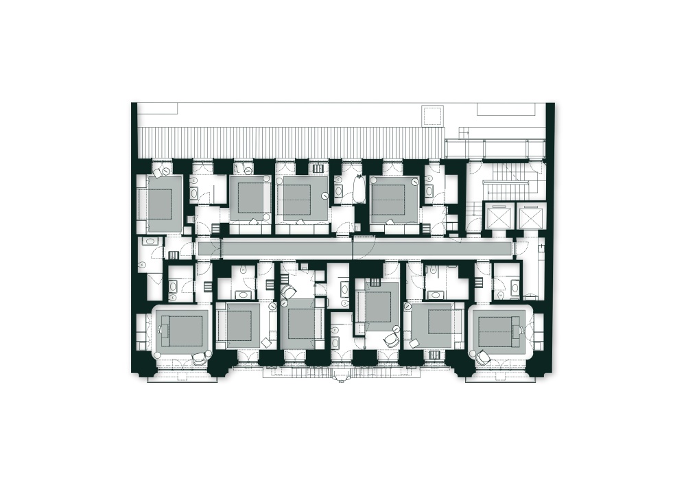
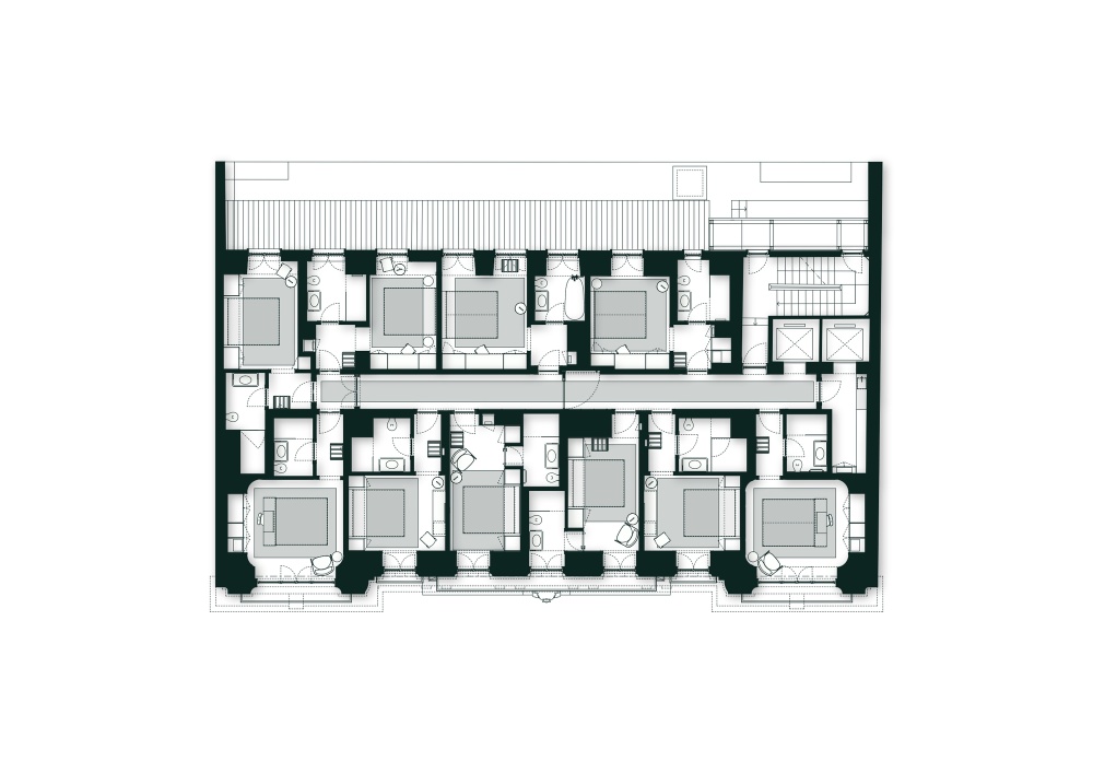
This project is a renovation of a historic office building, where Rebelo de Andrade was not only responsible for the interior design but also for redesigning the façade, transforming it into the Art Legacy Hotel.

vsszan115110180002203.jpg

In the words of architect Luís Rebelo de Andrade himself, hospitality is always a matter of image and stories. One of the goals of the Atelier was for each guest, upon entering the hotel, to have a completely unexpected experience. Thus, in a blend of modernity and classical references, Rebelo de Andrade chose the Moooi brand that suited the studio’s approach to designing the hotel interiors.

vsszan115110180002204.jpg

vsszan115110180002205.jpg

vsszan115110180002206.jpg

The brand is found throughout the hotel: “When you enter the hotel, all the colors, all the textures, all the Moooi furniture help us to tell a different story on each floor,” says architect Tiago Rebelo de Andrade.

vsszan115110180002207.jpg

Each room at the Art Legacy Hotel features a color scheme: blue, red, yellow, or green, with matching wall coverings, furniture, and tiles. This choice was made because these are colors that provoke, which contributes to the initial idea of making this space impactful for the guest.

vsszan115110180002208.jpg

vsszan115110180002209.jpg

vsszan1151101800022010.jpg

In this enclave of renewal and reinvention, the Art Legacy Hotel emerges as a testament to Rebelo de Andrade’s mastery in enhancing historical heritage. The perfect fusion of architectural legacy and modernity, meticulously crafted by Rebelo de Andrade, results in a truly memorable hotel experience.

vsszan1151101800022011.jpg

The careful attention to detail and the choice of the Moooi brand for the interiors reflect Rebelo de Andrade’s commitment to creating spaces that tell unique stories. Thus, the Art Legacy Hotel is not just a hotel, but a captivating journey through history and aesthetics, a tribute to the vision and talent of the Rebelo de Andrade Atelier.

vsszan1151101800022012.jpg
vsszan1151101800022013.jpg
vsszan1151101800022014.jpg
vsszan1151101800022015.jpg
vsszan1151101800022016.jpg
vsszan1151101800022017.jpg
vsszan1151101800022018.jpg
vsszan1151101800022019.jpg
vsszan1151101800022020.jpg
vsszan1151101800022021.jpg
vsszan1151101800022022.jpg
vsszan1151101800022023.jpg
vsszan1151101800022024.jpg
vsszan1151101800022025.jpg
vsszan1151101800022026.jpg
vsszan1151101800022027.jpg
vsszan1151101800022028.jpg
vsszan1151101800022029.jpg
vsszan1151101800022030.jpg
vsszan1151101800022031.jpg
vsszan1151101800022032.jpg
vsszan1151101800022033.jpg
vsszan1151101800022034.jpg
  • 项目设计:Rebelo Andrade
  • 项目面积: 2300m²
  • 项目年份:2023
  • 项目摄影:João Guimarães
  • Category: Hotels
  • 设计团队: Luis Rebelo De Andrade, Tiago Rebelo De Andrade, Pedro Duarte Silva
  • 合作者: Maria João Barcelos, Rita Serra E Silva, Raquel Jorge, Madalena Barreto
  • Interior Design: Luis Rebelo De Andrade, Tiago Rebelo De Andrade
  • Complementary Projects: ARA, DDN GESTÃO DE PROJECTO
  • 项目建造: HOSTELING YOU
  • Renders: REBELO DE ANDRADE
  • 土木工程: ARA
  • 结构工程: ARA
  • Ambiental 工程师: ARA
  • Lighting Design: LIGHT DESIGN
  • 项目业主: HOSTELING YOU LDA
  • 项目成市: Lisboa
  • 项目国家:  Portugal
    • 转载自:Archdaily
    • 设计师:Rebelo Andrade
    • 图片©Rebelo Andrade
    • 语言:英语
    • 编辑:序赞网
    • 阅读原文
    AI文本分析中……
    AI色彩命名中……

    序赞Ai时刻等待着你的命令!~

    与Ai对话形式持续执行相关Ai智能体任务。

    syhgdesign2025-5-19 17:44:58
    感谢楼主辛苦分享
    wuhuaen2025-7-30 12:00:42

    感谢楼主辛苦分享
    您需要登录后才可以回帖 登录 | 注册序赞号

    快速回复 返回顶部 返回列表