vsszan115785281540441.jpg

京都艺术大学的新学术大楼坐落于其主校区对岸的白川路(Shirakawa Road)旁,白川路是京都一条主要的南北向交通要道。这座大楼周边有许多当地经营的商铺和住宅区,交通十分便利。草书馆大楼的设计旨在为该校新成立的院系注入活力。这个为期四年的艺术教育项目为学生们提供了一个学习场所,让他们能够与其他同学和教职员工共同留下美好的回忆,并培养对这片土地的归属感。

vsszan115785281540442.jpg

vsszan115785281540443.jpg

作为建筑师,为这栋新的教学楼注入生机活力的设计理念,源自于现有主校区中那些通过开放空间片段实现艺术创作的学生们之间生动有趣的互动,比如通往教室的室外楼梯、门厅附近有遮阳的空间,以及那些自然而然成为聚会点的小凹室。我们秉持空间设计连贯性、与户外建立联系的理念,旨在营造社区归属感,并拓展视野,将校园生活的记忆融入这栋四层建筑之中。我们希望打造一个能让学生的大学回忆深深扎根的地方。

vsszan115785281540444.jpg

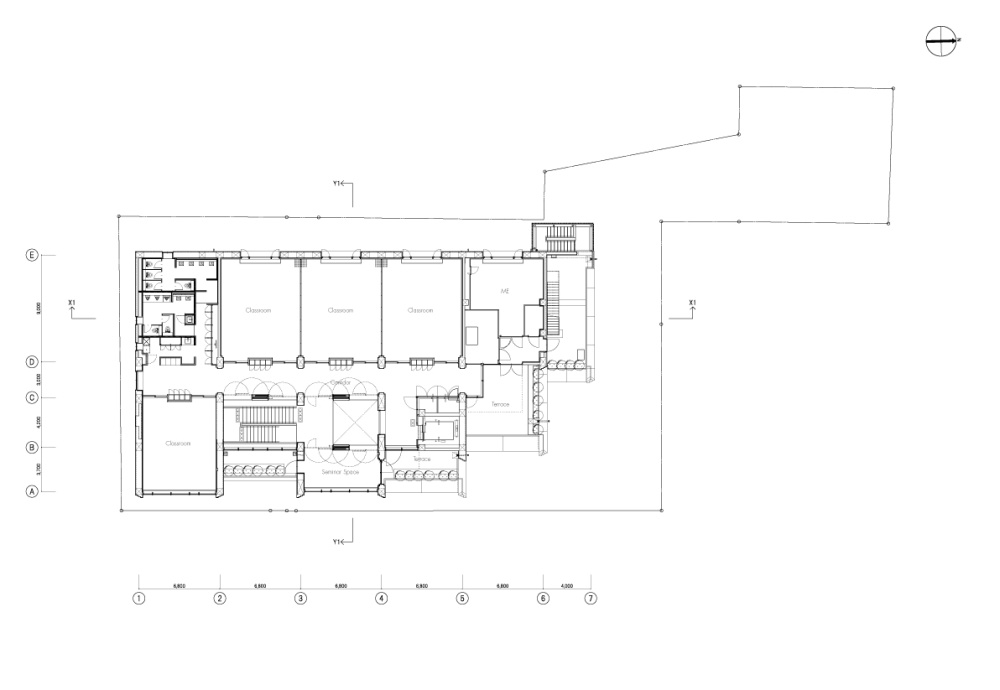
这栋四层楼的砖砌瓦面钢筋混凝土建筑由三个简洁的水平层构成:公共空间、走廊和房间,这些楼层与主路白川路(Shirakawa road)平行延伸。以此为轴线,建筑中还垂直穿插着带有象征性拱门的砖砌墙面,这些拱门打破了单调的中部走廊格局,打造出进出的开口,让人得以一窥日常活动的场景。砖砌瓦面上连续排列的拱门设计,形成了一种具有象征意义的视觉呈现。这些交叉点与通往街道的小巷相连,为教室和洗手间营造出亲切的氛围,带来一种大学校园特有的微观尺度体验。

vsszan115785281540445.jpg

vsszan115785281540446.jpg

vsszan115785281540447.jpg

vsszan115785281540448.jpg

vsszan115785281540449.jpg

vsszan1157852815404410.jpg

东侧的公共空间层设计旨在促进学生的不期而遇,并赋予他们一种彼此相连、归属集体的感受。建筑的核心区域设有一个四层楼高的宏大中庭,其顶部配备玻璃砖天窗,且内部与外部的砖砌墙面相互连通。该中庭作为学生通行的主要枢纽,天窗透入的柔和间接自然光充盈着整个空间。夏季时,地下楼层冷却后的空气会被引入通风系统,以减轻外部热负荷;而在季节交替之际,各楼层的空气处理机组可切换至通风模式,引入自然空气。这一设计不仅让中庭在视觉上显得开阔通透,还强化了建筑与外界的联系。

vsszan1157852815404411.jpg

vsszan1157852815404412.jpg

vsszan1157852815404413.jpg

vsszan1157852815404414.jpg

由于北部规划控制线的限制,建筑东北部的体量进行了退台设计,形成了小型露台,这些露台构成了室内与室外之间的过渡区域。这些露台进一步增强了建筑与自然的联系,并提供了非正式的聚会空间。场地还与一条垂直于白川路(Shirakawa Road)的小街相连,这条小街作为通往地下自行车停放区的友好入口。这座小型校园建筑将校园与自然融为一体,在学生四年的大学生活中,记录下他们互动的瞬间,并营造出一种社区归属感。

vsszan1157852815404415.jpg
vsszan1157852815404416.jpg
vsszan1157852815404417.jpg
vsszan1157852815404418.jpg
vsszan1157852815404419.jpg
vsszan1157852815404420.jpg
vsszan1157852815404421.jpg
vsszan1157852815404422.jpg
vsszan1157852815404423.jpg
vsszan1157852815404424.jpg
vsszan1157852815404425.jpg
vsszan1157852815404426.jpg
vsszan1157852815404427.jpg
vsszan1157852815404428.jpg
vsszan1157852815404429.jpg
vsszan1157852815404430.jpg
vsszan1157852815404431.jpg
vsszan1157852815404432.jpg
vsszan1157852815404433.jpg
  • 建筑师: 竹中工务店
  • 面积: 3778.0m²
  • 项目年份: 2024 年
  • 摄影师:Taizo Furukawa
  • 厂家:  Kunishiro Tiles, YKK AP
  • Lei Bie: 大学
  • 主创建筑师: Masataka Nakamura, Mai Yanagida, Masashi Suzuki
  • 施工方: Takenaka Corporation
  • 灯管顾问: Daiko Lighting Design
  • 项目城市: 京都
  • 项目国家: 日本
    • 转载自:Archdaily
    • 设计师:竹中工务店
    • 图片©竹中工务店
    • 编辑:序赞网
    • 阅读原文
    Ai 分析中……

    暂无用户创作记录!~

    记录用户以此项目图片为灵感使用Ai进行二次创作。

    暂时没有评论,你回一个呗!~

    您需要登录后才可以回帖 登录 | 注册序赞号

    快速回复 返回顶部 返回列表