Snow Peak Cafe 苏州美罗小奢中心店 | KiKi设计 | 2024 | 中国江苏
Snow Peak Cafe 坐落苏州无界美罗小奢中心一栋两层红砖建筑内,毗邻拙政园北侧。园区由22栋始建于20世纪50年代的老仓库改造而成,整齐的红砖厂房与错落的园林景致,交织出工业遗存与自然意趣共存的空间基调。设计师顺应这一在地语境,从空间营造到材料选择,皆围绕品牌所倡导的“野游人生”展开,诠释其自然与自由的精神内核。

▽红砖建筑外观©锐景摄影

vsszan198636191031171.jpg

秉持着 “不过度干预+尊重在地性”的设计原则,设计师关佳彦保留原址的红砖肌理与空间框架,以含蓄而富有张力的手法,将在地元素转译为新的形式语言,打造出符合品牌需求的功能空间。同时,通过融入品牌对精致工艺与自然共生的思考,让历史印记在新形态中延续,最终呈现为一个通透灵动、蕴藏自然气息的留白之所。

▽保留原址的红砖肌理与空间框架©锐景摄影

vsszan198636191031172.jpg
vsszan198636191031173.jpg

▽将在地元素转译为新的形式语言©锐景摄影

vsszan198636191031174.jpg

步入室内,一层中央的多功能吧台成为视觉焦点。它不仅承担品牌展示、手冲咖啡制作、器具陈列与收银等功能,更是空间视觉和动线的核心。吧台主体由条状木材拼搭而成,呼应红砖叠砌的构造逻辑,表面覆盖原色钢板,形成对比鲜明的质感碰撞。钢板从吧台延展至微水泥台阶,构成连续的展示界面,营造出悬浮般的呼吸感和轻盈感。同样的材质对话在天花与座位区也得以延续,与整体环境浑然一体,细节与氛围相得益彰。

▽一层中央的多功能吧台©锐景摄影

vsszan198636191031175.jpg
vsszan198636191031176.jpg

▽吧台与座位区©锐景摄影

vsszan198636191031177.jpg
vsszan198636191031178.jpg
vsszan198636191031179.jpg

微水泥阶梯由地面自然生长,嵌合于吧台一侧,并向上延展至二层,以简洁形态串联起垂直空间。它既作为通行路径,又承载展示功能,将空间高差转化为内在节奏,使楼梯不再是割裂空间的单一构件,而是推动空间递进的结构载体。

▽微水泥阶梯向上延展至二层©锐景摄影

vsszan1986361910311710.jpg
vsszan1986361910311711.jpg

来到二层,设计进一步回归克制与纯粹。设计师以轻巧而精准的方式介入,利用回收红砖铺设阶梯式坐席,并以条状木材隐性区分落座边界。置身其中,仿若栖身自然原境,又不失舒适度与精致感。原有木梁被涂白处理,弱化红砖与原木的厚重感,为“野游人生”注入在地色彩,唤起人们对自然旅途的想象。

▽利用回收红砖铺设阶梯式坐席©锐景摄影

vsszan1986361910311712.jpg
vsszan1986361910311713.jpg

天然实木、斑驳红砖与精制钢板、微水泥并置使用,粗砺的地域肌理与细腻的现代工艺彼此交融。这种对比并非生硬拼接,而是通过材料语言的互补,传递出内在的协作共生关系——原始材料回应场所自然肌理,工艺细节则彰显品牌对品质的执着。

▽天然实木、斑驳红砖与精制钢板的并置©锐景摄影

vsszan1986361910311714.jpg
vsszan1986361910311715.jpg

▽天然实木、斑驳红砖与精制钢板的并置©锐景摄影

vsszan1986361910311716.jpg
vsszan1986361910311717.jpg

本项目回应并延续Snow Peak“不过度干涉自然”的理念,在“从不模仿”的品牌精神之下,探索自由而极致的空间表达。设计师通过“极简设计”的路径,尊重场地本真,塑造出独属Snow Peak 的户外生活美学——既有自然的粗犷,也具备日常的细腻,让人在城市中亦能感知野外的诗意。

▽原始场地图片©KiKi ARCHi

vsszan1986361910311718.jpg



▽原始平面©KiKi ARCHi

vsszan1986361910311719.jpg

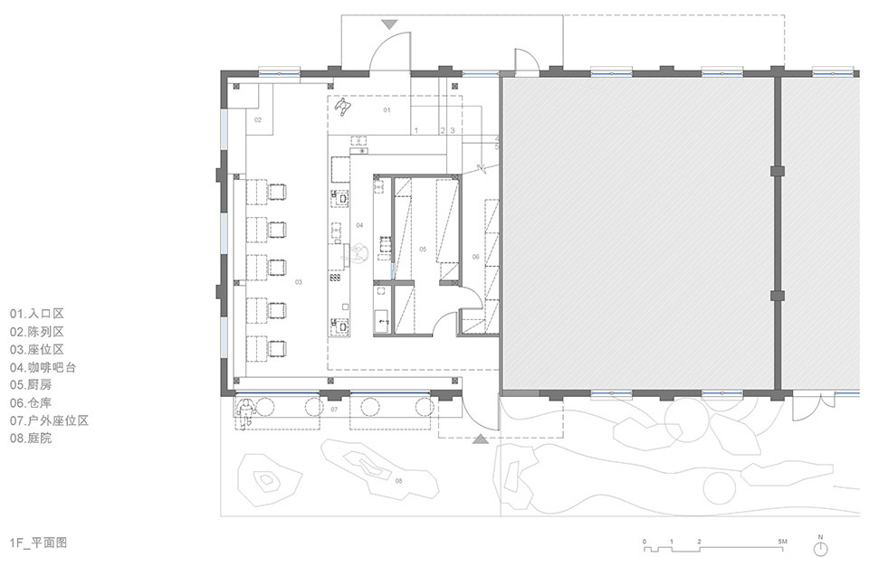
▽一层平面©KiKi ARCHi

vsszan1986361910311720.jpg

▽二层平面©KiKi ARCHi

vsszan1986361910311721.jpg

▽剖面图©KiKi ARCHi

vsszan1986361910311722.jpg

  • 项目名称:Snow Peak Cafe 苏州美罗小奢中心店
  • 项目位置:苏州,江苏,中国
  • 项目类型:餐饮空间,零售空间
  • 设计公司:KiKi建筑设计事务所
  • 主持设计师:关佳彦
  • 设计团队:穐吉彩加,柳生田昂仁
  • 项目面积:200㎡
  • 完成日期:2024.10
  • 项目摄影:锐景摄影
vsszan1986361910311723.jpg
vsszan1986361910311724.jpg
vsszan1986361910311725.jpg
vsszan1986361910311726.jpg
vsszan1986361910311727.jpg
AI文本分析中……
AI色彩命名中……

序赞Ai时刻等待着你的命令!~

与Ai对话形式持续执行相关Ai智能体任务。

syhgdesign2025-6-20 02:13:46
感谢楼主辛苦分享  
您需要登录后才可以回帖 登录 | 注册序赞号

快速回复 返回顶部 返回列表