八雲の家 | 小大建筑设计 | 2024 | 日本

这是一栋坐落于自然环境优越之地的住宅,面朝樱花树成荫的步道(原为小川后改为暗渠),拥有良好的视野、通风和采光条件。为了回应业主“每天在日出中醒来,仰望天空,感受自然光和风”的愿望,我们对住宅的构成进行了深入思考。
▽坐落于自然环境优越之地的住宅© Keishin Horikoshi

vsszan198682201912321.jpg

▽路口视角外观© Keishin Horikoshi

vsszan198682201912322.jpg

▽拥有良好的视野、通风和采光条件© Keishin Horikoshi

vsszan198682201912323.jpg

▽整体立面© Keishin Horikoshi

vsszan198682201912324.jpg

考虑到住宅南侧紧邻绿道与樱花林,设计中力求最大程度地向南开敞。同时,受日本北侧斜线高度限制的影响,北侧建筑需相对降低高度。于是我们意识到,在南北方向上设置不同的层高是一种合理的建造方式。
▽受日本北侧斜线高度限制的影响© Keishin Horikoshi

vsszan198682201912325.jpg

▽外观及景观© Keishin Horikoshi

vsszan198682201912326.jpg
vsszan198682201912327.jpg

▽外观入口及阳台© Keishin Horikoshi

vsszan198682201912328.jpg
vsszan198682201912329.jpg

▽立面细部© Keishin Horikoshi

vsszan1986822019123210.jpg

东西方向上塑造出开阔而延展的空间的同时,在南北方向引入错层结构,将不同高度的水平面嵌入建筑中。我们尝试将这些由高低差产生的空隙视为光线、风以及人的流动路径,以此来打造一个舒适宜人的居住环境。
▽立面细部© Keishin Horikoshi

vsszan1986822019123211.jpg

▽外观入口及阳台俯瞰© Keishin Horikoshi

vsszan1986822019123212.jpg

▽窗户细节© Keishin Horikoshi

vsszan1986822019123213.jpg

▽立面入口&景观细部© Keishin Horikoshi

vsszan1986822019123214.jpg
vsszan1986822019123215.jpg

玄关铺设了天然小石的土间空间,与室内无缝连接,细致而温馨地迎接家人和来客。
▽玄关铺设了天然小石的土间空间© Keishin Horikoshi

vsszan1986822019123216.jpg

▽玄关空间© Keishin Horikoshi

vsszan1986822019123217.jpg

▽玄关与艺术品© Keishin Horikoshi

vsszan1986822019123218.jpg

▽玄关柜子与艺术品© Keishin Horikoshi

vsszan1986822019123219.jpg

▽柜子细部© Keishin Horikoshi

vsszan1986822019123220.jpg

正面设置了一扇由手工精心拼贴而成的漆涂和纸门扉,并配以经过名栗加工(Naguri)的把手。以楮纸制成的和纸涂上漆后,不仅展现出独特的质感,还提升了强度,随着时间的使用更能展现出深厚的风味。
▽一扇由手工精心拼贴而成的漆涂和纸门扉© Keishin Horikoshi

vsszan1986822019123221.jpg

把手则是由栗木与胡桃木两种木材交替拼接成六角形,再施以名栗加工,使其在不同角度展现出丰富的表情,同时也带来富有趣味的握持触感。
▽经过名栗加工的把手© Keishin Horikoshi

vsszan1986822019123222.jpg

▽関守石© Keishin Horikoshi

vsszan1986822019123223.jpg

从玄关上来之后,地板采用了经过名栗加工的实木材料,不仅在视觉上呈现质感,更通过脚下的触感传递出归家的安心感。
▽入户的土间空间与室内无缝连接© Keishin Horikoshi

vsszan1986822019123224.jpg

▽地板采用了经过名栗加工的实木材料© Keishin Horikoshi

vsszan1986822019123225.jpg

▽地面及墙面细节© Keishin Horikoshi

vsszan1986822019123226.jpg

楼梯处柔和的自然光从北侧上方洒入,贝松实木的踏板、铜色的扶手以及工匠细心缠绕的藤制扶手的质感,共同营造出温馨柔和的空间氛围。
▽贝松实木的踏板、铜色的扶手以及工匠细心缠绕的藤制扶手的质感© Keishin Horikoshi

vsszan1986822019123227.jpg

▽楼梯© Keishin Horikoshi

vsszan1986822019123228.jpg

▽楼梯处柔和的自然光从北侧上方洒入© Keishin Horikoshi

vsszan1986822019123229.jpg

▽楼梯空间© Keishin Horikoshi

vsszan1986822019123230.jpg

▽楼梯空间仰视© Keishin Horikoshi

vsszan1986822019123231.jpg

▽楼梯细节© Keishin Horikoshi

vsszan1986822019123232.jpg

▽楼梯与画© Keishin Horikoshi

vsszan1986822019123233.jpg

▽洗手台与楼梯© Keishin Horikoshi

vsszan1986822019123234.jpg

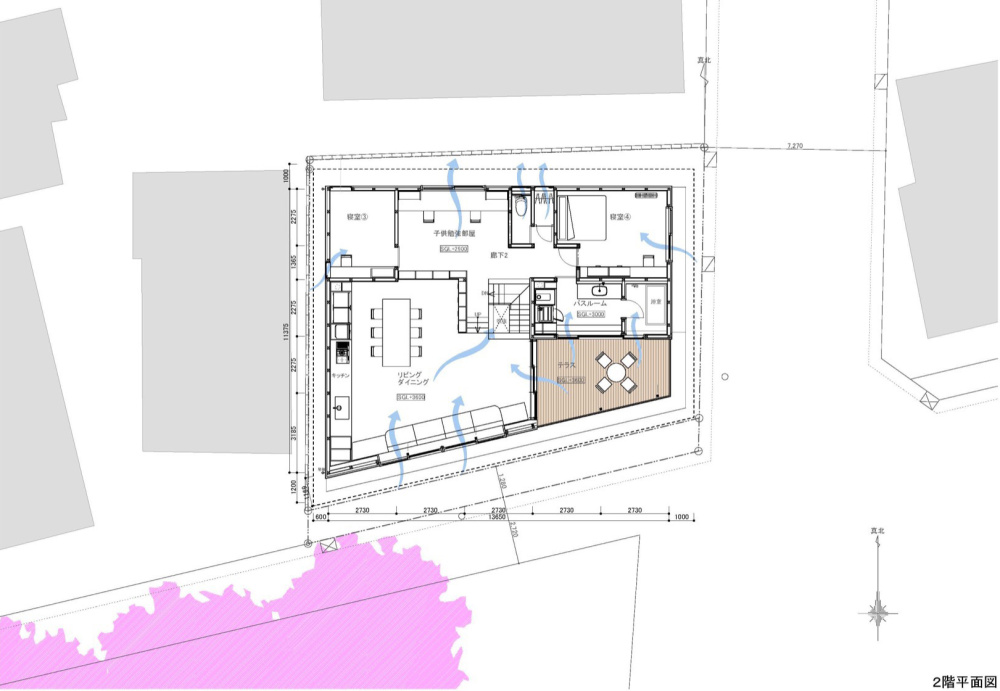
居住中最长时间使用的客厅、餐厅和厨房(LDK)被安排在二楼南侧,面向樱花林道,拥有超过13米的宽阔开口。
▽面向樱花林道© Keishin Horikoshi

vsszan1986822019123235.jpg

▽东西方向上塑造出开阔而延展的空间© Keishin Horikoshi

vsszan1986822019123236.jpg

▽在南北方向引入错层结构© Keishin Horikoshi

vsszan1986822019123237.jpg

▽错层空间© Keishin Horikoshi

vsszan1986822019123238.jpg

▽居住中最长时间使用的客厅、餐厅和厨房(LDK)被安排在二楼南侧© Keishin Horikoshi

vsszan1986822019123239.jpg

为了让五口之家宽敞自在地生活,我们设计了无柱结构空间。通过不在大梁的垂直方向设置小梁,来自北侧天窗的自然光能够柔和地洒满天花板,使整个空间在一天中都能充满自然光线。
▽为了让五口之家宽敞自在地生活© Keishin Horikoshi

vsszan1986822019123240.jpg

▽我们尝试将这些由高低差产生的空隙视为光线、风以及人的流动路径© Keishin Horikoshi

vsszan1986822019123241.jpg

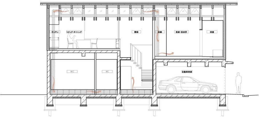
为了实现最大12米跨度(客厅餐厅跨度为7.7米)的木结构无柱设计,采用了将105×270毫米的大梁夹着半割的60×240毫米梁,按910毫米的间距组成剪刀式桁架(Scissors Truss);在与其垂直的天窗部分则设置维尔恩德尔桁架(Vierendeel truss)。通过这种设计,水平力由同时作为饰面层的屋面板承担,从而形成了无小梁、结构规整且坚固的大屋顶。
▽客厅餐厅跨度为7.7米的木结构无柱设计© Keishin Horikoshi

vsszan1986822019123242.jpg

▽通过不在大梁的垂直方向设置小梁© Keishin Horikoshi

vsszan1986822019123243.jpg

▽105×270毫米的大梁夹着半割的60×240毫米梁© Keishin Horikoshi

vsszan1986822019123244.jpg

在环境设计方面,建筑结构通过檐口和墙体遮挡阳光直射,具备充分的隔热性能,最大化利用自然通风和自然采光,以被动式节能设计为基础。
▽来自北侧天窗的自然光能够柔和地洒满天花板© Keishin Horikoshi

vsszan1986822019123245.jpg

▽楼梯与错层© Keishin Horikoshi

vsszan1986822019123246.jpg

▽厨房与餐厅© Keishin Horikoshi

vsszan1986822019123247.jpg

▽餐厅与厨房© Keishin Horikoshi

vsszan1986822019123248.jpg

▽厨房细部© Keishin Horikoshi

vsszan1986822019123249.jpg

一、二楼南侧均设有大面积开口,引入南北方向稳定流动的风,同时结合重力通风原理,开启屋顶顶部的天窗,形成从一楼吸入风的气流,实现自然通风效果。在寒冷季节,设计通过吸取屋顶顶端积聚的暖气,送至一楼窗下及浴室等较冷区域,使暖气在整个房屋内循环流动。
▽客厅与阳台无缝衔接© Keishin Horikoshi

vsszan1986822019123250.jpg

▽餐厅看向阳台© Keishin Horikoshi

vsszan1986822019123251.jpg

在客厅、餐厅和厨房(LDK)与室外之间设置了无缝连接的露台,拓展了起居空间的延展性。保持面向樱花林的开放视野的同时,也设计了可调节视线遮蔽的窗帘,以满足夜间对隐私的需求。白天透光的布料随风轻盈飘动,夜晚则通过增加布料密度形成不透明的隔断,使露台与LDK融为一体的空间感得以延续。
▽LDK空间© Keishin Horikoshi

vsszan1986822019123252.jpg

▽LDK空间与阳台© Keishin Horikoshi

vsszan1986822019123253.jpg

浴室紧邻露台布置,脱衣室和浴室内也能洒入柔和的自然光,并且设计让人能够感受到微风。通过将浴室楼层降低于露台水平,有效阻隔了来自绿道的视线,同时保证了较高的天花板高度,使蒸汽能够顺畅上升并排出,避免积聚。
▽较高的天花板高度© Keishin Horikoshi

vsszan1986822019123254.jpg

▽浴室紧邻露台布置© Keishin Horikoshi

vsszan1986822019123255.jpg

▽卫浴空间与阳台© Keishin Horikoshi

vsszan1986822019123256.jpg

▽通过将浴室楼层降低于露台水平© Keishin Horikoshi

vsszan1986822019123257.jpg

▽保持面向樱花林的开放视野的同时© Keishin Horikoshi

vsszan1986822019123258.jpg

▽无缝连接的露台拓展了起居空间的延展性© Keishin Horikoshi

vsszan1986822019123259.jpg

浴室采用十和田石与桧木,展现出丰富的肌理与色彩层次,并散发自然的芬芳。在沐浴时打开窗户,让四季之景随风入室,营造出一个能够温柔包容身心、予人疗愈的场所。
▽浴室采用十和田石与桧木© Keishin Horikoshi

vsszan1986822019123260.jpg

三个孩子的学习区并未作为独立的封闭房间设置,而是安排在跳层下沉约70厘米的空间中。这样既通过腰墙将其与客厅、餐厅和厨房(LDK)分隔开来,又能让空气流通与氛围得以在家庭成员之间共享,营造出既有区隔又连通的学习环境。
▽腰柜分隔错层空间© Keishin Horikoshi

vsszan1986822019123261.jpg

▽室内遍布自然素材© Keishin Horikoshi

vsszan1986822019123262.jpg

▽自然材料打造的柜子© Keishin Horikoshi

vsszan1986822019123263.jpg

▽柜子细部© Keishin Horikoshi

vsszan1986822019123264.jpg

▽与其垂直的天窗部分则设置维尔恩德尔桁架© Keishin Horikoshi

vsszan1986822019123265.jpg

▽通过腰墙将其与客厅、餐厅和厨房(LDK)分隔开来© Keishin Horikoshi

vsszan1986822019123266.jpg

▽三个孩子的学习区安排在跳层下沉约70厘米的空间中© Keishin Horikoshi

vsszan1986822019123267.jpg

▽LDK看向学习空间© Keishin Horikoshi

vsszan1986822019123268.jpg

业主是一位随着日出而起、日落而眠,生活与自然紧密相连的人,因此将卧室布置在朝阳温暖照射的东侧。障子柔和地扩散晨光,质感丰富的硅藻土墙面环绕,使自然光温柔地包裹整个房间。
▽走廊与卧室© Keishin Horikoshi

vsszan1986822019123269.jpg

▽卧室内部空间© Keishin Horikoshi

vsszan1986822019123270.jpg

▽障子柔和地扩散晨光© Keishin Horikoshi

vsszan1986822019123271.jpg

在充分享受外部自然环境恩惠的同时,室内遍布自然素材,营造出充满工匠手工温度的空间。我们希望这所房子能随着岁月沉淀出独特的质感,见证家人宽厚而温暖的成长。
▽整体夜景© Keishin Horikoshi

vsszan1986822019123272.jpg

▽立面夜景效果© Keishin Horikoshi

vsszan1986822019123273.jpg

▽夜景入口视角© Keishin Horikoshi

vsszan1986822019123274.jpg

▽阳台夜景© Keishin Horikoshi

vsszan1986822019123275.jpg

▽入口玄关© Keishin Horikoshi

vsszan1986822019123276.jpg
vsszan1986822019123277.jpg
vsszan1986822019123278.jpg
vsszan1986822019123279.jpg

▽夜间阳台© Keishin Horikoshi

vsszan1986822019123280.jpg

▽白天透光的布料随风轻盈飘动© Keishin Horikoshi

vsszan1986822019123281.jpg

▽夜间LDK空间© Keishin Horikoshi

vsszan1986822019123282.jpg

▽夜间LDK空间与阳台© Keishin Horikoshi

vsszan1986822019123283.jpg

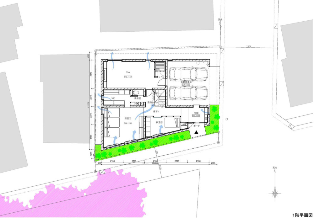
▽一层平面图© 小大建筑设计事务所

vsszan1986822019123284.jpg

▽二层平面图© 小大建筑设计事务所

vsszan1986822019123285.jpg

▽东西向剖面图1© 小大建筑设计事务所

vsszan1986822019123286.jpg

▽东西向剖面图2© 小大建筑设计事务所

vsszan1986822019123287.jpg

▽南北向剖面图1© 小大建筑设计事务所

vsszan1986822019123288.jpg

▽南北向剖面图2© 小大建筑设计事务所

vsszan1986822019123289.jpg

vsszan1986822019123290.jpg
vsszan1986822019123291.jpg
vsszan1986822019123292.jpg
vsszan1986822019123293.jpg
vsszan1986822019123294.jpg
vsszan1986822019123295.jpg
vsszan1986822019123296.jpg

场地:東京都目黒区
主要功能:住宅
用地面积:135㎡
建筑面积:265㎡
业主:個人
设计:小大建筑设计事务所 + 磯田和明
负责人:小嶋伸也・小嶋綾香・中村靖怡・板倉知也(元所員)
施工:株式会社渡辺富工務店
構造设计:浜田英明建築構造设计
設備设计:Y.M.O. 合同会社
照明设计:Daisuki light Inc.
造園:石正園
窗帘:fabricscape
摄影:Keishin Horikoshi/SS
AI文本分析中……
AI色彩命名中……

序赞Ai时刻等待着你的命令!~

与Ai对话形式持续执行相关Ai智能体任务。

闫金辉2025-6-22 15:06:04
感谢分享  真不错
您需要登录后才可以回帖 登录 | 注册序赞号

快速回复 返回顶部 返回列表