意德美嘉温州展厅 | ​言禾内境|2024 | 中国浙江
vsszan198721210115141.gif


在信息熵增、节奏失序的当代语境中,商业空间若想成为精神的引力场,而非消费的过道,其设计逻辑便需超越单纯的功能展陈,转而去思考更具隐喻意义的商业行为与品牌逻辑间的二次元性。

意德美嘉(IDEAMASS),意为“无尽的灵感”,而其五线谱的Logo设计,亦代表无限的美学可能。此次温州展厅设计提取品牌Logo元素,将平面的概念以具象化的建筑形态呈现为空间的门头设计,在讲述品牌故事的初始,便点明场景的主题。
这种克制的开场,恰是品牌“匠心至上”理念的无声体现——不突兀地展示直白的场景目的,倾向于柔性地传递一种崭新的生活方式。

vsszan198721210115142.png
vsszan198721210115143.png
vsszan198721210115144.png
vsszan198721210115145.png
vsszan198721210115146.png
vsszan198721210115147.png
vsszan198721210115148.png


叠石为界,构筑内向宇宙
摒弃喧嚣都市中直白暴露的商业语境,展厅入口以东方园林“聚石叠围墙”的隐逸智慧为蓝本。设计师通过适当的遮蔽与透视,在快节奏的都市场景中,编织一处静谧的“内向宇宙”。
幽深的路径成为空间的前奏,在一步步行走的过程中,逐渐滤去外界的喧嚣浮华,缓慢铺垫提纯情绪的感知力,形成更具有仪式感的入室邀请。

vsszan198721210115149.png
vsszan1987212101151410.png
vsszan1987212101151411.png
vsszan1987212101151412.png
vsszan1987212101151413.png
vsszan1987212101151414.gif


穿过序厅,一道橡木实木花格屏风成为场景的过渡,其妙处在于“既通又隔,似通还隔”,在“藏”与“露”、“实”与“虚”的辩证间,演绎东方的空间美学。
视线穿透格栅的间隙,液态金属漆面给予场景恰到好处的光泽感与古今结合的碰撞性,下沉式客厅作为商业交谈与待客体验的第一重正式区域,以下沉的姿态形成对“界限”的消解,室内与室外森严的壁垒在此模糊,落地窗外葱郁的园景被不着痕迹地“借”入室内,形成内与外的呼吸对话,这不仅是视觉的延伸与场景的搭建,更是对木作产品本身所代表的自然材质无声的表达,通过构建人、空间与自然三者间微妙的共生之道,形成品牌精神的核心注脚。

vsszan1987212101151415.png
vsszan1987212101151416.png
vsszan1987212101151417.png
vsszan1987212101151418.png


自然天光与人造光源在场景中形成精妙的共谋,设计师将灯带隐逸于木作柜体的缝隙中、吊顶边缘的暗影里,使其如生命体的脉络般悄然伸展,光循着顶部胡桃木条索状的肌理游走,如同五线谱中变幻的音符,以跳跃的姿态传达品牌的内在精神,形成建筑内与外的对话与回溯。

vsszan1987212101151419.png
vsszan1987212101151420.png
vsszan1987212101151421.png
vsszan1987212101151422.png
vsszan1987212101151423.png


叠透交响,空间的无界叙事
面对长幅敞开的平面格局,设计师以“下沉”与“抬升”的错落对比,巧妙破解了单一维度的乏味,赋予空间以呼吸般的节奏感。
隔断的处理摒弃了生硬的阻断,代之以“叠”与“透”的交织艺术,空间因此呈现出一种流动的连贯性,功能区域相互渗透、彼此映照。环绕的落地窗景被完整保留,外部世界的画卷成为室内体验不可或缺的景深,内与外、功能与意境,在无界叙事中达成统一。

vsszan1987212101151424.png
vsszan1987212101151425.gif
vsszan1987212101151426.png
vsszan1987212101151427.png
vsszan1987212101151428.gif


意式橱柜系统以灵活多变的功能布局,优化操作流程,简化行为路径,于日常生活中注入仪式感与新鲜感。精选的拉米娜通体岩板台面嵌入可升降油烟机,结合超长2.2米大抽屉设计,不仅代表了纯粹的视觉美学,更以精密的构造与卓越的承载能力,成为精湛工艺与可靠品质的代名词。珍珠贝母艺术高光漆形成斑驳璀璨的视觉感与柔和平滑的触觉感受,带来新奇高质的备餐体验。

vsszan1987212101151429.png
vsszan1987212101151430.png
vsszan1987212101151431.png
vsszan1987212101151432.png
vsszan1987212101151433.png


空间并非静止的容器,而是承载时光流动的剧场。来自室外的自然光线,被摇曳的枝桠肆意切割,再经北美橡木屏风的格栅温柔梳理,于墙面、地面投下瞬息万变的光影。这被自然与人工共同雕琢而成的阴影光斑,因时间的流动而不断变化,赋予静态空间以蓬勃的生命力与深邃的时间感。
走廊区域,占据整面墙体的“空山柜”成为焦点:竖板与横板的错层设计,于平面上雕琢出细腻的光影层次与节奏。铝板与木材、石材的完美嵌合,既保留了铝的轻盈现代感,又平衡了木材的天然重量。这不仅是美学表达,更是IDEAMASS三十余年木作沉淀的厚积薄发,对材质的驾轻就熟与对工艺细节的极致追求,成就品牌“极简高定”理念的基石。

vsszan1987212101151434.png
vsszan1987212101151435.png
vsszan1987212101151436.png


物料方案洽谈区的顶部核心,悬置一处反向倒置、收拢的三角光体结构,宛若抽象的虚拟天窗,通过精准调节照度与色温,为严谨的选材过程创造理想的视觉环境。此三角光体自空间入口便奠定其强烈的视觉引力,最终成为行进序列中不容忽视的精神锚点与视觉终章。
北美胡桃木作为场景的主角,呈现着相同材质在不同空间面上的差异呈现,亦表达材质在各种使用场景下丰盈的使用感。赭锈红漆面在材质相对单一的环境中,为场景带来轻重缓急、层次分明的变化,一如五线谱的音律,抑扬顿挫且代表着无限的延伸。

vsszan1987212101151437.png
vsszan1987212101151438.png
vsszan1987212101151439.png
vsszan1987212101151440.png
vsszan1987212101151441.png
vsszan1987212101151442.gif


深藏于空间尽端的VIP室,自成一方高度私密且极具包裹感的场域。其顶部弯折的木饰面结构,搭配凤羽漆工艺,代表着由洽谈空间顶面灯饰向此处的自然延伸,形成两处空间的自然联动,而在墙面尽头,坚硬的材质在精密的曲张工艺下,如帘幕般舒展垂落。这种自上而下的柔性介入,不仅消弭了空间的硬朗棱角,更氤氲出一种包容而沉静的整体气质,为深度交流筑就一方亲和的精神场所。

vsszan1987212101151443.png
vsszan1987212101151444.png
vsszan1987212101151445.png
vsszan1987212101151446.png
vsszan1987212101151447.png
vsszan1987212101151448.png


立柱为笔,书写光的建筑
阳光通过系列化的极简北美橡木立柱系统,在茶室空间内的地面与墙面上,投下随时间推移而变幻的光影线条,以最纯粹的方式,演绎着光对建筑空间的本质塑造。而其静谧的矩阵式木作结构排列;结构严谨且功能多样的柜体设计;工艺与智能的完美结合;不同材质间的反复交错……都表达着品牌商业逻辑中所要呈现的内涵。

vsszan1987212101151449.png
vsszan1987212101151450.png
vsszan1987212101151451.png
vsszan1987212101151452.png
vsszan1987212101151453.gif


独特的“骨骼线”工艺打造卧室体验区的背景,敞开式更衣区引入BASISTEM 巴斯蒂姆——卢加诺衣柜收纳系统,由立柱、背板与层板完成组合,将各收纳模块嵌入皮革背板,人性化设计的五金系统让置物层板可根据需求随意上下调节,提供多种完整的单元组合模块,从而形成访客对柜体内部结构更直观的认识,精选的尤加利木皮成为空间最自然的“肌肤”,而意象的品牌理念与商业逻辑则成为灌注其中的血肉,共同创造出一个完整的有机体。

vsszan1987212101151454.png
vsszan1987212101151455.png
vsszan1987212101151456.png


通过墙、面、柜一体的设计,形成兼具实用功能与美观理念的场景描述,结合智能语言系统,引入嵌合式灯光设计,在无主灯照明的前提下,提供自然充盈的光线。电动智能360°旋转木马包柜,将衣帽间1㎡的面积发挥得淋漓尽致,搭配升降式电动梳妆台设计,引入智能化生活语境,带动日常生活品质的提升。

vsszan1987212101151457.png
vsszan1987212101151458.png


意德美嘉温州展厅,超越了传统商业空间的展示功能,试图完成一次以空间为媒介对品牌精神的深度探索。它将品牌三十载对木作的虔诚沉淀,融于“极简高定”的当代语境,完美诠释了“IDEAMASS”的无尽灵感。
当访客循着光的脉络,游走于虚实相生的空间序列,感受自然与匠心交融的力量,品牌所追求的高品质居家生活,便在这无声的空间叙事中,完成一次直达内心的精神探索。

vsszan1987212101151459.png

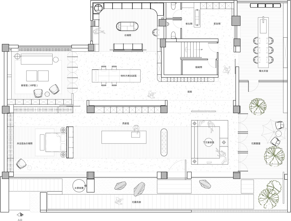
项目平面图▽

vsszan1987212101151460.png



项⽬名称|意德美嘉温州展厅
设计公司|言禾内境
项⽬地点|浙江 温州
项⽬⾯积|360㎡
主案设计|谢骅骏
内容策划|橙设传媒
项目摄影|翰墨视觉
设计时间|2023.10
完⼯时间|2024.10
主要材料|木饰面,岩板,金属,艺术漆,木地板
展厅地址|浙江省温州市龙湾区蒲州街道雁荡西路100号和乐大楼F1层意德美嘉温州形象店


vsszan1987212101151461.png

谢骅骏

言禾内境公司主理人/设计创意总监


vsszan1987212101151462.png

程默

言禾内境公司主理人/设计统筹/运营总监



vsszan1987212101151463.png


言禾内境设计团队致力于为客户提供多元化、创新性的室内设计服务。启发·创意·落地是我们追求设计服务的本质。
诠释人与空间的本真与自洽。


    • 转自:环球设计
    • 图片©言禾内境
    • 编辑:序赞网
    • 阅读原文
    AI文本分析中……
    AI色彩命名中……

    序赞Ai时刻等待着你的命令!~

    与Ai对话形式持续执行相关Ai智能体任务。

    闫金辉2025-6-22 16:24:10
    感谢分享  真不错
    syhgdesign2025-6-23 03:01:08
    感谢楼主辛苦分享  
    ljwei10152025-6-24 17:47:46
    感谢楼主辛苦分享,向楼主学习
    阿茂_design2025-6-25 12:53:50
    感谢楼主辛苦分享  
    8760164152025-6-26 08:22:13
    感谢楼主辛苦分享  感谢楼主辛苦分享  感谢楼主辛苦分享
    闫金辉2025-8-4 11:04:31
    感谢分享  真不错
    honghuifa2025-9-30 09:18:49
    峰老大的展厅永远是这么震撼我们!
    您需要登录后才可以回帖 登录 | 注册序赞号

    快速回复 返回顶部 返回列表