高平钟书阁书店 | 伊塔诺建筑设计 | 2025 | 中国山西
序言

一座于历史生长的千年古城,一场与时间对酌的建筑诗行。当书脊隆起时,高平·钟书阁以“中国古建博物馆”为核心设计理念,用现代建筑语言烙印文明始祖的历史余温,1500平方米的空间是对高平1500余处文物古迹的虔诚呼应,亦是人类对这座城市精神的叩问与应答。

▽项目视频©穆彪

vsszan202286252131251.jpg

概念区

设计师精准剖开高平古建的精魄,凭借极简的几何形态、抽象化的传统符号与多维度的空间叙事,将“高而平”的大地意象,凝结成永恒的篇章。

▽极简的几何形态©穆彪

vsszan202286252131252.jpg
vsszan202286252131253.jpg

▽抽象化的传统符号©穆彪

vsszan202286252131254.jpg
vsszan202286252131255.jpg

借助坡屋顶的弧形轮廓、瓦片的层叠韵律,形成拱形门洞的递进式布局,既是视觉引导的物理分隔,也是精神层级的探索隧道。

▽形成拱形门洞的递进式布局©穆彪

vsszan202286252131256.jpg

▽形成拱形门洞的递进式布局©穆彪

vsszan202286252131257.jpg
vsszan202286252131258.jpg

▽借助坡屋顶的弧形轮廓©穆彪

vsszan202286252131259.jpg
vsszan2022862521312510.jpg

褪去繁复的雕饰,抽象化的梁柱与斗拱凭借极简曲线勾勒力学之美,铸就承载万千典籍的骨骼,当指尖轻抚过肌理,这触感 连接着尧舜时代的晨曦,也链接着新时代的星光。 此刻光穿过书架缝隙在空间透射出斑驳陆离的影子,咖啡香气漫过鼻息,将凝固的时间转化为流动的“思”韵。

▽凭借极简曲线勾勒力学之美©穆彪

vsszan2022862521312511.jpg
vsszan2022862521312512.jpg

立体的屋檐,高耸的书架,悬挂于屋顶的几何灰色瓦片阵列,共同交织成“屋舍叠院”般的聚落感,既多维立体又遥相呼应,设计师采取“去装饰化”的提炼,实则是将宋元木构的匠心转化为现代空间语法,体现“在历史中栖居”的生活姿态。

▽共同交织成“屋舍叠院”般的聚落感©穆彪

vsszan2022862521312513.jpg
vsszan2022862521312514.jpg

▽将宋元木构的匠心转化为现代空间语法©穆彪

vsszan2022862521312515.jpg
vsszan2022862521312516.jpg
vsszan2022862521312517.jpg

一步踏出便是千年,一页翻过即是永恒,现实书架与镜面倒影形成无限递归的莫比乌斯环,而读者正悄然隐匿于灯影书墙,沉浸在精神原乡中。

▽现实书架与镜面倒影形成无限递归的莫比乌斯环©穆彪

vsszan2022862521312518.jpg
vsszan2022862521312519.jpg

正如同海德格尔所言——“栖居的本质在诗意的度量”行走于此屋舍的层层叠影,又何尝不是时空的交错,在这一霎那化作永恒的交融,建筑就此成为度量文明的标尺。

▽屋舍的层层叠影©穆彪

vsszan2022862521312520.jpg
vsszan2022862521312521.jpg

儿童区

如果你走进这里就会发现——神话不再是遥远的故事,而是触手可及的立体画卷。

▽触手可及的立体画卷©穆彪

vsszan2022862521312522.jpg

钟书阁儿童区将“混沌初开”的宇宙观进行物理化的呈现。女娲补天遗落的五彩石浆,挥洒出彩云般轻盈的书台,精卫填海掀起的碧波荡漾,成为涡旋托起绘本的方舟。整个空间设计以大地色系为基底,搭配朱红、靛蓝、藤黄等传统矿物颜料色彩,让神话故事转化成可感知的教育场域。

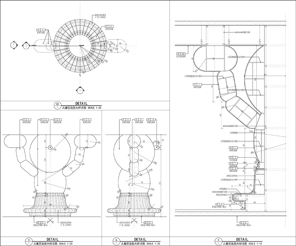
▽儿童区立面图©伊塔诺建筑设计

vsszan2022862521312523.jpg


▽让神话故事转化成可感知的教育场域©穆彪

vsszan2022862521312524.jpg

孩子们小小的身影,穿梭其中也成为了童话的一部分。

▽让神话故事转化成可感知的教育场域©穆彪

vsszan2022862521312525.jpg

艺术中心

当“天圆地方”的东方宇宙观,在现代语境下被重新演绎,人们看到传统与先锋在此激荡、融合、新生,一座“可生长的文化容器”恰恰完美体现了“高平式生活”不可或缺的精神注脚。“方”是严谨的框架、移动的展墙、嵌入式的舞台,构成了秩序与承载的基石,“圆”是流动的思想、即兴的表演、碰撞出的灵感,象征着创新与无限的探索。

▽艺术中心©穆彪

vsszan2022862521312526.jpg

恰如扎哈·哈迪德所说:“空间一共有360个角度,为何只固守其一呢”,随意的拼接、堆叠、旋转都是对传统序列的重组与再造,一座承载展览、沙龙、论坛等多元活动的动态空间自此诞生。建筑是以空间形式体现时代精神,它不是孤立的文化孤岛,而是深度融入城市肌理、与古建群落遥相呼应、共同呼吸的有机生命体,其脱离表象后裸露的思想与精神从未熄灭。每一本 都是未完的篇章,每一瞬都是历史的回响。

▽艺术中心©穆彪

vsszan2022862521312527.jpg
vsszan2022862521312528.jpg

▽艺术中心©穆彪

vsszan2022862521312529.jpg

高平·钟书阁

静候所有以脚步丈量文明的同行者,诵读叩问沉默,当暮色浸透弧形书墙——翻开这本立体的《高平之书》,人们捧起的何止文字?而是整座古城递给未来的史诗。

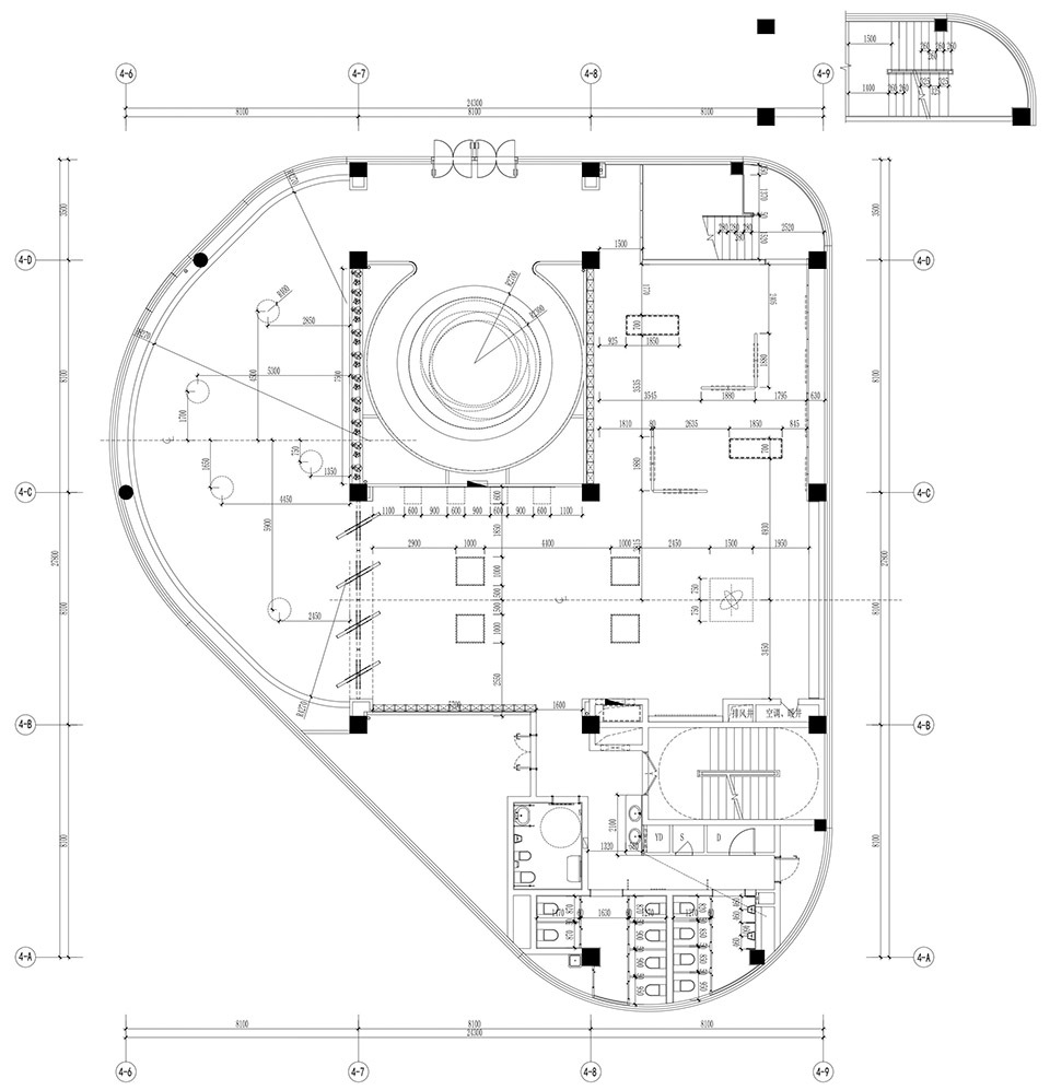
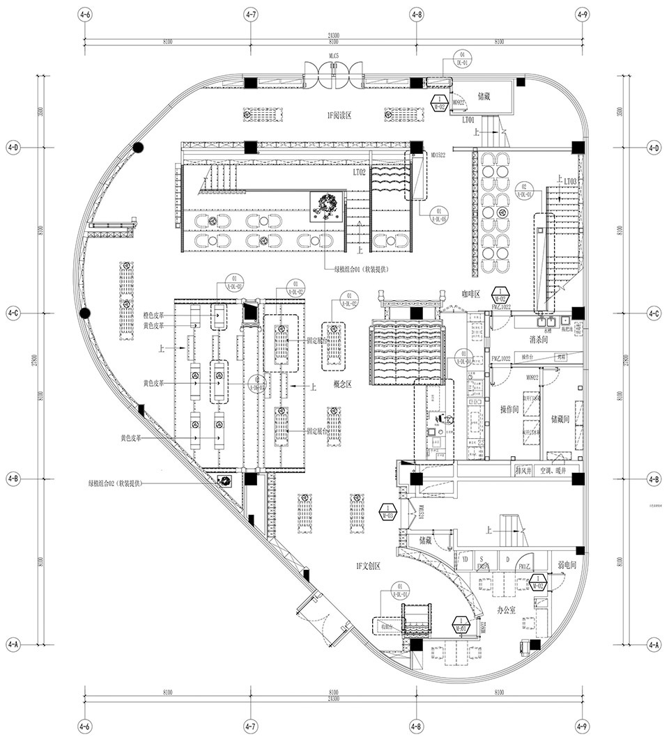
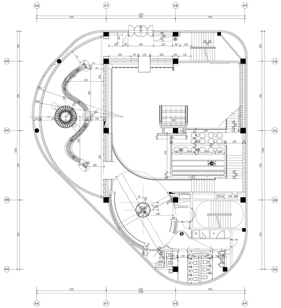
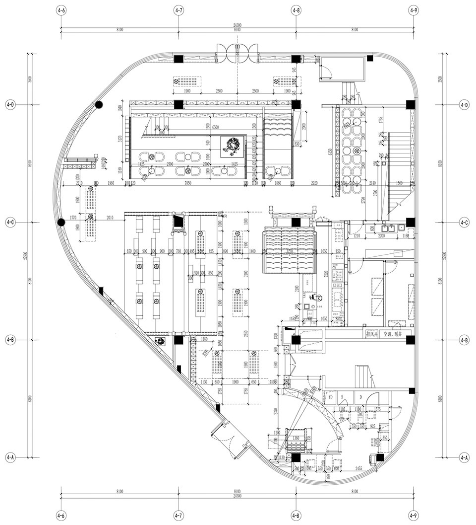
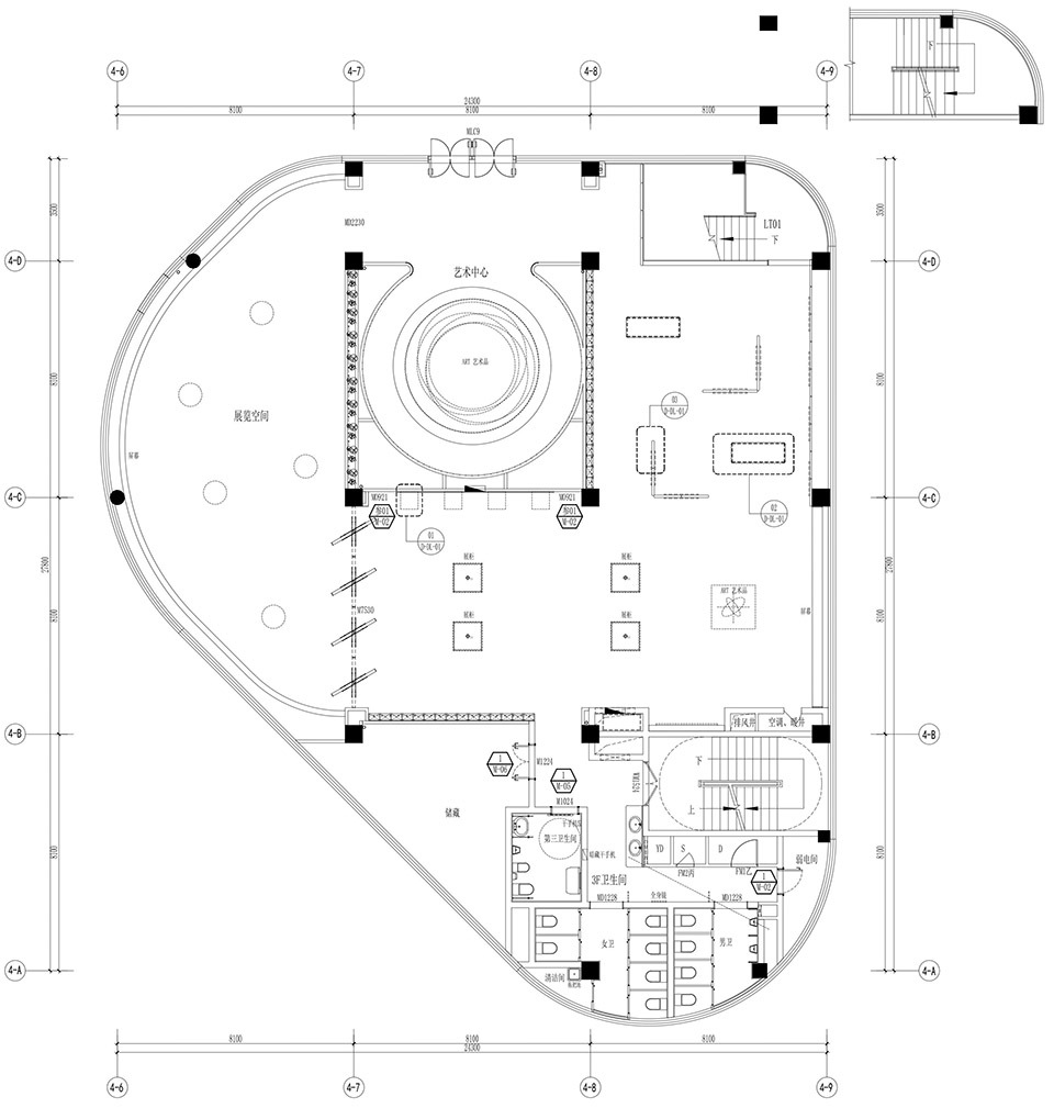
▽平面图©伊塔诺建筑设计

vsszan2022862521312530.jpg
vsszan2022862521312531.jpg
vsszan2022862521312532.jpg
vsszan2022862521312533.jpg
vsszan2022862521312534.jpg
vsszan2022862521312535.jpg
vsszan2022862521312536.jpg
vsszan2022862521312537.jpg

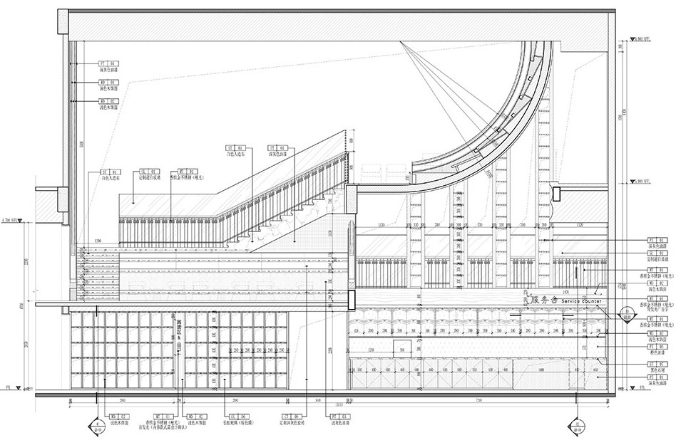
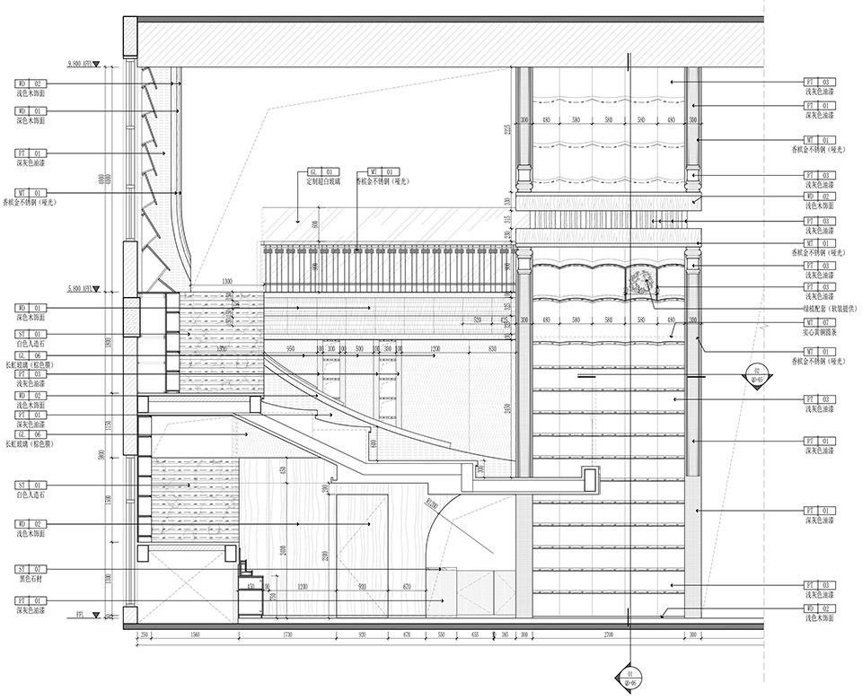
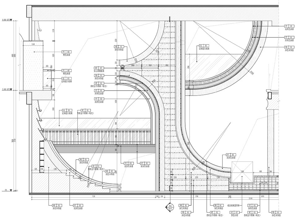
▽立面图©伊塔诺建筑设计

vsszan2022862521312538.jpg
vsszan2022862521312539.jpg
vsszan2022862521312540.jpg

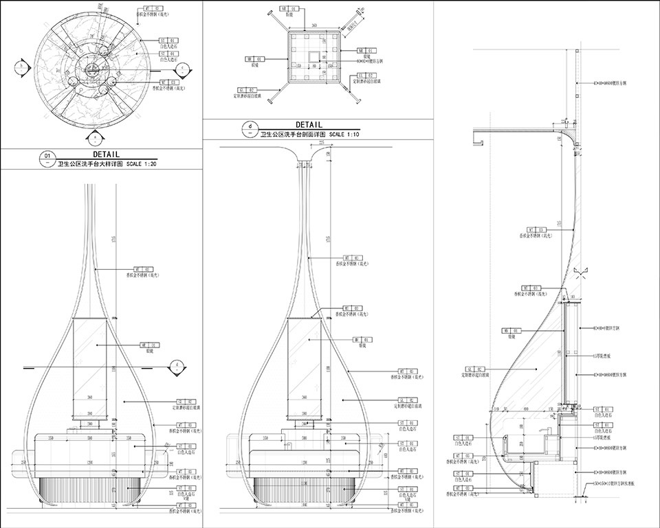
▽细部©伊塔诺建筑设计

vsszan2022862521312541.jpg
vsszan2022862521312542.jpg

项目名称:高平钟书阁书店
项目类型:书店
项目设计:伊塔诺建筑设计
完成年份:2025.8
设计团队:设计总监:朱俊
设计师:张正芳、杨慧艳、田玺
项目地址:高平市太行国潮奥莱4号小商业
建筑面积:1500㎡
摄影版权:穆彪
vsszan2022862521312543.jpg
vsszan2022862521312544.jpg
vsszan2022862521312545.jpg
vsszan2022862521312546.jpg
vsszan2022862521312547.jpg
vsszan2022862521312548.jpg
AI文本分析中……
AI色彩命名中……

序赞Ai时刻等待着你的命令!~

与Ai对话形式持续执行相关Ai智能体任务。

ppap7772025-8-26 23:44:50
感谢分享!!感谢分享!!
syhgdesign2025-8-27 02:09:06
感谢楼主辛苦分享  
闫金辉2025-8-27 12:24:43
感谢分享  真不错
2025-8-28 11:46:16
感谢分享!!感谢分享!!
sui00002025-9-1 12:27:38
感谢分享!!感谢分享!!
您需要登录后才可以回帖 登录 | 注册序赞号

快速回复 返回顶部 返回列表