HIGH FIVE运动度假酒店 | 泛域设计 | 2025 | 中国浙江
位于浙江安吉,HIGH FIVE运动度假酒店以群山环抱、林野延绵的自然地貌为依托,坐落于一个以户外运动为主要生活场域的运动村内,秉承“轻心运动、慢调生活”的理念,为热爱运动与自然的人群,营造松弛而富有节奏的度假体验。

▽室内概览©奥观建筑视觉AOGVISION

vsszan203233032128051.jpg

01.辐射的能量场

运动,是一种生命的行为,是一种向往变化与律动的生活态度。HIGH FIVE的设计,需要将酒店的功能辐射于来此度假、居住、运动的多类客群,我们希望它不仅是旅途中的落脚点,更是一处向外辐射能量、为周围的建筑、空间、运动场景提供更多公共属性功能,传递自由随性生活态度的“动感场域”。依托山地自然与户外生活方式,我们打造了一个开放而多元的空间——可娱乐、可休憩、可社交、可售卖、也能让人与自然建立松弛的链接。骑行、露营、攀岩、徒步……各种户外活动皆可从此出发,延展为度假区内的日常节奏。酒店不再是功能的终点,而是体验的起点;不再是封闭的孤岛,而是情绪与能量的聚合体;是一家融合运动与艺术的度假型酒店。

▽室内概览©奥观建筑视觉AOGVISION

vsszan203233032128052.jpg

02.以运动为内核 | 动感“能量蛋”

酒店主入口设置了一件极具张力的能量核心装置,其形体如同肌肉与骨骼的抽象融合,饱满而有力。强大而有力的空间雕塑,总有一种可以快速将人拉入特定情绪的能力,柔和的异形体量由GRG多维曲面构成。自然生长的有机体,流动构造呼应运动的形体动势,在瞬间,将“动”的能量传递出来。

▽极具张力的能量核心装置©奥观建筑视觉AOGVISION

vsszan203233032128053.jpg

左侧的快闪区除了作为艺术陈设,同时也拥有传递日常天气、时间、信息的功能。亦服务于日常销售。垂直光柱划分墙面节奏,形成呼吸感的立面构造。接待台上方,一颗金属球体悬浮于光晕之中,构成空间的视觉焦点。它静止却充满张力,仿佛将某个被暂停的瞬间定格于空中,运动与失重相平衡。

▽一颗金属球体悬浮于光晕之中©奥观建筑视觉AOGVISION

vsszan203233032128054.jpg

大厅的导视,用动态LED影像呈现空间、导向信息,在动态中构成兼具科技趣味与空间焦点的复合体验。

▽在动态中构成兼具科技趣味与空间焦点的复合体验©奥观建筑视觉AOGVISION

vsszan203233032128055.jpg

▽在动态中构成兼具科技趣味与空间焦点的复合体验©奥观建筑视觉AOGVISION

vsszan203233032128056.jpg
vsszan203233032128057.jpg

03.自然景观 | 感受人与自然的共生共愈

以动感为内核,休息区空间并未直白模仿运动的姿态,而是借助结构的张力与材料的肌理,转译出自然流动、有机生长的空间状态。以隐性的力量构建节奏,让每次漫步,都像是身处山野中的自然呼吸。

▽自然流动、有机生长的空间状态©奥观建筑视觉AOGVISION

vsszan203233032128058.jpg
vsszan203233032128059.jpg

开放的多朝向围合空间,为带着浆板、轮滑、自行车等运动装备的游客,提供了更多样的使用方式。或整理行装,或认识新的朋友,或好友相聚,不被设限的空间,去感受真实自然的体验。

▽自然流动、有机生长的空间状态©奥观建筑视觉AOGVISION

vsszan2032330321280510.jpg

▽家具细部©奥观建筑视觉AOGVISION

vsszan2032330321280511.jpg
vsszan2032330321280512.jpg

酒店大堂地面选用天然石材,保留自然的原始肌理与触感,像是在林间行走时,脚下踩过的砂石路。

▽保留自然的原始肌理与触感©奥观建筑视觉AOGVISION

vsszan2032330321280513.jpg

通往ADD全日制餐厅的过渡空间,我们特别安放了一处壁炉装置,火焰温柔跃动于木石之间,烘托出内向的暖意。悬挂的“漂浮山峦”轻盈、静谧、如云如山,是时间沉淀出的生命力。火光映射其上,为进入者构建出一条情绪缓冲的动线。


▽全日制餐厅©奥观建筑视觉AOGVISION

vsszan2032330321280514.jpg

步入餐厅,自然语言进一步延伸。洞石、红砖、大理石等天然材料成为视觉主调,植物的穿插则唤起人与自然的柔性链接。

▽自然语言进一步延伸©奥观建筑视觉AOGVISION

vsszan2032330321280515.jpg

作为酒店的重要公区,ADD餐厅承载着高频次的用餐与社交功能。我们摒弃运动空间常见的荧光色表达,转而以自然克制的方式回应山地的气质。流动的运动线条,延展进入,成为餐厅的柱子、墙体、顶面…..

▽以自然克制的方式回应山地的气质©奥观建筑视觉AOGVISION

vsszan2032330321280516.jpg

延伸而至的户外餐厅,在保持原生质感的同时,经过重新构造:红砖以不同模数拼贴组合;木材以横竖交错排列、与地面的铺装节奏产生呼应,从柱体和木梁延伸到整个山形的结构中。外摆区域沿用室内的红砖铺地,以图形化的节奏语言保留原始质感,构建出轻松而克制的开放场所。

▽户外餐厅©奥观建筑视觉AOGVISION

vsszan2032330321280517.jpg

04.艺术潮牌 | 科技像素化演绎潮流运动

在自然与运动之外,我们还融入了艺术性的设计表达。卫生间区域将绿色大理石与银色金属结合,打造精致而现代的感官空间。银色镜面作为边框与饰面嵌入其间,增强空间的反射属性,为自然克制的空间融入一丝现代时尚气息。在动线核心的楼梯间,色彩成为驱动情绪的关键元素。橙色作为主色调,象征着能量、律动与向上的生命力。螺旋楼梯以几何折线盘旋而上,既强化了空间的结构语言,也将动感贯穿于垂直流动之间。橙与黑的对比在视觉中形成强烈张力,打造出一个极具节奏感的视觉中心。电梯空间则化身为品牌精神的象征场。品牌“HIGH FIVE”中的符号被转化为带有动势的图形,配合灯光编程,在开门瞬间散发星光般的动态视觉效果。作为连接不同楼层与场景的垂直媒介,电梯在短暂的移动过程中完成了从功能空间到沉浸体验的转化,赋予空间以精神标识。以深色为基调,结合金属、水泥等现代材质,构建了HIGH BAR感性与理性并存的空间语境。黑色元素赋予空间深邃冷静的气质,局部复古马赛克图案与绿色绒布的复古拼接,在致敬经典酒吧意象的同时,也引入更具秩序感的当代表达。

▽楼梯空间©奥观建筑视觉AOGVISION

vsszan2032330321280518.jpg

外摆派对区延展至户外,日间绿植环绕,夜晚以真火壁炉与实木围合的座区营造松弛氛围。通过拾级而上的动线,便进入HIGH BAR的派对区。抬高的设计不仅强化仪式感,也让来宾能够在此处俯瞰户外远山的风景,山的轮廓在夜色与灯光的映衬下成为派对背景的一部分,营造独特的观景体验。卡座区采用弧形下沉式布局,环绕中央篝火而设,形成温暖而富有凝聚力的社交核心。座位以沉稳的红色包裹,与深色木地板形成红与黑的强烈对比,赋予空间力量与时尚。可发光座椅——造型简洁但在灯光开启时化为柔和的光源,不仅提供功能性照明,也成为夜晚氛围的主角。

▽户外餐厅©奥观建筑视觉AOGVISION

vsszan2032330321280519.jpg

05.纯白中餐厅|极简结构中的光影仪式


步入三楼的中餐厅,节奏再度切换。整体空间以纯白为基调,在极简中呈现如教堂般的庄重感受。白色石材构成主视觉框架,排列有序的立柱营造层层递进的仪式感。自然光透过外立面开窗洒落其间,强化光影的秩序与层次,空间在静谧中具备温度与流动感。入口处设置的定制艺术装置呼应整体氛围,悬挂式灯具的光线顺势垂落,穿梭于柱列与石面之间,勾勒出柔和的明暗过渡,也强化了空间的精神属性。

▽在极简中呈现如教堂般的庄重感受©奥观建筑视觉AOGVISION

vsszan2032330321280520.jpg

▽在极简中呈现如教堂般的庄重感受©奥观建筑视觉AOGVISION

vsszan2032330321280521.jpg

▽强化光影的秩序与层次©奥观建筑视觉AOGVISION

vsszan2032330321280522.jpg

vsszan2032330321280523.jpg
vsszan2032330321280524.jpg

▽在功能使用与精神氛围之间完成无声互动©奥观建筑视觉AOGVISION

vsszan2032330321280525.jpg
vsszan2032330321280526.jpg
vsszan2032330321280527.jpg

06.山野居所 | 山体语境下的松弛延续

客房区域的过道则转换为更具节奏感与艺术感的场景。通道以红色石材铺就,搭配定制设计地毯,以色彩的韵律与几何构成铺陈于脚下,在纯粹的空间与纯粹的景观之间注入一抹富有节奏的亮色。房间内部延续了公区的运动主题内核,以运动雕塑构建背景墙体,张弛之间,完成从公共到私密的场景切换。

▽客房区域的过道©奥观建筑视觉AOGVISION

vsszan2032330321280528.jpg

在功能布局上,客房兼顾度假与运动需求。沙发床可灵活拉出,提升使用的多样性;柜体上方设置了承重区,可放置运动装备,满足运动型酒店的属性需求。整体材质与色彩采用双重策略——饱和绿色与天然石材的质感结合,呼应自然主题的同时,为空间注入动感与活力。

▽客房兼顾度假与运动需求©奥观建筑视觉AOGVISION

vsszan2032330321280529.jpg
vsszan2032330321280530.jpg

▽电梯间©奥观建筑视觉AOGVISION

vsszan2032330321280531.jpg

07.氛围软装|在细节中与山林共振


在HIGH FIVE酒店,软装不仅是功能承载,更是空间气场的延续。天然木材、质感织物与低饱和度皮革,共同构建出温润而克制的视觉基底。米白色泡感沙发模糊了体块边界,带来如山雾般的柔和包裹感;绿色与赭黄的单椅则仿佛从山林与阳光中采撷而来;咖啡桌以放射状木纹构造秩序中心,悄然嵌入“空间能量场”的对称感知。

▽构建出温润而克制的视觉基底©奥观建筑视觉AOGVISION

vsszan2032330321280532.jpg
vsszan2032330321280533.jpg
vsszan2032330321280534.jpg

选用手工纸布反复揉压定型,保留褶皱的不确定性。光影洒落,其形如浮动山影,似晨雾初散,回应五峰的地貌节奏。天然木杆与白色绳结编织的墙面装置,描摹出山脊走势,绳结在有序与偶然中生长,构成一场人与自然的柔性对话。从屋脊到溪谷,从山形到流线,形态各异,却非平面,而是以立体构造与肌理层次,回应自然的原始力量。

▽选用手工纸布反复揉压定型©奥观建筑视觉AOGVISION

vsszan2032330321280535.jpg

结语

这是一座嵌于山林的能量场,我们用设计重塑人与自然的亲密距离,以数字媒体艺术与运动为内核,传递自由随性的生活态度,让【运动社群】成为一种新的生活方式。

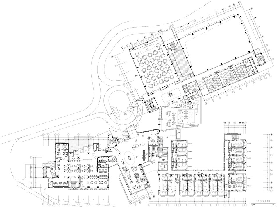
▽二层平面图©泛域设计

vsszan2032330321280536.jpg

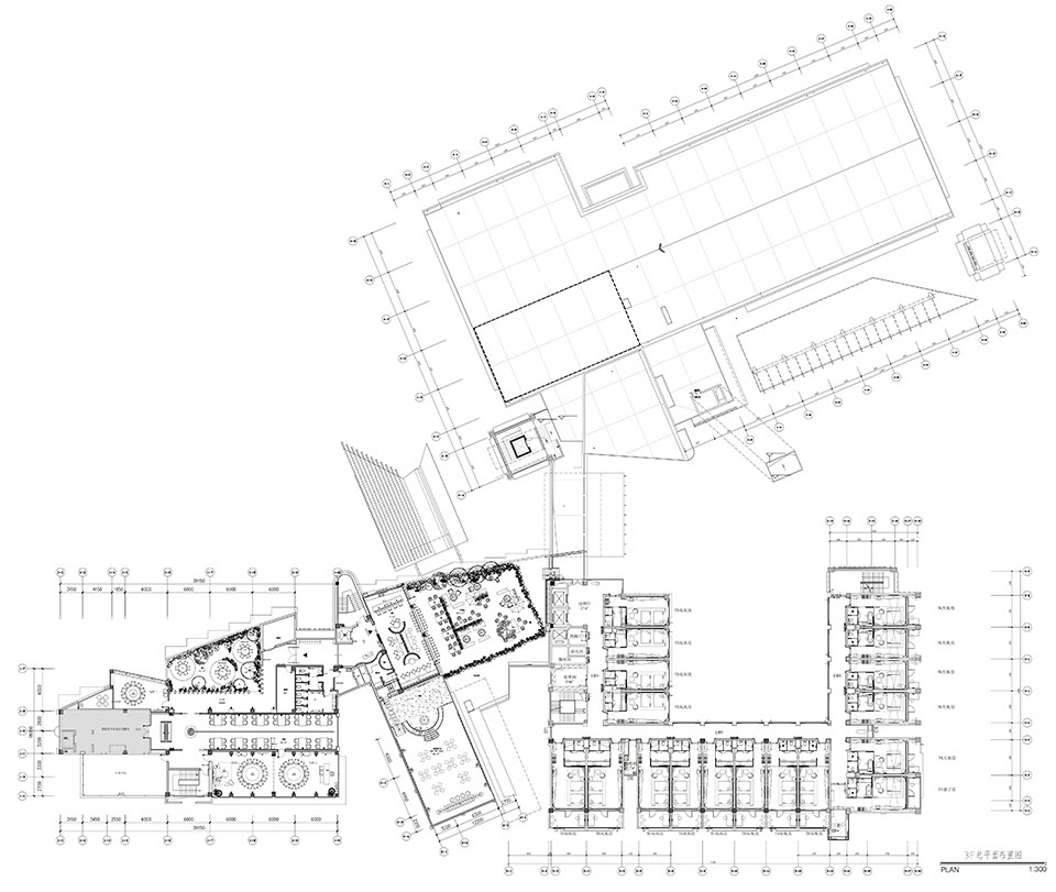
▽三层平面图©泛域设计

vsszan2032330321280537.jpg

  • 项目名称:HIGH FIVE运动度假酒店
  • 项目类型:酒店
  • 设计方:泛域设计 Fununit Design & More
  • 项目设计:朱啸尘
  • 完成年份:2025/08
  • 设计团队:空间设计 | 柴尔焕 谢宜臻 陈璐 邓可昇 成博伟 华海 沈洋 刘蓬阳
  • 软装设计 | 陈琳 吴雨昕 翁亮亮 林文静
  • 视觉设计 | 胡晓娴 詹孟婷 秦常雨
  • 项目地址:浙江 安吉
  • 建筑面积:7896㎡
  • 摄影版权:奥观建筑视觉AOGVISION
  • 客户:HIGH FIVE
  • 材料:水泥压木纹预制板、石材、不锈钢、GRG、艺术涂料、预制水磨石砖
  • 品牌:HIGH FIVE
vsszan2032330321280538.jpg
vsszan2032330321280539.jpg
vsszan2032330321280540.jpg
vsszan2032330321280541.jpg
vsszan2032330321280542.jpg
vsszan2032330321280543.jpg
vsszan2032330321280544.jpg
vsszan2032330321280545.jpg
vsszan2032330321280546.jpg
vsszan2032330321280547.jpg
vsszan2032330321280548.jpg
vsszan2032330321280549.jpg
vsszan2032330321280550.jpg
vsszan2032330321280551.jpg
vsszan2032330321280552.jpg
vsszan2032330321280553.jpg
vsszan2032330321280554.jpg
AI文本分析中……
AI色彩命名中……

序赞Ai时刻等待着你的命令!~

与Ai对话形式持续执行相关Ai智能体任务。

95qabc2025-9-4 20:06:49

谢谢分享!!!谢谢分享!
8760164152025-9-26 22:21:29
谢谢分享!!!谢谢分享!谢谢分享!!!谢谢分享!谢谢分享!!!谢谢分享!
您需要登录后才可以回帖 登录 | 注册序赞号

快速回复 返回顶部 返回列表