镌 engrave | 锵设计 | 2024 | 中国浙江
vsszan203242040057001.gif

本案将125㎡空间视为一方未完成的雕块。拆除非承重隔墙,裸露结构骨架,以最纯粹的形态回应生活的多维需求。空间不再被静态分割,而是成为连续流动的载体,映射居者的生活节奏与情绪波澜。

vsszan203242040057002.png

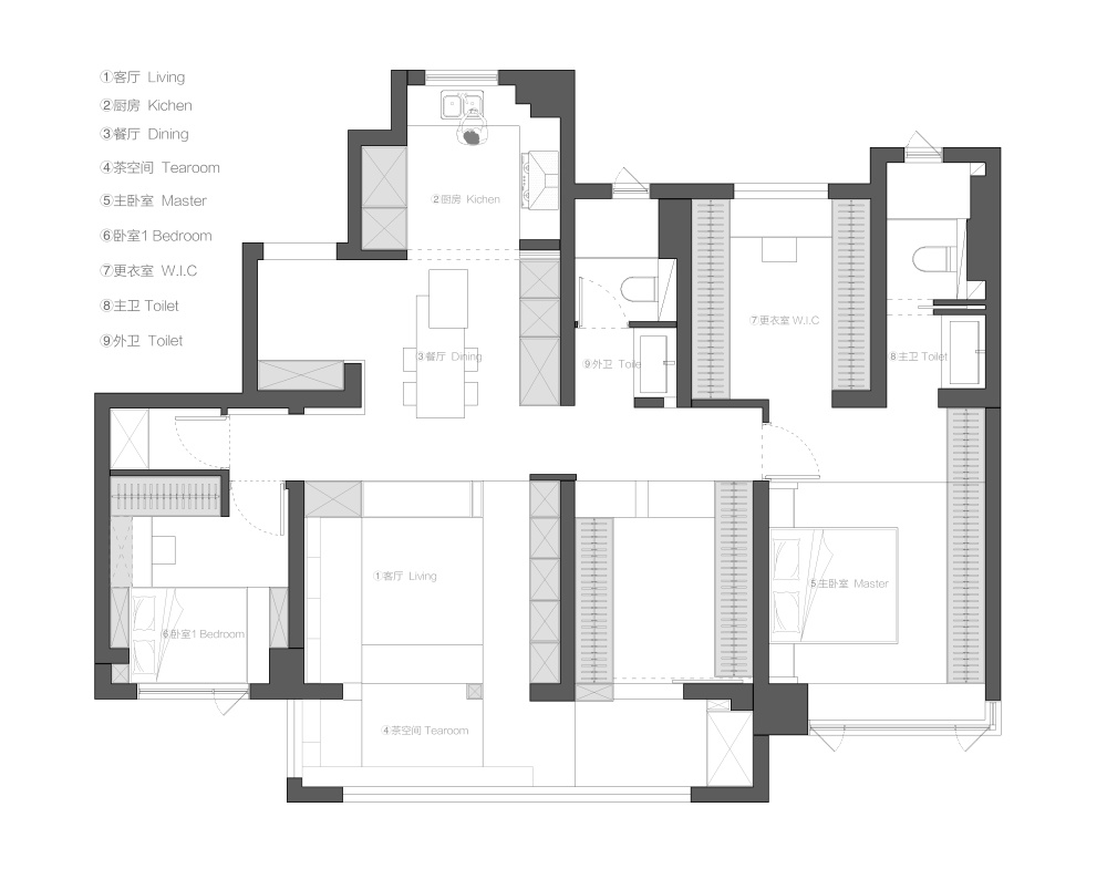
平面布置图

一镜到底无剪辑
vsszan203242040057003.png
vsszan203242040057004.png
vsszan203242040057005.gif
vsszan203242040057006.png
vsszan203242040057007.png

“镌”,非刻意雕饰,而是以极简手法,揭示空间本质的肌理与秩序。
vsszan203242040057008.png
vsszan203242040057009.png
vsszan2032420400570010.png
vsszan2032420400570011.png
vsszan2032420400570012.gif
vsszan2032420400570013.png

设计通过材质的交织,切割出空间的节奏与界面。粗粝与细腻并置,冷硬与温润相融,构建出由触觉延展至视觉的感知层级。每一块石材、每一面墙体,皆是时间与工艺的镌刻,隐喻着生活的沉淀与流转。
vsszan2032420400570014.png
vsszan2032420400570015.png
vsszan2032420400570016.gif

清水泥墙面以其原始的粗糙感还原材质本真,弱化装饰性,以极简语汇引导出空间的静谧基调。
vsszan2032420400570017.png
vsszan2032420400570018.png

玄关以手工黑砖铺陈地面,随使用愈显温润,构建出时间流动的触感记忆。砖面与界线无声切割出入室的节奏感,形成不刻意却精准的过渡仪式。
vsszan2032420400570019.png
vsszan2032420400570020.png
vsszan2032420400570021.png

餐厅与岛台合二为一,收纳与电器柜体融入立面,界面干净而克制。材质之间的细腻过渡,柔和了空间的转换节奏,使餐厨成为“使用”与“交流”共存的生活节点。移动玻璃门隐隐隔断油烟,保持开放的自由流动感。
vsszan2032420400570022.png
vsszan2032420400570023.png
vsszan2032420400570024.png
vsszan2032420400570025.png
vsszan2032420400570026.gif

客厅以抬高的黑色手工砖地面引导动线,营造出错落有致的层次感。客座区围合而成,如内聚的场域,中心感自然生成。结构承重墙未被遮蔽,而以半高金属柜体包裹,既融于背景、承载收纳,又串联起前后空间,形塑出灵动洄游的动线关系。
vsszan2032420400570027.gif
vsszan2032420400570028.png
vsszan2032420400570029.png
vsszan2032420400570030.png
vsszan2032420400570031.png

通往阳台的过道自然而然延展,尽头隐匿一方茶亭。斜坡木质吊顶如雨棚张开,宛若亭台轻覆。石墩为几,三两知己围坐品茗,构筑一隅内建筑的静谧闲适。座椅底部暗藏收纳,隐形扩容,秩序井然。
vsszan2032420400570032.png
vsszan2032420400570033.gif
vsszan2032420400570034.png
vsszan2032420400570035.png

承重墙被赋予新的生命,化为立面节点。柜体中巧设圆形“太空舱”猫窝,构筑宠物与人共生的灵动路径,温情而富趣味。书房环绕墙体展开,收纳与书写功用交织,兼顾高效实用,亦氤氲沉静阅读气场。
vsszan2032420400570036.gif
vsszan2032420400570037.png

顶部嵌入金属镜面,映射出空间的延展与层高感知,于微光之间释放张力。光线介入,与材质共构氛围,完成第一重心理卸载。
vsszan2032420400570038.png
vsszan2032420400570039.png
vsszan2032420400570040.png
vsszan2032420400570041.gif
vsszan2032420400570042.png
vsszan2032420400570043.png

书房借由二次抬高,巧妙划分动静界限。首级踏步以水泥浇筑的粗粝质感,配合现代玻璃砖的通透光影,营造丰富的肌理节奏。书架采用传统榫卯工艺穿插组构,古典匠心与现代美学相融,既实用又富韵味,成为空间中静谧的精神支点。
vsszan2032420400570044.png
vsszan2032420400570045.png
vsszan2032420400570046.jpeg
vsszan2032420400570047.png

主卧作为最核心的私密场所,被纳入一个套间式的整体系统,串联起更衣间与双卫空间。床尾柜体以半悬浮方式轻盈展开,下方留白,勾勒出一层虚化的通透感,亦作为空间背景缓缓铺陈。墙体不可拆除的承重界面,被赋予黑釉砖面,与木质温润形成刚柔对照,分隔亦过渡,沉稳中蕴含序列张力。
vsszan2032420400570048.png
vsszan2032420400570049.png
vsszan2032420400570050.png
vsszan2032420400570051.png
vsszan2032420400570052.png
vsszan2032420400570053.png

私域空间的构建,延续公共区的结构逻辑,将尺度收束至更细腻的体块语言中。材质、光线与体量关系彼此渗透,在视觉节奏与心理感知中实现沉静与安放的双重归属。
vsszan2032420400570054.png
vsszan2032420400570055.png

次卧借由原有飘窗结构顺势抬高,床铺嵌入其上,延展出的下部收纳空间将功能最大化嵌入界面之中。墙面环绕出一体化书桌,收纳与书写、居住与使用于此融合,简洁而克制,轻盈而不失温度。
vsszan2032420400570056.png
vsszan2032420400570057.png

  • 项目信息
  • 项目名称|镌 engrave  
  • 项目类型|住宅空间
  • 项目地址|浙江  温州
  • 项目时间|2024年
  • 项目面积|125㎡
  • 设计公司|锵设计
  • 主持设计|王锵力
  • 团队参与|池浩然、韩俊浩
  • 公司网站|www.qiangid.com
  • 施工团队|锵设计
  • 空间摄影|张家宁
vsszan2032420400570058.jpeg

  • 转自:纯氧设计馆
  • 图片©纯氧设计馆
  • 编辑:序赞网
  • 阅读原文
AI文本分析中……
AI色彩命名中……

序赞Ai时刻等待着你的命令!~

与Ai对话形式持续执行相关Ai智能体任务。

暂时没有评论,你回一个呗!~

您需要登录后才可以回帖 登录 | 注册序赞号

快速回复 返回顶部 返回列表