镌 | 锵设计 | 2025 | 中国浙江
vsszan203395080008041.png

"
“镌”,非刻意雕饰,而是以极简手法,揭示空间本质的肌理与秩序。
vsszan203395080008042.png

01

INTERPRETATION

释界

肌理密码

本案将125㎡空间视为一方未完成的雕块。拆除非承重隔墙,裸露结构骨架,以最纯粹的形态回应生活的多维需求。

空间不再被静态分割,而是成为连续流动的载体,映射居者的生活节奏与情绪波澜。
vsszan203395080008043.png

vsszan203395080008044.gif

材质剖析
vsszan203395080008045.png

vsszan203395080008046.png

vsszan203395080008047.png

vsszan203395080008048.png

vsszan203395080008049.png

vsszan2033950800080410.png
vsszan2033950800080411.gif
结构剖析
清水泥墙面以其原始的粗糙感还原材质本真,弱化装饰性,以极简语汇引导出空间的静谧基调。
vsszan2033950800080412.png
vsszan2033950800080413.png

vsszan2033950800080414.png

vsszan2033950800080415.gif

结构剖析

玄关以手工黑砖铺陈地面,随使用愈显温润,构建出时间流动的触感记忆。砖面与界线无声切割出入室的节奏感,形成不刻意却精准的过渡仪式。
vsszan2033950800080416.png

vsszan2033950800080417.png

餐厅与岛台合二为一,收纳与电器柜体融入立面,界面干净而克制。材质之间的细腻过渡,柔和了空间的转换节奏,使餐厨成为“使用”与“交流”共存的生活节点。移动玻璃门隐隐隔断油烟,保持开放的自由流动感。
vsszan2033950800080418.png
vsszan2033950800080419.png
vsszan2033950800080420.png

vsszan2033950800080421.png

vsszan2033950800080422.png

客厅以抬高的黑色手工砖地面引导动线,营造出错落有致的层次感。客座区围合而成,如内聚的场域,中心感自然生成。

结构承重墙未被遮蔽,而以半高金属柜体包裹,既融于背景、承载收纳,又串联起前后空间,形塑出灵动洄游的动线关系。
vsszan2033950800080423.png

vsszan2033950800080424.png

vsszan2033950800080425.png

vsszan2033950800080426.png

vsszan2033950800080427.png

vsszan2033950800080428.gif

客区动线

02

CO-CONSTRUCTION
共构流动剧场

通往阳台的过道自然而然延展,尽头隐匿一方茶亭。斜坡木质吊顶如雨棚张开,宛若亭台轻覆。石墩为几,三两知己围坐品茗,构筑一隅内建筑的静谧闲适。座椅底部暗藏收纳,隐形扩容,秩序井然。
vsszan2033950800080429.gif

vsszan2033950800080430.png

vsszan2033950800080431.gif

阳台屋檐
vsszan2033950800080432.png

vsszan2033950800080433.png

承重墙被赋予新的生命,化为立面节点。柜体中巧设圆形“太空舱”猫窝,构筑宠物与人共生的灵动路径,温情而富趣味。书房环绕墙体展开,收纳与书写功用交织,兼顾高效实用,亦氤氲沉静阅读气场。
vsszan2033950800080434.png

vsszan2033950800080435.gif

vsszan2033950800080436.png

顶部嵌入金属镜面,映射出空间的延展与层高感知,于微光之间释放张力。光线介入,与材质共构氛围,完成第一重心理卸载。
vsszan2033950800080437.gif

vsszan2033950800080438.png

vsszan2033950800080439.png

vsszan2033950800080440.png

vsszan2033950800080441.png

书房通过二次抬高的手法,清晰界定了动静分区。首级踏步以水泥浇筑的沉静粗粝,与现代玻璃砖的清透光影交织,形成丰富的材质韵律。

书架借传统榫卯工艺穿插构筑,使古典匠意与现代美学自然交融,兼顾功能与意境,成为空间中一处沉静而有份量的精神锚点。
vsszan2033950800080442.png

vsszan2033950800080443.png

vsszan2033950800080444.png

vsszan2033950800080445.gif

结构剖析 P. 43
vsszan2033950800080446.png

vsszan2033950800080447.png

03

HIDDEN FIELD


隐序场

主卧作为最核心的私密场所,被纳入一个套间式的整体系统,串联起更衣间与双卫空间。

床尾的柜体以半悬挑的形式轻逸延伸,底部适度留白,勾勒出一段朦胧的通透层次,也如同为空间铺就一幅清淡的背景。不可拆除的承重墙体覆以黑釉砖面,与温润木质形成刚柔互映,既作为区域的分隔,又承担过渡的节奏,于沉稳中透出构造的张力与序列感。
vsszan2033950800080448.png

vsszan2033950800080449.png

vsszan2033950800080450.png

阳台屋檐
vsszan2033950800080451.png

私域空间的营造,延续了公共区域的结构逻辑,将尺度收敛于更细腻的体块表达之中。材质、光线与体量的关系相互交融,在视觉的韵律与内心的体验间,达成沉静与安放的双重归属感。
vsszan2033950800080452.png

vsszan2033950800080453.png

vsszan2033950800080454.png

vsszan2033950800080455.png

vsszan2033950800080456.png

次卧沿原有飘窗结构顺势抬高,将床体嵌入台面,下方顺势延伸出储物空间,使功能以最大效率融入整体界面。墙面延展出一体化书桌,收纳与书写、居住与功能彼此融合,简洁中透着克制,轻盈中带有温度。
vsszan2033950800080457.png

vsszan2033950800080458.png

在这处名为“静处”的空间中,设计不诉诸繁饰,而是以体块、材质与节奏为语言。睡眠、梳洗与沉思等私人场景,在极简的勾勒中徐徐展开,最终回归为身心安顿的静境。
vsszan2033950800080459.png

vsszan2033950800080460.png

vsszan2033950800080461.png

04
ANALYSIS DIAGRAM
分析图
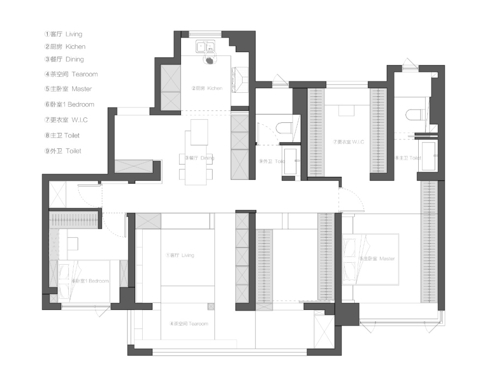
vsszan2033950800080462.png

平面图

项目名称 -镌 | engrave
设计机构 -锵设计
主持设计 -王锵力
团队参与 -池浩然 韩俊浩 张礼舜
项目面积 -125m²
项目地址 -浙江 温州
空间摄影 -张家宁

  • 转自:LJ看设计
  • 图片©LJ看设计
  • 编辑:序赞网
  • 阅读原文

AI文本分析中……
AI色彩命名中……

序赞Ai时刻等待着你的命令!~

与Ai对话形式持续执行相关Ai智能体任务。

暂时没有评论,你回一个呗!~

您需要登录后才可以回帖 登录 | 注册序赞号

快速回复 返回顶部 返回列表