鄂尔多斯乐园店 | waa未觉建筑 | 2025 | 中国内蒙古

整个设计注入了充满趣味的元素,以此提升购物体验。色彩被用作一种超脱现实的形式,这一理念借鉴自约瑟夫·阿尔伯斯在《色彩的相互作用》中的探索。
▽项目概览© 朱雨蒙

vsszan203547111732081.jpg
vsszan203547111732082.jpg

▽轴测图© waa未觉建筑

vsszan203547111732083.jpg

设计概念
设计中粉色调的环境柔化了空间氛围。这些色彩的搭配产生出微妙的光学振动,让空间显得更加轻盈、富有趣味。特意挑选的颜色旨在传递欢乐与愉快的感受。通过强调高光色调,同时让色彩自然交融,确保了服装始终成为视觉的焦点。
▽概念图© waa未觉建筑

vsszan203547111732084.jpg

一条连续的高耸粉色丝带衣架贯穿空间,既是核心展示装置,也承担着照明和引导动线的功能。它不仅提供展位所需的光线,还巧妙引导顾客在店内的移动路径,有效应对了超大型零售店中商品繁多、展示规模大的挑战。
▽粉色丝带© 朱雨蒙

vsszan203547111732085.jpg

▽照明和引导动线© 朱雨蒙

vsszan203547111732086.jpg
vsszan203547111732087.jpg

▽核心展示装置© 朱雨蒙

vsszan203547111732088.jpg

▽粉色室内细节© 朱雨蒙

vsszan203547111732089.jpg
vsszan2035471117320810.jpg

项目描述
ERDOS LAND 是一家位于鄂尔多斯市郊总部园区内的超大型直销店,坐落于品牌总部大厦中。新空间包含2600平方米的购物区域,汇集公司旗下所有品牌,并设有700平方米的配套功能区,包括儿童游乐区、咖啡馆和旅游中心。
▽综合的购物体验© 朱雨蒙

vsszan2035471117320811.jpg

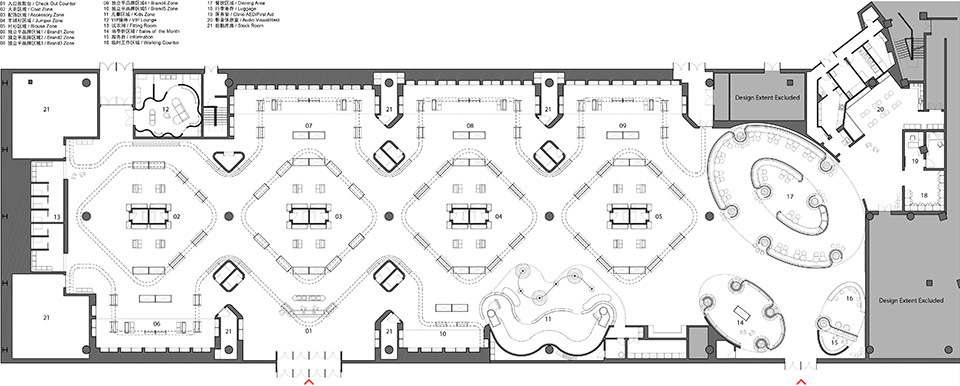
作为品牌目前最大的单层零售空间,该店预计在高峰期每日可接待超过700名顾客,展示超过4000件商品,涵盖五大品牌系列。动线设计成为关键:平面布局以四个中央岛台为核心,使购物过程既可以形成连续的循环体验,也可以通过相互连接的“8”字形路径完成。
▽中央岛台© 朱雨蒙

vsszan2035471117320812.jpg

▽岛台细部© 朱雨蒙

vsszan2035471117320813.jpg

周边对称分布的展位陈列各品牌产品,中央岛台则专注于特定品类——围巾、毛衣、配饰和成衣。试衣间嵌入分隔展位的柱体中,儿童系列区域则将游乐设施直接融入零售环境。
▽对称分布的展位© 朱雨蒙

vsszan2035471117320814.jpg

除了基础照明,整个商店采用统一的背光膜天花。这一连续的光膜表面不仅提升了整体照明水准,还有效减少了生硬阴影,为商品陈列增添柔和氛围,营造出开放而愉悦的购物体验。
▽统一的背光膜天花© 朱雨蒙

vsszan2035471117320815.jpg

定制化 — 游玩与空间的交互
在儿童展区内,游乐设施与服装展示完美结合,呼应了商店的整体设计理念。特色吊灯既作为装饰,也充当衣物挂架;扭曲流动的“巴瑞索膜”天花与简洁的几何灯光形成鲜明对比。部分管状结构被设计为可攀爬装置,让空间在视觉和体验上都充满趣味。
▽儿童展区© 朱雨蒙

vsszan2035471117320816.jpg
vsszan2035471117320817.jpg

贯穿整个项目的趣味装置,从色彩互动的视觉游戏,到动线与陈列的规划,再到儿童区的互动设施,都确保了建筑在满足商业功能的同时,带来丰富而积极的购物体验。
▽趣味装置© 朱雨蒙

vsszan2035471117320818.jpg

▽平面图© waa未觉建筑

vsszan2035471117320819.jpg

vsszan2035471117320820.jpg
vsszan2035471117320821.jpg
vsszan2035471117320822.jpg


项目基本信息 FACT SHEET
项目名称:鄂尔多斯乐园店
业主:鄂尔多斯集团
方案设计:waa未觉建筑
施工图设计:waa未觉建筑
设计团队:张迪,杨杰克,蔡佑俊,伍艺文,李坤荣
施工单位:德州天驰装饰工程有限公司
灯光顾问:悦森照明科技(上海)有限公司
摄影:朱雨蒙
摄像:陈旸/whyseeimage
设计面积:3260平方米
设计周期:2024.12-2025.05
建设时间:2025.05–2025.08
项目地址:内蒙古自治区鄂尔多斯市东胜区罕台镇轻纺街1号

AI文本分析中……
AI色彩命名中……

序赞Ai时刻等待着你的命令!~

与Ai对话形式持续执行相关Ai智能体任务。

闫金辉2025-9-12 12:27:01
感谢分享  真不错
95qabc2025-9-13 00:00:22
谢谢分享!!!谢谢分享!
syhgdesign2025-9-14 01:28:07
感谢楼主辛苦分享
您需要登录后才可以回帖 登录 | 注册序赞号

快速回复 返回顶部 返回列表