几何之诗,平静之山——山林中的艺术基地 | 空气墙 | 2025 | 中国重庆
vsszan204283290057411.png

© 刘洪铭

山林之中

大自然的馈赠

人类文明的智慧

曲折弯绕之间的矗立

峰回路转之处的惊喜



我们行走在空旷、深邃,或许“杂乱无章”的路径里;途径陡峭、平缓,悬崖和流水,抬眼是天和云,低望是每一步来时路;身陷绿意,树叶沙沙,风雨阳光皆为颂赞之歌。



几何构建屋脊

平静之诗被吟唱

在人出生前,和出生后

岿然不动的不是风景、物体和语言

是山谷回响后的静默,回归的力量


重庆缙云山脉腹地,作为全国256个“中国美丽休闲乡村”之一的三河村便静落于这片山川谷地中。空气墙在2023年接到“改造设计三河村艺术基地项目”的委托,面对自然本身、民居聚落环境,空气墙运用【向外生长】和【向内探索】两个策略,让“独立的建筑体”融自身语言于风景的同时,也保持其功能的链接性成为一道崭新“风景线”,让有形建筑穿过无形无迹里,落下去再生长。而落在深山里的每一个痕迹,都是人与宇宙的相遇。
vsszan204283290057412.png

建筑坐落在村庄中 © 刘洪铭
vsszan204283290057413.png

山谷与建筑远景鸟瞰 © 刘洪铭
vsszan204283290057414.png

© 刘洪铭
vsszan204283290057415.png

晨雾中,面向山谷的露台 © 刘洪铭

01 自然无形,万物有记
vsszan204283290057416.png

© 刘洪铭

项目位于上山的山路一侧的一处坡地。从西南方向看,是纵深的山谷风景;反观东南方,山坡之下,是三河村散落的民居聚落。项目的周围恰巧没有其他建筑,完全被树木和风景包裹,成为可眺望山谷的“森林秘境”。

介入项目之初,建筑本身的结构和墙体已经完成;在这样的限制条件下,已建成的建筑结构在周围环境中倔强的格格不入,于是我们将设计目标定义为“如何让风景与建筑空间对话”,把建筑改造与自然环境的关系梳理放在首位,试图探索出属于它自身的语言和存在的理由。
vsszan204283290057417.png

设计介入之前的建筑状态 © 空气墙
vsszan204283290057418.png

© 杨帆

向外生长,使建筑拥有多重空间逐渐过渡到自然风景中;向内探索,将所有外景引入室内。这两大设计策略由建筑到室内贯通始终的氛围感来统一,也是我们入场及在场的最大感受——平静山林的力量。我们遵从建筑最原始的印象,尽量剥离装饰,还原纯粹的几何,让建筑安静地走进风景里。

为尽可能减弱室内外的边界,我们在室外做了三重空间。第一重空间,进入场地景观车行大门,只对道路两侧的植物稍作梳理,用弱化的入口提示并引导车行和人行。
vsszan204283290057419.gif

建筑改造策略 © 空气墙
vsszan2042832900574110.png

逐渐走向建筑 © 杨帆
vsszan2042832900574111.png

逐渐走向建筑 © 杨帆

第二重空间,车行与人行分流处,用精致的水洗石门头引导人行道路。在这条路径上,我们搭建了一个庭院景观,人们会经由几何形态的视觉印象,感知建筑与庭院、与整座山林的呼吸共振。无论是保留下的自然山石,还是碎拼石材小径;是野趣还是秩序,是徜徉艺术还是探寻边界......它就在人们的眼前,却可以呈现无数种基于未知的可能性。
vsszan2042832900574112.png

人行入口亭 © 刘洪铭
vsszan2042832900574113.png

人行入口亭 © 刘洪铭
vsszan2042832900574114.png

景观节点图 © 空气墙
vsszan2042832900574115.png

© 杨帆
vsszan2042832900574116.png
vsszan2042832900574117.png
vsszan2042832900574118.png

入口走向庭院与建筑 © 杨帆
vsszan2042832900574119.png

© 刘洪铭
vsszan2042832900574120.png

几何形态与自然石 © 刘洪铭

在原结构之外,我们重新搭建了第三重空间——露台灰空间,让建筑延伸至山谷,让室内向庭院、自然景观开放,引景并造景。露台是多重的,由上而下,由下至上,风景多面而每一层都拥有独特的视角;这里有水洗石桌和观景座椅,人坐在建筑中,是静止还是游动,都会被框进滋味盎然的画作中。“我们相信从体验出发的设计,会自发生长出优美的建筑形态;我们相信‘美美与共’,美会治愈心灵、激发善意。我们希望使用这个建筑的人,在每个动作中都能和自然美景对话,去享受难能可贵的宁静。
vsszan2042832900574121.png

© 刘洪铭
vsszan2042832900574122.png

阳光下,面向山谷风景的露台 © 刘洪铭
vsszan2042832900574123.png

傍晚时,面向山谷风景的露台 © 刘洪铭
vsszan2042832900574124.png

顶楼露台,一片纯净白嵌入绿色山林 © 刘洪铭

02 形材相搭,景色自来
vsszan2042832900574125.png

© 刘洪铭

整座建筑的材质和色彩,如同其造型,是克制的,简约的,耐看的,充满意蕴的。长条深棕色的仿石材、仿木材板外立面,棕色仿木材地砖,引入干净的线条元素,将几何之美细化到近人尺度。灰色水洗石,花棕色石材拼贴,与自然山石和花草树木相得益彰。此时,一抹白色跃出,区别空间功能,减弱建筑体量感,在感官上给予人们更轻盈和松快的体验。在设计的过程中,空气墙致敬了现代主义的设计精神,塑造经典的现代建筑几何形体之美。
vsszan2042832900574126.png

建筑轴测图 © 空气墙
vsszan2042832900574127.png

建筑正立面,经典几何设计语言 © 刘洪铭
vsszan2042832900574128.png

© 刘洪铭
vsszan2042832900574129.png

几何与流动的空间,自然与克制的线条 © 杨帆
vsszan2042832900574130.png
vsszan2042832900574131.png

© 杨帆

此处新增加的承重柱,将形态结合功能设计成干净的L型座位,避免了柱子的突兀,又创造了可以互动的框景层次。而水洗石长桌作为连接风景,空间,与人的活动的重要一环,兼顾了形态之美与空间之间的互动,让人通过建筑走进了自然。
vsszan2042832900574132.png

© 刘洪铭
vsszan2042832900574133.png
vsszan2042832900574134.png
vsszan2042832900574135.png

滑动查看更多细节 © 杨帆

室内设计始终延续 “引景入室” 的核心,以极简的空间骨架为基底,让每一处开窗、每一道线条都成为自然风景的画框。空间不再是封闭的容器,而是风景流动的通道,人与山林的对话在此处变得具体而细微。

因地势与光线的独特性,负一层被塑造为“让自然成为社交背景”的场所,深色石材地面如同一汪平静的湖水,将皮质沙发区、用餐区、景观区串联成一个通透的 “社交盆地”。
vsszan2042832900574136.png

建筑剖轴测图 © 空气墙
vsszan2042832900574137.png

© 刘洪铭
vsszan2042832900574138.png

© 刘洪铭
vsszan2042832900574139.png
vsszan2042832900574140.png

微观细节与宏观风景的呼吸共振 © 刘洪铭
vsszan2042832900574141.png
vsszan2042832900574142.png

© 刘洪铭

一层开放展厅设计以“消隐”为前提,纯白墙面与浅灰色水泥地面构成极简背景,顶部装置则使用石材肌理。开窗遵循“框景”逻辑:长条窗将露台水洗石桌与远山框成横景,阳光与树影让艺术品与自然光影动态对话;方形高窗聚焦近处树冠,窗框直角与树枝曲线形成几何与自然的碰撞。

茶座区延续室外材质的叙事,一整面落地玻璃,人坐下后视线自然往外:是纵深山谷的层叠绿意,是三河村民居的屋顶与坡地田垄,是午后的炊烟与云雾缠绕在树梢,是茶盏里的茶汤倒映着天空的颜色......室内外的“艺术和烟火”在此交融。
vsszan2042832900574143.png

展厅顶部结构,平静沉默的“山” © 杨帆
vsszan2042832900574144.png

展厅望向窗外,形成近、中、远三层景深 © 杨帆
vsszan2042832900574145.png

茶座区全貌,安静的几何之美 © 刘洪铭
vsszan2042832900574146.png

茶座区,窗景如画 © 刘洪铭

作为兼具创作与休憩功能的二楼空间,在尺度与氛围上更显私密——极简的空间骨架如同“隐形的容器”,让山林的光影与轮廓成为空间的主角,人与风景的对话在此变得更为沉静而专注。办公时,山林是思绪的背景音;休憩时,山林是梦境的序章。
vsszan2042832900574147.png

楼梯间在黑白转换间,流露柔与力之美 © 刘洪铭
vsszan2042832900574148.png

办公区,让思绪随山林舒展 © 刘洪铭

来到3楼,当人静坐沙发,看树影在墙面游走、听风声穿过壁炉管道,会突然明白:所谓“引景入室”,不过是让建筑褪去锋芒,成为自然与人对话的“静默媒介”——空间在此刻,既是容器,也是风景的一部分。

再向上则是光与景的立体交响,楼梯间是“光的容器”,垂直玻璃砖墙将天光滤成半透明蓝灰。
vsszan2042832900574149.png
vsszan2042832900574150.png

休闲区,把山林裱进室内 © 刘洪铭
vsszan2042832900574151.png

© 刘洪铭
vsszan2042832900574152.png

© 刘洪铭

山的静默,是一种包纳之态;当我们走进山里,声音不绝于耳,外在的内在的行动的停止的都在碰撞,而山依旧保持自己模样。空气墙通过尊重山林,尊重自然之美的理念,将突兀的原始结构改造为与山林融合一体的建筑空间,并关注人在自然中的感受与体验,用最安静的形态去介入,道出一首关于建筑几何与山林自然之诗,造出一个万音同存而己在之地。
vsszan2042832900574153.png

总平面图 © 空气墙
vsszan2042832900574154.png

场地关系剖面图 © 空气墙
vsszan2042832900574155.png
vsszan2042832900574156.png
vsszan2042832900574157.png
vsszan2042832900574158.png
vsszan2042832900574159.png

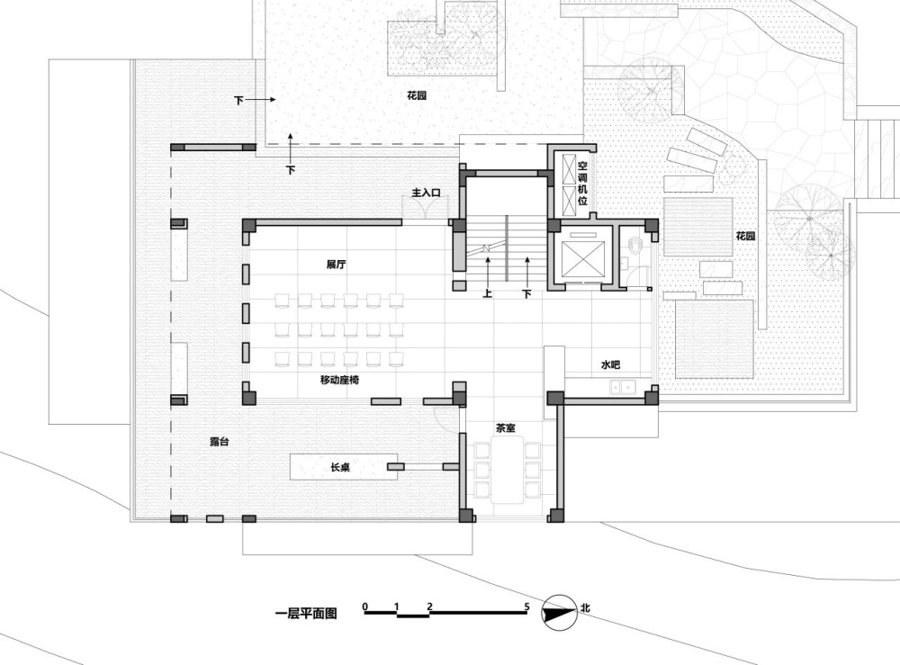
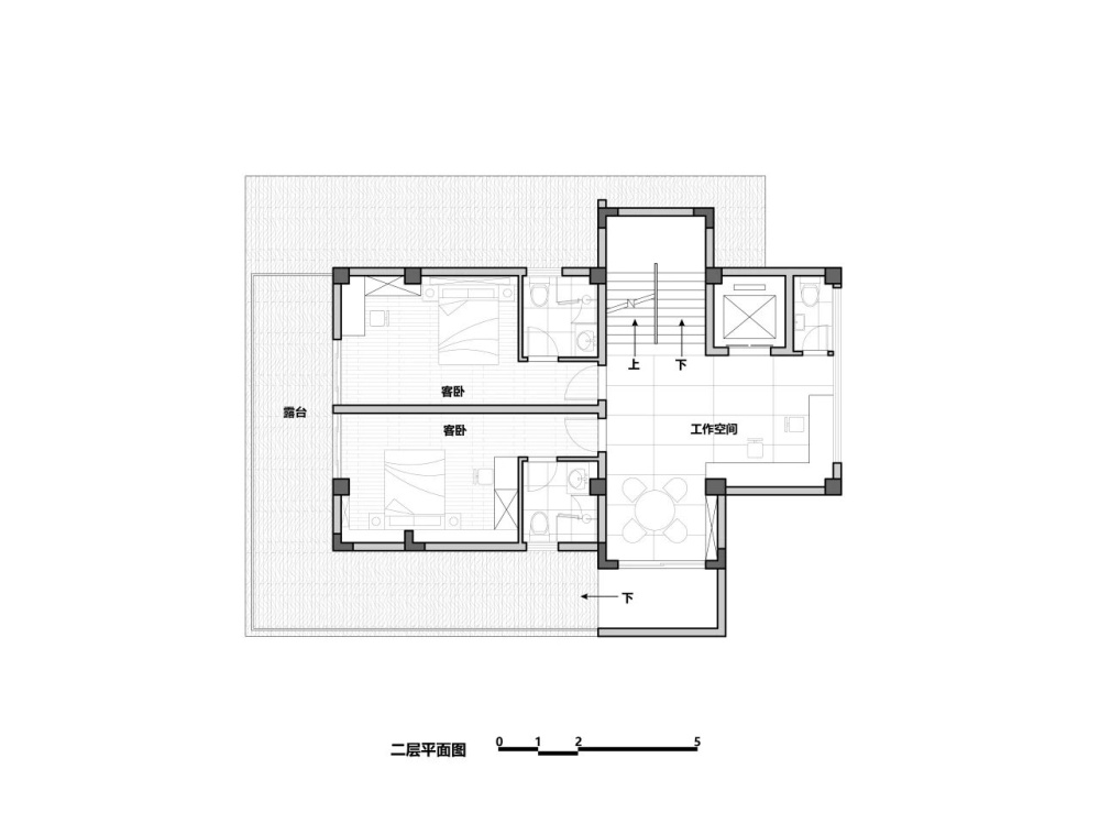
-1F/1F/2F/3F/屋顶平面图  © 空气墙
vsszan2042832900574160.png
vsszan2042832900574161.png
vsszan2042832900574162.png
vsszan2042832900574163.png

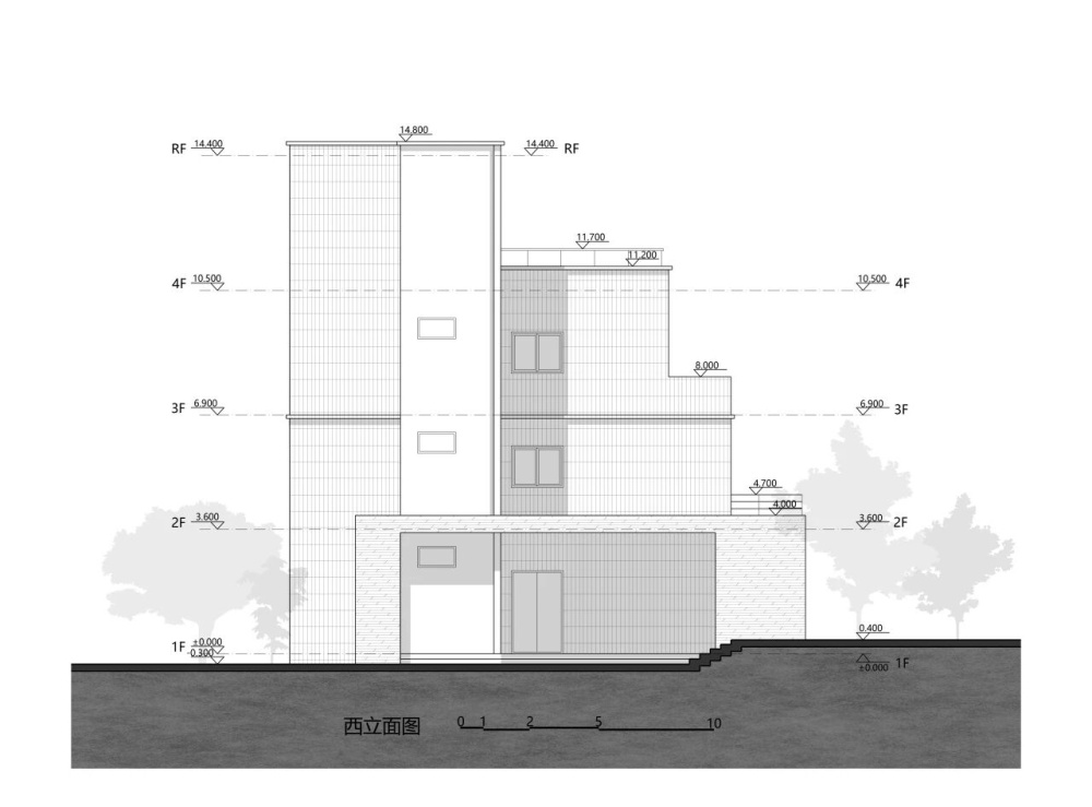
东/西/南/北立面图  © 空气墙



  • 项目名称 | 几何之诗,平静之山——山林中的艺术基地
  • 业主单位 | 重庆美与术艺术基地
  • 项目地址 | 中国重庆 沙坪坝区三河村
  • 设计机构 | 空气墙建筑工作室
  • 主创设计 | 郭彧 叶青慜
  • 设计团队 | 黄梦林、张鹤鸣、刘芸睿、康万平、王源(实习)、雍雄(实习)
  • 设计内容 | 建筑设计 室内设计 景观方案设计
  • 建筑施工图设计 | 康宁
  • 景观深化设计 | 蒋原红、刘星
  • 完成时间 | 2025.01
  • 项目面积 | ≈500㎡
  • 项目摄影 | 刘洪铭、杨帆
  • 材料 | 仿石材外墙板、仿木纹外墙板、仿木纹砖、水洗石
vsszan2042832900574165.png

叶青慜

空气墙建筑工作室 创始合伙人/主持建筑师
vsszan2042832900574166.png

郭彧

空气墙建筑工作室 创始合伙人/主持建筑师

空气墙建筑工作室

由设计师叶青慜与郭彧联合创立于2020年,致力于将设计融合独立审美与艺术文化,塑造建筑与空间的全新叙事。

设计是冲破规则,追寻未知的探索,但要做到创造和超越,也需要遵守其中的规则;这就是设计本身充满矛盾而迷人的地方。更多的时候,空气墙设计的不是“实”,而是“空”,“空”的部分承载了生活,期待,思考和时间,并不该被形式束缚——“不拘万法,悟无好恶,而生设计”。

  • 转自:走鹊
  • 图片©走鹊
  • 编辑:序赞网
  • 阅读原文
几何之诗,平静之山——山林中的艺术基地 | 空气墙 | 2025 | 中国重庆_vsszan2042832900574164.png
AI文本分析中……
AI色彩命名中……

序赞Ai时刻等待着你的命令!~

与Ai对话形式持续执行相关Ai智能体任务。

95qabc2025-9-29 21:35:26
谢谢分享!!!谢谢分享!
您需要登录后才可以回帖 登录 | 注册序赞号

快速回复 返回顶部 返回列表