井JING与胡同美术馆 | 朱小地 | 2025 | 中国北京


项目定位:以艺术语言织补老城文脉
在北京老城的肌理深处,景山东路东侧的三眼井胡同,曾是老北京“围井而居”生活记忆的鲜活载体。这里不仅保留着四合院灰砖叠砌的建筑遗存,更承载着“甜水井”滋养下的胡同文化脉络。朱小地工作室以“一砖一瓦”入口装置、“井JING”和”胡同美术馆”三个空间为载体,通过建筑与艺术语言延续历史记忆,使当代人得以真切触摸老城的人文温度与传统智慧。

▽位于三眼井胡同入口西的“一砖”© 张哲鹏

vsszan204316300840411.jpg
vsszan204316300840412.jpg


设计理念:以空间流动串联时间记忆
项目以“井”文化为核心,采用“微介入+功能补位”策略,在保留胡同肌理的同时巧妙植入新功能,再现“围井取水、共享邻里”的生活场景。通过注入市井烟火气与公益情怀,使百年胡同在延续邻里记忆的同时,焕发新的生命力。

▽“一瓦”©朱小地

vsszan204316300840413.jpg


以“流动”为空间线索,通过建筑体量、装置形态与光影变化的互动,营造“记忆可感知、时光可对话”的空间意象。从“一砖一瓦”的入口序曲,到“井 JING”室内外空间的柔和渗透,再到“胡同美术馆”的线性延展,形成连贯而富有节奏的建筑体验序列。将老北京“串胡同、进院落”的传统生活场景,转化为现代人“可进入、可停留、可记忆”的当代场所。

▽“一瓦”©张哲鹏

vsszan204316300840414.jpg


设计策略:艺术视角下的记忆唤醒
“一砖一瓦”:建筑原型的当代表达
“一砖一瓦” 以三眼井胡同西口景观整治与形象提升为切入点,以公共艺术为城市更新植入载体,从胡同与四合院肌理中提炼 “砖”、“瓦” 这两个承载老北京记忆的原型。北侧“一砖”的灵感源于传统灰砖墙的砌筑逻辑。设计将其抽象为金属花格结构,巧妙地遮挡了街角的变压器。花格间嵌入已入驻胡同的商家标识,使装置既成为一面灵活的导示墙,不仅在虚实变化间创造出动态的视觉效果,同时成为胡同入口的建筑记忆锚点。

▽室内吧台色彩流动韵律©史云峰

vsszan204316300840415.jpg

▽室内吧台一角©史云峰

vsszan204316300840416.jpg

▽南侧靠窗卡座©史云峰

vsszan204316300840417.jpg


南侧的“一瓦”同样以巧思取胜,朱小地工作室将废旧混凝土管道依据老北京筒瓦屋面的做法进行拼接,表面饰以彩色瓷片,呼应传统琉璃瓦的绚烂色彩。这些管道错落堆叠,形成可供休憩与嬉戏的趣味设施。孩童穿梭其间,重现“上房揭瓦”的活泼场景,人们倚坐片刻,亦成为胡同画面中自然的一景。即便在南侧建筑的阴影里,瓷片也能折射出明快的光,让沉寂的巷口重获活力。

▽从庭院看向井JING©史云峰

vsszan204316300840418.jpg


井JING:传统风貌融入艺术格调
胡同转角的“井JING”空间,其命名则是对“井”文化最细腻的诠释。室内北侧吧台用深色哑光石材与银色波浪金属框架,在柔和灯光映照下,墙面与地面浮现光影肌理,恰似井水中泛起的涟漪,轻轻搅动时光。

▽从庭院看向井JING©史云峰

vsszan204316300840419.jpg


南侧0.8米高的悬浮窗台搭配可调节折窗,构成灵动的柔性界面。大幅玻璃窗将自然光均匀引入,巧妙框取胡同的灰墙、绿蔓与行人身影,交织成一幅随时间流动的生动画卷。室内外边界在光影渗透中逐渐消融,空间与胡同日常浑然一体。

▽井JING南立面©张哲鹏

vsszan2043163008404110.jpg


夜幕降临时,敞开的折窗连通内外。庭院夜色与绿植光影漫入室内,靠窗设置的木质卡座以温润质感承接这份自然的馈赠。人们安坐其中,既可感受木材的细腻纹理,又能沉浸于庭院夜色,体验“嵌入院落”的独特意境,诠释“人在室中坐,景自院中来”的空间诗意。

▽垂落的半透艺术卷帘©棉布

vsszan2043163008404111.jpg


悬挂的半透艺术卷帘是空间的灵动之笔。它采用杜邦纸与亚麻纤维混纺材质,轻盈透气,帘面印有朱小地的油画作品,随风轻漾间,色彩随光影晕染,将四季晨昏的景致叠加在一起。卷帘降下时是 “虚实交错的艺术场”,同时为来此消费的人们提供半私密的围和环境。卷帘升起时则释放垂直空间,让各个局部区域瞬间顺畅衔接,形成完整的空间。卷帘升降之时,恰似“井中提水”的生动意象,不仅柔化了建筑的刚性边界,更让艺术成为连接情感的纽带。

▽原木梁穿插在空间轴线中©张哲鹏

vsszan2043163008404112.jpg


屋顶的木构屋架虽然经过打磨翻新,但龟裂纹理依然昭示着胡同文化的底色。这份来自时空的厚重感,与半透卷帘和水墨画作的轻盈交织,仿佛历史重新走进了现实。吊顶区域的黑色镜面不锈钢与灯光配合,营造出宛如置身水下的戏剧性空间体验。

▽顶部黑色镜面映射内部环境©张哲鹏

vsszan2043163008404113.jpg


悬挂的朱小地实验水墨作品,是“井JING”空间内外的点睛之笔。墨色晕染间,老北京的屋檐轮廓与生活温情悄然流动,柔和了建筑与胡同的边界。这些作品如同自胡同肌理中生长而出的“新骨”,既带老墙温度,亦含当代宁静。水墨意境与空间的“日咖夜酒”日常、公益艺术活动相融,最终让“井JING”成为一处安顿情绪、品评生活滋味的精神家园。

▽室内悬挂的朱小地水墨作品©朱小地

vsszan2043163008404114.jpg


胡同美术馆:艺术空间引领社区共生
穿过“一砖一瓦”与“井JING”,便步入名为“胡同美术馆”的开放艺术空间。设计通过拆除违建释放出6-7米宽的公共区域,既保留了胡同原有的亲切尺度,又赋予其广场般的开阔气场。地面采用特制混凝土,维持粗砺自然的质感,管道井与线性排水沟坦率暴露,实用功能与老城质朴美学融为一体。

▽胡同美术馆山墙©张哲鹏

vsszan2043163008404115.jpg

▽胡同美术馆©张哲鹏

vsszan2043163008404116.jpg


两侧流动式花架构成空间的核心元素。弧形穿孔板设计不仅增强视觉通透感,更便于雨水快速渗透。阳光透过孔隙在地面洒下斑驳光影,藤蔓沿结构攀爬生长,随四季更迭为空间注入自然生机。

▽胡同美术馆©张哲鹏

vsszan2043163008404117.jpg


花架形成的半圆座椅复刻“沿井而坐”的传统休憩场景,成为促进社区邻里交往的催化剂。居民在此闲话家常,游客驻足拍照,不同人群在此自然相遇、交融。这一场景既还原了老北京胡同的生活记忆,也书写着新的老城故事。

▽胡同美术馆半圆座椅©张哲鹏

vsszan2043163008404118.jpg


艺术装置“月亮门”
位于“井 JING”与胡同美术馆之间,朱小地创作的“月亮门”以两扇交错而立的半月形镜面不锈钢构成,构建出一个轻盈而具有凝聚力的视觉焦点。这一装置既界定空间,又连接场所,成为艺术与记忆的交汇点。

▽艺术装置“月亮门”在院子整体面貌©张哲鹏

vsszan2043163008404119.jpg


设计以现代不锈钢材质,重构传统月亮门的形意。内侧镜面映照老墙斑驳,镌刻时光印记;外侧镜面反射人流穿梭,定格当下场景。新旧影像于此交织成一场无声对话,让胡同的历史与当代浑然相融。

▽艺术装置“月亮门”©张哲鹏

vsszan2043163008404120.jpg


“月亮门”不仅是一处视觉标志,更激发人与空间的互动。人们步入镜面之间,身影与历史光影重叠,仿佛完成一场与老城的轻声对话。未来这里也将融入书画展、非遗市集等活动,使艺术成为日常体验的一部分,持续激活胡同的公共生命力。

▽胡同休憩一角©朱小地

vsszan2043163008404121.jpg


如今的三眼井胡同,已不再是一条寻常巷陌,而是化身为一座没有围墙的生活剧场、一个持续生长的文化样本。它悄然印证着,真正的更新不在于覆盖过去,而是让记忆自然流淌进今天的生活。在这里,历史文脉与当代价值彼此滋养,胡同不再是凝固的砖石,而是持续激发热情、容纳故事的生命现场。

▽施工照片©朱小地工作室

vsszan2043163008404122.jpg
vsszan2043163008404123.jpg

▽总平面图©朱小地工作室

vsszan2043163008404124.jpg

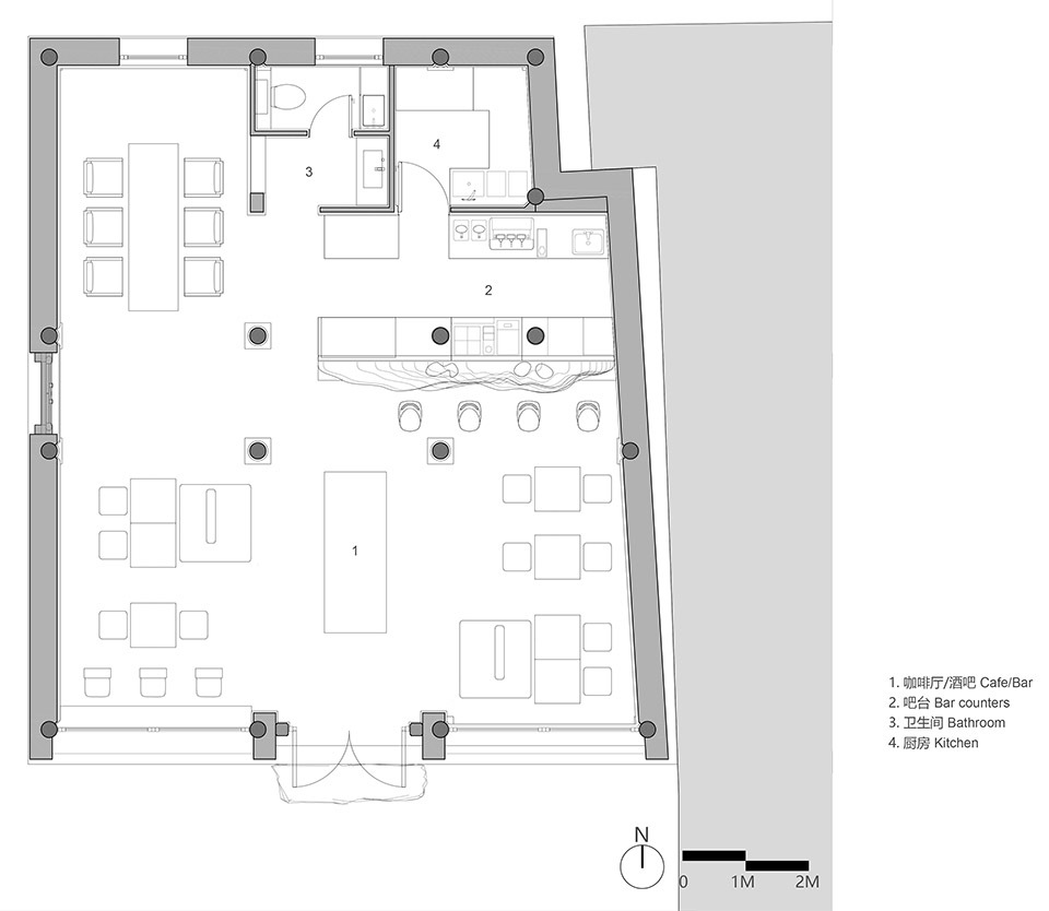
▽平面图©朱小地工作室

vsszan2043163008404125.jpg

▽剖面©朱小地工作室

vsszan2043163008404126.jpg
vsszan2043163008404127.jpg
vsszan2043163008404128.jpg
vsszan2043163008404129.jpg
vsszan2043163008404130.jpg
vsszan2043163008404131.jpg
vsszan2043163008404132.jpg
vsszan2043163008404133.jpg
vsszan2043163008404134.jpg
vsszan2043163008404135.jpg
vsszan2043163008404136.jpg


项目名称:井JING与胡同美术馆
项目地点:北京市东城区三眼井胡同68号
项目面积:井 JING 114㎡,胡同美术馆864㎡
项目业主:北京首开东成城市更新建设运管有限公司
设计内容:建筑改造及室内设计,景观、装置、标识设计
设计团队:朱小地工作室
主持建筑师:朱小地
机电配合:墨臣建筑设计有限公司
装饰混凝土技术顾问:北京中景橙石科技股份有限公司
照明设计顾问:北京光湖普瑞照明设计有限公司
设计时间:2024.11-2025.08
竣工时间:2025.08

AI文本分析中……
AI色彩命名中……

序赞Ai时刻等待着你的命令!~

与Ai对话形式持续执行相关Ai智能体任务。

95qabc2025-9-30 19:36:54
谢谢分享!!!谢谢分享!
您需要登录后才可以回帖 登录 | 注册序赞号

快速回复 返回顶部 返回列表