古蔺茅溪酱酒九坝 | 同济大学建筑设计研究院 | 2024 | 中国四川


1.应势而起,赤水河畔寻酱香
1.1.地利:“美酒河”与中国白酒的邂逅
赤水河——酱酒的母亲河。在海拔400-600米处,距河5公里以内的河谷地带,茅溪镇与茅台镇隔河相望,坐拥酿酒的天成宝地。这里山峦围合,地势低洼,造就了“湿闷”的微气候,是微生物生长繁殖的温床。优质的水源流经喀斯特地貌,携矿物质滋养酵母,再配以紫色钙质土窖池和沿袭千百年的自然节律——“端午制曲,重阳下沙”,孕育了这不可复制的酱酒之源。

▽园区东侧整体鸟瞰©张阳

vsszan204317301045291.jpg


1.2.天时:文化、产业、环境的三元汇聚
依托这片优质的水土,我们顺应“文旅+产业”融合的时代浪潮,实现从“酿造之地”到“心灵目的地”的跃升,以沉浸式路径与叙事性空间,将文化、产业、环境深度融合。一期规划酿酒生产、文化展示、窖藏及接待服务等建筑,旨在打造一座融合高端酱酒生产、酒文化沉浸体验与生态漫游的特色产业综合体。

▽文化、产业、环境的三元汇聚图©TJAD

vsszan204317301045292.jpg

▽沿赤水河整体鸟瞰©张阳

vsszan204317301045293.jpg


1.3.人和:对场地的哲思
聚焦项目基地,它既是白酒黄金产区,更是国家级生态保护重点范围。山地巨大的高差、脆弱的生态底线、遗留的古老窖池与苛刻的建设条件,皆成为我们须郑重回应的课题。如何在规划中重织场地秩序,实现天人共鸣的建造境界,正是我们设计的核心追寻。

▽项目一期建设范围及概况©TJAD

vsszan204317301045294.jpg

▽赤水河对岸整体鸟瞰©张阳

vsszan204317301045295.jpg


2.自然营造,时空之旅叙古今
2.1.“一座绿水青山的生态公园”
顺地势·化形隐迹:我们尊重场地肌理,顺势布局,使建筑在自然中生长。在梳理场地等高线的基础上,借土方平衡策略营造多层台地,建筑沿山势面向赤水河舒展,宛若玉带轻轻系于山水之间。

▽整体航拍总图©张阳

vsszan204317301045296.jpg


融自然·无界共生:我们注重建筑与自然的融合。在游走的路径中,地形高差为建筑提供了多级平台,不同标高的连廊、屋顶皆成为观景驻足点,实现人与山水无界对话的诗意场景。

▽航拍局部总图©张阳

vsszan204317301045297.jpg


2.2.“一场穿梭古今的时空之旅”
循历史·再续古今:我们保留场地基因,重组空间秩序,构建从赤水河岸向山体延伸的时间轴线。规划特意保留老窖池,复建原场地明末清初与清末民初古酒作坊作为生产空间;文化展示的地景建筑结合地形连接80年代生产车间,高处则矗立着颇具现代雕塑感的接待中心与藏酒库。游览路径沿明代、清代、近代至现代的时间脉络展开,自赤水河岸开始拾级而上,形成沉浸式的历史体验序列。

▽80年代生产车间室外景观阶梯©张阳

vsszan204317301045298.jpg


2.3.“一座酱酒文化的活态博物馆”
“12987”·有无相生:我们融合有形的酿造空间与无形的匠人技艺,让传统的静态陈列成为活态循环。这里绝非传统意义上的参观目的地,而是通过感知“有形”之景,体验“无形”之境,领悟背后蕴藏的中国智慧。它将中国哲学思想具身于生产生活,成为一处可亲历、可感知、可共鸣的文化场域。

▽场地剖面及80年代生产车间、地景展厅剖面©TJAD

vsszan204317301045299.jpg

▽80年代生产车间室外景观阶梯©张阳

vsszan2043173010452910.jpg


3.沉浸体验,匠造空间览技艺
中国酿酒工匠对于酿酒品质孜孜不倦的追求,对于工艺的精益求精,项目建筑群的建构、材质、光影无不体现出对这种匠人精神的传承和致敬。

▽80年代生产车间半室外公共空间©张阳

vsszan2043173010452911.jpg

▽80年代生产车间架空参观走廊©张阳

vsszan2043173010452912.jpg


3.1.砖木史诗:明末清初、清末民初古作坊
游览的起始段是复建的古作坊。作坊融入川南民居形制,复原木构架形态,将游客的感知牵引至明清酿酒场景。区别于传统做法,为更好地还原历史酿造场景,受力构件采用钢结构外覆防火防腐饰面保障风貌的同时以满足现代消防安全。

▽正面整体鸟瞰看三个时代的生产车间©张阳

vsszan2043173010452913.jpg

▽生产车间坡屋顶©张阳

vsszan2043173010452914.jpg


清代茅溪频现徽商酒贸,场地遗存风韵。清末民初作坊引入徽派建筑语汇,复原马头墙与门头形制,成为游览线上一处标志性的入口记忆。室内空间沿用手工青砖与木构材料,复原场景,仿佛时光在此凝滞、酒香依旧缭绕。

▽清末民初古作坊徽派门头©张阳

vsszan2043173010452915.jpg

▽清末民初古作坊室内照片©张阳

vsszan2043173010452916.jpg


3.2.酒仙楼阁:80年代生产车间
三座80年代生产车间静立于古作坊群之上,成为游览序列的高潮,集酿酒生产、游览参观、展厅库藏和管理办公于一体。建筑汲取西南山地聚落之形,连绵起伏的屋顶轮廓呼应地域特征和酒坊意象,也为车间带来良好的通风。立面通过木构架与窗洞的韵律组合,形成富有节奏感的立面表情。光影流转间宛如一场酒曲发酵的无声交响。

▽80年代生产车间室外照片©张阳

vsszan2043173010452917.jpg


室内意象取自藏酒洞,转折处倒角处理柔化了连续构件带来的生硬感,是匠人对酿酒时间流淌的自然哲思。平滑的曲线形体在光影韵律中将人与窖池共同包裹于山体,天窗与侧窗精准引入自然光线,在湿润的环境中向匠人投射出一道道光束,此刻,天、地、人、酒融为一体,成为游览过程中极具仪式感的体验节点。

▽80年代生产车间室内照片©张阳

vsszan2043173010452918.jpg
vsszan2043173010452919.jpg


“生产即展示”——活态展示传统手工酿造工艺,打造中国酱香白酒首条“可视化的活态酿酒历史长廊”。完整见证从投料、制曲、发酵到蒸馏的全程工艺,感受温度、湿度、微生物环境的微妙变化,体验“活态酱酒博物馆”独特魅力,打造独一无二的空间体验。

▽80年代生产车间室内光影©张阳

vsszan2043173010452920.jpg

▽80年代生产车间室内构件倒角处理©张阳

vsszan2043173010452921.jpg


屋顶洒落的自然光与井然排列的结构构架交织出庄重而富有韵律的光影场景,引导人们展开一场与时空的对话。

▽80年代生产车间室内构件倒角处理©张阳

vsszan2043173010452922.jpg

▽80年代生产车间内天、地、人、酒合一之境©张阳

vsszan2043173010452923.jpg


3.3.时空纽带:地景展厅
地景建筑连接古作坊与上世纪80年代车间,连接上下约18米的场地高差,涵盖文化展览、休憩交流等功能,是游览途中的文化驿站。建筑以清水混凝土为语汇,质感轻盈而肃穆,顺应台地起伏,悄然融于自然肌理。三片折形屋面依山叠升,屋面嵌入步道与阶梯,既引导游人上行,也可驻足观景,实现人与山水的诗意交织。

▽地景建筑室外架空连廊下照片©张阳

vsszan2043173010452924.jpg

▽地景建筑内螺旋楼梯©张阳

vsszan2043173010452925.jpg


室内延续清混凝土基调,空间简约而专注。大阶梯、螺旋楼梯与通高中庭交织出丰富的视觉对话,在“看”与“被看”之间,强化了观展的沉浸体验。

▽地景建筑室内公共空间©张阳

vsszan2043173010452926.jpg

▽地景建筑室内展示厅大阶梯©张阳

vsszan2043173010452927.jpg

▽地景建筑室外露台©张阳

vsszan2043173010452928.jpg
vsszan2043173010452929.jpg


3.4.时间银行:山间配套建筑群
位于山腰上的接待厅与藏酒库,作为整个游览序列的终点与至高点,是面向未来的“时间容器”。

▽接待中心与藏酒库©张阳

vsszan2043173010452930.jpg


“洞藏山间月”——接待厅圆形的视窗犹如山间初升的月轮,成为场地中具有雕塑感的视觉焦点。人们于此凭栏远眺,众山渐次入怀,情感也随之升华,抵达一方开阔之境。

▽接待中心室外平台©张阳

vsszan2043173010452931.jpg

▽接待中心室外平台©张阳

vsszan2043173010452932.jpg


4.结语
我们打造的,不仅是一个生产车间或旅游景点,而是超越传统工业建筑限制的沉浸式体验的产业综合体,也是新时期面向未来的充满东方哲思的酱酒文化活载体。

▽夜景整体鸟瞰©张阳

vsszan2043173010452933.jpg

▽80年代生产车间入口空间©张阳

vsszan2043173010452934.jpg

▽80年代生产车间室立面窗与构架©张阳

vsszan2043173010452935.jpg

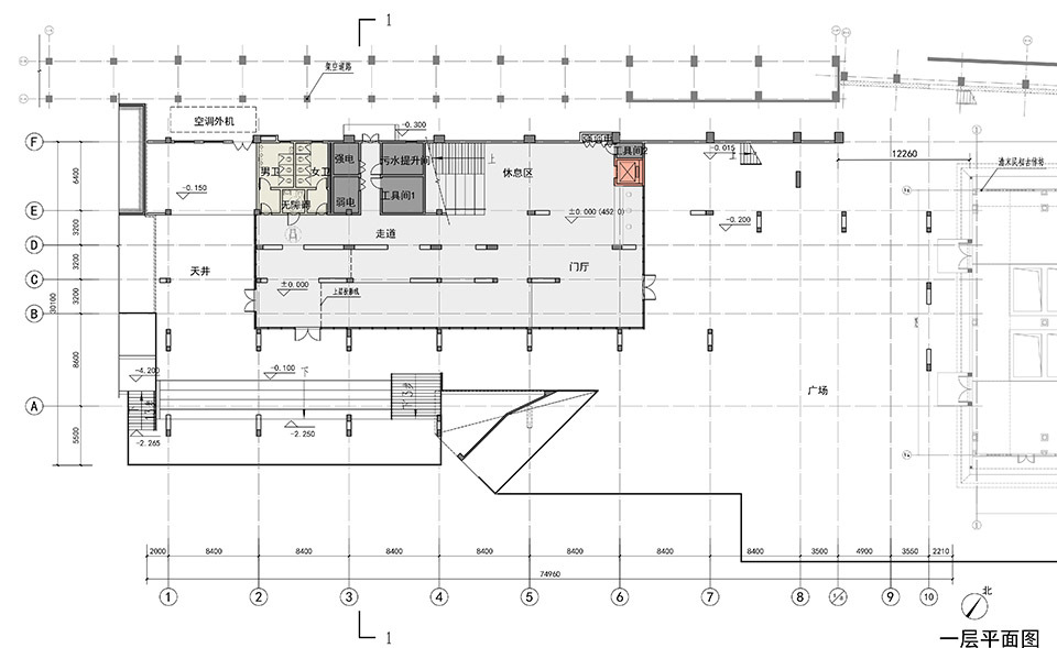
▽80年代生产车间一层平面图©TJAD

vsszan2043173010452936.jpg

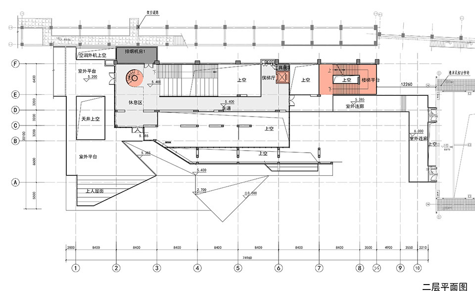
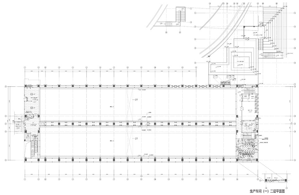
▽80年代生产车间二层平面图©TJAD

vsszan2043173010452937.jpg

▽80年代生产车间三层平面图©TJAD

vsszan2043173010452938.jpg

▽80年代生产车间屋顶平面图©TJAD

vsszan2043173010452939.jpg

▽80年代生产车间一东立面©TJAD

vsszan2043173010452940.jpg

▽80年代生产车间一南立面©TJAD

vsszan2043173010452941.jpg

▽80年代生产车间一西立面©TJAD

vsszan2043173010452942.jpg

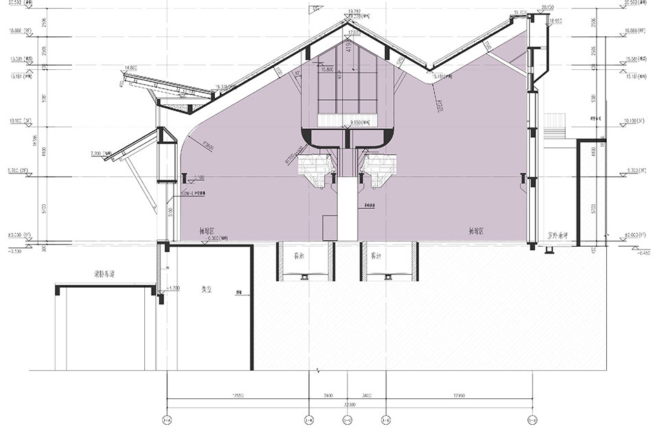
▽80年代生产车间一剖面©TJAD

vsszan2043173010452943.jpg

▽藏酒库平面图©TJAD

vsszan2043173010452944.jpg

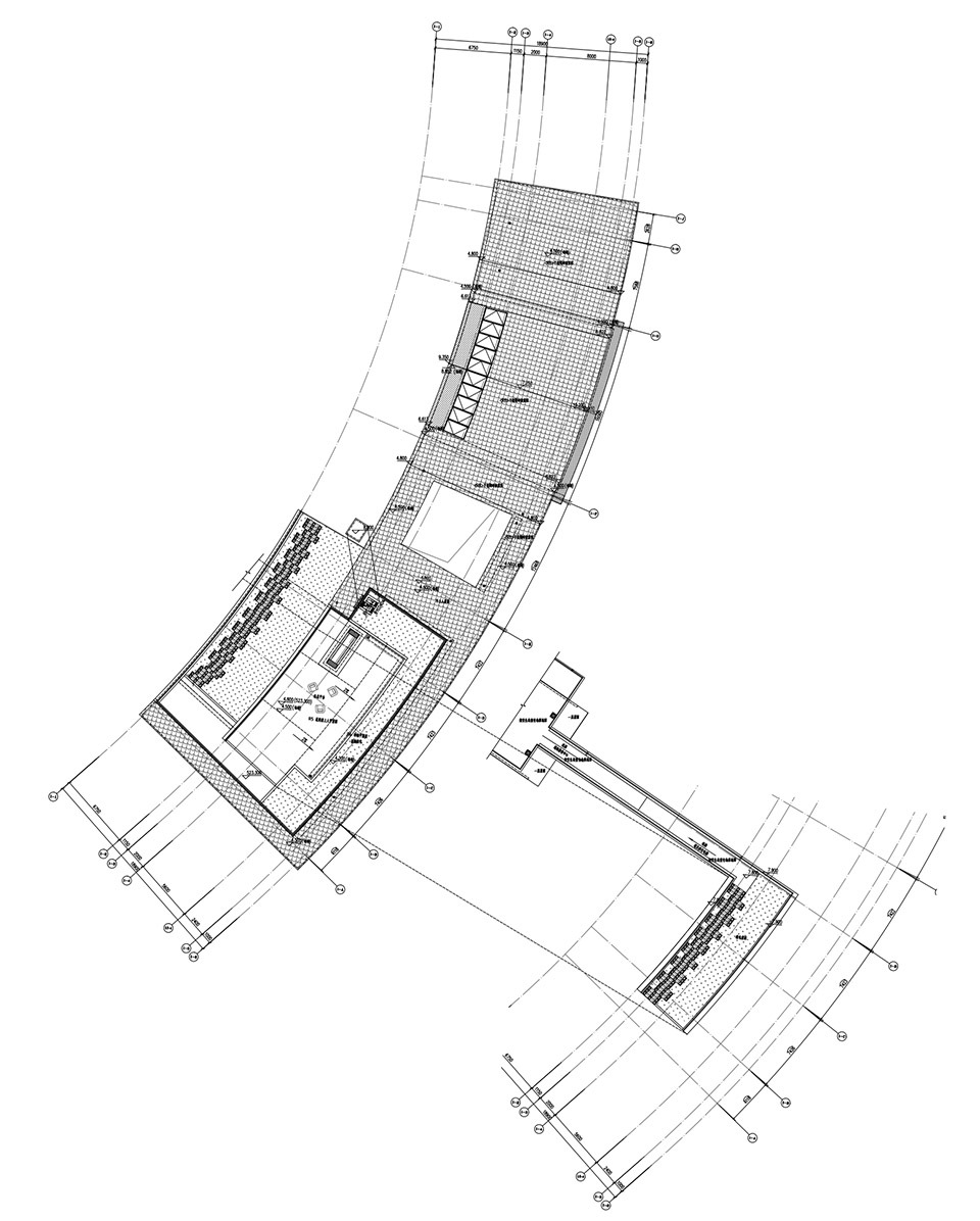
▽地景建筑一层平面图©TJAD

vsszan2043173010452945.jpg

▽地景建筑二层平面图©TJAD

vsszan2043173010452946.jpg

▽地景建筑三层平面图©TJAD

vsszan2043173010452947.jpg

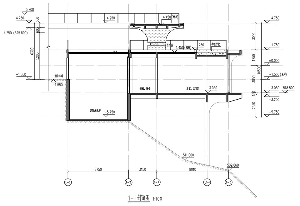
▽地景建筑剖面图©TJAD

vsszan2043173010452948.jpg

▽接待中心一层平面图©TJAD

vsszan2043173010452949.jpg

▽接待中心二层平面图©TJAD

vsszan2043173010452950.jpg

▽接待中心剖面图©TJAD

vsszan2043173010452951.jpg
vsszan2043173010452952.jpg

▽明末清初古作坊一层平面图©TJAD

vsszan2043173010452953.jpg

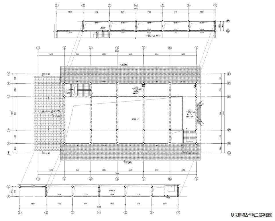
▽明末清初古作坊二层平面图©TJAD

vsszan2043173010452954.jpg

▽明末清初古作坊东立面©TJAD

vsszan2043173010452955.jpg

▽明末清初古作坊南立面©TJAD

vsszan2043173010452956.jpg

▽明末清初古作坊剖面©TJAD

vsszan2043173010452957.jpg

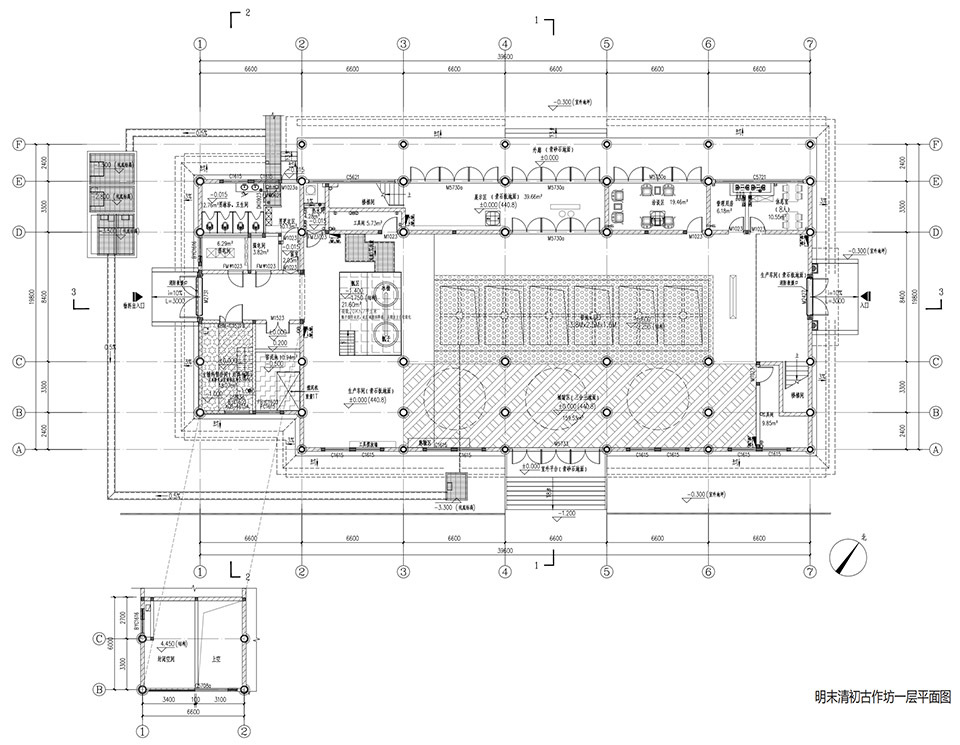
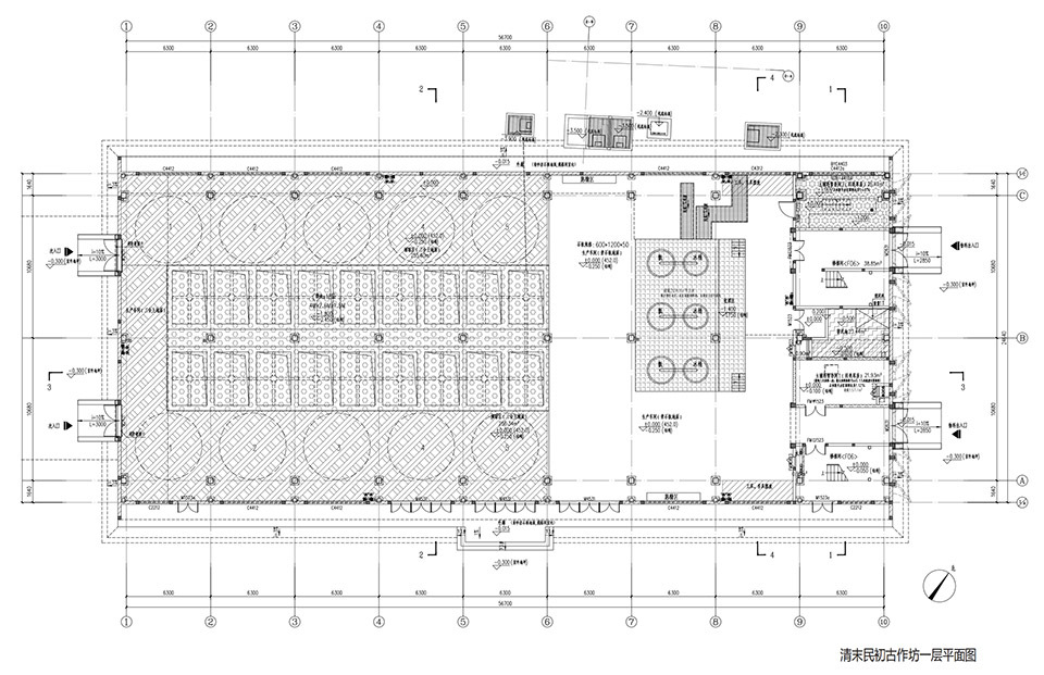
▽清末民初古作坊一层平面图©TJAD

vsszan2043173010452958.jpg

▽清末民初古作坊二层平面图©TJAD

vsszan2043173010452959.jpg

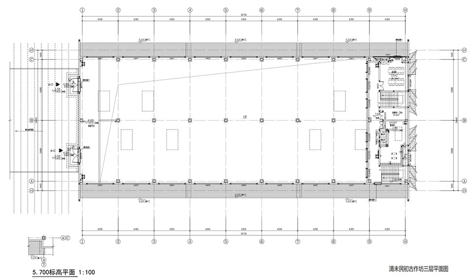
▽清末民初古作坊三层平面图©TJAD

vsszan2043173010452960.jpg

▽清末民初古作坊东立面©TJAD

vsszan2043173010452961.jpg

▽清末民初古作坊南立面©TJAD

vsszan2043173010452962.jpg

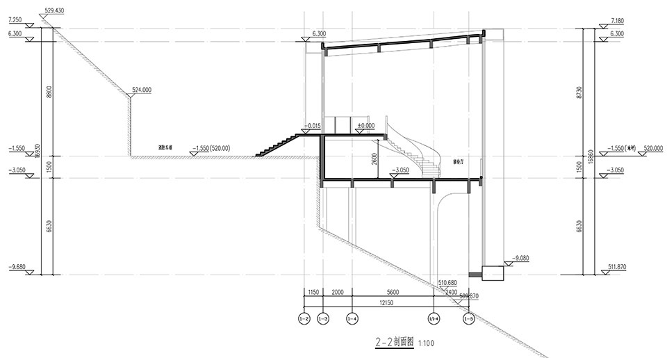
▽清末民初古作坊剖面图©TJAD

vsszan2043173010452963.jpg
vsszan2043173010452964.jpg
vsszan2043173010452965.jpg
vsszan2043173010452966.jpg
vsszan2043173010452967.jpg
vsszan2043173010452968.jpg
vsszan2043173010452969.jpg
vsszan2043173010452970.jpg
vsszan2043173010452971.jpg
vsszan2043173010452972.jpg
vsszan2043173010452973.jpg


项目名称:古蔺茅溪酱酒九坝项目配套生态文旅基地(一期)项目
项目类型:工业建筑
设计方:同济大学建筑设计研究院(集团)有限公司
公司网站:http://www.tjad.cn/
联系邮箱:tjcdfy@163.com
项目设计:2023年
完成年份:2024年
设计团队:建筑专业:江立敏 谭劲松 戴雨航 鲁蠡 陈奕 王玫 彭一伟 张翔 傅哲远 熊濯之 叶磊 宋扬 洪亚丽 王科 陈晓 陈丽瑶 甘智超 汪天琦 舒世豪 李安洪 冯翠兰 李怡静
结构专业:王宁 高健 代崇民 苏义庭 冷艳琳 康浩 谢明光 宋天戈
给排水专业:游博林 李丽萍 陶林勇 竹斌耀
暖通专业:王钰 李静 陈开源 步应辉
强弱电专业:安世超 邱凌 宋海军 陈磊 王磊 李滟雯 张艺泽 马林
景观专业:何强 王玫 范先庭 周轶 庄国伟 赵化 李雅婷
幕墙专业:金颖,田利军,李峰,张磊
室内专业:陈宇 卞微 郭岩
道路专业:刘丽芳 王昶 吴永海 吴涛
项目地址:泸州市古蔺县茅溪镇
建筑面积:21903.52㎡
摄影版权:张阳
合作方:古建筑:成都云和古建筑工程设计咨询有限公司 边坡支护:贵阳建筑勘察设计有限公司 工艺设计:四川省商业建筑设计院有限公司
客户:四川建兴园区运营管理有限公司
材料:青砖、石材、木材、铝板、混凝土、玻璃幕墙

AI文本分析中……
AI色彩命名中……

序赞Ai时刻等待着你的命令!~

与Ai对话形式持续执行相关Ai智能体任务。

95qabc2025-9-30 19:17:37
谢谢分享!!!谢谢分享!
您需要登录后才可以回帖 登录 | 注册序赞号

快速回复 返回顶部 返回列表