Hābico 健身馆 | FMA | 2025 | 墨西哥

在当下健康被视为首要课题的时代,Hābico作为一个专注于身心健康的场所应运而生。这个空间经过精心营造,旨在提供一个融合运动、静谧与功能性的庇护所。它坐落于墨西哥米却肯州莫雷利亚的一条街道上,该街道经过城市更新,中央隔离带被改造成线性公园。Hābico融入这一倡导社区与健康的环境中,将曾经与夜生活和治安隐患相关的区域,转变为运动与家庭生活的场所,充分体现了项目的核心价值。
▽项目概览© César Belio

vsszan204361041117571.jpg
vsszan204361041117572.jpg

▽视觉与功能元素巧妙结合© César Belio

vsszan204361041117573.jpg

▽入口接待处© César Belio

vsszan204361041117574.jpg


自项目之初,设计团队便以极高的精细度展开规划,并与平面设计工作室紧密合作,进一步丰富了整体构想。从零开始建立的概念,将视觉与功能元素巧妙结合,凸显出 Hābico独一无二的身份。量身定制的标识系统与家具不仅满足实用需求,更与建筑浑然一体,营造出视觉与空间上的和谐氛围,从而显著提升了使用者的体验感。

▽轴测图© FMA

vsszan204361041117575.jpg


vsszan204361041117576.jpg

▽更衣室入口© César Belio

vsszan204361041117577.jpg

▽更衣室内部© César Belio

vsszan204361041117578.jpg


Hābico的团队深信,真正为健康而设计的核心,并非夸张的形式或繁复的装饰,而是营造一种能够唤起宁静与安定的和谐氛围。为此,他们运用有机的形态、天然的材料与大地色调,塑造出一个既赏心悦目,又能安抚心灵的空间。曲线如同绵延的流动,象征着人体在运动中的活力与能量,打破了传统直线的束缚,传递出连续与平衡的意象。这种建筑语言引导人们在温暖而亲和的环境中,与外界短暂隔离,重新与自我建立联系。柔和的色彩、细腻的材质,以及强调有机形态的灯光,共同放大了整体的舒适与安宁感。

▽食品区© César Belio

vsszan204361041117579.jpg

▽健身空间© César Belio

vsszan2043610411175710.jpg
vsszan2043610411175711.jpg


Hābico不仅仅是一个训练的场所;它更像是一方庇护之地,通过运动与音乐实现身体与心灵的共同转化,创造出一种超越身体层面的整体体验。在这个节奏日益加快的世界中,它为渴望健康、平衡与焕新体验的人们,提供了一个理想的归属。

▽侧墙© César Belio

vsszan2043610411175712.jpg

▽细节© César Belio

vsszan2043610411175713.jpg
vsszan2043610411175714.jpg

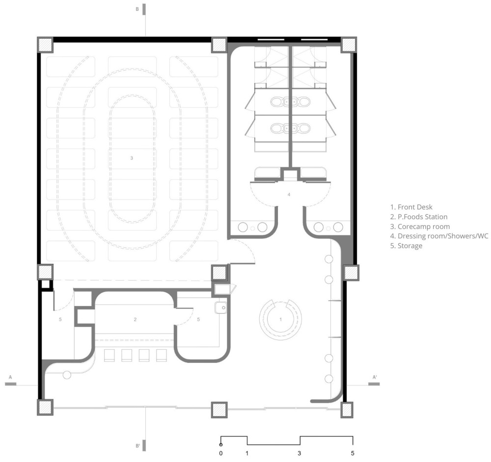
▽平面图© FMA

vsszan2043610411175715.jpg

▽剖面图© FMA

vsszan2043610411175716.jpg
vsszan2043610411175717.jpg
vsszan2043610411175718.jpg


Technical sheet
Project name: Hābico

Office: FMA.

Architect in charge: Francisco Méndez

Gross floor area: 165 m2

Year of completion: 2025

Location: Morelia, Mexico.

AI文本分析中……
AI色彩命名中……

序赞Ai时刻等待着你的命令!~

与Ai对话形式持续执行相关Ai智能体任务。

95qabc2025-10-7 14:32:29

谢谢分享!!!谢谢分享!
您需要登录后才可以回帖 登录 | 注册序赞号

快速回复 返回顶部 返回列表