一抹绿意 自由的家 | 丹本设计 | 2025 | 中国浙江
vsszan204383090016531.png

"
家是色彩的画布,每一种色调都在描摹生活的模样。

以“色彩为笔,材质为墨,艺术为魂”,在极简主义的框架下,通过材质、色彩、艺术与自然的多维融合,打造出一个既充满视觉冲击力,又蕴含细腻情感的当代空间,重新定义了“家”的美学边界与艺术可能
vsszan204383090016532.png

01

AESTHETIC FIELD

美学场域

本案以“突破常规的视觉叙事”为核心设计理念,通过强烈的色彩碰撞、雕塑感的建筑构件与艺术化的软装装置,在极简的空间基底上构建出极具张力的当代美学场域。
vsszan204383090016533.png

那抹浓郁的绿色螺旋楼梯如空间的艺术雕塑,以流畅的曲线打破建筑的直角秩序,将功能性的交通空间转化为视觉焦点与艺术载体。

吊灯如悬浮的艺术装置,在极简基调中炸裂开热烈的视觉张力,让色彩不再是装饰,而是空间的“骨骼与灵魂”
vsszan204383090016534.png

vsszan204383090016535.png

大理石纹理的洗手台,凭借其独特的肌理与质感,为空间注入轻奢精致感。

柜门的壁纸与远处的绿色元素相呼应,在统一的色调中增添视觉层次与艺术趣味,使整个空间既符合实用需求,又充满独特的设计韵味,成为连接自然与现代生活的温馨角落。
vsszan204383090016536.png

vsszan204383090016537.png

夹层的休息空间以墨绿色沙发为视觉核心,其浓郁色彩与独特纹理,既彰显自然生机,又自带艺术张力
vsszan204383090016538.png

02

DINING ROOM

客餐厅

客厅以原木的温润与金属的冷冽形成材质张力,搭配浅灰布艺沙发的柔和质感,让空间在“硬与软”“暖与冷”的对比中,既保持极简风格的利落感,又传递出可触摸的生活温度。
vsszan204383090016539.png

vsszan2043830900165310.png

vsszan2043830900165311.png

燃烧的火焰为空间带来温暖的视觉与感官体验。艺术画作的点缀,为空间注入个性与创意。
vsszan2043830900165312.png
vsszan2043830900165313.png
vsszan2043830900165314.png

开放式布局让餐厨、起居空间自然串联,定制木柜的弧形设计柔化了空间边界,既实现了功能的高效整合,又营造出“流动的生活场景”。

从咖啡角的精致陈设到起居区的舒适布局,每一处功能设计都围绕“人的生活习惯”展开,让空间成为“服务于生活,又高于生活”的情感容器。
vsszan2043830900165315.png

vsszan2043830900165316.png

vsszan2043830900165317.png

厨房大理石中岛台凭借其独特的纹理与冷冽质感,成为空间的视觉核心,既满足实用功能,又为空间注入轻奢精致感。

墙面的特殊木质纹理装饰,与整体木质基调相呼应,增添了空间的艺术层次与自然韵味。蓝色线条吊灯与柜体把手等细节,为空间带来一抹灵动的色彩点缀
vsszan2043830900165318.png
vsszan2043830900165319.png
vsszan2043830900165320.png
vsszan2043830900165321.png

以简洁的浅色调墙面为背景,搭配造型独特的壁灯,通过光影的巧妙运用,为空间增添了层次感与温馨感。
vsszan2043830900165322.png

vsszan2043830900165323.png
03

THE BEDROOM

卧 室

儿童房以抽象线条壁纸为视觉基底,波普风格艺术画则以夸张的色彩和结构主义形式,形成视觉冲突与对话,让睡眠空间成为沉浸式艺术体验的延伸。
vsszan2043830900165324.png

vsszan2043830900165325.png

vsszan2043830900165326.png

主卧背景墙的弧形线条与壁灯结合,弱化硬朗的边界,营造柔和的休憩氛围。
vsszan2043830900165327.png

vsszan2043830900165328.png

墨绿色的电视支架与床背则成为点睛之笔——将自然中的生机绿意抽象为几何形态,既保留自然的治愈感,又赋予空间艺术张力。
vsszan2043830900165329.png

vsszan2043830900165330.png

vsszan2043830900165331.png

04
ANALYSIS DIAGRAM
分析图

vsszan2043830900165332.png
vsszan2043830900165333.png
vsszan2043830900165334.png
vsszan2043830900165335.png
vsszan2043830900165336.png

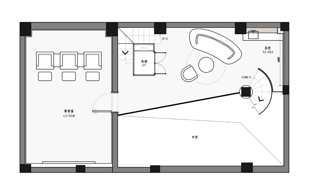
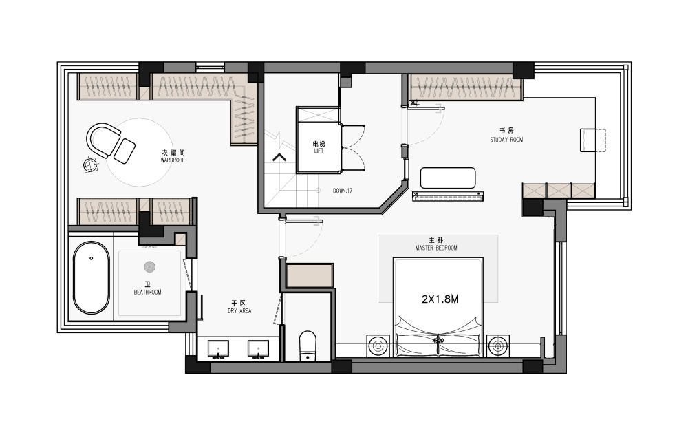
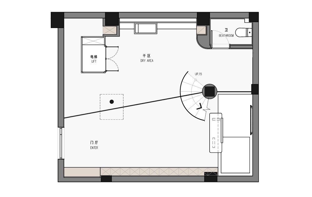
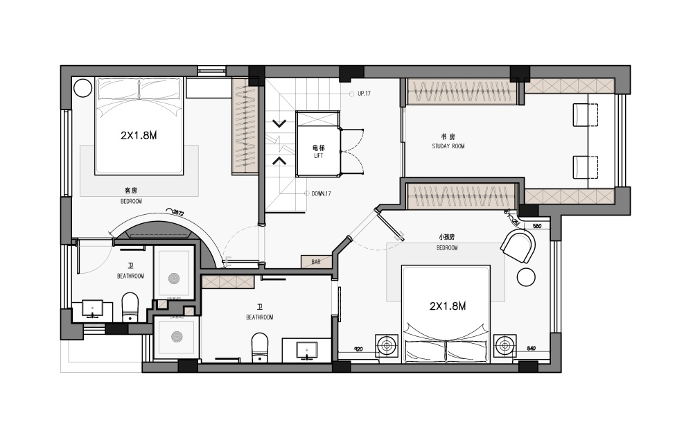
1F 2F 3F -1F -2F 平面图

  • 项目名称 - 玖溪花园
  • 设计机构 - 丹本空间设计
  • 设计主创 - 金丹
  • 设计团队 - 杨威 刘怡
  • 项目面积 - 320m²
  • 项目地址 - 浙江 安吉
  • 项目摄影 - ingallery摄影

DESIGNER
vsszan2043830900165337.png

金丹

丹本空间设计创始人 & 设计总监
vsszan2043830900165338.png

丹本空间设计成立于2013年,是一家以“重构空间的情感与美学边界”为核心理念的新锐设计事务所,深耕居住、商业空间设计领域,致力于在功能与艺术的平衡中,为每一个空间赋予独特的灵魂。

团队由兼具国际视野与本土洞察的设计师组成,擅长以材质的对话、色彩的叙事、艺术的渗透为设计语言,打破风格的刻板定义,从居住者的生活习惯、情感需求与审美偏好出发,打造“既具视觉冲击力,又充满人文温度”的定制化空间。

无论是充满艺术张力的个性居所,还是兼具商业价值与美学表达的公共场域,我们始终坚持“让设计服务于生活,让空间生长出故事”的创作逻辑,在每一个项目中探索设计的更多可能,为客户交付的不仅是一个空间解决方案,更是一种可感知、可共鸣的生活方式提案。

  • 转自:LJ看设计
  • 图片©LJ看设计
  • 编辑:序赞网
  • 阅读原文
AI文本分析中……
AI色彩命名中……

序赞Ai时刻等待着你的命令!~

与Ai对话形式持续执行相关Ai智能体任务。

95qabc2025-10-9 14:51:58
谢谢分享!!!谢谢分享!
您需要登录后才可以回帖 登录 | 注册序赞号

快速回复 返回顶部 返回列表