云南朵木杦庄 | 平时建筑设计 | 2025 | 中国云南


共享与共生
项目位于云南德钦县玉杰村,建筑师旨在通过此实践,尝试为中国藏区传统建筑演变为本土人文“酒庄”的方式与理念提供一种突破,并促使建造活动与建筑空间自然而然地产生一种地方性的社会价值。
▽项目鸟瞰© 王剑峰

vsszan204405091053141.jpg


场所位于海拔2720米的山顶,四周神山环绕,风景绝佳,但施工条件有限。设计以一栋历史藏宅为母体进行衍生、改造与修复。团队运用UE技术辅助方案研究,同时主创王剑峰驻守工地,融入生活,真实体验人与环境之间的依存关系,并利用当地熟悉的材料、工匠擅长的做法来构思与建造,而这种在地性的方式恰好为藏族村民提供了参与机遇和经济收入。从原场所格局中生长出来的新空间与老建筑共同构成了多维度的公共空间。

▽自主入口看新旧部分的重构© 王剑峰

vsszan204405091053142.jpg


面向大山,向外延伸的挑台以包容的方式,自然地成为酒庄与村社公民之间日常互动的共享平台,并转化为都市文化与藏地文化自觉交流的媒介;由牛圈改造成的下沉内院则自发地成为村民与游客共舞锅庄的小剧场;临崖而建的品酒室、空心砖墙、水面倒影与保留的老树在光和风的刻画下营造出诗意灵动的自然经堂;山上的鸟类开始在建筑的砖孔立面上做窝,逐渐将物质的立面养成生活的立面。建筑师希望整体酒庄真实地成为人与自然共生的叙事容器。

▽向外延伸面向大山的挑台© 王剑峰

vsszan204405091053143.jpg
vsszan204405091053144.jpg

▽牛圈改造而成的下沉内院兼锅庄舞小剧场© 王剑峰

vsszan204405091053145.jpg
vsszan204405091053146.jpg

▽临崖而建的苹果树院© 王剑峰

vsszan204405091053147.jpg

▽苹果树院细部© 王剑峰

vsszan204405091053148.jpg
vsszan204405091053149.jpg

▽品酒室外立面© 王剑峰

vsszan2044050910531410.jpg


墙的时间对话,传达空间的情绪
珍视老建筑所承载的往昔记忆,以润物细无声的方式,悄然融入新的痕迹。延展旧建筑“白”的特征,以白墙的语言和秩序来整合新旧之间的关系。通过新、旧墙体之间的交织对话,重塑空间的层次。被保留的老界面的残破感与新界面的纯粹性所构成的时间肌理,随着阳光的角度和节气的交替而不断变化,由此传递着空间的情绪。

▽新旧墙体之间的交织对话© 王剑峰

vsszan2044050910531411.jpg
vsszan2044050910531412.jpg

▽新旧墙体构成的肌理与对话© 王剑峰

vsszan2044050910531413.jpg
vsszan2044050910531414.jpg


总体上,新的部分包裹着老的藏房,重构一幅平静而克制的白色群像;而不同年代、不同类型的材质又赋予其丰富性和时间感。

▽院落层次与环境的关系© 王剑峰

vsszan2044050910531415.jpg
vsszan2044050910531416.jpg


日常材料转译文化信仰,自然要素重构经堂意向
完整地保留藏宅中与生活文脉密不可分的经堂与香炉,只对其进行修缮清理和灯光设计。同时,以当地最朴拙的空心砖块转译藏族的经墙形制,并贯穿于新旧建筑之间。

▽对原有经堂修缮处理和灯光设计© 王剑峰

vsszan2044050910531417.jpg

▽朴拙的空心砖块转译藏族经墙形制© 王剑峰

vsszan2044050910531418.jpg


“放空的经墙”把有形的经书化为无形。“空”反而蕴含了一切。穿透墙体的藏地光影与透过空洞所见的景象,本身就是一部活的经文;而光线的移动则赋予“经书”时间性与生命力。
在共享挑台的端头,将空心砖改为斜45°砌筑,则是对藏族吉祥图案“盘长”的建筑语言表达。

▽旧木棚改造的抽象的光影经书亭© 王剑峰

vsszan2044050910531419.jpg


嵌套在墙体中的日常旧锅器,则隐含着唐卡中坛城所代表的深邃寓意。最普通的日常材料使崇高的信仰得以被最贴近生活的语言来表达,反而使人文精神回归现实本真。

▽嵌套在墙体中的日常旧锅器© 王剑峰

vsszan2044050910531420.jpg


以旧物循环建构
在更新改造过程中,将老建筑中拆解下来的部分楼梯构建、门窗、地板、瓦片、原住民用过的灶具、农具、器具、家具等旧物材料进行身份转变,改变它们原本的功能,使其可持续地建构新建筑。集约造价的同时,也让往昔生活记忆的细节融入今天的空间场所。

▽老建筑底层粮仓改造的酒窖和工艺空间© 王剑峰

vsszan2044050910531421.jpg

▽空间细部© 王剑峰

vsszan2044050910531422.jpg


酒窖和工艺空间由老建筑底层的粮仓改造而成。老藏房的夯土墙特性与当地的气候特征,使工艺空间在不用设备的情况下能够保持稳定而适宜的酿造温度,这有效地减少了建筑能耗,保护了藏区珍贵的自然环境;同时,由保留的藏式土木体系所形成的宽敞空间,既是体现本土文化的酒窖,也是艺术化的策展空间。

▽品酒室内部细节© 王剑峰

vsszan2044050910531423.jpg

▽改造而成的客房空间© 王剑峰

vsszan2044050910531424.jpg

▽主入口处看酒庄夜景© 王剑峰

vsszan2044050910531425.jpg

▽从二层廊道看酒庄夜景© 王剑峰

vsszan2044050910531426.jpg

▽局部夜景© 王剑峰

vsszan2044050910531427.jpg

▽村民与游客共舞锅庄© 米亚

vsszan2044050910531428.jpg

▽总平面图© PL-T平时建筑设计事务所

vsszan2044050910531429.jpg

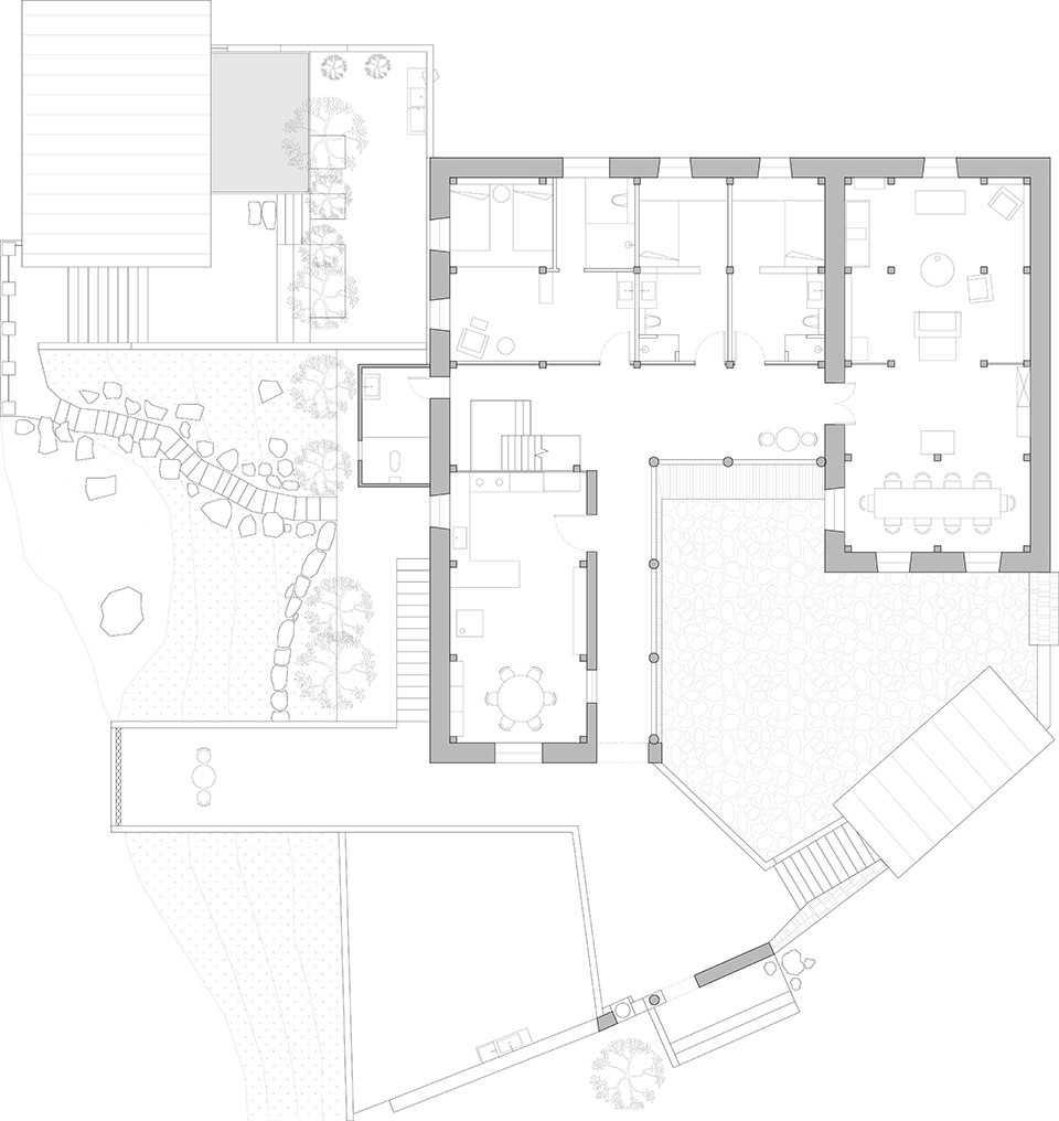
▽一层平面图© PL-T平时建筑设计事务所

vsszan2044050910531430.jpg

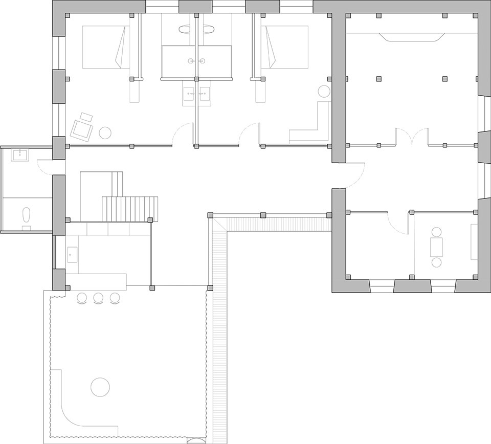
▽二层平面图© PL-T平时建筑设计事务所

vsszan2044050910531431.jpg

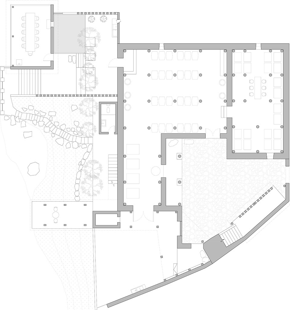
▽三层平面图© PL-T平时建筑设计事务所

vsszan2044050910531432.jpg

▽剖面图© PL-T平时建筑设计事务所

vsszan2044050910531433.jpg


项目名称:“自然经堂”, 循环建造 — 云南朵木杦庄
项目类型:改造(主要)/建筑
设计方:PL-T平时建筑设计事务所
公司网站:http://www.plt-arch.com
联系邮箱:pingshi@pl-time.com
项目设计:2024
完成年份:2025
设计团队:主持建筑师: 王剑峰.
主创设计团队:王剑峰,王婧,李飞.
UnrealEngine5引擎数字地编技术辅助设计团队:沃泰(VRTech)数字工作室.
项目地址:云南省德钦县玉杰村
建筑面积:970㎡
摄影版权:王剑峰,米亚
合作方: UnrealEngine5引擎数字地编技术团队:沃泰(VRTech)数字工作室 / 钢结构设计:凯鑫钢结构工程
客户:葡荷酒业(香格里拉)有限公司
材料:空心砖、木材、钢材、混凝土

AI文本分析中……
AI色彩命名中……

序赞Ai时刻等待着你的命令!~

与Ai对话形式持续执行相关Ai智能体任务。

闫金辉2025-10-9 13:02:45
感谢分享 真不错
95qabc2025-10-9 13:59:57

谢谢分享!!!谢谢分享!
您需要登录后才可以回帖 登录 | 注册序赞号

快速回复 返回顶部 返回列表