big bill宠物空间 | MOS木石设计 | 2025 | 中国陕西


01 项目背景
位于西安北池头的量子晨商业街区,前身是西安太阳锅巴厂,家喻户晓的太阳锅巴和阿香婆牛肉酱,是许多西安人儿时的味觉回忆。

▽项目概览© Kevin

vsszan204407091442371.jpg
vsszan204407091442372.jpg

▽红砖门头© Kevin

vsszan204407091442373.jpg


在城市产业升级和存量更新的背景下,量子晨在2020年完成厂区建筑改造,从初期以电竞、LIVE音乐潮牌阵地为主,到如今容纳多元商业业态,逐渐成为聚集Z时代的潮流街区。

▽室内看向街道© Kevin

vsszan204407091442374.jpg


BIG BILL是一个围绕人宠社交平台创立的全新品牌,首店选址在西安量子晨,品牌主理人委托MOS木石设计,希望通过线下空间链接城市养宠群体,解决群体的社交和休闲痛点,打造轻松、愉悦的城市人宠生活方式。

▽通过线下空间链接城市养宠群体© Kevin

vsszan204407091442375.jpg


02 场地条件
烟囱和水塔,是量子晨保留下来的太阳锅巴厂两个标志性元素,BIG BILL所在基地紧邻红砖烟囱,与水塔相距数十米,场地外围广场有一定角度的缓坡。

▽量子晨街区的两个标志性元素© 章鱼见筑摄影工作室

vsszan204407091442376.jpg


勘测场地后,我们发现项目所在场地主要存在两个问题:红砖烟囱虽然极具标识性,但与项目基地过近,产生逼仄、压迫感;原始场地呈三角形,又因其一侧的扶梯,形成一个有矩形缺口的三角形空间,这也是铺面长期被闲置的原因。

▽原始场地情况©MOS木石设计

vsszan204407091442377.jpg

▽店铺概览© Kevin



03 设计脉络
场地条件决定了空间整体的设计脉络,红砖烟囱带着特定的年代和场所记忆,我们希望在设计一个新空间的同时,能够保留这一份历史遗迹,并以平衡取舍的原则碰撞出全新的感受。

▽在室内看向红砖烟囱© Kevin

vsszan204407091442378.jpg


呼应红砖砌筑的烟囱,在外立面的设计上,选择陶土红砖拼装出门头,外延的地台则使用磨砂面红砖铺装,通过材质的协调,建筑空间与烟囱之间,消解了原本的割裂感和压迫感,产生“亲近”的链接。

▽方盒子© Kevin

vsszan204407091442379.jpg
vsszan2044070914423710.jpg


BIG BILLl打造的“人宠物社交平台”,对功能的诉求主要有三方面:休闲社交、宠物用品零售区和宠物沐浴SPA区。对三块功能区的规划,最大的挑战便是场地不规则形状带来的空间尺度、锐角的不适,以及转折的自然度。

▽体块置入后的分析图©MOS木石设计

vsszan2044070914423711.jpg

▽方盒子作为零售区© Kevin

vsszan2044070914423712.jpg


通过与量子晨街区物业的协商,允许设计团队对扶梯下方的区域加以使用。在拆除了原本扶梯下方的建筑玻璃幕墙后,扶梯下方增加的室外区域与室内构成了一个纵向空间场域,受到场地带来的启发,使我们萌生了在空间中置入一个方盒子的想法。

▽体块置入后的分析图©MOS木石设计

vsszan2044070914423713.jpg

▽方盒子内的货架© Kevin

vsszan2044070914423714.jpg


向外部延伸的方盒子能够起到三重作用:首先,增加空间使用面积,满足品牌对多业态的需求;其次,方盒子的置入,使原本不规则形状的场地划分为三个相对规整的区域,规避了锐角和转折的问题;第三,外延的方盒子朝向街区的一面,可成为品牌空间的另一个展示面。

▽盒子向室外延展的一面成为空间的“第二立面”© Kevin

vsszan2044070914423715.jpg
vsszan2044070914423716.jpg


04 三个体块
解决了设计之初的两个主要问题,三个功能区的划分便已十分清晰。连接主入口的区域,有着通透的玻璃幕墙,适宜将人宠社交、下午茶休闲时光放置在这里,释放室内场景,吸引过往路人。

▽社交休闲区© Kevin

vsszan2044070914423717.jpg
vsszan2044070914423718.jpg


建构的方盒子,有着四个立面、且立面的里侧和外侧均可使用,作为宠物零售区再合适不过,最里侧的区域则留给宠物洗护SPA。

▽分析图©MOS木石设计

vsszan2044070914423719.jpg

▽导台专为宠物制作鲜食© Kevin

vsszan2044070914423720.jpg
vsszan2044070914423721.jpg


我们在扶梯下的区域开辟了一条通道和入口,可直接通往这里,增加了洗护区的私密和独立性,避免了动线的干扰。此外,扶梯下方还开辟出泊狗处和宠物清洗池,这样一来,扶梯下的消极空间便成为一个公共、友爱且宣传品牌的窗口。

▽洗护区© Kevin

vsszan2044070914423722.jpg

▽通道可直达宠物洗护区© Kevin

vsszan2044070914423723.jpg


建构的方盒子,我们希望是轻巧且灵活多变的,材质以工字钢和木构为骨架,搭载透明PC波浪板,彩色的搁板则增添几分可爱俏皮。压低的顶面与下沉的地面共同作用,强化了盒子空间的体块和边界。

▽方盒子建构动态示意图©MOS木石设计

vsszan2044070914423724.gif

▽宠物饮水区© Kevin

vsszan2044070914423725.jpg


如此,轻巧的方盒子,既是实用需求使然,更成为空间重构的契机。三个不同的功能区,摒弃了传统隔墙的限定,转化为可自由定义的流动空间场域。

▽透明PC波浪板© Kevin

vsszan2044070914423726.jpg
vsszan2044070914423727.jpg


BIG BILL自今年7月开业以来,每到一天的傍晚时分,便成为量子晨一道独特的“风景线”,爱狗人士在这里交换养宠心得,毛孩子们来回穿梭追逐,观察着属于它们的小江湖,空间内外,因这群生灵而焕发出别样的生机与活力。

▽细部© Kevin

vsszan2044070914423728.jpg
vsszan2044070914423729.jpg

▽原始平面图©MOS木石设计

vsszan2044070914423730.png

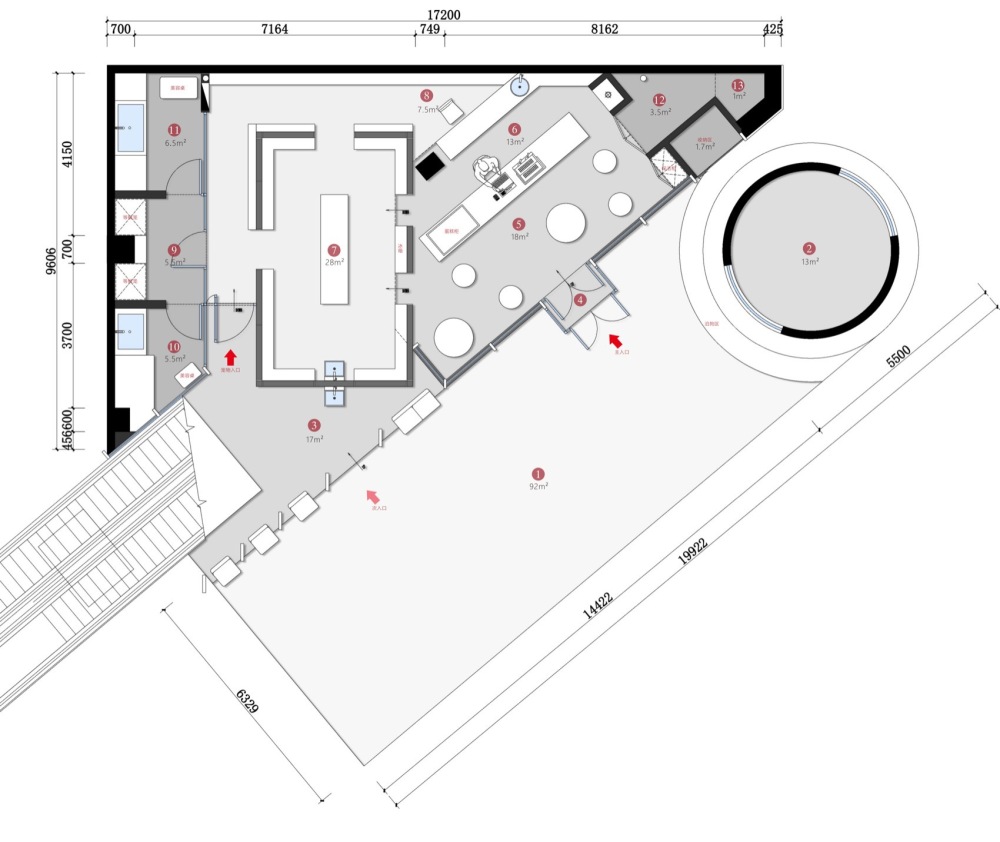
▽平面图©MOS木石设计

vsszan2044070914423731.jpg
vsszan2044070914423732.jpg
vsszan2044070914423733.jpg
vsszan2044070914423734.jpg
vsszan2044070914423735.jpg
vsszan2044070914423736.jpg
vsszan2044070914423737.jpg
vsszan2044070914423738.png
vsszan2044070914423739.jpg


项目名称:big bill宠物空间
项目类型:室内设计
项目地点:陕西省西安市
建筑面积:室内96㎡、户外142㎡
设计时间:2025年1月—2025年2月
建设时间:2025年2月—2024年6月
设计单位:MOS木石设计
主持设计师:刘燕
设计团队名单:刘燕、苏佳瑜、薛佩涵
施工单位:西安里米空间装饰工程有限责任公司
材料:木丝板、PC磨砂半透波浪板、科技木皮、陶土砖、蜡木板、艺术涂料
项目摄影:Kevin
项目撰文:高婧
联系邮箱:65285020@qq.com

AI文本分析中……
AI色彩命名中……

序赞Ai时刻等待着你的命令!~

与Ai对话形式持续执行相关Ai智能体任务。

jbjbjb2025-10-21 15:43:15
分享是一种美德
您需要登录后才可以回帖 登录 | 注册序赞号

快速回复 返回顶部 返回列表