山脩 · 美术馆 | 禾本设计 | 2025 | 中国江苏
建一座美术馆,“动”时它是对外展示的功能,“静”时它是画家感知的精神共鸣,它宁静而含蓄,热烈而奔放。初次结识赵老师,他那文人墨客的气质和修养,以及卓越的绘画技艺和对艺术深刻的理解,让我们心生敬意。赵老师不仅是一位艺术家,更是一位热爱自然、追求美好的人生智者,因此,我们空间定义的主题为“腹有诗书,胸怀山海”。
▽项目概览©黑曜石
vsszan204550121834491.jpg
vsszan204550121834492.jpg
vsszan204550121834493.jpg

本案位于阅江楼下的山脚位置,登上楼阁,便可俯瞰长江;优越的地理位置让空间远离喧嚣,可以感受大自然的宁静与山水的恬淡,也为空间增添了文化传承的底蕴;

▽项目鸟瞰©黑曜石
vsszan204550121834494.jpg

外面的围墙为保证所需的隐私性,一定程度上的做高,营造高墙大院的感觉;围墙的材质选用清水混凝板,让整个外立面显得更加简洁和易读;

▽营造高墙大院的感觉©黑曜石
vsszan204550121834495.jpg

经过围合感的廊道,又进入下一个域场,前场顶面就没有那么强的围合感,通过人本身的心理上的收放感受,带来豁然开朗的空间体验;

▽豁然开朗的空间体验©黑曜石
vsszan204550121834496.jpg
vsszan204550121834497.jpg

▽引人探索的场域©黑曜石

vsszan204550121834498.jpg
vsszan204550121834499.jpg

▽庭院水景©黑曜石

vsszan2045501218344910.jpg
vsszan2045501218344911.jpg

▽庭院景观©黑曜石

vsszan2045501218344912.jpg
vsszan2045501218344913.jpg

▽感受大自然的宁静©黑曜石

vsszan2045501218344914.jpg
vsszan2045501218344915.jpg

作品展示区我们整体是一个白色盒子,建筑结构是坡顶,坡顶给人一种教堂神圣的感觉,因此我们吊顶保留了这种尖顶结构,可以让审美体验在纯粹的殿堂中发生。

▽白色盒子©黑曜石
vsszan2045501218344916.jpg
vsszan2045501218344917.jpg

▽感受大自然的宁静©黑曜石
vsszan2045501218344918.jpg

▽为空间增添了文化传承的底蕴©黑曜石

vsszan2045501218344919.jpg
vsszan2045501218344920.jpg

▽保留了尖顶结构©黑曜石

vsszan2045501218344921.jpg

▽给人以教堂神圣的感觉©黑曜石

vsszan2045501218344922.jpg
vsszan2045501218344923.jpg

▽给人以教堂神圣的感觉©黑曜石

vsszan2045501218344924.jpg
vsszan2045501218344925.jpg

山海星辰,它是一曲未完的诗篇,一幅未尽的画卷。每一笔,每一划,都蕴含着深深的哲理和无尽的、思考。

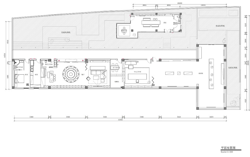
▽平面布置图©禾本设计事务所
vsszan2045501218344926.jpg

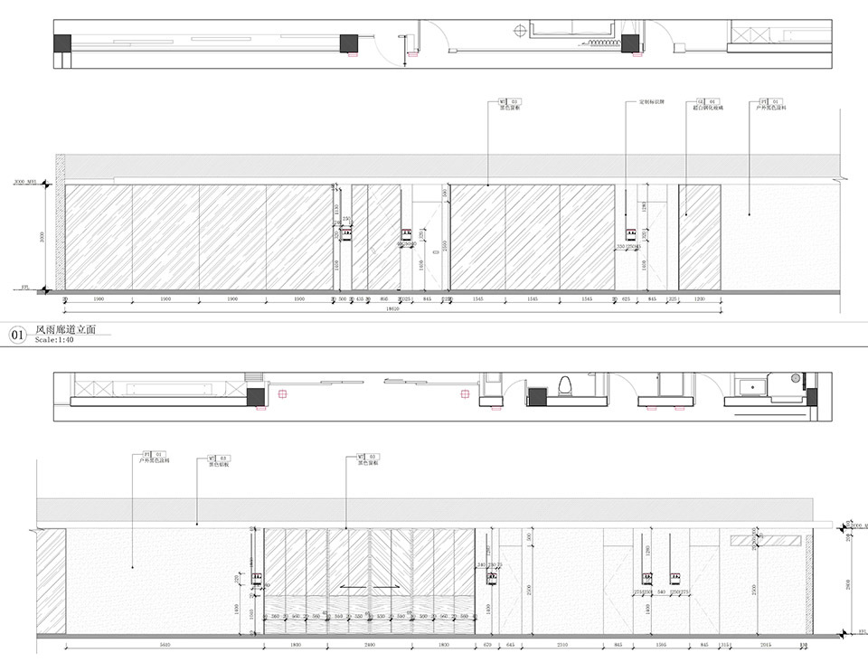
▽风雨连廊图纸©禾本设计事务所
vsszan2045501218344927.jpg

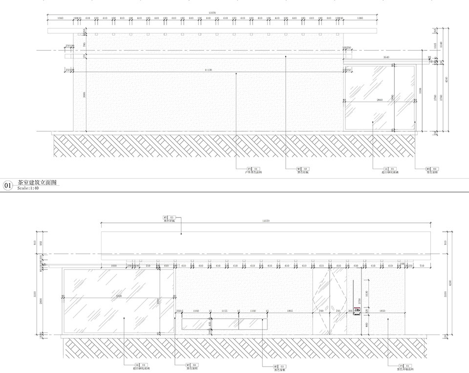
▽茶室建筑立面图©禾本设计事务所
vsszan2045501218344928.jpg

▽迎宾步道立面及下沉庭院立面©禾本设计事务所
vsszan2045501218344929.jpg

  • 项目名称:山脩 · 美术馆
  • 项目类型:建筑
  • 设计方:禾本设计事务所
  • 完成年份:2025
  • 设计团队:苏江
  • 项目地址:南京市鼓楼区建宁路196号101明潮里
  • 建筑面积:1026㎡
  • 摄影版权:黑曜石
  • 材料:清水混凝板 | 艺术涂料 | 镜面砖 | 玻璃
vsszan2045501218344930.jpg
vsszan2045501218344931.jpg
vsszan2045501218344932.jpg
vsszan2045501218344933.jpg
vsszan2045501218344934.jpg
vsszan2045501218344935.jpg
vsszan2045501218344936.jpg
vsszan2045501218344937.jpg
vsszan2045501218344938.jpg
vsszan2045501218344939.jpg
vsszan2045501218344940.jpg
AI文本分析中……
AI色彩命名中……
ppap7772025-10-21 00:21:33
感谢分享!!感谢分享!!
您需要登录后才可以回帖 登录 | 注册序赞号

快速回复 返回顶部 返回列表