140㎡的双动线住宅 | 傅俣迪设计 | 2025 | 中国深圳


项目介绍
项目位于深圳市宝安区,建筑面积140m²,钢筋混凝土结构。业主是一对建筑系毕业的年轻夫妻。对空间形式持有敏锐的感知和开放的态度。他们期望住所既安定松弛又不显冷淡。避免过度的设计干扰,保留生活的呼吸感。改造的目标是将“琐碎零散的空间”变成“有序、可感知、可掌控的生活场域”,让家的气质和生活节奏达到统一。

▽室内空间一览© 谭啸

vsszan204572130949381.jpg


项目理念
我们以居住的基本需求与空间使用逻辑作为设计的出发点,通过合理的分区、有序的动线以及材质光线的细致处理,塑造出流动且富有触觉质感的居所,展现空间与生活的可塑性。

▽模型概览图©傅俣迪/王旭

vsszan204572130949382.jpg


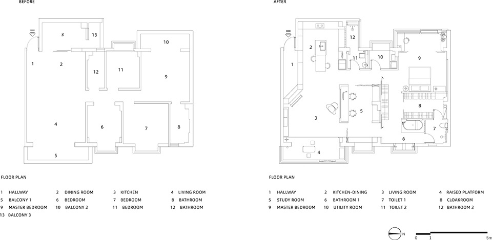
以清晰的空间动线为轴,重塑居所的流动结构

▽室内动线©傅俣迪/王旭

vsszan204572130949383.gif


改造后
1·空间布局采用动静分离策略:左侧为动区(厨房/餐厅/客厅/书房),动线短平直,方便多人同时使用。右侧为静区(主卧/衣帽间/卫浴),形成独立的休憩区域。
2·双动线主卧套间:主卧床两侧均可通往衣帽间,衣帽间再分别连接两组卫浴功能,构成连续的环形路径。
3·公共区则以岛台与餐桌一体化、书房半开合界面的方式,形成“多点可达”的生活场景。
4·书房采用半开合处理,兼顾工作与社交。用半界面和可变界面保持使用的弹性。

▽动静分离©谭啸/宋韵怡

vsszan204572130949384.jpg


玄关
入户区通过吊顶的变化形成过渡,设定了从外部进入起居的节奏。并整合空调造型、储物柜收纳与分隔功能,加强空间的体块感受。

▽玄关© 谭啸

vsszan204572130949385.jpg


客厅
厨房、餐厅与客厅被布置在同一侧,成为交流与共享的区域。整体以灰色和木色为基底,弱化装饰,突出空间序列感。客厅取消传统大型沙发,采用低矮地台与单椅设计,释放中央场域,增强空间灵活性与多功能性。

▽客厅© 谭啸/宋韵怡

vsszan204572130949386.jpg
vsszan204572130949387.jpg


餐厨
岛台与餐桌一体化,减少冗余面积也方便多人同时使用。使烹饪、用餐与交流在同一轴线展开。

▽餐厨© 谭啸

vsszan204572130949388.jpg

▽餐厨细节© 谭啸

vsszan204572130949389.jpg
vsszan2045721309493810.jpg


双通道
书房两侧分别连通着客厅、书房、主卧、衣帽间与卫浴,形成双动线结构,让日常动线更为灵活高效。空间的可变性:当浴室口袋门、走廊门、客厅折叠门关闭时,书房就能变为独立且安静的工作区。

▽一侧过道双向视角© 谭啸

vsszan2045721309493811.jpg
vsszan2045721309493812.jpg

▽另一侧过道双向视角© 谭啸

vsszan2045721309493813.jpg


书房
书房位于动区边缘,通过极窄边框室内窗和滑门与客厅相连。半开合界面支持在工作与互动之间自由切换,同时保持光线与视线的流动。焦糖色软木立面,营造柔和氛围,整个空间无踢脚线处理,收边无缝衔接,完整统一。

▽书房© 谭啸

vsszan2045721309493814.jpg
vsszan2045721309493815.jpg
vsszan2045721309493816.jpg

▽书房细部© 谭啸

vsszan2045721309493817.jpg


主卧
主卧采用双动线布局,衣帽间与两组卫浴的并置与连接,使居住者在早晚高峰时段可顺畅完成起居动作,减少等待与绕行。软木的天然纹理和低反射表面,弱化光线的锐利感,让卧室呈现更柔和的明度和氛围。

▽主卧© 谭啸

vsszan2045721309493818.jpg

▽主卧细部© 谭啸

vsszan2045721309493819.jpg


衣帽间
衣帽间位于卧室与卫浴之间,内部结合模块化分区(挂放、折叠、常用)以及开放与封闭的收纳方式。开放区高频取放,封闭柜体进行季节性收纳,同时在视觉上延展了卧室尺度,并以统一的材质保持整洁与美感。

▽衣帽间© 谭啸

vsszan2045721309493820.jpg
vsszan2045721309493821.jpg


开放式陈列的直观性让日常衣物一目了然,而封闭柜体则避免灰尘堆积和视觉杂乱。

▽衣帽间内部看向过道© 宋韵怡

vsszan2045721309493822.jpg


卫生间
卫浴区采用分离式布局:一侧为浴缸与盥洗区,另一侧为淋浴与马桶。宽裕的尺度与清晰的分区提供了堪比大户型的卫浴体验。

▽盥洗区© 谭啸

vsszan2045721309493823.jpg
vsszan2045721309493824.jpg


深蓝釉面瓷砖与水泥自流平的组合明确了功能界限,同时便于清洁与维护。材质的对比在低光环境中保持了清晰的识别。

▽盥洗区© 谭啸

vsszan2045721309493825.jpg


客卫
客卫采用分离式布局,借由材质的对比明确干湿分区,加上柔和的光线,使小尺度空间保持明快与通透。

▽盥洗区© 谭啸

vsszan2045721309493826.jpg
vsszan2045721309493827.jpg


材质解析
我们选择了软木、水泥自流平和瓷砖三种材质,使触觉与视觉皆参与空间感知。软木地板:用于静区,客厅地台与卧室的主要活动面,提供温润脚感并降低噪音。水泥自流平:覆盖于公共区域,如厨房、餐厅、客厅与书房,强调空间连续性与维护便捷,是高频活动区的理想选择。同时为空间带来冷静的整体性,让边界感更清晰。湿区材质对比:深蓝瓷砖与水泥自流平在浴室或功能交接处进行材质交错,增强分区感及视觉识别度。这些材质不仅作为视觉元素存在,更让居住者在行走、触摸、视觉中体验空间。

▽过道空间© 谭啸

vsszan2045721309493828.jpg


生活在空间中得以具体化
这次140㎡的住宅改造不追求雕琢表面,而是以动作逻辑为主轴,通过分区、动线和材质的协调,让日常起居在清晰的框架中展开。在这样的架构中,住宅不再只是功能的拼接,而是将动作与空间重新编织,让空间的可塑性在日常生活中被释放,更在时间的积累中传达居住的品质与情感。

▽平面图©傅俣迪/王旭

vsszan2045721309493829.jpg
vsszan2045721309493830.jpg
vsszan2045721309493831.jpg
vsszan2045721309493832.jpg


项目名称:流动的日常:140㎡的双动线住宅
项目类型:室内设计
设计方:FUYUDI STUDIO
联系邮箱:ftq82055689@126.com
项目设计:2024年
完成年份:2025年
设计团队:傅俣迪/郑燕云
项目地址:深圳市 宝安区
建筑面积:140㎡
摄影版权:谭啸
客户:Morris
材料:
墙面涂料:芬琳
软木:卡洛林
手工砖:马拉齐

AI文本分析中……
AI色彩命名中……

序赞Ai时刻等待着你的命令!~

与Ai对话形式持续执行相关Ai智能体任务。

95qabc2025-10-13 18:02:33
谢谢分享!!!谢谢分享!
您需要登录后才可以回帖 登录 | 注册序赞号

快速回复 返回顶部 返回列表