痴謎者咖啡 | 春田空间设计 | 2025 | 中国山东

从原始建筑图能看到,建筑面积是三间加起来20平米的原热力公司传达室,内在角度看,对于咖啡店来讲,没有任何优点,但是有一个缺点“小” ,容不下一个吧台区的功能,更不要说客座区!当然这个房子外在角度看,对于商铺有非常大的优势,临街、独立(这在市区也非常的难得)、当然更打动我的是旁边有一棵靠拢的梧桐树 。

▽项目概览© 春田空间设计工作室jolintomato

vsszan204575131106431.jpg


设计理念:这次我想传输的就是建筑与自然、品牌价值共存,所以这次我放弃过多材质的堆砌,希望统一色彩体块与建筑结构的关系,更简单直接的把建筑内外与自然相依共存,建筑与人物关系更加明确。

▽统一的体块© 春田空间设计工作室jolintomato

vsszan204575131106432.jpg
vsszan204575131106433.jpg
vsszan204575131106434.jpg

▽门头细部© 春田空间设计工作室jolintomato

vsszan204575131106435.jpg
vsszan204575131106436.jpg


改造难点,解决咖啡吧台的功能需求,一个专业的咖啡吧台,是一个专业咖啡师的战斧,所以根据园区规划,扩充了一个完美的吧台功能区!这样原有两间大一些的开间作为客座区,最小的两平米开间作为了设备间储物间!而且把戶外客座区落在了屋檐下,这样一来增大了建筑体积,二来客座区遮阳避雨,客人会更加舒适!原有窗洞以下的非承重墙拆除,改为玻璃窗,尽可能增加室内采光和视野,建筑由此变得通透!

▽客座区© 春田空间设计工作室jolintomato

vsszan204575131106437.jpg

▽服务吧台© 春田空间设计工作室jolintomato

vsszan204575131106438.jpg
vsszan204575131106439.jpg

▽手冲吧台© 春田空间设计工作室jolintomato

vsszan2045751311064310.jpg
vsszan2045751311064311.jpg


吧台区的天窗,原有建筑屋顶都是平顶,但吧台区这间是钢结构扩充的,所以屋顶我想要达到最高,在最接近梧桐树的地方开了一整块玻璃天窗,没有任何边框的分割,只要整整一块!这样客人站在吧台区都会不自觉的仰望太空中的那棵梧桐树 ,心情不仅有咖啡带来的快乐,还有自然带来的治愈!

▽吧台区天窗© 春田空间设计工作室jolintomato

vsszan2045751311064312.jpg


外墙内墙共用了一款白色软石,室内外屋顶使用了同色号白色涂料,虽然室内木墙板和室外木纹岩板不是一种材质,但是纹理和颜色,我们选择了一样的,在加上地面室内外的一款白色瓷砖,这样大家明白了,就是室内外材质的共用与贯穿,透过落地玻璃的视野,使得这个建筑具有了延展性,看起来体积变大了。面积变大了!这就是这次改造的重要思路!

▽夜景© 春田空间设计工作室jolintomato

vsszan2045751311064313.jpg
vsszan2045751311064314.jpg


梧桐树下的街边卡座,是坐下来喝杯咖啡,看看行人走过,也许能体会到城市中其实还是有很多值得的事。

▽咖啡桌细部© 春田空间设计工作室jolintomato

vsszan2045751311064315.jpg
vsszan2045751311064316.jpg

▽平面布置图© 春田空间设计工作室

vsszan2045751311064317.jpg

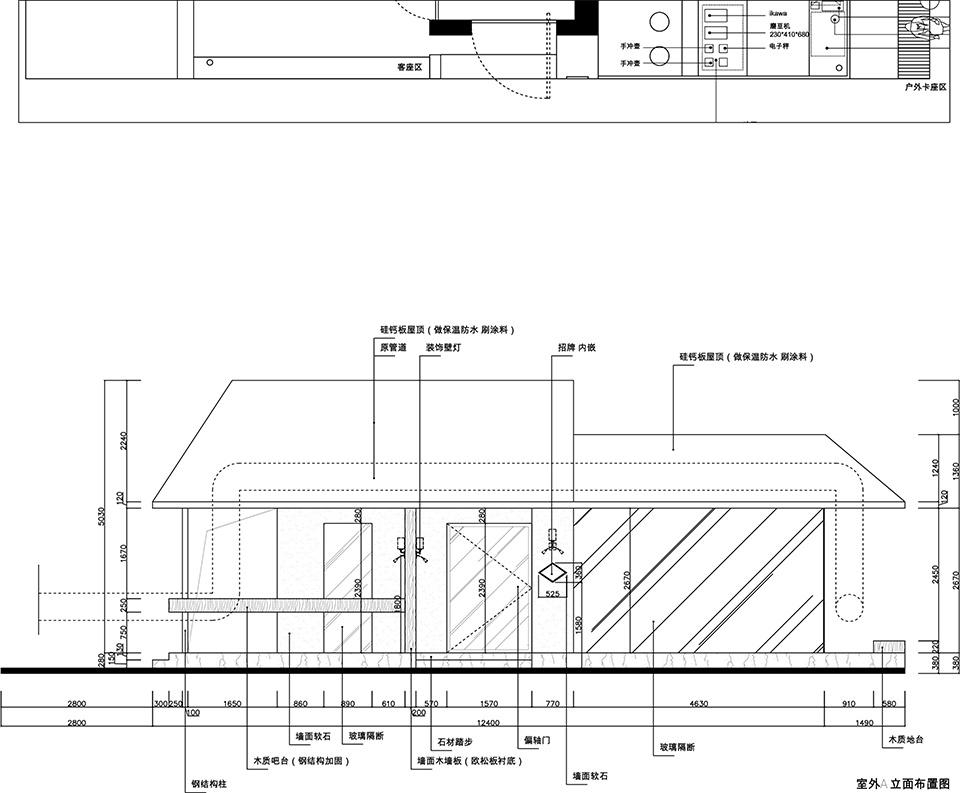
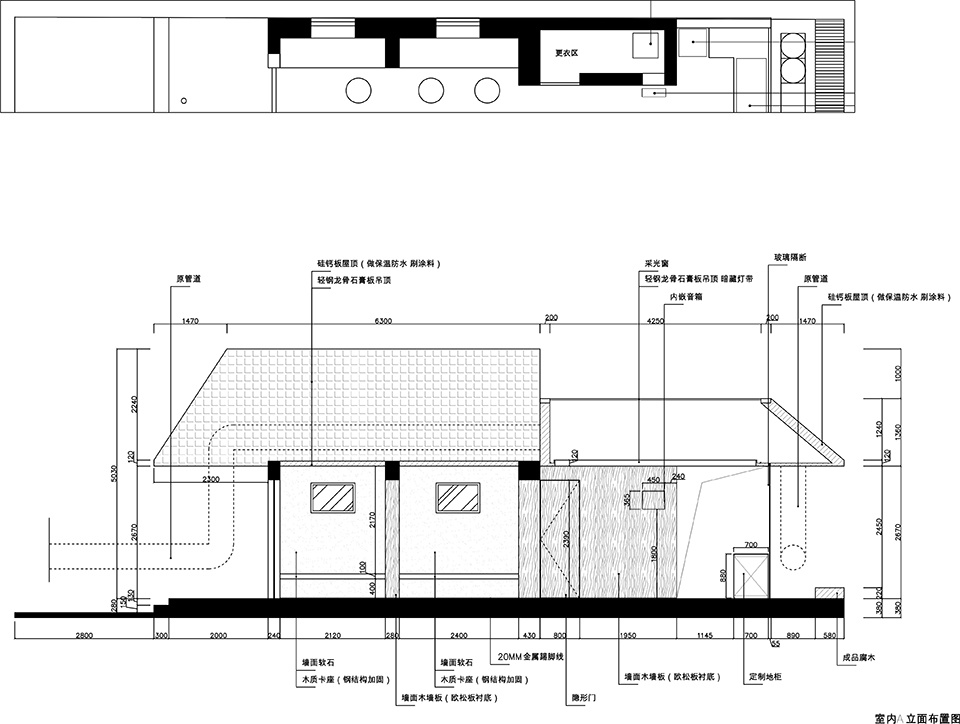
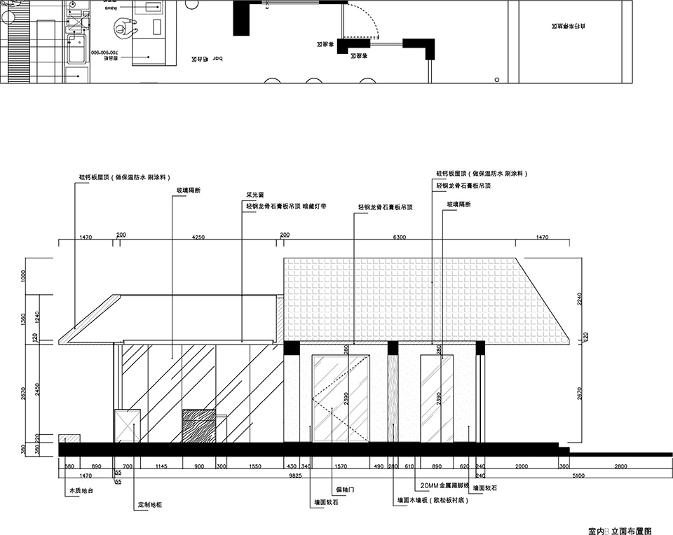
▽立面图© 春田空间设计工作室

vsszan2045751311064318.jpg
vsszan2045751311064319.jpg
vsszan2045751311064320.jpg


項目名稱:痴謎者咖啡
項目地址:12,漳浦路,市南区,青岛,山东,中國
項目類型:建築,室內設計和景觀
建築和室內設計師:春田空間設計工作室
設計時間:2025年7月-2025年8月
建築面積:20平米
建築材料| 软石 木
室內主材|软石 木

AI文本分析中……
AI色彩命名中……

序赞Ai时刻等待着你的命令!~

与Ai对话形式持续执行相关Ai智能体任务。

95qabc2025-10-13 17:50:15
谢谢分享!!!谢谢分享!
syhgdesign2025-10-16 23:09:03
感谢楼主辛苦分享
您需要登录后才可以回帖 登录 | 注册序赞号

快速回复 返回顶部 返回列表