蓝烘焙坊 | IF Architecture | 2025 | 澳大利亚

Baker Bleu, Cremorne致敬古老的手工烘焙传统,以其标志性的深色外壳面包、百吉饼与酥点如艺术品般陈列展示。与之形成诗意对比的,是一个以精致极简为基调的空间——在克制的色调中层叠出温度与触感,并通过创新与高科技材质的运用,呈现出这家烘焙坊以进取之姿重新诠释传统工艺的理念。

▽周边环境©Sharyn Cairn

vsszan204579131434381.jpg


墨尔本的这家旗舰咖啡馆标志着Baker Bleu品牌体验的进一步进化。项目根植于品牌的核心哲学,并通过建筑师与烘焙师的持续合作得以实现。设计的呈现体现了对持续改进的热情,以细腻而有目的性的设计,不断精炼和优化成功的运营模式。

▽周边桌椅©Sharyn Cairn

vsszan204579131434382.jpg


材料在工业效率与手工质感之间取得平衡。空间的亮点是受天然酵母气孔结构启发的再生铝板饰面。这种由回收材料构成的面板强化了品牌对可持续发展的承诺——最大限度地减少生产废料,并在整个业务中推广可堆肥材料的使用。

▽看向室内©Sharyn Cairn

vsszan204579131434383.jpg


再生铝材作为Cremorne空间的核心特征,构成了室内的主体基调。单体化的收银台以具纹理的立面与抛光不锈钢台面相接,台面上精心排列的烘焙作品形成了一个经过编排的展示舞台。

▽内部空间概览©Sharyn Cairns

vsszan204579131434384.jpg
vsszan204579131434385.jpg
vsszan204579131434386.jpg


“气孔”这一隐喻,天花同样覆以再生铝面板,不仅柔化了声学效果,也以工业化的方式展露出服务系统。温暖的灰色水磨石地面为空间带来稳重的力量感,而细微的色调与肌理变化则制造出柔和的对比。

▽看向室外©Sharyn Cairns

vsszan204579131434387.jpg


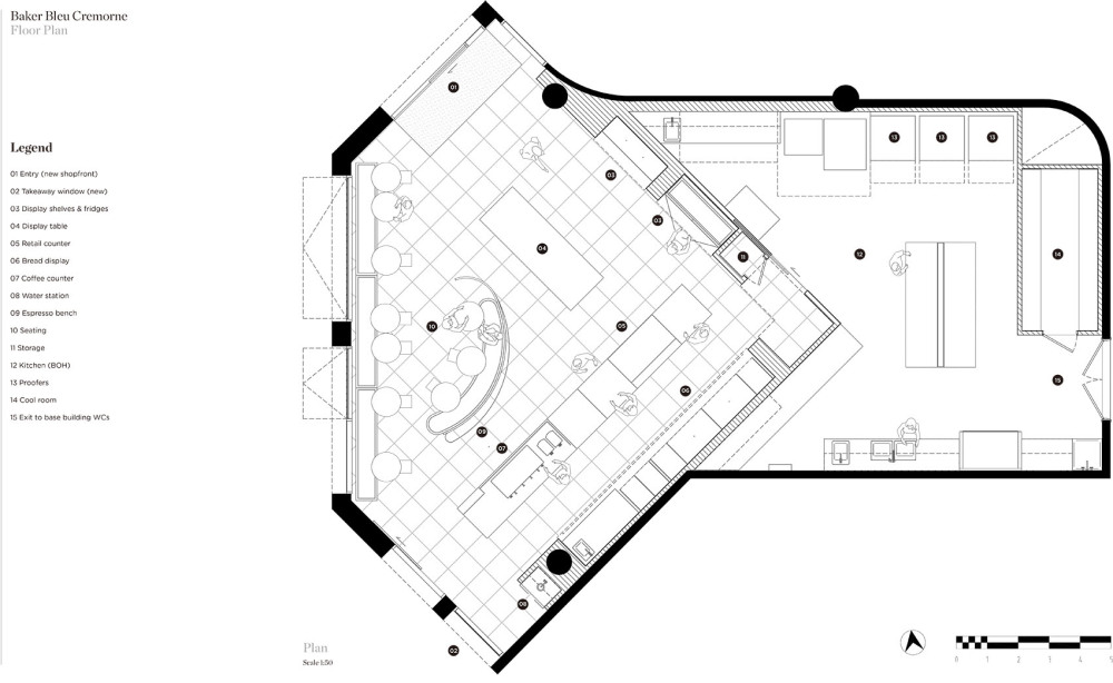
整体空间以务实的工业化简约思路展开。主要的建筑干预是一面位于租赁空间内的L形定制柜墙,它理顺了不规则的平面布局,引导动线、框定中央面包展示区与嵌入式数字菜单屏的视线,同时在零售/咖啡区与后方商用厨房之间建立起既分隔又连通的关系。主柜台设置了四个收银点,顾客动线围绕中央一张大型美国橡木展示桌展开,桌面上整齐陈列着精选的零售产品。

▽座椅近景©Sharyn Cairns

vsszan204579131434388.jpg


极简的材料调色凸显了零售产品的主角地位,使色彩鲜明的品牌标识在中性背景中形成对比。定制设计的悬挂货架以极薄的边缘厚度呈现,采用精细折叠的镀锌钢板贯穿空间。嵌入式酥点展示区提供刚出炉、热气腾腾的烘焙食品。

▽咖啡操作台近景©Sharyn Cairns

vsszan204579131434389.jpg

▽自助饮水区近景©Sharyn Cairns

vsszan2045791314343810.jpg


座位区被精心雕刻于空间之中,提供一个充满触感、富有庇护感的停留片刻,与充满活力的零售空间形成温柔的对比。

▽酥点展示区©Sharyn Cairns

vsszan2045791314343811.jpg


堂食区被塑造成一个内凹的座席凹室,设有可向Dover 街开启的遮阳窗,使街道界面焕发活力。长凳座由折叠镀锌钢与结构感强烈的工字梁底座组成。弧形卡座兼具双重功能——既是咖啡馆的座位区,也是供客人等待或享用咖啡与点心的浓缩咖啡吧。柔软的织物、实木凳子以及带有趣味金属底座的美国橡木桌面,共同营造出一个灵活、舒适而愉悦的环境。

▽悬挂货架©Sharyn Cairns

vsszan2045791314343812.jpg

▽细节©Sharyn Cairns

vsszan2045791314343813.jpg


Baker Bleu, Cremorne将手工传统与工业精度凝练为一个精致且可持续的空间成果。其整体设计既提升了业务效率,又优化了顾客体验,体现出品牌对“有思考的进化”的持续追求。

▽总平面图© Studio Round


vsszan2045791314343814.jpg
vsszan2045791314343815.jpg
vsszan2045791314343816.jpg
vsszan2045791314343817.jpg
AI文本分析中……
AI色彩命名中……

序赞Ai时刻等待着你的命令!~

与Ai对话形式持续执行相关Ai智能体任务。

95qabc2025-10-13 17:22:18
谢谢分享!!!谢谢分享!
syhgdesign2025-10-16 23:19:35
感谢楼主辛苦分享
您需要登录后才可以回帖 登录 | 注册序赞号

快速回复 返回顶部 返回列表