北布鲁克林第八分店 | MRDK | 2025 | 加拿大

北布鲁克林(North of Brooklyn)的第八家分店落址于多伦多的伊托比科(Etobicoke)社区,占据了一处两层空间,将充满活力的外卖氛围与精致的酒吧体验完美融合。
▽项目概览© David Dworkind

vsszan204592131720511.jpg

▽入口处© David Dworkind

vsszan204592131720512.jpg

▽入口点单处© David Dworkind

vsszan204592131720513.jpg

▽店铺周边© David Dworkind

vsszan204592131720514.jpg
vsszan204592131720515.jpg

▽点单处近景© David Dworkind

vsszan204592131720516.jpg
vsszan204592131720517.jpg


底层设有北布鲁克林厨房及外卖柜台,而上层则是Low Rise酒吧与餐厅。踏入大灯箱雨篷下,雨篷印有North of Brooklyn的标志,访客仿佛置身于类似《星球大战》片头字幕的电影场景。这组灯箱延伸至室内,形成外卖区的天花板,整个区域被DTILE模压瓷砖包裹。这些定制瓷砖从墙面延伸至天花板形成连续包覆,甚至向外折叠,创造出用于陈列周边商品的实用挂钩,模糊了表面与装置之间的界限。

▽吧台全景© David Dworkind

vsszan204592131720518.jpg

▽吧台近景© David Dworkind

vsszan204592131720519.jpg
vsszan2045921317205110.jpg

▽吧台座椅细部© David Dworkind

vsszan2045921317205111.jpg
vsszan2045921317205112.jpg


上层的Low Rise酒吧与餐厅借鉴了怀旧意大利设计,并在现代感上重新演绎。这个40座空间以一座大型吧台为中心,吧台覆以翻新大理石马赛克,并铺设锌制台面,随着时间推移将呈现丰富的自然包浆。上方悬挂由In Common With设计的槽纹吊灯,投射出温暖光线,为亲密的用餐体验定下基调。

▽客座区近景© David Dworkind

vsszan2045921317205113.jpg
vsszan2045921317205114.jpg

▽怀旧的风格© David Dworkind

vsszan2045921317205115.jpg
vsszan2045921317205116.jpg

▽客座区座椅近景© David Dworkind

vsszan2045921317205117.jpg
vsszan2045921317205118.jpg


为了最大化自然采光,侧立面开设了新窗,与从墙体悬挑出的胡桃木餐桌对应,完美嵌入窗台凹槽中。这些餐桌配以受Joe Colombo标志性Tube Chair启发的绿色皮质长椅,支撑于折叠钢制桌脚上,在色彩、材质与造型之间形成微妙互动。

▽酒柜与灯具© David Dworkind

vsszan2045921317205119.jpg
vsszan2045921317205120.jpg

▽卫生间© David Dworkind

vsszan2045921317205121.jpg
vsszan2045921317205122.jpg


针对低层高问题,机电系统集中布置于周边,中央形成抬高的天花板。该圆角矩形天花板搭配灯槽照明,凸显爆米花纹理天花板的质感,与高光漆面下方吊顶形成鲜明对比,进一步增强了空间的层次与动态感。

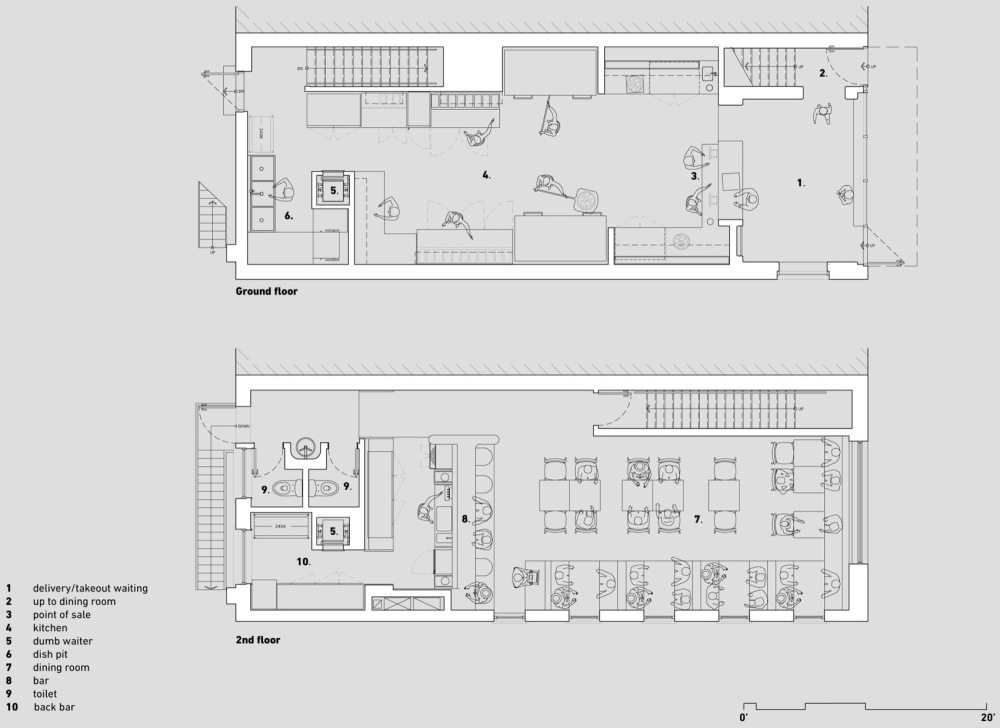
▽平面图© MRDK

vsszan2045921317205123.jpg
vsszan2045921317205124.jpg
vsszan2045921317205125.jpg


ARCHITECT: MRDK
WEBSITE : http://www.menarddworkind.com/
INSTAGRAM : http://www.instagram.com/menarddworkind
PROJECT ADRESS: 1180 The Queensway, Etobicoke, ON M8Z 1R5
AREA: 2550 square feet

DATE: April 2025

ARCHITECT OF RECORD: Barry Goldman Architect
PHOTOGRAPHY CREDIT: David Dworkind
CONSTRUCTION CREDIT: Atlas Worx
MATERIALS:
DTILE, Wausau tile, Arta Ceramics, CTL leather, 3M film, Lighting: In Common With, Marset Arancia,
Custom stools – Jussaume, Chairs – Suite 22: Thon, Sink: Agape, Faucet: Dyson, Blinds: Hunter
Douglas.

AI文本分析中……
AI色彩命名中……

序赞Ai时刻等待着你的命令!~

与Ai对话形式持续执行相关Ai智能体任务。

95qabc2025-10-14 19:53:55
谢谢分享!!!谢谢分享!
syhgdesign2025-10-16 23:11:39
感谢楼主辛苦分享
您需要登录后才可以回帖 登录 | 注册序赞号

快速回复 返回顶部 返回列表