以利他心度人生,能增强人的成就感和幸福感,最终回报会回到自己身上,对自己同样有利。
—— 稻盛和夫先生
采控网成立于2016年,是一家结合创新技术,解决工业品行业交易痛点的互联网公司,业主希望打造一个好的办公环境,给合作伙伴、客户、以及团队传递 - 有信念、有思想、有关怀的企业理念,在好的办公环境中提高团队的归属感,创造一个更积极的工作氛围,激发团队的创造力,间接的推动企业向上发展。
01
RECEPTION
ACTIVITY AREA
大厅 & 活动区
-
办公楼共有四层的使用空间,原始结构为四方的户型,二层空间为后期搭建部分。
设计师希望在满足使用空间的同时也能有更好的视觉尺度和采光面,通过梳理空间结构,把一层入口上方挑空,创造一个高耸尺度的空间氛围。
利用几何块面增强空间的结构感和秩序感,在挑空上方的方盒子中置入渐变玻璃,为夹层办公区域释放更多的自然光感。
在高低尺度之间,利用纵向格栅线条与镜面顶做结合,视觉层面拉伸空间尺度,身在其中感受到通透、开放。
整个楼栋通过旋转楼梯贯穿,弧线的形体置入空间中,丰富空间的层次的同时引导动线导向。
在楼梯的考量上希望弧线形体能够成为空间的点睛之笔,也需要有轻盈的感官,在一侧用了更通透的玻璃栏杆,消解笨重的感受。
02
OFFICE AREA
STAFF HOME
办公区 & 职工之家
-
夹层的使用区域,利用拱券尽量提高空间层高,在配色和材质选择上,用到更多浅色调和木纹色做结合,希望传递舒适、明朗的办公氛围。
从办公场景到休闲场景的转换,需要一些活力,来切换工作和小憩的状态。
材质选择上用了更明快的色调做搭配,软配的形体考虑上用到更纤细的椅腿,带来轻松的氛围。
通过短暂的工作抽离,确实的放松大脑,一个令人能够待得住的空间,在其中完成工作,专注度也能够得到提升。
03
RECEPTION AREA
COURTYARD
接待区 & 庭院
在高速运转的环境下,如何平衡工作与生活,是设计师和业主共同探讨的话题。
张树光《如风过树》系列 借由“树”成为看得见的“风”,暗喻观自然,也察觉内在
把自然留在身边建立工作之余的呼吸感,园林是办公环境的延伸。
空间通过色彩对比和框景的处理让自然成为视线的主体,安静不受外界影响的空间,身处其中思考变得更加专注。
04
ANALYSIS DIAGRAM
分析图
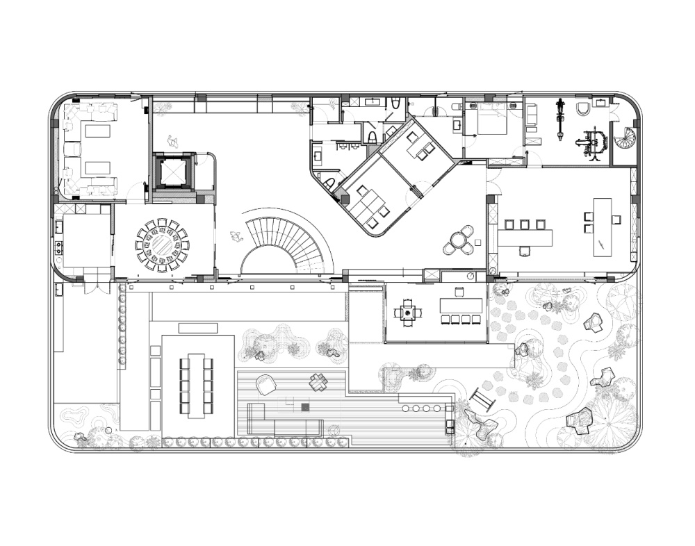
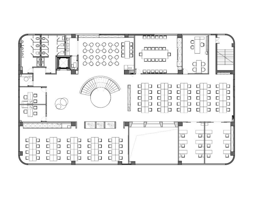
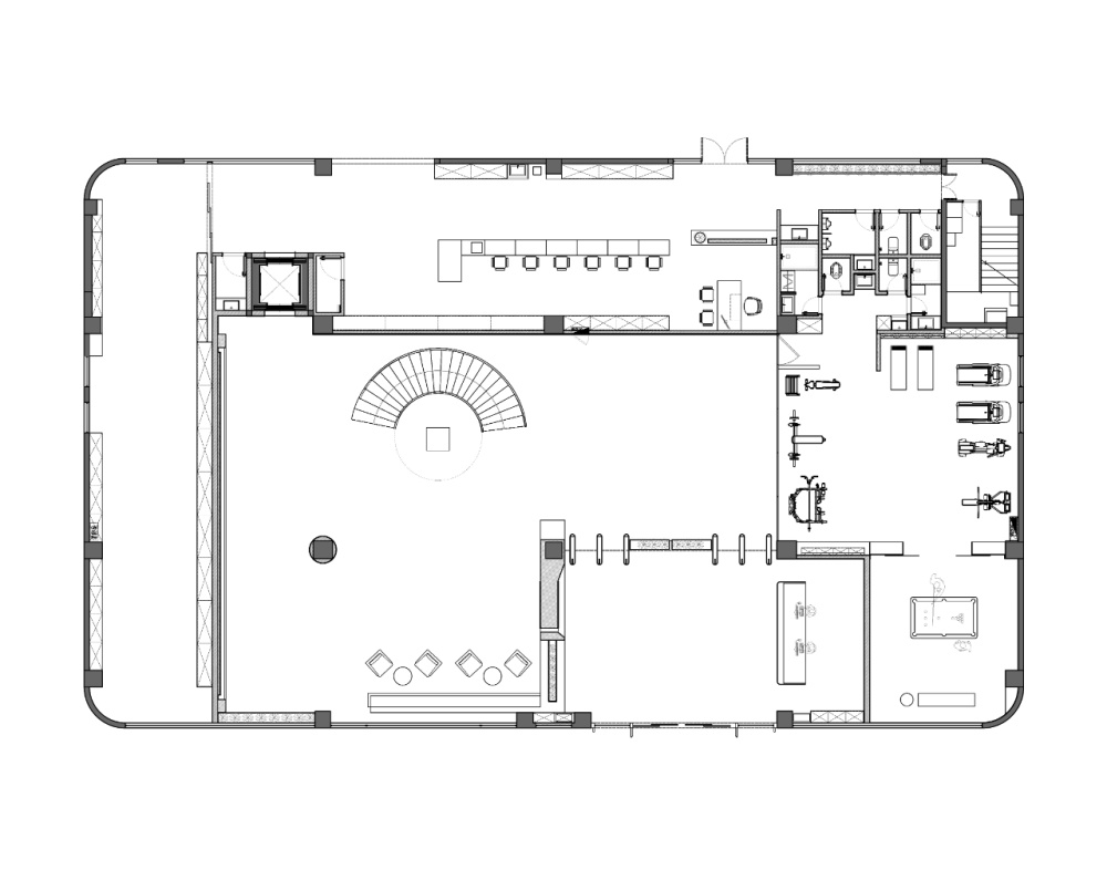
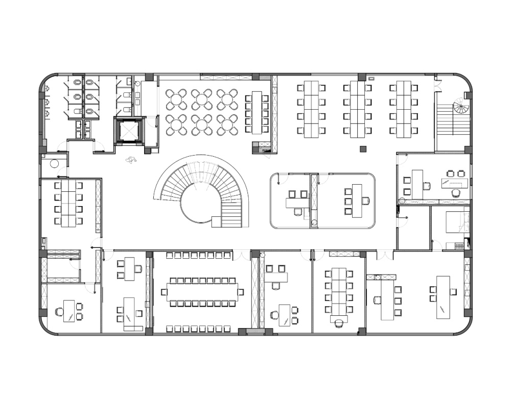
1F 2F 3F 4F 平面图
项目名称 -构物几何
项目业主 -福建采控网络科技有限公司
设计机构 -四畳半空间设计
设计团队 -钟宇翔 江惠婷
施工团队 -福建崇文建设工程有限公司
项目面积 -2800.0m²
项目地址 -福建 福州
项目摄影 -李玲玉 陈斌
主要材料 -乔木家地板 笙美陶瓷 壹伽照明造物木作 资造品革
DESIGNER
钟宇翔
四畳半设计创始人 & 设计总监

四畳半空间设计,是一支包含针对住宅,商业,品牌,为研究方向的年轻化设计团队,目标是保持对设计问题本质的追问,解决不同需求,营造好的空间体验。
- 转自:LJ看设计
- 图片©LJ看设计
- 编辑:序赞网
- 阅读原文
|