Red House | Ángel García Estudio | 2024 | 墨西哥
vsszan120792141919201.jpg
vsszan120792141919202.jpg


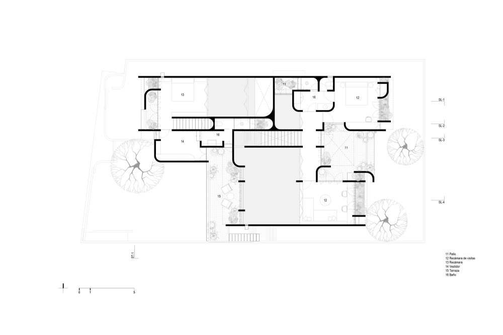
The Red House酒店位于瓦哈卡州的Bahías de Huatulco,距离海岸仅几分钟路程,处于完全城市化的环境中,没有海景。该物业由三个桥台上的四栋房屋环绕,向西通往一条主街,可欣赏到尚未开发的自然区的景色。现场已有三棵树;在前面和中心位置,有一棵Alejo/Matapescado(Piscidia Carthagenensis),一种特有的落叶树。离它很近的地方长着一棵开着紫色花朵的年轻番石榴(Guaiacum coulteri),这是一种濒临灭绝且生长缓慢的树,最后,在后面有一棵Cuahulote(Guazuma ulifolia),一种中等大小的常青树,在瓦哈卡低丛林中很常见。

vsszan120792141919203.jpg
vsszan120792141919204.jpg
vsszan120792141919205.jpg
vsszan120792141919206.jpg
vsszan120792141919207.jpg
vsszan120792141919208.jpg
vsszan120792141919209.jpg
vsszan1207921419192010.jpg
vsszan1207921419192011.jpg
vsszan1207921419192012.jpg
vsszan1207921419192013.jpg
vsszan1207921419192014.jpg
vsszan1207921419192015.jpg
vsszan1207921419192016.jpg
vsszan1207921419192017.jpg
vsszan1207921419192018.jpg
vsszan1207921419192019.jpg
vsszan1207921419192020.jpg
vsszan1207921419192021.jpg
vsszan1207921419192022.jpg
vsszan1207921419192023.jpg
vsszan1207921419192024.jpg
vsszan1207921419192025.jpg
vsszan1207921419192026.jpg
vsszan1207921419192027.jpg
vsszan1207921419192028.jpg
  • 项目设计:Ángel García Estudio
  • 项目面积: 425m²
  • 项目年份:2024
  • 项目摄影:César Béjar
  • 首席建筑师:Ángel García
  • Category: Houses
  • 设计团队: Francisco Espinoza, Felipe Rebolledo, Diego Alzaga
  • 项目成市: Crucecita
  • 项目国家: Mexico
    • 转载自:Archdaily
    • 设计师:Ángel García Estudio
    • 图片©Ángel García Estudio
    • 语言:英语
    • 编辑:序赞网
    • 阅读原文
    AI文本分析中……
    AI色彩命名中……

    序赞Ai时刻等待着你的命令!~

    与Ai对话形式持续执行相关Ai智能体任务。

    95qabc2025-10-15 21:49:31

    谢谢分享!!!谢谢分享!
    您需要登录后才可以回帖 登录 | 注册序赞号

    快速回复 返回顶部 返回列表