洗心院 | 自在空间 | 2025 | 中国甘肃
vsszan204628150659011.png


在海拔三千多米的藏地之上,时间仿佛也放缓了脚步,一座由众人之愿心共同建立的静修之所伫立于静谧的山谷云雾之间,它既守护着过往的沧海桑田,也迎向洗练一新的晨光。

vsszan204628150659012.png
vsszan204628150659013.png
vsszan204628150659014.png
vsszan204628150659015.png


建筑在一处废弃多年的老油坊原址上重建而成,且保留了一堵夯土老墙,以此作为纪念。因地处环境清幽、且靠近寺院,故而在多方捐助下,营造了一处供人静修的精神栖所。建筑依山而建,面朝河谷,除藏族村民之外,鲜有游客。每年七八月是当地气候景色最好的时节,山花烂漫,绿意葱茏,山谷中云雾缭绕,雨后又是晴空万里,天若琉璃……

vsszan204628150659016.png
vsszan204628150659017.png
vsszan204628150659018.png
vsszan204628150659019.png
vsszan2046281506590110.png
vsszan2046281506590111.png
vsszan2046281506590112.png


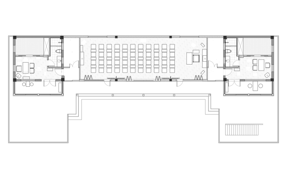
建筑呈三面围合式,分为上下二层,计四百余平方,中间设有一方院落。夯土老墙作为影壁玄关,原有破损的洞口以耐候钢板重塑为小拱门,经锈色处理后与土墙质感相融,并无违和。

vsszan2046281506590113.png
vsszan2046281506590114.png
vsszan2046281506590115.png
vsszan2046281506590116.png
vsszan2046281506590117.png


入口门厅既是空间过渡,也寓意在此处放下俗务,步入静心修行之境。内院不大,以老墙为界,春冬时节亦可阻挡风沙。院内仅有一棵从当地移栽的野生沙棘树,地面铺以河滩沙石,象征着致心一处,专心静修之意。

vsszan2046281506590118.png
vsszan2046281506590119.png
vsszan2046281506590120.png
vsszan2046281506590121.png
vsszan2046281506590122.png


穿过老墙边的锈板拱门,空间于石板小路的尽头徐徐展开。为应对高原的风沙与温差,贯通一层的长廊以幕墙封闭,白天蓄热、夜晚保温,起到温室的效果。

vsszan2046281506590123.png
vsszan2046281506590124.png
vsszan2046281506590125.png


一层起居区设有宿舍、餐厅、厨房、卫浴及茶室等功能空间,陈设简朴自然,不做多余装饰,所用材料多为当地收集老旧木料改造而成。其中最具亮点的是位于建筑东北角的茶室,三面开窗的立面制式融入藏式民居元素,围坐其间,窗外山河如画,青藏高原的壮丽之美直抵人心。

vsszan2046281506590126.png
vsszan2046281506590127.png
vsszan2046281506590128.png
vsszan2046281506590129.png


建筑的二层以混凝土框架为基础,屋檐外挑形成走廊,面向山谷视野极佳。除两间客房外,还设有一个多功能的大空间,可以共修研习之用。

vsszan2046281506590130.png
vsszan2046281506590131.png
vsszan2046281506590132.png
vsszan2046281506590133.png
vsszan2046281506590134.png
vsszan2046281506590135.png


整体建筑结合汉地唐式及藏地的传统建筑元素,尽可能就地取材,旨在将当地文化及风貌与现代生活空间的功能性加以结合,在促进本土生活方式更新的同时,为远道而来的静修者提供一方洗涤心灵的净土。正如当地的僧人秋加师傅所说,在这里不需要洗澡,而应该洗涤你的内心与灵魂……

vsszan2046281506590136.png
vsszan2046281506590137.png
vsszan2046281506590138.png
vsszan2046281506590139.png
△方案图
vsszan2046281506590140.png
vsszan2046281506590141.png

平面布局图



项目名称丨洗心院
项目地址丨甘南藏族自治州
项目面积丨400m²
设计时间丨2021年
完工时间丨2025年
设计公司丨陕西自在空间设计咨询有限公司
设计负责丨逯杰、程茹
设计助理丨史瑞静
施工主管丨来俊鹏
项目摄影丨杨磊


    • 转自:内外之间
    • 图片©自在空间
    • 编辑:序赞网
    • 阅读原文
    AI文本分析中……
    AI色彩命名中……

    序赞Ai时刻等待着你的命令!~

    与Ai对话形式持续执行相关Ai智能体任务。

    95qabc2025-10-15 18:17:16

    谢谢分享!!!谢谢分享!
    您需要登录后才可以回帖 登录 | 注册序赞号

    快速回复 返回顶部 返回列表