半日松风茶空间 | 南京拙木空间设计 | 2025 | 中国江苏



松风
“松风“作为历代文人所喜爱的典故,它指代了一种超越了单纯的听觉对象所激发的真实知觉体验——静听松风、自在闲逸。自宋以降,“松风”也指代”茶事”,象征煮茶时沸腾的如松涛般的水声。


▽入口概览© 黑曜石、李杨

vsszan204712201552301.jpg


半日松风,是位于南京谷里薛家凹的一方茶事小天地。关上园门,用心呵护这一块小小的天地,园外的一切皆付笑谈中。

▽入口细节© 黑曜石、李杨

vsszan204712201552302.jpg


前院

▽由喧嚣走向宁静© 黑曜石、李杨

vsszan204712201552303.jpg


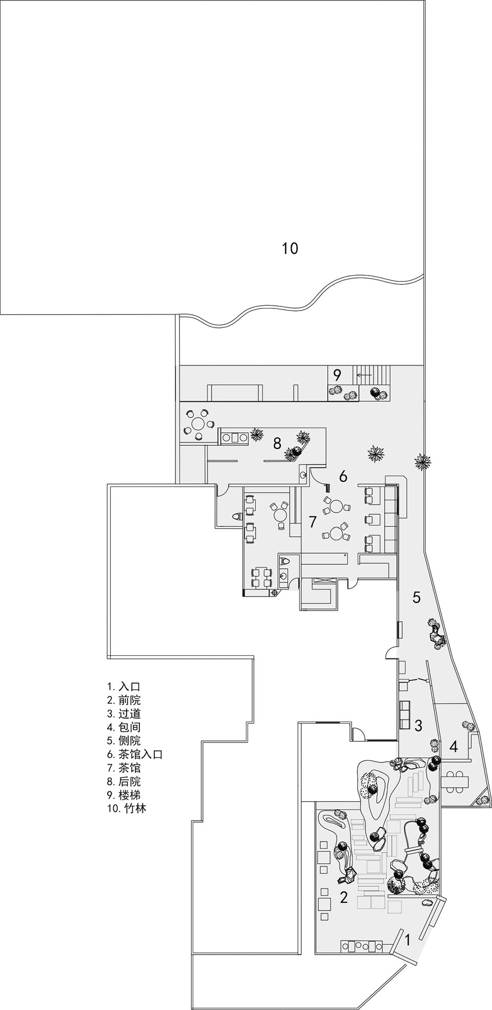
整个院落以中心区域的建筑群大致切分为四个单元:前院、侧院、后院和最北端的竹林。不同的院落,游园的重点各不相同。但他们串联在一起,是一段完整的由喧嚣走向宁静的叙事过程。

▽精致的小径© 黑曜石、李杨

vsszan204712201552304.jpg


前院山门内外入口错开,形成入门遮蔽转角。进门左侧为喝茶凉亭,它与山门连成一高一低的节奏;右侧置入松石水景,将天光水光一并纳入。

▽喝茶凉亭© 黑曜石、李杨

vsszan204712201552305.jpg


园林的灵魂在于它是按照人的意愿,庇护最大限度的宁静。在这个咫尺方圆内,将自然缩小到适宜人体的尺度,它便成为抵御现代生活侵蚀的庇护所,从而与那些寻求与自然相连接的人们共通。

▽与自然相连接© 黑曜石、李杨

vsszan204712201552306.jpg
vsszan204712201552307.jpg


侧院
前院至建筑的一侧由植被坡地蜿蜒成两条路径,一条通往工作区,另一条连接侧院直通后院的茶馆。我们将侧院入口的建筑立面打开,把原本位于室内的区域置于室外,使它成为连接两个院落的通道,引导呼吸与停留。

▽侧院空间© 黑曜石、李杨

vsszan204712201552308.jpg
vsszan204712201552309.jpg


通道东侧另设一条小径通往一旁的小茶室,小径入口处以两丛竹子留出宽不足米的间距,营造茶室的半遮敝性。中间墙体以局部镂空窑砖打开,又袒白了这条复廊的存在。

▽镂空窑砖© 黑曜石、李杨

vsszan2047122015523010.jpg

▽小茶室© 黑曜石、李杨

vsszan2047122015523011.jpg

▽空间细部© 黑曜石、李杨

vsszan2047122015523012.jpg
vsszan2047122015523013.jpg


茶馆
茶馆位于建筑北隅,其形制为坡顶双开间之格局。几处窗景以深檐口温柔包裹,既过滤掉室外强光,也确保了窗户外展的安全性。洞口内侧嵌入花格窗棂,成为捕获窗外景物的多变界面。坐于室内,光影斑驳。当人与外界进行生动的互动体验之时,才能让人理解并确信,内在的诗意营造可以超越物理的边界。

▽茶馆外观© 黑曜石、李杨

vsszan2047122015523014.jpg

▽外观细部© 黑曜石、李杨

vsszan2047122015523015.jpg
vsszan2047122015523016.jpg

▽窗户外展© 黑曜石、李杨

vsszan2047122015523017.jpg
vsszan2047122015523018.jpg

▽茶馆室内空间© 黑曜石、李杨

vsszan2047122015523019.jpg
vsszan2047122015523020.jpg

▽室内空间细节© 黑曜石、李杨

vsszan2047122015523021.jpg
vsszan2047122015523022.jpg


嵌入花板的老木头梁柱与收集来的老布彼此融合,乘物游心,它们与室内的老家具共同赋予了空间中的古老灵趣。人们对一处景致的沉浸与玩味,实质上是人们在建筑空间中寻求自我认同和情感寄托的过程。

▽墙体开窗© 黑曜石、李杨

vsszan2047122015523023.jpg
vsszan2047122015523024.jpg
vsszan2047122015523025.jpg

▽乘物游心© 黑曜石、李杨

vsszan2047122015523026.jpg

▽小走廊空间© 黑曜石、李杨

vsszan2047122015523027.jpg
vsszan2047122015523028.jpg

▽靠窗座位© 黑曜石、李杨

vsszan2047122015523029.jpg

▽家具细部© 黑曜石、李杨

vsszan2047122015523030.jpg
vsszan2047122015523031.jpg

▽收集的老物件© 黑曜石、李杨

vsszan2047122015523032.jpg
vsszan2047122015523033.jpg


后院
后院初始状态为典型的乡村土坡地形,其坡势偏陡,这种自然地貌在一定程度上限制了场地功能的多样性与使用舒适度,同时也对空间的整体营造形成了挑战。我们针对坡地局部实施填平处理,以此构建出观景与休憩平台。填平后的平台与北侧的竹林形成拔地而起的姿态,创造出一种垂直向上的空间张力。同时利用原本场地中五棵树的界定,分出了围墙区域、庭院小景和休息区,从而制造出一些水平游移的视点。以树来界定人物活动,它提供了自然的边界和参照,而人终究是自然的尺度。

▽后院概览© 黑曜石、李杨

vsszan2047122015523034.jpg

▽户外座区© 黑曜石、李杨

vsszan2047122015523035.jpg
vsszan2047122015523036.jpg


竹林
相较于前院所呈现的具有某些规制特征的园林范式,后院竹林则全然是一种挣脱既定范式、回归自然本真状态的存在。

▽竹林景观© 黑曜石、李杨

vsszan2047122015523037.jpg
vsszan2047122015523038.jpg


竹林,自魏晋时期以降,便始终承载着各个时代文人雅士所追求的隐逸自由精神,成为一种跨越时空的文化符号与精神寄托。

▽隐逸的氛围© 黑曜石、李杨

vsszan2047122015523039.jpg
vsszan2047122015523040.jpg


当游览者从前院步入后院竹林,所经历的游玩体验,是一场从古典园林所代表的精致典雅,迈向田园牧歌式自然空间的过渡;是从前院所蕴含的文人雅趣,转向后院竹林所独有的质朴野趣的转变过程。于此,场地所流淌的生命活力才是人能够获得精神愉悦的来源。

▽平面布局图© 南京拙木空间设计

vsszan2047122015523041.jpg


项目名称:闭门即是深山-半日松风茶空间设计
设计公司:南京拙木空间设计
设计主创:吴媛媛
设计团队:吴媛媛、员媛
设计范围:建筑改造、庭院设计、室内设计
施工时间:2025.02-2025.09
施工单位:南京斌赢装饰工程有限公司
项目地址:南京谷里薛家凹
建筑面积:室内200㎡,庭院1000㎡
摄影版权:黑曜石、李杨
主要材质:窑砖、旧木、艺术涂料、水洗石

AI文本分析中……
AI色彩命名中……

序赞Ai时刻等待着你的命令!~

与Ai对话形式持续执行相关Ai智能体任务。

syhgdesign2025-10-20 17:45:39
感谢楼主辛苦分享  
95qabc2025-10-20 18:40:34

谢谢分享!!!谢谢分享!
您需要登录后才可以回帖 登录 | 注册序赞号

快速回复 返回顶部 返回列表