栖心于木 | 蔡海安 | 2025 | 中国广东
vsszan204716210005321.png
Ai图片分析,需要登录阅读

"
这是一间先生为太太筑的爱巢

112平,4房改2房

先生找到设计师的时候

明确表示希望能够给太太一个她想要的家
vsszan204716210005322.png
Ai图片分析,需要登录阅读

01

COHERENCE

连 贯

设计以四大功能区为出发点,通过整合与拆改提升空间利用率。打破传统分区,通过融合与扩充,优化了入户动线和厨房操作空间的连贯性。
vsszan204716210005323.png
Ai图片分析,需要登录阅读
vsszan204716210005324.png
Ai图片分析,需要登录阅读

入户玄关的弧形切面,像张开的怀抱。无时无刻在等待晚归的他,悬空离地的设计,给予空间更多的放松与呼吸感。
vsszan204716210005325.png
Ai图片分析,需要登录阅读

vsszan204716210005326.png
Ai图片分析,需要登录阅读

vsszan204716210005327.png
Ai图片分析,需要登录阅读

温暖的姜黄色涂料,从玄关顶面一直延伸至客厅,引导人走向阳台的木盒子。坐下来抚摸阳光,或者,打开生活收纳的琐碎。
vsszan204716210005328.png
Ai图片分析,需要登录阅读

vsszan204716210005329.png
Ai图片分析,需要登录阅读

vsszan2047162100053210.png
Ai图片分析,需要登录阅读
vsszan2047162100053211.png
Ai图片分析,需要登录阅读

厨房狭小拥挤,设计师巧妙地增加入户换鞋凳的同时,通过地面材质重新划分了厨房空间。将厨房扩大了近60公分,实现了大冰箱、洗碗机,子母门背后还隐藏小电器收纳。
vsszan2047162100053212.png
Ai图片分析,需要登录阅读
vsszan2047162100053213.png
Ai图片分析,需要登录阅读

02

INTERACTION

互 动

从鞋柜延伸至餐厅转角,做了大量的收纳系统,补充厨房的收纳不足。悬臂吊灯既是餐厅照明,移动转向后也是沙发氛围光。
vsszan2047162100053214.png
Ai图片分析,需要登录阅读

vsszan2047162100053215.png
Ai图片分析,需要登录阅读

小小的圆桌汇聚的是家,是爱。餐厨互动之间,能想象到业主入住后的场景。
vsszan2047162100053216.png
Ai图片分析,需要登录阅读

vsszan2047162100053217.png
Ai图片分析,需要登录阅读
03

CONVERSION

转 化

地面抬高后的阳台,看起来是一个木盒子,但内部暗藏玄机。序列孔洞的折叠门背后,隐藏着洗烘套装,以及家政收纳。家的设计,不仅仅要解决好用,更要解决的是好看。

vsszan2047162100053218.png
Ai图片分析,需要登录阅读
vsszan2047162100053219.png
Ai图片分析,需要登录阅读
vsszan2047162100053220.png
Ai图片分析,需要登录阅读

拆除相邻卧室,将单一空间转化为集电视观看、阅读、收纳于一体的多功能活动区,满足日常互动需求。以及留白的空间给予日后更多的成长可能性。
vsszan2047162100053221.png
Ai图片分析,需要登录阅读

vsszan2047162100053222.png
Ai图片分析,需要登录阅读

04

RELAXATION

放 松

改造后的主卫特别不同,弧形的设计让空间多了柔和。墙面渐变马赛克和顶面赭红色涂料呼应,让睡眠空间更放松。
vsszan2047162100053223.png
Ai图片分析,需要登录阅读

vsszan2047162100053224.gif
Ai图片分析,需要登录阅读

vsszan2047162100053225.png
Ai图片分析,需要登录阅读

vsszan2047162100053226.png
Ai图片分析,需要登录阅读

vsszan2047162100053227.png
Ai图片分析,需要登录阅读

vsszan2047162100053228.png
Ai图片分析,需要登录阅读

同时将主卧与客卧打通,设计成宽敞的衣帽梳妆空间,满足太太的日常需求。
vsszan2047162100053229.png
Ai图片分析,需要登录阅读

vsszan2047162100053230.png
Ai图片分析,需要登录阅读

vsszan2047162100053231.png
Ai图片分析,需要登录阅读

vsszan2047162100053232.png
Ai图片分析,需要登录阅读

奶油色铺满的客卫,藏着的是清爽,是惬意。洗漱收纳之间,能想象到业主使用时的舒心场景。
vsszan2047162100053233.gif
Ai图片分析,需要登录阅读

从镜柜延伸至台面角落,做了隐形的收纳系统,补充日常备品的收纳。温柔的奶油底色,搭配胡桃木点缀,让每一次使用都更放松。
vsszan2047162100053234.png
Ai图片分析,需要登录阅读

05
ANALYSIS DIAGRAM
分析图

vsszan2047162100053235.png
Ai图片分析,需要登录阅读

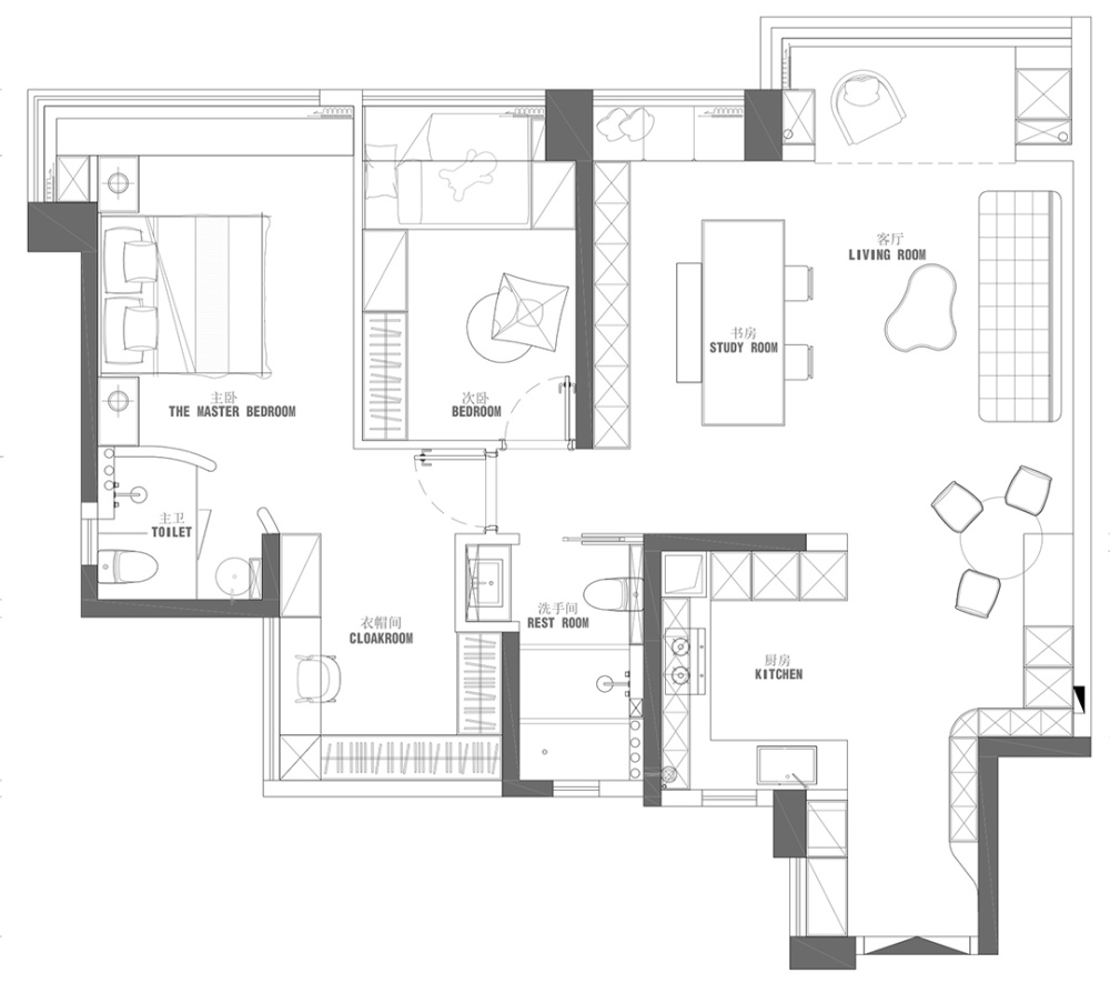
平面图

  • 项目名称 - 栖心于木
  • 设计机构 - 白菜适家空间设计
  • 总设计师 - 蔡海安
  • 项目面积 - 112m²

vsszan2047162100053236.png
Ai图片分析,需要登录阅读

蔡海安

白菜适家创始人 & 总设计师

vsszan2047162100053237.png
Ai图片分析,需要登录阅读

白菜适家发力于珠海中山,扎根粤港澳大湾区城市群,16年来坚持以实景案例宣传,专注于理想生活模式的研究,以及人与空间关系的设计工作,满足人在空间中希望实现的精神诉求,努力成为粤港澳大湾区品质生活模式和舒适空间环境的创作者和实现者,帮助大湾区1000+精英业主,完成从理想生活创想到理想生活实现的美好愿景。

  • 转自:LJ看设计
  • 图片©LJ看设计
  • 编辑:序赞网
  • 阅读原文

Ai 分析中……

暂无用户创作记录!~

记录用户以此项目图片为灵感使用Ai进行二次创作。

暂时没有评论,你回一个呗!~

您需要登录后才可以回帖 登录 | 注册序赞号

快速回复 返回顶部 返回列表