Olivino艺术餐厅 | 无设建筑 | 2025 | 中国上海


餐厅项目坐落在上海油罐艺术中心,原建筑主体临靠黄浦江畔,由OPEN建筑事务所于2019年设计完成。2024年,建筑师顾忆基于对原建筑精神的理解,将一座中立、冷静、自由的展览空间,通过克制、尊重与融合的设计手法,转译成为一个具有自然互动性、充满情感的体验空间。


▽鸟瞰© 山间影像

vsszan204770211124521.jpg
Ai图片分析,需要登录阅读
vsszan204770211124522.jpg
Ai图片分析,需要登录阅读
vsszan204770211124523.jpg
Ai图片分析,需要登录阅读



俯瞰这片钢结构交织的穹顶,可窥见一方温暖的人间烟火。冷峻的金属线条切割着夜空,却围合出一桌桌丰盛的晚餐——玻璃杯折射着柔光,人影在暖色调的灯光中晃如油画的笔触。工业的理性与餐食的温情在此间方格中,形成一场奇妙的对话。也在开阔与丰盈中,完成了一次关于空间属性、记忆与情感转化的实践。


▽屋顶鸟瞰© 山间影像

vsszan204770211124524.jpg
Ai图片分析,需要登录阅读

▽屋顶细节© 山间影像

vsszan204770211124525.jpg
Ai图片分析,需要登录阅读
vsszan204770211124526.jpg
Ai图片分析,需要登录阅读



从“白盒子”到“情感容器”,是“对话而非覆盖”
无论“展览”还是“餐饮”,两者在“体验”层面的共通性,都希望为使用者提供一段脱离日常的,且富有感染力的美好时光。设计的理念,从功能的更迭,转至情感的续写。尊重与保留原建筑中的工业基因,是本项目中改造的叙事底色。作为一个定位于米其林级别的餐厅项目,在填入其必要的餐饮功能同时,如何共融工业感、精致化及舒适体验之间的有效尺度,是设计的另一处发声。


▽建筑原貌© 山间影像

vsszan204770211124527.jpg
Ai图片分析,需要登录阅读
vsszan204770211124528.jpg
Ai图片分析,需要登录阅读

▽建筑与城市的对话© 山间影像

vsszan204770211124529.jpg
Ai图片分析,需要登录阅读



原建筑体没有隔断,块面明朗。排列有序的天窗是整幢建筑的特点,我们在原有天窗的基础上对结构进行了优化,并借此隐藏照明线路及空调管道。在解决防水保温的同时,强化了顶面的视觉效果。


▽富有感染力的室内空间© 山间影像

vsszan2047702111245210.jpg
Ai图片分析,需要登录阅读
vsszan2047702111245211.jpg
Ai图片分析,需要登录阅读



两扇玻璃旋转门将室内与廊下灰空间一分为二。为扩容餐厅的使用面积,面朝橄榄树林与黄浦江畔的这片廊下灰空间被合理收编,成为宏大的工业骨架中,描绘北欧设计精神中功能、自然与温暖的一幅流动的框景。


▽宏大的工业骨架© 山间影像

vsszan2047702111245212.jpg
Ai图片分析,需要登录阅读
vsszan2047702111245213.jpg
Ai图片分析,需要登录阅读



我们保留了其中的一扇旋转门,将其改建为一个瓶状的玻璃酒窖,成为空间里的第一视觉中心。在狭长的建筑体里,圆形结构不仅起到调和的作用,也意在打通内外两个空间。整个场域没有立柱,入口处支起的一座长柄倒挂的铜炉,与玻璃酒窖形成一实一虚的两个圆。同时,铜炉不仅可用于食物的烘烤,冬日里亦可起碳生火,让客人体验一室温暖,岁有小安的融融之乐。


▽瓶状玻璃酒窖© 山间影像

vsszan2047702111245214.jpg
Ai图片分析,需要登录阅读

▽临窗座区© 山间影像

vsszan2047702111245215.jpg
Ai图片分析,需要登录阅读
vsszan2047702111245216.jpg
Ai图片分析,需要登录阅读
vsszan2047702111245217.jpg
Ai图片分析,需要登录阅读



光影叙事:塑造空间的第四维度
光,是本项目中无可争议的主角。在日与夜的更替中,首先得益于巨大采光面的建立,使自然光成为空间中最活跃的动态元素。人工光照则在暮色的冉冉升起中接力,继续完成戏剧性的诗篇。


▽光影叙事© 山间影像

vsszan2047702111245218.jpg
Ai图片分析,需要登录阅读



两个室内空间的顶面保留原有的结构与天窗,与一侧新增的格栅玻璃窗共同构成了一个精微的采光系统。自然光就此被巧妙地“邀请”进来,作为连接室内外的媒介。白天,阳光成为空间的主照明。在不同时段、不同天气的幻变下,渲染出或明媚、或朦胧的情绪氛围,使餐厅成为一个与自然共呼吸的生命体。


▽精微的采光系统© 山间影像

vsszan2047702111245219.jpg
Ai图片分析,需要登录阅读
vsszan2047702111245220.jpg
Ai图片分析,需要登录阅读

▽优雅的光影效果© 山间影像

vsszan2047702111245221.jpg
Ai图片分析,需要登录阅读
vsszan2047702111245222.jpg
Ai图片分析,需要登录阅读

▽用餐区© 山间影像

vsszan2047702111245223.jpg
Ai图片分析,需要登录阅读
vsszan2047702111245224.jpg
Ai图片分析,需要登录阅读

▽包间区© 山间影像

vsszan2047702111245225.jpg
Ai图片分析,需要登录阅读
vsszan2047702111245226.jpg
Ai图片分析,需要登录阅读



夜幕降临,倘若此时你站在橄榄树林下,望向面前透着暖光的烟火人间,再喧嚣的尘世也会悄然的宁静下来。再一看,顶面仿佛生出数个倒立的金字塔,优雅且神秘的屹立于天际。低悬的吊灯在桌面形成亲密的聚光圈,强化用餐时的私密性与仪式感。


▽用餐区细部© 山间影像

vsszan2047702111245227.jpg
Ai图片分析,需要登录阅读



内外之间:重构艺术的观演关系
面对开阔的挑空,设计通过巧妙的功能布局和家具组合来划分区域,创造出身处大空间中的小聚落感。排列规整的餐桌椅,既营造出仪式般的秩序感,又确保每位客人都能享有开阔的江景,同时感受到空间的通透性与流动感。


▽仪式般的秩序感© 山间影像

vsszan2047702111245228.jpg
Ai图片分析,需要登录阅读
vsszan2047702111245229.jpg
Ai图片分析,需要登录阅读



青草地、橄榄树林、往来的行人、江面的船只、天空的流云、对岸高耸的建筑天际线……巨大的格栅玻璃将这些动静相宜的画面定格为一幅幅动态的影壁,也由此成为餐厅内最珍贵的艺术陈设。在开阔且丰盈的内外之间,体验已不止于用餐本身。城市、艺术、生活、自然、诗性,在重构与重塑中继续其“展示”与“启发”的使命。


▽夜景© 山间影像

vsszan2047702111245230.jpg
Ai图片分析,需要登录阅读
vsszan2047702111245231.jpg
Ai图片分析,需要登录阅读
vsszan2047702111245232.jpg
Ai图片分析,需要登录阅读

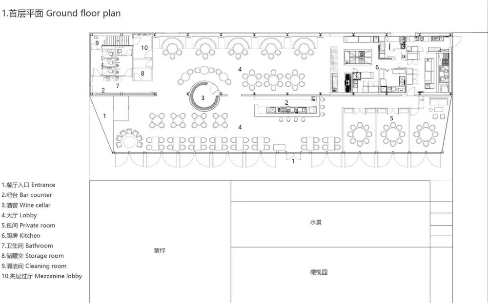
▽首层平面© 无设建筑

vsszan2047702111245233.jpg
Ai图片分析,需要登录阅读

▽夹层平面© 无设建筑

vsszan2047702111245234.jpg
Ai图片分析,需要登录阅读
vsszan2047702111245235.jpg
Ai图片分析,需要登录阅读
vsszan2047702111245236.jpg
Ai图片分析,需要登录阅读
vsszan2047702111245237.jpg
Ai图片分析,需要登录阅读


项目信息
项目名称:Olivino艺术餐厅
室内设计:无设建筑
主创设计师:顾忆
设计团队:苏美娜、秦俊飞、欧书琴
项目地址: 上海
设计内容:室内
项目面积:626㎡
完工日期:2025年5月
项目类型:商业餐饮
主要材料:艺术漆,金属板,手工砖、金箔
空间摄影:山间影像
空间视频:Y³STUDIO外立方空间影像

Ai 分析中……

暂无用户创作记录!~

记录用户以此项目图片为灵感使用Ai进行二次创作。

95qabc昨天 19:23
谢谢分享!!!谢谢分享!
您需要登录后才可以回帖 登录 | 注册序赞号

快速回复 返回顶部 返回列表