梧桐下的老别墅 | 白东旭 x 焦恒|2025 | 中国上海
vsszan204856250017171.png
vsszan204856250017172.png



夏日的午后,时光仿佛也踱着步,变得悠长而缓慢。人坐在厅里,与庭院只隔着一道玻璃,视线便被这篱笆轻轻拢住了。远处那一片树木,挨挨挤挤的,树冠连成一片,像流动的绿云,在微风中轻轻晃荡。目光向下,庭院里生着极好的青苔,绒绒的,砂石从苔缝间露出头来,衬得那绿更沉、更静了。


△项目视频


人在室內,心却与自然相通,既感受到了庭院深处永恒的静寂,也捕捉到了光影在墙上瞬息万变的舞蹈,充满了闲适、观察的乐趣和一丝物哀之美。


vsszan204856250017173.png
vsszan204856250017174.png



这是一处已经浸润了20年光阴的老别墅,位于上海嘉定,空间居住着一对阅历丰富的夫妇,他们全球旅行,偶尔回来居住。他们不想要一个样板式的生活,而是希望这个家能在现代的舒适便捷中,生长出古朴、温润的时代气息。于是,设计师主导了从建筑结构到庭院园林,再到室内空间的一体化重塑,意在让老宅获得全新的灵魂。


vsszan204856250017175.png
vsszan204856250017176.png



褪去老房原先的陶土色外壳,换上简约而宁静的白色外墙。墙面在阳光下泛着细微暖意,让整座建筑瞬间变得明亮、安静且当代,当阳光照在路边那棵高大的梧桐树上,光影便开始了它的创作。枝叶的疏密、摇曳的姿态,被光线精准地捕捉,再放大、投射到这巨幅的“画纸”之上。春夏是葱郁婆娑的绿影,秋冬是枝桠疏朗的墨韵。风是画笔,光则是颜料,每一刻的画面都不相同,建筑也有了表情。


vsszan204856250017177.png
vsszan204856250017178.png



老旧的窗被置换为极窄边框的现代窗,不仅提升了保温与静谧,更将光线与景致最大限度地引入室内。室内与室外的界限,因此而变得模糊而诗意。
原先建筑中间连接上下、略显笨重臃肿的弧形结构体,也被巧妙地重新分割与塑造。用利落的直线条将其打破,极大地增强了建筑的结构感和几何美感,在白色的主体上勾勒出有力而现代的轮廓。


vsszan204856250017179.png
vsszan2048562500171710.png



这座经历了二十年的老宅,完成了一场彻底的蜕变。它从过去那种模糊、疲惫的状态变得明亮、挺拔、轮廓清晰,以一种自信而沉静的姿态等待着主人的每一次归来。


vsszan2048562500171711.png
vsszan2048562500171712.png



步入家门,是一曲由三段弧形墙体奏响的、充满韵律的空间序章。这三道柔和的弯墙,优雅地、彼此留有分寸地错落布置,留下了让光线与空气自由穿梭的“呼吸之隙”。它们共同界定出玄关的领域,却又以一种邀请的姿态,暗示着后方空间的无限可能。


vsszan2048562500171713.png
vsszan2048562500171714.png



正对大门的那一段弧墙,上方,一个不规则的圆洞像充满现代感的“月亮门”,人的目光会不由自主地被其吸引,穿过这个洞孔,恰好能窥见庭院一角的风光。孔洞之下是氛围壁炉,炉火跃动,温暖的火焰与洞孔外清冷的庭院景致形成一重绝妙的对比,既是温暖的迎接,也是诗意的对话。


vsszan2048562500171715.png
vsszan2048562500171716.png



左侧的弧墙,下方是嵌入墙体的收纳柜,完美隐藏了玄关的琐碎,柔和的拱形门洞,不仅保证了空间视觉上的穿透与连贯,其本身圆润的造型也成为了一个巨大的艺术装置,行走其间,仪式感油然而生。
另一侧的墙体将餐边柜与电视柜的功能整合于一体,形成一面完整而强大的功能立面,保证了公共区域的整洁与统一。


vsszan2048562500171717.png
vsszan2048562500171718.png



三段墙体隔而不断,在完成玄关过渡、空间分区、收纳储物这些实用功能的同时,更塑造了光影、引导了视线、营造了意境,让归家的第一刻便发现了生活的乐趣。


vsszan2048562500171719.png
vsszan2048562500171720.png



圆形客厅是整个家的景观内核,整面优雅的曲面落地玻璃将整个庭院的青苔、砂石、梧桐树影,毫无保留地“借”了进来。Edra的白色“云朵”沙发,以柔软的姿态安静地卧于墙边,奠定了空间轻盈、舒适又充满现代艺术感的氛围。


vsszan2048562500171721.png



无论是晨间的一杯咖啡,午后的一本闲书,还是黄昏时分什么都不做的发呆,在这里,人都能与窗外的景、与自己的内心,展开一场安静而深入的对话。


vsszan2048562500171722.png
vsszan2048562500171723.png
vsszan2048562500171724.png



开放一体的西厨吧台与餐厅区域,空间流畅地过渡,功能悄然地转换,保证了家庭互动与视线上的开阔贯通。西厨操作台面上的长条窗将庭院绿意引入烹饪空间,自然的静谧与灶火的温暖相互交融,人间烟火也充满诗意气息。


vsszan2048562500171725.png
vsszan2048562500171726.png
vsszan2048562500171727.png



用餐区被赋予了更极致的观景体验,一整面巨大的落地玻璃窗,毫无保留地将庭院景致完全纳入室内,仿佛餐厅本身就坐落在庭院之中。竹篱笆以一种东方美学的含蓄方式,勾勒出庭院的边界,将人的注意力更多地引向树木的枝梢与天空的光影。


vsszan2048562500171728.png
vsszan2048562500171729.png
vsszan2048562500171730.png
vsszan2048562500171731.png
vsszan2048562500171732.png



整个公共空间被自然环绕,生活在景中,心境归于自然。晨光中的早餐,露珠在青苔上闪烁;午后的茶歇,看阳光筛过树影;夜晚有竹篱的剪影和柔和的庭院灯光为伴,四季更迭,晴雨风雪,皆成为佐餐的、最美妙的风景。


vsszan2048562500171733.png
vsszan2048562500171734.png
vsszan2048562500171735.png
vsszan2048562500171736.png



过去的荒芜被精心梳理,转化为一方充满禅意的冥想花园。设计师用竹篱重新定义边界,视线掠过矮墙,恰好只能看见几株老树或新栽的乌桕、枫树的树冠,在空中形成一片绿色的凉荫。地面则覆盖了茸茸的青苔,深色的砾石铺就。一方小院映照四时风光,雨打青苔,廊下饮茶,皆为风景。


vsszan2048562500171737.png
vsszan2048562500171738.png
vsszan2048562500171739.png



寻阶而上,楼梯以一种轻盈、简约的姿态倚着窗墙,干净利落,没有多余的赘饰。每当阳光穿过玻璃,便成了一场与光共舞的仪式,脚步移动,光斑便在脚下闪烁、跳跃。它不仅是一个功能性的通道,更是一个充满仪式感的过渡空间,让人在身体向上攀登的同时,心境也随着闪烁的光影,逐渐从一楼的公共与开放,收敛、沉淀至二楼的私密与宁静。


vsszan2048562500171740.png
vsszan2048562500171741.png
vsszan2048562500171742.png
vsszan2048562500171743.png



沿着楼梯步入二层,便进入了更为私密的休憩领域,主卧空间是最为安宁和诗意的精神角落。床头的背景墙,是整个空间的定调之笔。深色的木料构筑成一个个复古的方格,当光线从侧面流淌过来,会在这些木格的凹凸与棱线上停留、切割,形成丰富而柔和的光影层次,自带一种沉静的、带有岁月温度的故事感,仿佛能抚平一切喧嚣,将人温柔地包裹进一个安宁的梦境。


vsszan2048562500171744.png
vsszan2048562500171745.png
vsszan2048562500171746.png



临窗的阅读与工作角落,一整面巨大的落地玻璃窗,午后最常见的景象便是光斑筛在书桌上、窗帘上,在这里伏案,心情也会随着这些跳跃的光斑变得轻盈而静谧。


vsszan2048562500171747.png
vsszan2048562500171748.png



卫浴空间里洁白独立的弧形浴缸,最为诗意与梦幻,户外的梧桐树影投在整个玻璃窗上,光影婆娑,真实与虚幻、室内与室外、光影与树影在此刻完美交融,营造出一种极度浪漫、静谧而梦幻的沉浸体验。


vsszan2048562500171749.png
vsszan2048562500171750.png
vsszan2048562500171751.png




这是一个能安放所有情绪的卧室,既有木格带来的岁月沉淀,又有光影写就的日常诗意,更有浴缸窗前那超越现实的梦幻时刻。它完美诠释了栖息于自然,沐浴于时光。


vsszan2048562500171752.png
vsszan2048562500171753.png
vsszan2048562500171754.png



在这个家里,时间仿佛被施了魔法,拥有了另一种流速。它不催促人,只是静静地陪伴,人却总是不自觉地被室内室外流动的画卷所吸引。它让忙碌的旅人终于可以停下脚步,让纷扰的内心重归澄澈。在这个由光影与木质共同编织的怀抱里,每一次呼吸,都是一次治愈。


vsszan2048562500171755.png
vsszan2048562500171756.png
vsszan2048562500171757.png



当温暖的灯光次第亮起,透过那极简的窗框,室内温润的木色与洁白的墙面,宛如一个即将开场的小小舞台。那面作为“画纸”的白墙,如今映出了家的剪影:人影走动,杯盏轻碰,生活的暖意,如同剧幕中最温馨的桥段,在其上安静地上演。所有的光影、线条、器物,都在夜色中沉淀下来,共同守护着这一方天地里的温暖与安宁。


vsszan2048562500171758.png
vsszan2048562500171759.png
vsszan2048562500171760.png

vsszan2048562500171761.png


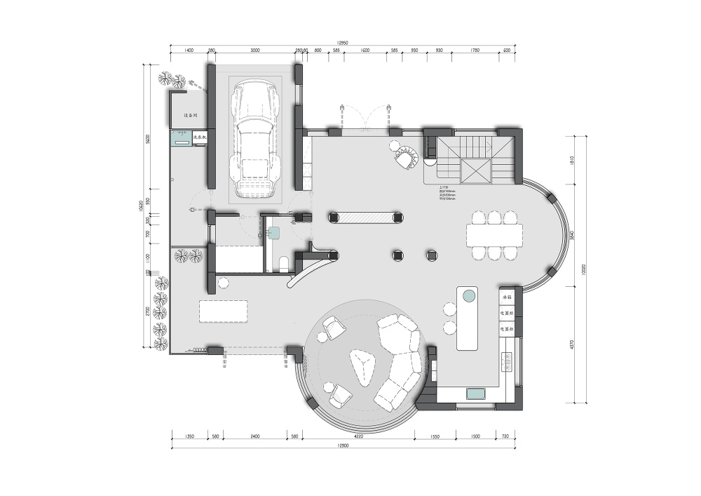
△ 1F


vsszan2048562500171762.png


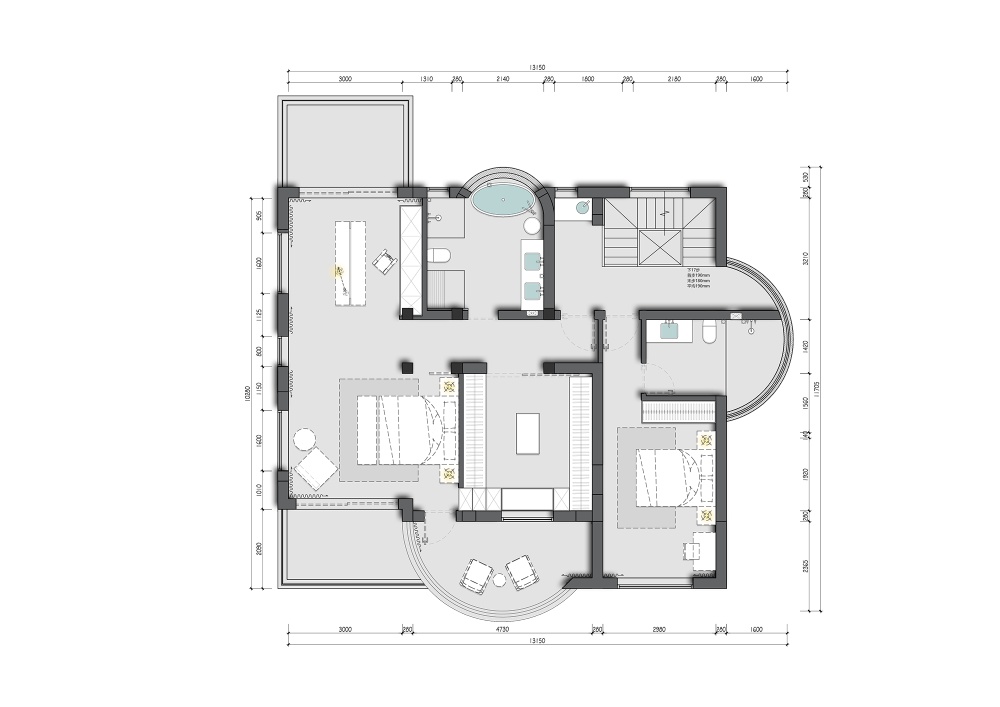
△ 2F



项目名称|梧桐下的老别墅
设计范围丨花园、建筑、室内
项目地点|中国 上海
完工时间|2025年8月
项目施工|尚层别墅装饰上海浦西分公司
主创设计|白东旭 焦恒
设计团队|陈光梅 周小青 燕先平 唐子琦 杨斌斌 连雨洁 李旭阳
软装设计|乔平
园林设计|倚庭景观
项目摄影|阿刁
品牌策划|回响之外


vsszan2048562500171763.png

业主(左)、焦恒(中)、白东旭(右)


白东旭

卓越的设计源于功能与形式的和谐。它不仅止于“能用”,更追求“好用”与“美”的平衡,最终目的是创造一种有温度的连接,自然而然地触动人心。

焦恒

专注于私宅研究坚持“设计/生活/美学/极致”的理念以人为本、用设计平衡艺术诗性与功能主义在追求极致中 不断跨越边界 保持着前瞻性与创新性将世间细微的美好承接进生活


    • 转自:环球设计
    • 图片©白东旭 x 焦恒
    • 编辑:序赞网
    • 阅读原文
    AI文本分析中……
    AI色彩命名中……

    序赞Ai时刻等待着你的命令!~

    与Ai对话形式持续执行相关Ai智能体任务。

    95qabc2025-10-25 16:58:37

    谢谢分享!!!谢谢分享!
    ppap7772025-10-25 21:53:25
    感谢分享!!感谢分享!!
    syhgdesign2025-10-26 03:31:01
    感谢楼主辛苦分享
    您需要登录后才可以回帖 登录 | 注册序赞号

    快速回复 返回顶部 返回列表