解构主义住宅 | 锵设计 | 2025 | 中国浙江
vsszan205048040059401.gif
vsszan205048040059402.jpeg
vsszan205048040059403.jpeg
vsszan205048040059404.jpeg
vsszan205048040059405.png
vsszan205048040059406.png
vsszan205048040059407.png

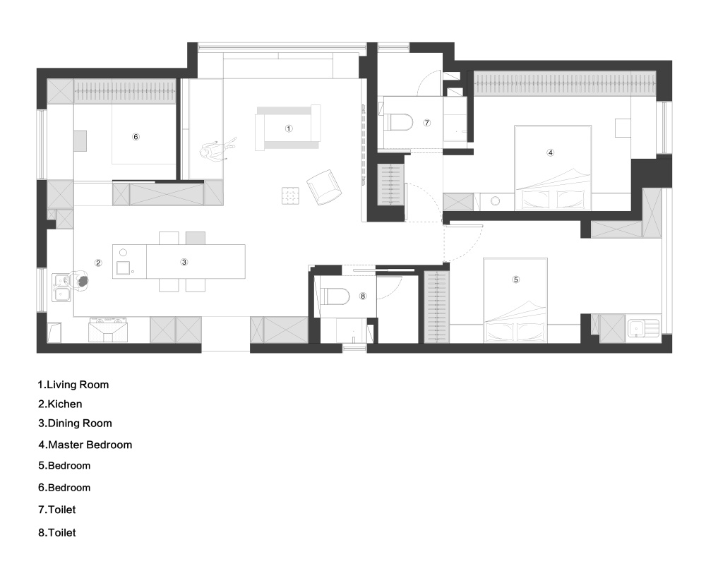
空间平面



在100平方米的有限框架内,满足三代人的居住需求,是对设计的首要考验。我们摒弃常规的区隔,转而运用建筑解构主义手法,将整体空间进行精准的切割与重组。材质,成为定义功能的无声语言;视线,在连贯的布局中自由流动,创造出远超物理面积的空间体验。


vsszan205048040059408.png
vsszan205048040059409.png



在100平方米的有限框架内,满足三代人的居住需求,是对设计的首要考验。我们摒弃常规的区隔,转而运用建筑解构主义手法,将整体空间进行精准的切割与重组。材质,成为定义功能的无声语言;视线,在连贯的布局中自由流动,创造出远超物理面积的空间体验。


vsszan2050480400594010.png
vsszan2050480400594011.png



黄铜地面以温润的光泽,界定了归家的第一步,与两侧的收纳墙体共同谱写空间的仪式感序曲。


vsszan2050480400594012.png
vsszan2050480400594013.png



我们深信,材质本身会说话。在这个家中,它们共同撰写了一部细腻的感官日记。


vsszan2050480400594014.png
vsszan2050480400594015.png
vsszan2050480400594016.png
vsszan2050480400594017.png
vsszan2050480400594018.png
vsszan2050480400594019.png



餐厅地面特选的“金砖”,将随着岁月流逝愈发油润,记录生活的痕迹。上方的木纹吊顶,以温暖的体感向下包裹,营造出亲密舒适的围合感。功能上,岛台、收纳与电器完美整合,体现了现代生活的效率美学。



vsszan2050480400594020.png
vsszan2050480400594021.png
vsszan2050480400594022.png
vsszan2050480400594023.png
vsszan2050480400594024.png
vsszan2050480400594025.png
vsszan2050480400594026.png
vsszan2050480400594027.png
vsszan2050480400594028.png
vsszan2050480400594029.png



打破传统,以定制的结构性卡座沙发取代成品家具,最大化收纳与空间利用率。居中的模块化金属茶几,内嵌生态植物缸,是功能与生机的巧妙融合。电视背景墙的银色金属板,则以冷静的笔触,强化了空间的构筑感。


vsszan2050480400594030.png
vsszan2050480400594031.png
vsszan2050480400594032.png
vsszan2050480400594033.png
vsszan2050480400594034.png
vsszan2050480400594035.png


空间的最高亮点,在于“十字光域”与“现浇水泥”的戏剧性对话。这并非简单的造型,而是一次关于材质神性的探索。光,柔化了混凝土的冷峻;混凝土,则赋予了光以形体与重量。二者共同塑造了一个充满精神性的场域,成为家的情感焦点。


vsszan2050480400594036.png
vsszan2050480400594037.png
vsszan2050480400594038.png
vsszan2050480400594039.png
vsszan2050480400594040.png
vsszan2050480400594041.png



主卧采用“黑色星空”背景墙,点缀零星光源,营造深邃静谧的睡眠氛围。半开放式卫浴设计,在保障功能与隐私的同时,维持了空间的通透。


vsszan2050480400594042.png
vsszan2050480400594043.png
vsszan2050480400594044.png
vsszan2050480400594045.png



次卧则通过布艺与木艺的几何拼接,在光影的雕琢下,营造出沉稳而充满温度的就寝环境。


vsszan2050480400594046.png
vsszan2050480400594047.png
vsszan2050480400594048.png
vsszan2050480400594049.png



最终,这个家如同一件精致的乐器。水泥的沉稳是低音,金属的清鸣是高音,木质的温润是中旋律,而金砖则随着时光奏出变奏。它们在各司其职中相互交融,最终鸣响为一曲名为「生活」的、历久弥新的动人乐章。


vsszan2050480400594050.png
vsszan2050480400594051.png



项目信息
项目名称|磐 - PAN RESONANCE
项目类型|住宅空间
项目地址|浙江 温州
项目时间|2024
项目面积|100㎡
设计公司|锵设计
主持设计|王锵力   
团队参与|池浩然、韩俊浩
公司网站|www.qiangid.com
主要材料|金砖/雾面金属/橡木/现浇水泥
空间摄影|张家宁


    • 转自:纯氧设计馆
    • 图片©锵设计
    • 编辑:序赞网
    • 阅读原文
    AI文本分析中……
    AI色彩命名中……

    序赞Ai时刻等待着你的命令!~

    与Ai对话形式持续执行相关Ai智能体任务。

    暂时没有评论,你回一个呗!~

    您需要登录后才可以回帖 登录 | 注册序赞号

    快速回复 返回顶部 返回列表