Z宅 | Y+Y Studio | 2025 | 中国北京



Z宅位于北京远郊,是建筑师为其父母设计的养老住宅。该项目将一处废弃的院子改造更新,并将微型农耕与园艺融入生活日常。


▽航拍© 朱润资


vsszan205077051736141.jpg
vsszan205077051736142.jpg



倚靠大华山镇绿植覆盖的山丘,Z宅以细腻的方式更新了原有结构,将民间建筑遗产重置于当代生活的语境下:从对其材料特性与结构逻辑的延续,到对“小院”类型中生活功能的重新编排,皆扎根现实、并为当下生活带来新的诗意。


▽场地地图© Y+Y Studio

vsszan205077051736143.jpg

▽入院门© Yiran Zhang

vsszan205077051736144.jpg

▽庭院花园© 朱润资

vsszan205077051736145.jpg

▽庭院花园与山楂树© 朱润资

vsszan205077051736146.jpg

▽菜园与厨房© 朱润资

vsszan205077051736147.jpg

▽正房檐廊© 朱润资

vsszan205077051736148.jpg

▽庭院日暮时分© 朱润资

vsszan205077051736149.jpg



场地中央30米高的椿树构成一种“引力中心”:北倚长屋、南抱合院,它的气场引导着周围的动线、视野与日常活动。项目本质上是一场平面上的再平衡,重新织合点与域、动与静、全景与框景……在一场韵律的游戏中,时间的层次与生活的诗意风景层层展开。


▽景观轴测图©Y+Y Studio

vsszan2050770517361410.jpg

▽茶室© 朱润资

vsszan2050770517361411.jpg

▽茶室西© 朱润资

vsszan2050770517361412.jpg



Z宅作为两位住户的养老住宅,适宜春、夏、秋三季居住。项目在有限预算内,向废弃的场地注入新的生机:包括将正房(一座典型的北方木构石砌民居)改造为被动式房屋,同时新增厨房单元、庭院景观,并重建院墙与入口。


▽改造前立面和改室内© 朱润资

vsszan2050770517361413.jpg
vsszan2050770517361414.jpg



在盘曲且风化的老梁里,我们可以窥见乡村建造就地取材的智慧。为了彰显传统“抬梁式木构”的结构、节奏、与材质美,改造工作模拟并遵循了它的内在逻辑:在修复檩、梁、柱等主体木构并更换椽条后,结构骨骼便准备好了迎接一套全新的耐气候建筑外壳,立脊金属屋面与保温窗框像一件新衣服一样被覆上。原先的五开间格局被整合为三间(茶室、主卧、次卧),墙体与木柁间错,让木构的语汇不受遮挡地完整呈现。另有钢构沿着木构走势向外延展形成飞檐,于正房前侧形成檐廊,于后侧形成带有服务功能的走廊。饰面砖和基石等被保护、并按需修复原貌。


▽结构轴测图©Y+Y Studio

vsszan2050770517361415.jpg

▽主卧© 朱润资

vsszan2050770517361416.jpg



新建厨房则采用钢构,服务功能位于后侧,前侧可开启的玻璃幕墙向内院平台敞开。庭院内设有菜园和多个花园池区,并以灵活的动线串连。一条干枯的卵石铺就的“溪流”贯穿其间,漫过景观石、花草植被与铺地,在中式园林的哲学隐喻里,以微缩景观映照自然大千。


▽走廊© 朱润资

vsszan2050770517361417.jpg



Z宅的改造遵循“所见即所得”的原则:粗重厚实者为旧,轻盈灵动者为新。新与旧交融于一体,在鲜明的对比度中相互映照。既尊重了物质历史,也重新诠释了积累的文化与社会记忆——因为我们坚信遗留物质的价值(尤其是乡土与粗粝物质)在于其维系的生活,而非其光环。


▽后走廊与卫生间© 朱润资

vsszan2050770517361418.jpg



在回应住户亲近自然、禅意栖居的愿景中,Z宅通过积极参与乡村(城郊)更新,提出了一种退休生活的别样可能:以微型农耕作为可持续食物循环的方式,也作为一种有意义的日常实践;融合被动能源策略与节水景观,用最低的环境成本,在低密度社区中重建活力与连结;同时聚焦母亲的日常劳动,让她在家庭空间中的角色与身体得以解放、回归本真。


▽抬梁细节© 朱润资

vsszan2050770517361419.jpg



“小院”是一种北方常见的民居形式,一般有与长屋相连的硬地庭院、并被院墙围合。而Z宅在“小院”的类型形制中,注入了中式园林哲学与田园的诗意理想,形成一种新的叙事:归家的人,穿越弯折掩映的入院门,便可见菜园(“田”)与花园(“园”)交织的全景画卷展开;在老树的引力下,踏卵石”溪”径,抵达荫蔽连廊,这个连接正房与厨房的主要经络。穿梭在耕作与烹饪,相聚与独处,室内与露天……不同的功能场景在同一有机的空间中编排,在同一禅修的时刻中流转。


▽平面图©Y+Y Studio

vsszan2050770517361420.jpg

▽新旧平面图©Y+Y Studio

vsszan2050770517361421.jpg

▽景观平面图©Y+Y Studio

vsszan2050770517361422.jpg

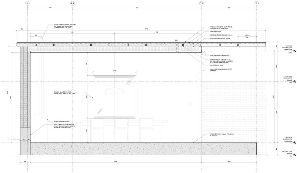
▽剖面1©Y+Y Studio

vsszan2050770517361423.jpg

▽剖面2©Y+Y Studio

vsszan2050770517361424.jpg
vsszan2050770517361425.jpg
vsszan2050770517361426.jpg


项目名称:Z宅
项目类型:建筑/改造
设计方:Y+Y Studio
公司网站:https://y-y.studio/
联系邮箱:info@y-y.studio
项目设计:2022-2023年
完成年份:2024年
设计团队:张一然
项目地址:北京市平谷区大华山镇
建筑面积:390㎡
摄影版权:朱润资

AI文本分析中……
AI色彩命名中……

序赞Ai时刻等待着你的命令!~

与Ai对话形式持续执行相关Ai智能体任务。

syhgdesign2025-11-10 03:16:56
感谢楼主辛苦分享  
您需要登录后才可以回帖 登录 | 注册序赞号

快速回复 返回顶部 返回列表