前洲际酒店改造 | TaK Architects | 2025 | 捷克
捷克斯洛伐克现代主义的地标

前洲际酒店(InterContinental Hotel)建于1968年至1974年间,是前捷克斯洛伐克的首家国际五星级酒店。其设计采用粗野主义风格,展现出建筑、设计与艺术的地标性融合。建筑师卡雷尔·菲尔萨克(Karel Filsak)领导的设计团队汇聚了当时捷克最杰出的艺术与设计人才,共同打造出一个完整统一的艺术整体——真正意义上的“总艺术作品”(Gesamtkunstwerk)。

▽酒店鸟瞰© BoysPlayNice

vsszan205210120917471.jpg

▽酒店外观© BoysPlayNice
vsszan205210120917472.jpg
vsszan205210120917473.jpg

▽酒店外观© BoysPlayNice
vsszan205210120917474.jpg

酒店开业之初,成为捷克斯洛伐克工艺与创造力的展示窗口。它是东欧阵营中首个获得美国投资的项目,迅速成为现代化、奢华与世界级美食的象征。不仅仅是一家酒店,它同时也是一位文化大使,是20世纪捷克建筑史上的高光篇章。酒店及其周边环境的建设因苏联入侵捷克斯洛伐克而被迫中断。此后数十年间,建筑逐渐被忽视,最终在上世纪90年代末遭遇了一次缺乏敏感性的翻新。当现任业主接手时,酒店的状况已十分糟糕。

▽酒店旁的地标性建筑© BoysPlayNice

vsszan205210120917475.jpg

以保护为导向的新篇章

与同时代的标志性建筑——如布拉格酒店(Hotel Prague)或Transgas综合体——不同,这座建筑并未被拆除,而是在三位捷克企业家的推动下获得了新生:帕维尔·鲍迪什(Pavel Baudiš)、爱德华·库切拉(Eduard Kučera)和奥尔德日赫·施莱姆尔(Oldřich Šlemr)。出于与酒店的情感联系以及保护其建筑价值的愿望,他们决定让这座地标重现其作为布拉格市中心社会与文化枢纽的地位。

▽与原有建筑之间的连廊© BoysPlayNice

vsszan205210120917476.jpg
vsszan205210120917477.jpg

▽与原有建筑之间的连廊© BoysPlayNice

vsszan205210120917478.jpg

他们意识到不仅建筑本身需要焕新,其被忽视的周边环境也亟需振兴,于是发起了一场建筑设计竞赛。最终由马雷克·蒂赫(Marek Tichý)领导的TaK建筑事务所(TaK Architects)中标,承担为期五年的整体改造工程。同时,他们与费尔蒙酒店集团(Fairmont Hotels & Resorts)建立合作关系——该集团的国际标准与本地活力正契合项目的雄心:将这座地标重新推出为“布拉格费尔蒙金色酒店(Fairmont Golden Prague)”。为实现这一目标,建筑新增了多种设施,如户外泳池、餐饮翼楼及会议扩建部分,与原有结构无缝衔接。

▽与原有结构无缝衔接© BoysPlayNice

vsszan205210120917479.jpg
vsszan2052101209174710.jpg

▽与原有结构无缝衔接© BoysPlayNice

vsszan2052101209174711.jpg

面向城市与公共生活的愿景

蒂赫的设计理念以“敏感而具变革性”的方式重新诠释建筑,使其与城市建立更紧密的联系——超越仅在地面层激活Pařížská大街的层面。新的透明建筑延伸体与新植绿化融合,向德沃夏克河堤(Dvořák Embankment)方向展开,引导人们通过一片绿色坡地通向河岸。在城市与伏尔塔瓦河的交汇处,一个新的当代艺术馆成为城市更新的重要节点。

▽激活到达层© BoysPlayNice

vsszan2052101209174712.jpg
vsszan2052101209174713.jpg

▽到达层灯光设计© BoysPlayNice

vsszan2052101209174714.jpg

酒店下层新增了一个可从街道与河岸两侧进入的画廊空间,免费对公众开放,鼓励人们以全新的方式与建筑互动。如今的一层成为一个由艺术家与设计师共同策划的艺术展示空间,延续了建筑自诞生以来“艺术融入建筑”的传统。设计团队从一开始就坚持这些空间应当保持开放与包容,并设置了独立入口以支持这一理念。

▽从街道与河岸两侧进入的画廊空间© BoysPlayNice

vsszan2052101209174715.jpg

▽从街道与河岸两侧进入的画廊空间© BoysPlayNice

vsszan2052101209174716.jpg

修复与创新的融合

改造过程中最重要的是在“保护”与“创新”之间找到平衡。建筑师在沿用原始三种主要材料——混凝土、玻璃与木材——的基础上,引入了新的空间与艺术层次。正如当年的设计团队一样,蒂赫及其团队从项目早期就邀请艺术家与设计师参与,模糊建筑与艺术的界限,以当代的表达丰富这一建筑遗产。同样关键的原则是“空间的民主化”——让酒店向城市开放,使建筑延伸至公共领域,令室内外空间彼此贯通。从立面、花园到室内设计,每个细节都经过精心处理,体现出极高的工艺与设计水准。项目的规模与其愿景同样宏大。

▽改造后的大堂空间© BoysPlayNice

vsszan2052101209174717.jpg
vsszan2052101209174718.jpg
vsszan2052101209174719.jpg

经典细节的重生

建筑老化严重,许多结构已技术过时或存在安全隐患,必须进行全面重建。尽管面临种种困难,项目团队(由Metrostav担任总承包)仍坚持保留并修复所有具有价值的原始元素,即便这意味着更复杂、更昂贵的工序。关键的艺术与建筑细节得以悉心修复。由雕塑家兹比涅克·塞卡尔(Zbyněk Sekal)创作的陶瓷立面——酒店的标志之一——被重新制作,原有52条陶瓷带中有48条以新工艺重现。会议大厅的天花板(原由扬·什拉梅克 Jan Šrámek 设计,配以雷内·鲁比切克 René Roubíček 的吊灯)被重建,重现1960年代混凝土与玻璃的对话。

▽改造后大堂© BoysPlayNice

vsszan2052101209174720.jpg
vsszan2052101209174721.jpg

▽修复后的混凝土天花© BoysPlayNice

vsszan2052101209174722.jpg
vsszan2052101209174723.jpg

▽修复后的混凝土天花© BoysPlayNice

vsszan2052101209174724.jpg
vsszan2052101209174725.jpg

此外,捷斯米尔·卡夫卡(Čestmír Kafka)的木质天花雕塑及米洛斯拉夫·海尼(Miloslav Hejný)的《魔幻森林》柱状雕塑片段也被重新安装。传奇的“金色布拉格餐厅”(Zlatá Praha)再度展出雨果·德马蒂尼(Hugo Demartini)的金色装饰与萨林格玻璃工坊(Sallinger Glassworks)的玻璃屏风。大堂中,斯坦尼斯拉夫·利本斯基(Stanislav Libenský)与雅罗斯拉娃·布里赫托娃(Jaroslava Brychtová)的铸玻璃雕塑与泽德涅克·洛茨基(Zdeněk Lhotský)的新作并置——后者在项目初期便被邀请参与,共同塑造酒店“新总艺术作品”的面貌。

▽玻璃屏风© BoysPlayNice

vsszan2052101209174726.jpg

▽餐厅空间© BoysPlayNice

vsszan2052101209174727.jpg

▽餐厅空间© BoysPlayNice

vsszan2052101209174728.jpg

此外,修复与新创作品还包括约瑟夫·伊拉(Josef Jíra)的九幅彩绘玻璃窗(由扬·切尔诺霍尔斯基 Jan Černohorský 补充完成)、弗朗齐谢克·罗诺夫斯基(František Ronovský)的蜡画,以及约瑟夫·克利梅什(Josef Klimeš)的巨型木雕墙面。

▽修复后的陶瓷隔断© BoysPlayNice

vsszan2052101209174729.jpg

▽营造艺术氛围© BoysPlayNice

vsszan2052101209174730.jpg

艺术的新篇章

超过二十个艺术工作室参与了本次艺术策划,由蒂赫统筹,重新激活了20世纪“建筑师与艺术家协作创作”的模式。如今,酒店融合了历史与当代作品,成为一座“活的展览”。宾客与访客首先会看到扬·库克拉(Jan Kukla)的玻璃光影装置《苍穹》(Heavens),由600根发光玻璃杆组成。库克拉还参与了会议吧台的设计。扬·切尔诺霍尔斯基为前台制作了镜面玻璃砖,洛茨基的玻璃壁画《织锦》(Tapestries)则延展至外立面。

▽酒店融合了历史与当代作品© BoysPlayNice

vsszan2052101209174731.jpg

▽酒店融合了历史与当代作品© BoysPlayNice

vsszan2052101209174732.jpg

▽俯瞰布拉格城区的景色© BoysPlayNice

vsszan2052101209174733.jpg

▽客房区域© BoysPlayNice

vsszan2052101209174734.jpg

▽客房区域© BoysPlayNice

vsszan2052101209174735.jpg

酒店内的吊灯由捷克玻璃品牌Bomma与Preciosa合作设计。大堂中央由马丁·雅内茨基(Martin Janecký)创作的巨型玻璃墙《布拉格的符号》(House Signs of Prague)成为视觉焦点;而康养接待区则由Lasvit、旺达·瓦利赫拉霍娃(Wanda Valihrachová)与TaK建筑师联合创作的一件长8米的流线形雕塑构成,象征流水意象。

▽吊灯设计© BoysPlayNice

vsszan2052101209174736.jpg
vsszan2052101209174737.jpg

对可持续性的承诺

可持续性是改造工程的重要支柱。酒店现采用地热系统进行供暖与制冷,能源取自附近河水。厨房、洗衣房及康养区产生的余热得以回收再利用。同时,项目还实施了严格的水资源管理策略——涵盖中水与雨水回收、蓄水池及水循环热能回收系统。绿化屋顶与垂直花园提升了热舒适度并改善了局部微气候,而雨水与中水系统被用于灌溉。这些举措展示了历史建筑如何通过生态责任实现重生。

▽酒店夜景© BoysPlayNice

vsszan2052101209174738.jpg
vsszan2052101209174739.jpg

▽场地平面©TaK Architects

vsszan2052101209174740.jpg

▽地下层平面©TaK Architects

vsszan2052101209174741.jpg

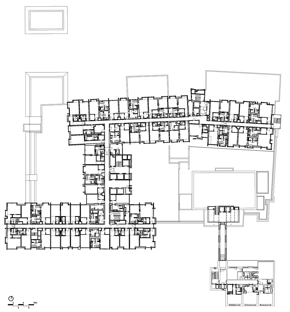
▽一层平面©TaK Architects

vsszan2052101209174742.jpg

▽二层平面©TaK Architects

vsszan2052101209174743.jpg

▽三层平面©TaK Architects

vsszan2052101209174744.jpg

▽七层平面©TaK Architects

vsszan2052101209174745.jpg

▽八层平面©TaK Architects

vsszan2052101209174746.jpg

▽立面图©TaK Architects

vsszan2052101209174747.jpg
vsszan2052101209174748.jpg
vsszan2052101209174749.jpg

  • Studio TaK Architects
  • Author Marek Tichý
  • Contact E-mailinfo@tak2002.cz
  • Websitehttp://www.tak2002.cz
  • Studio address Hollarovo náměstí 2275/2, 130 00 Prague, Czech Republic
  • Co-author Klára Tichá, Alžběta Komorná, Fiona Thompson, Kate Cunnigham
  • Design team 12 architects engaged for specific parts of the project
  • 32 engineers and designers for the construction section [including Head of Design – HIP]
  • total project team: 76 members
  • Project location Pařížská 43, Dvořákovo nábřeží, Náměstí Curieových, Prague
  • Project country Czech Republic
  • Project year 2019–2025
  • Completion year 2025
  • Built-up area 2 525 m²
  • Gross floor area 38 189 m²
  • Plot size 14 800 m²
  • Client Three independent Czech investors – Pavel Baudiš, Eduard Kučera and Oldřich Šlemr
vsszan2052101209174750.jpg
vsszan2052101209174751.jpg
vsszan2052101209174752.jpg
vsszan2052101209174753.jpg
vsszan2052101209174754.jpg
vsszan2052101209174755.jpg
vsszan2052101209174756.jpg
vsszan2052101209174757.jpg
vsszan2052101209174758.jpg
vsszan2052101209174759.jpg
vsszan2052101209174760.jpg
vsszan2052101209174761.jpg
vsszan2052101209174762.jpg
vsszan2052101209174763.jpg
vsszan2052101209174764.jpg
vsszan2052101209174765.jpg
vsszan2052101209174766.jpg
vsszan2052101209174767.jpg
AI文本分析中……
AI色彩命名中……

序赞Ai时刻等待着你的命令!~

与Ai对话形式持续执行相关Ai智能体任务。

syhgdesign2025-11-14 02:42:42
感谢楼主辛苦分享
您需要登录后才可以回帖 登录 | 注册序赞号

快速回复 返回顶部 返回列表