安吉国际会展中心 | 何斐德建筑 | 2025 | 中国浙江



基地环境:青山绿水
安吉是一个青山环绕、绿水流淌的城市,是中国竹乡,更是“两山”理念的发源地。基地位于安吉城南,两山未来科技城的核心位置,建立在一片原有城区边缘的工厂区域。这一片工厂区域逐渐更新,建设成两山未来科技城的核心。


▽项目鸟瞰©三千影像

vsszan205211121058591.jpg
vsszan205211121058592.jpg
vsszan205211121058593.jpg



城市的平原开始在这里慢慢收窄,两侧的群山聚拢过来,夹着中间流淌的浒溪蜿蜒向北,流向太湖。


▽场地区位©法国何斐德建筑设计公司 + 启迪设计集团股份有限公司

vsszan205211121058594.jpg

▽项目鸟瞰©三千影像

vsszan205211121058595.jpg
vsszan205211121058596.jpg



设计概念:两山会一谷
基地周边自然优美的群山轮廓给予建筑最大的灵感。建筑概念取义“两山会一谷”,整体造型如两条山脉交汇穿插,汇聚成一条山谷。两侧建筑的屋顶轮廓高低错落,如连绵的群山层峦叠嶂。


▽整体造型如两条山脉交汇穿插©三千影像

vsszan205211121058597.jpg

▽屋顶轮廓高低错落©三千影像

vsszan205211121058598.jpg



屋面如同一片片劈开的竹片,编织成一幅山水长卷。隆起的屋顶,通过极具张力的弯曲结构造型,如竹片弯而不折的韧性,也体现出以吴昌硕为代表,安吉文人的刚韧洒脱精神。


▽极具张力的弯曲结构造型©三千影像

vsszan205211121058599.jpg
vsszan2052111210585910.jpg
vsszan2052111210585911.jpg

▽如竹片弯而不折的韧性©三千影像

vsszan2052111210585912.jpg
vsszan2052111210585913.jpg



功能布局:十字形布局
建筑整体采用十字形空间组织功能:重要公共空间位于十字形内侧,外围布置货运后勤等辅助功能。


▽功能分析©法国何斐德建筑设计公司 + 启迪设计集团股份有限公司

vsszan2052111210585914.jpg

▽建筑立面及主入口©三千影像

vsszan2052111210585915.jpg
vsszan2052111210585916.jpg



东西向通廊为最重要轴线空间,联系东侧的城市干道灵峰南路,至西侧浒溪河畔的自然滨水景观带。通廊的北侧布局会展、南侧布局酒店功能。这条通廊用轻盈有力的结构形式,保证这条城市景观轴线望山见水的通透视觉效果。


▽东西向通廊©三千影像

vsszan2052111210585917.jpg



南北向轴线的“会议谷”连接北侧文化艺术中心至南侧城市商务区。这条宽阔的南北向室内空间,是会展中心最繁忙的公共空间,也是展会活动期间最热闹的全天候市集。


▽南北向轴线的“会议谷©三千影像

vsszan2052111210585918.jpg
vsszan2052111210585919.jpg

▽南北向轴线的“会议谷©三千影像

vsszan2052111210585920.jpg



沿这条南北轴线两侧分别布置10000平米主展厅和5000平米多功能会展厅。这两个展厅为大跨度桁架的无柱空间。整体钢结构桁架沿屋面造型拱起,线条简洁而有力,在主展厅室内一览无余。高低错落的屋面结构形成侧窗,也兼顾了展厅平时日间采光的使用需求。


▽多功能会展厅©三千影像

vsszan2052111210585921.jpg
vsszan2052111210585922.jpg
vsszan2052111210585923.jpg



基地西侧布置景观商业,如连绵山峰的余脉,撒落在浒溪畔。


▽如连绵山峰的余脉撒落在浒溪畔©三千影像

vsszan2052111210585924.jpg

▽如连绵山峰的余脉撒落在浒溪畔©三千影像

vsszan2052111210585925.jpg



建筑的细部利用铝板与HUPC等材料创造出丰富多变的光影变化,也如同竹片凹曲的肌理造型。


▽屋顶细部©三千影像

vsszan2052111210585926.jpg
vsszan2052111210585927.jpg



整个建筑群如群山一般,时而匍匐在地面,时而拔地而起,时而舒展伸向远方,运用如自然山水的线条,有机延伸,在青山绿水边创造了一个融入环境与城市气质的地标。


▽夜景©三千影像

vsszan2052111210585928.jpg
vsszan2052111210585929.jpg

▽场地平面©法国何斐德建筑设计公司 + 启迪设计集团股份有限公司

vsszan2052111210585930.jpg

▽一层平面©法国何斐德建筑设计公司 + 启迪设计集团股份有限公司

vsszan2052111210585931.jpg

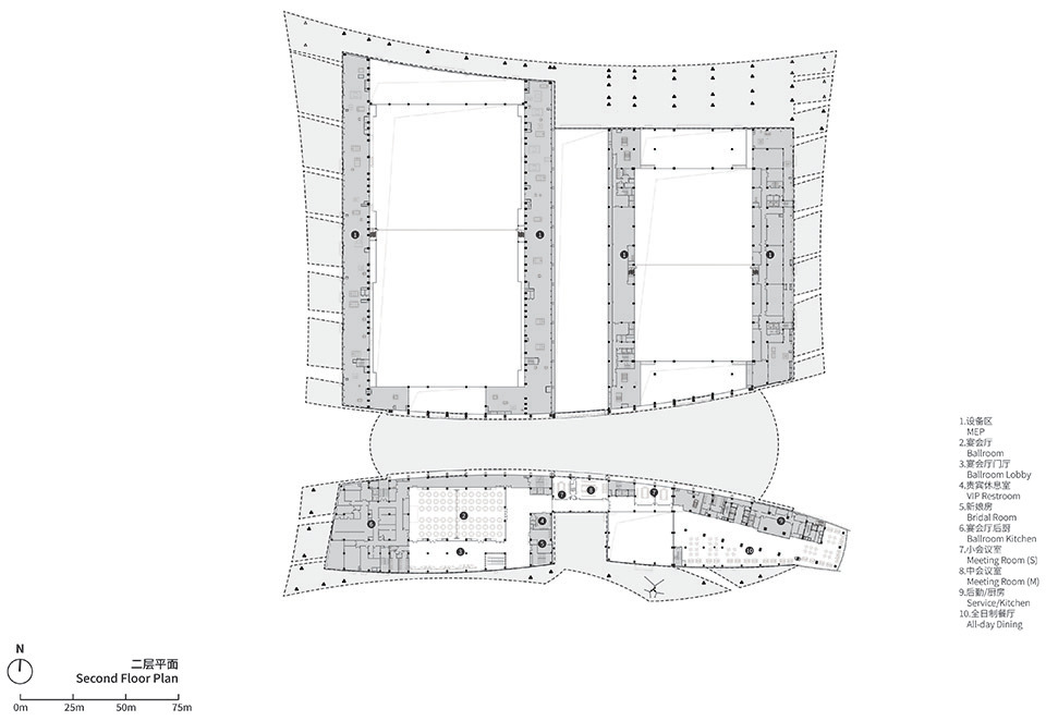
▽二层平面©法国何斐德建筑设计公司 + 启迪设计集团股份有限公司

vsszan2052111210585932.jpg

▽酒店标准层平面©法国何斐德建筑设计公司 + 启迪设计集团股份有限公司

vsszan2052111210585933.jpg

▽立面©法国何斐德建筑设计公司 + 启迪设计集团股份有限公司

vsszan2052111210585934.jpg

▽剖面©法国何斐德建筑设计公司 + 启迪设计集团股份有限公司

vsszan2052111210585935.jpg
vsszan2052111210585936.jpg
vsszan2052111210585937.jpg
vsszan2052111210585938.jpg
vsszan2052111210585939.jpg
vsszan2052111210585940.jpg
vsszan2052111210585941.jpg
vsszan2052111210585942.jpg
vsszan2052111210585943.jpg
vsszan2052111210585944.jpg
vsszan2052111210585945.jpg


项目名称:安吉国际会展中心
项目类型:建筑/景观/室内
项目地点:浙江省,湖州市,安吉县
建成状态:建成
若为方案,则标明方案状态:体现方案未来情况的描述,包括但不限于中标方案/竞赛获胜方案/设计委托等
设计时间(起迄年月):2022年6月至 2023年3月
建设时间(起迄年月):2023年3月至2025年7月
用地面积(平方米):156,000㎡
建筑面积(平方米):182,000㎡
设计单位:法国何斐德建筑设计公司、启迪设计集团股份有限公司
设计单位联系方式(网站或邮箱):fri@vip.163.com
建筑方案设计:法国何斐德建筑设计公司
主创建筑师:Frederic ROLLAND、Polly Lo ROLLAND
设计团队完整名单:Frederic ROLLAND, Polly Lo ROLLAND,贾炯,戚雷明,许富强,Sybren BOOMSMA,陈家炜,李泽宇,胡奇峰,杨月,李敏,Wessel de JONG
建筑、结构、机电设计:启迪设计集团股份有限公司
项目负责人:查金荣、张丽丽
项目经理:里锬、王迎旭
建筑、结构、机电设计:靳建华、张丽丽、王迎旭、里锬、金剑波、戴雅萍、袁雪芬、赵宏康、李昆鹏、徐双喜、陈苏、张宝军、赵哲、颜宏勇、亢旭红、李文俊、钱沛如、肖静静、曹雪平、吴昊
其他参与单位,包括但不限于:
幕墙、室内设计、弱电智能化、泛光、标识、综合管线等设计:公和设计集团有限公司
设计团队:宿国锋、孙贤平、谢春锋、黎素娟、戴志晖、王鑫、胡宏平、李志一、林伟杰、廖启东、刘圆圆、胡晴芝、于涛、魏迦益、张瑶辉、吴永程、王万春、陈方园
景观设计:ACD艺城设计有限公司
设计团队:叶蔡翔、杨晴岚、刘宇星、杨怀远、吴许军、沈芳、陈弢、郑辉国、周丽娜、张丹、丁晓、赵明、周祥明、殷向民、冯佳星、唐清华、杨淑桂、刘金胜、范亚伟
基坑设计:浙江中水工程技术有限公司
结构设计顾问:SGI萨蒂尼建筑结构设计工程顾问
酒店室内设计顾问:上海大朴室内设计有限公司
BIM:杭州深海比目建筑科技有限公司
施工:中铁建工集团第四建设有限公司
业主:浙江安吉建设控股集团有限公司
工程造价:人民币18亿
摄影师:三千影像
摄影师网站:http://www.sanqianyingxiang.com
视频版权:法国何斐德建筑设计公司

AI文本分析中……
AI色彩命名中……

序赞Ai时刻等待着你的命令!~

与Ai对话形式持续执行相关Ai智能体任务。

syhgdesign2025-11-14 02:40:22
感谢楼主辛苦分享
xu5292025-11-18 10:25:14
感谢楼主辛苦分享
您需要登录后才可以回帖 登录 | 注册序赞号

快速回复 返回顶部 返回列表