Yandex Office | Nefa Architects

Yandex是一家大型俄罗斯IT公司,致力于开发创新产品和服务。公司在多个国家设有办公室,员工超过30,000人。

业务目标

Business Objective

新办公室的需求源于公司的扩展,以及创造更多工作空间的需要。设计要求的核心是打造一个功能性强、符合人体工学且视觉上具有统一感的环境,以促进员工之间的团队合作、专注和非正式互动。

Yandex is a major Russian IT company developing innovative products and services. With offices in several countries, the company employs over 30,000 people. The new office was necessitated by the company’s growth and the need to create additional workspaces. The key directive of the brief was to design a functional, ergonomic, and visually cohesive environment that fosters teamwork, concentration, and informal interaction among employees.

▽空间概览© Maxim Loscutov

vsszan205234131934181.jpg



空间布局

Spatial Layout

该办公室为155名员工设计。布局围绕一个玻璃立方体展开,这是空间的核心元素和视觉焦点。它组织了大厅、流线,并将关键功能区域围绕着它进行布局。立方体内部有三个非正式的会议室,保持视觉开放的同时,又能提供一定的隐私感。立方体的左侧是一个共享工作图书馆,右侧是相邻的开放式区域。总的来说,空间包括12个不同大小的开放式区域和10个会议室。

The office is designed for 155 employees. The layout is organized around a glass cube—the central element and visual focal point of the space. It structures the lobby, organizes circulation flows, and unites key functional zones around it. Inside the cube are three informal meeting rooms that remain visually open while providing a sense of privacy. To the left of the cube is a coworking library, and to the right is an adjacent open-plan area. In total, the space includes 12 open-plan areas of various sizes and 10 meeting rooms.

▽大厅© Maxim Loscutov

vsszan205234131934182.jpg

在楼层的最远端,设有一个宽敞的咖啡点,内有厨房、沙发、长凳、放松区以及带有茧椅和凉亭的休息区。还专门提供了冥想室。

At the far end of the floor, a spacious coffee point features a kitchen, sofas, poufs, and a relaxation area with cocoon chairs and a pergola. A dedicated meditation room is also provided.

▽走廊© Maxim Loscutov

vsszan205234131934183.jpg

▽咖啡点© Maxim Loscutov

vsszan205234131934184.jpg

布局避免强调等级制度;所有工作空间都开放且平等,注重灵活性、可接近性和舒适性。

The layout avoids emphasizing hierarchy; all workspaces are open and equivalent, planned with a focus on flexibility, accessibility, and comfort.

▽放松区© Maxim Loscutov

vsszan205234131934185.jpg

▽共享工作区© Maxim Loscutov

vsszan205234131934186.jpg



设计概念

Design Concept

办公室位于前“罗斯西亚”工厂建筑内。场所的工业记忆成为建筑概念的起点。室内设计融合了工业元素——金属支撑、凉棚、玻璃砖——与温暖包围感十足的材料。

The office is located in the former “Rossiya” factory building. The industrial memory of the place became the starting point for the architectural concept. The interior blends industrial accents—metal braces, pergolas, glass blocks—with warm, enveloping materials.

▽舒适的图书馆© Maxim Loscutov

vsszan205234131934187.jpg

中央的玻璃砖立方体参考了工业功能主义,但被转变为一个温暖的“服务器”,承载着思想和沟通,作为一个将过去与现代数字文化相连接的模块。共享工作区设计为一个舒适的图书馆,配有木桌、座位小隔间和柔和的灯光。开放式区域采用了毛毡面板、复古绿色或赤土色的墙面,并配有集成座位和绿植的储物柜。

The central glass-block cube references industrial functionalism but is transformed into a soft “server” for ideas and communication, a module that bridges the location’s past with modern digital culture. The coworking area is designed as a cozy library with wooden tables, seating niches, and soft lighting. The open-plan areas feature felt panels, walls in retro-green or terracotta hues, and lockers with integrated seating and greenery.

▽集成座位和绿植的储物柜© Maxim Loscutov

vsszan205234131934188.jpg

▽座位小隔间© Maxim Loscutov

vsszan205234131934189.jpg

▽毛毡面板细部© Maxim Loscutov

vsszan2052341319341810.jpg

咖啡点类似一个开放的凉亭,内有茧椅、之字形沙发和长凳。会议室采用黄色米色调的配色,配有声学面板和织物,创造了一个功能性强且平静的氛围,有利于专注工作。在需要独处的时刻,办公室提供了一个隐藏的冥想室——一个带圆形窗户、窗帘和卵石的静谧空间,以及个人电话亭。

The coffee point resembles an open gazebo with cocoon chairs, zigzag sofas, and poufs. The meeting rooms are finished in an ochre-beige color palette with acoustic panels and textiles, creating a functional and calm atmosphere conducive to focused work. For moments of solitude, there is a hidden meditation room—a retreat space with a circular window, curtains, and pebbles—as well as individual phone booths.

▽会议室© Maxim Loscutov

vsszan2052341319341811.jpg
vsszan2052341319341812.jpg

▽黄色米色调的配色© Maxim Loscutov

vsszan2052341319341813.jpg



设计师语录

Quotes

“我们希望在场所的工业记忆和触感舒适之间找到平衡,创造一个人们在远程工作时代愿意待更长时间的办公室。玻璃砖立方体中的非正式会议室,共享工作图书馆,类似凉亭的咖啡点,复古色彩和毛毡——这个项目关注的是个人、他们的日常节奏,以及在工作空间中感受到的内心舒适。” — Evgenia Bershtein,项目设计师

“We sought to strike a balance between the industrial memory of the place and a tactile sense of comfort, to create an office where people would want to spend more time in the era of remote work. The glass-block cube with informal meeting rooms, the coworking library, the gazebo-like coffee point, retro colors, and felt—this project is about caring for the individual, their daily rhythm, and their inner comfort within the workspace.” — Evgenia Bershtein, Project Designer

▽茧椅© Maxim Loscutov

vsszan2052341319341814.jpg

▽冥想室© Maxim Loscutov

vsszan2052341319341815.jpg

▽非正式会议室© Maxim Loscutov

vsszan2052341319341816.jpg

▽玻璃砖© Maxim Loscutov

vsszan2052341319341817.jpg

“今年,我们完成了最后一层,‘nefa’architects的设计成功地将两翼无缝连接起来。与Benua中心的其他Yandex空间相比,这一结果呈现了一个有趣的对比:严格的功能性和某种天真感让位于更微妙、更柔和的解决方案。进入新空间后,第一感觉是轻盈和通透——这是日常使用者和访客都一致注意到的印象。这种宽敞感并非偶然;它由宽大的开放式共享工作区和拥有吊床并能俯瞰涅瓦河的舒适咖啡点创造而成。当然,位于空间核心的半透明玻璃砖墙,柔和的曲线营造出独特的效果。它们打破了走廊的单调,与光线和透视相互作用,尤其在日出和日落时展现出特别有趣的变化。柔和的粉彩色调和宁静的形态将你带入一个安详的氛围。而与之形成对比的是,建筑金属骨架的元素在整个空间中展现:这种设计手法体现在走廊、微型会议室以及我们特别自豪的冥想室。这样的多样性对我们而言非常重要,因为它反映了员工的精神面貌以及他们工作的城市。” — Nikita Starostin,Yandex建筑与设计负责人

“This year, we completed the final floor, seamlessly uniting both wings under the design of ‘nefa’architects’. The result is an interesting counterpoint to other Yandex spaces in the Benua Center: strict functionality and a certain naivety have given way to more subtle and soft solutions. The first thing you feel upon entering the new space is a sense of lightness and airiness—an impression unanimously noted by both daily users and visitors. This spaciousness is no accident; it is created by the large, open coworking area and the cozy coffee point with hammocks and views of the Neva River. And, of course, the semi-transparent glass-block walls, softly curved at the heart of the composition, create a special effect. They break the monotony of the corridors and interact with light and perspective in particularly interesting ways at sunrise and sunset. The soft pastel tones and calming forms immerse you in a serene atmosphere. And, as if in contrast, elements of the building’s metal skeleton are revealed throughout: this approach is evident in the corridors, miniature meeting rooms, and in our special pride—the meditation room. Such diversity is valuable to us as it reflects the spirit of our employees and the city in which they work.” — Nikita Starostin, Head of Architecture and Design at Yandex

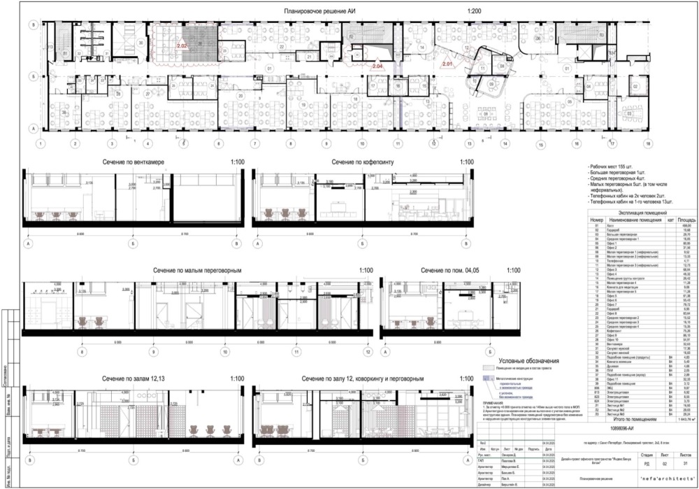
▽总平面和剖面© Bulat Baishev

vsszan2052341319341818.jpg

▽咖啡点平面和剖面© Bulat Baishev

vsszan2052341319341819.jpg

▽共享工作区平面和剖面© Bulat Baishev

vsszan2052341319341820.jpg
vsszan2052341319341821.jpg
vsszan2052341319341822.jpg
vsszan2052341319341823.jpg
vsszan2052341319341824.jpg


Project Overview
Client: Yandex
Location: Benua Business Center, 8th floor, 2k2 Piskarevsky Prospect, St. Petersburg, Russia
Design Period: 2023 – 2024
Construction Period: 2023 – 2024
Design & Construction
Architecture Firm: ‘nefa’architects’
Project Team: Dmitry Ovcharov, Elena Mertsalova, Evgenia Bershtein. Architects: Vasilina Pavlova, Bulat Baishev, Antonina Pak.
General Contractor: ARS
Manufacturers & Suppliers
Furniture: Herman Miller, Delodesign, divan.ru, Archipelago, Eburet, The Idea
Kitchen: K.S.Büro
Lighting: ZEON Lighting
Flooring: ESCOM, Forbo
Acoustics: Flyfelt, Feltouch

AI文本分析中……
AI色彩命名中……

序赞Ai时刻等待着你的命令!~

与Ai对话形式持续执行相关Ai智能体任务。

暂时没有评论,你回一个呗!~

您需要登录后才可以回帖 登录 | 注册序赞号

快速回复 返回顶部 返回列表