“逅HOOOO”集合店 | 边界空间设计 | 2025 | 中国浙江



“逅HOOOO”是一家集合店铺,坐落在杭州良渚玉鸟集。关于美好生活的定义,四位女性业主用四种经营业态给出了她们自己的理解,咖啡、简餐、服装与鲜花。


▽“逅HOOOO”正门©汪敏杰

vsszan205319181720591.jpg

▽入口空间©汪敏杰

vsszan205319181720592.jpg

vsszan205319181720593.jpg



场地建筑面积130平方,南北朝向,前后临街,西侧窄巷,山墙有一小窗,仅东侧有邻。南北有长檐高窗,室内空间高挑,下可掘地半米。设计围绕着场地和几个不同的功能与相互关系展开。如何处理各功能之间经营关系和空间关系,设计前期的沟通已让我们留意到这个项目背后的隐形要点。


▽轴侧图©边界空间设计

vsszan205319181720594.jpg

▽一窗一境©汪敏杰

vsszan205319181720595.jpg
vsszan205319181720596.jpg



我们决定在中间区域做出夹层,南北高窗区域挑空,拓宽山墙小窗,保留最大的自然采光内渗。地面下沉,争取室内最大层高同时,营造出错落变化的地形高差,通过高差随势连带出大小体量的作为分界间隔、地台、坐位等类家具功能的构造体积,让空间诸多体块相互间的关系既自我明确有彼此关联,制造内在关系和“势”的链接。地面天花各自暗含的圆形围合也将上下不同功能空间拉合在一个向心的场域内,形成隐性的力场。


▽功能分区©汪敏杰

vsszan205319181720597.jpg
vsszan205319181720598.jpg

▽吧台区©汪敏杰

vsszan205319181720599.jpg



边界是关系中的“热区”,在我们看来,处理这些关系分外的重要。正负空间的转换、相邻空间的开闭、体积之间的合分、相邻两面的转角、不同材料的过度、同材质的缝隙、力与力的节点等等皆为关系,错综复杂却又相互关联。


▽石阶与绿园©汪敏杰

vsszan2053191817205910.jpg

▽石阶©汪敏杰

vsszan2053191817205911.jpg

▽金属台阶©汪敏杰

vsszan2053191817205912.jpg
vsszan2053191817205913.jpg



去年“赤饭”餐厅项目寻找旧石板,旧材市场见得几个石梯,应是老山屋的构件,由整块山石凿出,在此项目处理上下层关系时竟骤然记起。作为与钢制楼梯组合的下半段,继续它作为建筑构件的宿命,搭配暗红色的钢结构与松木板,显露那独有的稳固质朴的力量。沿街内望,若置身橱窗的楼梯与地面花池沙生植物分外凸显,因此驻足拍照进门打量游荡做饮者甚多。店铺试营其间,发现有两处台阶转合偶有险步,另作构件补缺以求上下周全。


▽二楼区域©汪敏杰

vsszan2053191817205914.jpg



止于发文,杭州的气温已近冬日。店铺经暑期,过深秋,在各位主理人的细心照料中,生意稳定,人气高涨。开业后若干次回访,主理人诉苦周末假日客满为患,饱受若菜市场般无处安排客人落座之困,提调整摆法增加坐位,我一时不知可否,一面希望保持良好稳定的空间氛围,一面希望店铺经营自然客流兴旺。当然,健康稳定的经营人气也是很重要的空间氛围,会给予整个场所独有的变化的体验。


▽包间入口©汪敏杰

vsszan2053191817205915.gif

▽二楼包间©汪敏杰

vsszan2053191817205916.jpg

▽险步处理©汪敏杰

vsszan2053191817205917.jpg

▽楼梯细部©汪敏杰

vsszan2053191817205918.jpg

▽室内细部©汪敏杰

vsszan2053191817205919.jpg

▽项目场地©边界空间设计

vsszan2053191817205920.jpg

▽一楼平面©边界空间设计

vsszan2053191817205921.jpg

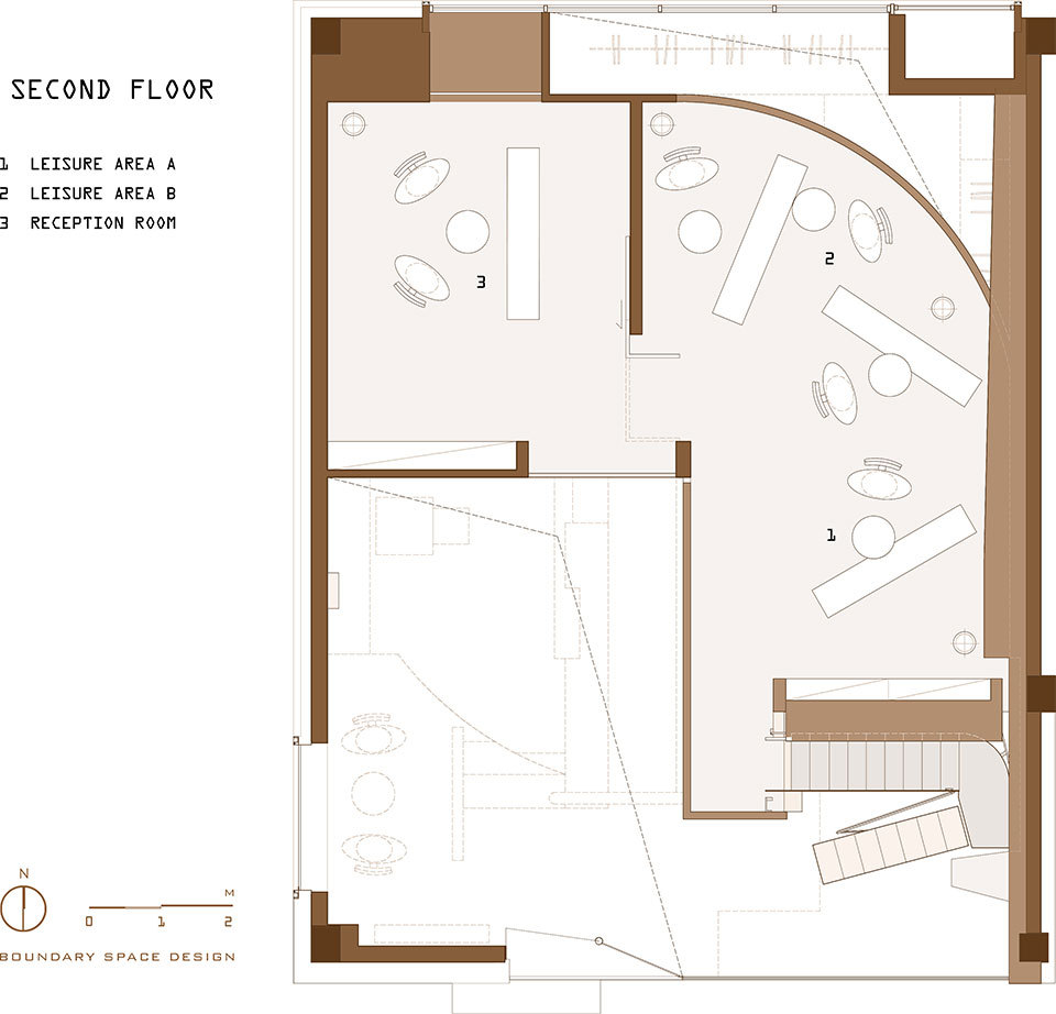
▽二楼包间©边界空间设计

vsszan2053191817205922.jpg

vsszan2053191817205923.jpg
vsszan2053191817205924.jpg


项目信息
项目名称:逅hoooo集合概念店
设计单位:边界空间设计
网站:www.boundaryspacedesign.com
邮箱:815329591@qq.com
公司地址:杭州市江汉路1785号双城国际1号楼404-2室
项目完成年份:2025
建筑面积:130 ㎡
项目地点:杭州-良渚玉鸟集
主持设计:黄三秀
团 队: 高巍东、施甫、陈彦琛、宋帅奇
视觉信息Visual Information
项目摄影:汪敏杰
项目参与Project Participants
委 托 方: 逅hoooo集合概念店
施 工 : 奕賦築造
结构咨询:未知结构研究所
设备支持:CARATBEAN
材料:混凝土、马赛克、不锈钢、松木板,回收石材
品牌:Lamarzocc、crem、日立 、西顿

AI文本分析中……
AI色彩命名中……

序赞Ai时刻等待着你的命令!~

与Ai对话形式持续执行相关Ai智能体任务。

syhgdesign2025-11-25 03:25:29

感谢楼主 辛苦分享
您需要登录后才可以回帖 登录 | 注册序赞号

快速回复 返回顶部 返回列表