白洋·咖啡 | 苏格空间 | 2025 | 中国江苏



我们在扬州老城区,
梧桐树下,
修缮了一间老房子。
平日里,人来人往!
靠着窗边,一杯咖啡
就这样,可以坐一个下午。


▽沿街视角© 黑曜石

vsszan205356201146401.jpg



五千年沉淀下来的古城底色中,我们尝试重新定义老城街区的商业新生。
时光浸染的老街,我们不做过多打扰。
不打扰,只融入——让建筑以温润的姿态,在老街巷弄里自然生长。


▽项目视频© 南京苏格空间建筑设计有限公司

▽侧街视角©黑曜石

vsszan205356201146402.jpg



壹 · 老建筑的新生:保留与重构的对话
两栋分离的建筑,以围合式改造实现联结。 保留原顶,拆改墙体,以石头重建, 既留存岁月的筋骨,也赋予空间新的呼吸。


▽街角透视©黑曜石

vsszan205356201146403.jpg



外立面选用夯土漆,粗粝质朴;
檐口点缀各地淘来的老瓦片,木石交错,灯光轻映;
门口延展出一段老杉木打造的户外区,
梧桐树下,这里成为行人愿意驻足的“街角驿站”。


▽立面细节©黑曜石

vsszan205356201146404.jpg

▽改造前© 南京苏格空间建筑设计有限公司

vsszan205356201146405.jpg



贰· 空间的叙事:一场渐进式的沉浸
入口处,一截从旧物市场淘来的老木桩,
既是人流动线的界点,也是时间的信物。
圆形吊顶与侧墙圆窗呼应,光从顶部漫下,
拉深了纵深感,也点亮了仪式感。


▽庭院内部©黑曜石

vsszan205356201146406.jpg

▽庭院入口©黑曜石

vsszan205356201146407.jpg



向左,整面落地窗将视线彻底打开, 让老街的风景与室内的温度自由交融。 中心区域,一个椭圆形水吧贯穿两栋建筑, 成为空间无形的纽带。


▽庭院廊下空间©黑曜石

vsszan205356201146408.jpg



斜屋顶下,老木头、莱姆石与绿植点缀出无界的松弛。


▽室内外空间渗透©黑曜石

vsszan205356201146409.jpg



叁 · 后场与二楼:私密与开放的平衡
后场是烘焙与裱花的专注天地, 我们沿用建筑的斜顶结构,模拟自然天窗,引入光线,照亮水洗石台面与竹编飞檐。


▽室内效果©黑曜石

vsszan2053562011464010.jpg



一根老木桩作为结构支点,撑起整个空间的叙事。 透过窗景,老城斑驳的墙面与室内形成对话, 历史与当代在空间中叠合。


▽看向庭院© 黑曜石

vsszan2053562011464011.jpg



肆· 廊道与庭院:一处停顿的观景亭
连接前后场的廊道,刻意保留老墙与苔痕,
梁柱未加修饰,维持材料最初的质感。
红色不锈钢以古法锤纹包裹立柱,
将这里定义为“观景亭”—让人在此停顿,与自然对话。


▽室内外空间的视觉流动©黑曜石

vsszan2053562011464012.jpg
vsszan2053562011464013.jpg



庭院中,花石、青苔与莱姆石小径交错, 一树一石,一院静水,材质的肌理在脚下延伸。


▽制作台© 黑曜石

vsszan2053562011464014.jpg



红色旋转楼梯串联起一楼、二楼与户外平台。


▽从窗边看向老街© 黑曜石

vsszan2053562011464015.jpg



同样二楼未作过多修饰,射灯点亮顶部, 长虹玻璃轻掩老建筑遗留的残墙, 既保护了历史的痕迹,也不阻挡光线的漫入。


▽从窗边看向老街© 黑曜石

vsszan2053562011464016.jpg
vsszan2053562011464017.jpg



伍· 我们想表达的,不只是一种风格,更是一种态度
从四月到十一月,
我们往返于南京、苏州、扬州,
寻找每一块老木、每一片旧瓦、每一件有温度的旧物。
这是一次从建筑、室内到灯光、软装、景观的融合实践,
也是一次对“在地文化”的重新解读。
老街区不必是标本,也不必全然崭新。
它应既承载历史的厚重,也接纳当代的轻盈;
既留存扬州的慢调性情,也安放年轻人的精神向往。


▽二楼角落空间© 黑曜石

vsszan2053562011464018.jpg
vsszan2053562011464019.jpg

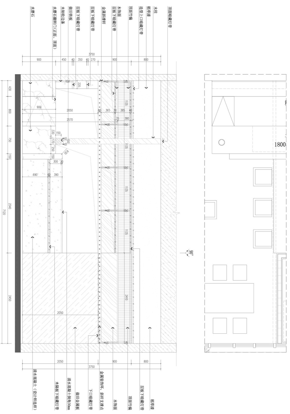
▽一层平面图© 南京苏格空间建筑设计有限公司

vsszan2053562011464020.jpg

▽二层平面图©南京苏格空间建筑设计有限公司

vsszan2053562011464021.jpg

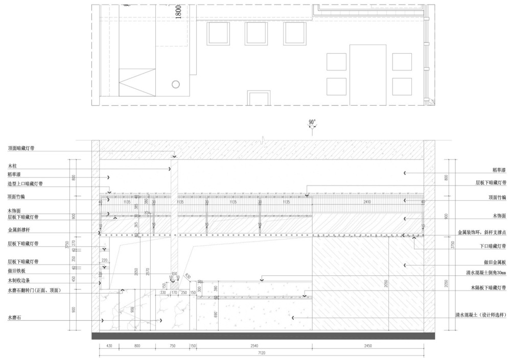
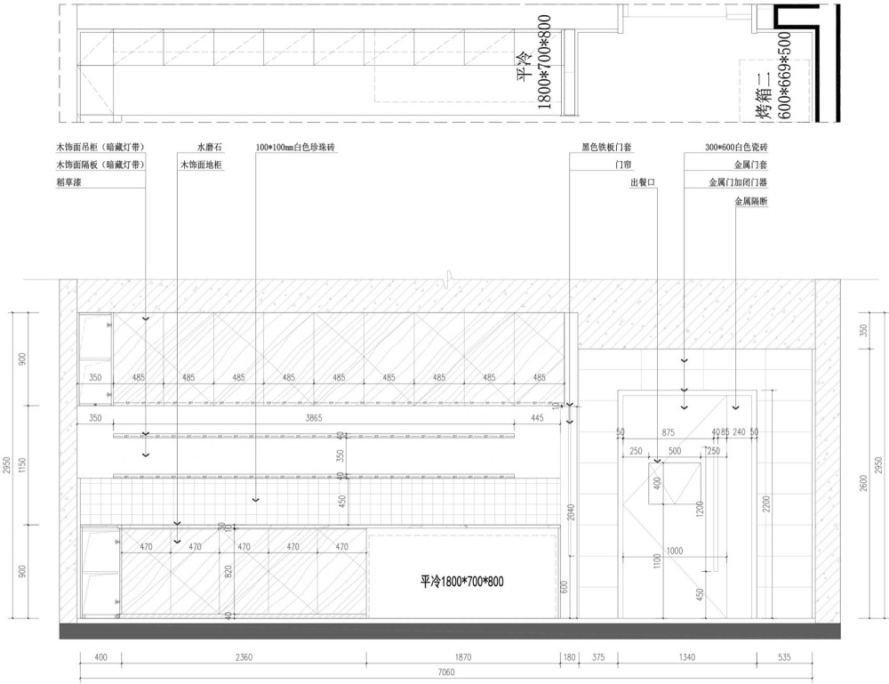
▽立面图©南京苏格空间建筑设计有限公司

vsszan2053562011464022.jpg

vsszan2053562011464023.jpg

vsszan2053562011464024.jpg

▽原始结构图© 南京苏格空间建筑设计有限公司

vsszan2053562011464025.jpg

vsszan2053562011464026.jpg
vsszan2053562011464027.jpg
vsszan2053562011464028.jpg
vsszan2053562011464029.jpg
vsszan2053562011464030.jpg
vsszan2053562011464031.jpg
vsszan2053562011464032.jpg
vsszan2053562011464033.jpg
vsszan2053562011464034.jpg
vsszan2053562011464035.jpg
vsszan2053562011464036.jpg
vsszan2053562011464037.jpg
vsszan2053562011464038.jpg


项目名称:白洋·咖啡
项目类型:餐厅
设计方:南京苏格空间建筑设计有限公司
公司网站:https://mp.weixin.qq.com/s/HnAUUcZ5o-lu3WO9qCwwfQ
联系邮箱:18795907985@163.com
项目设计:2025.04
完成年份:2025.10
设计团队:王海洋 徐燕 白鹭 宦星月
项目地址:中国 扬州
建筑面积:190㎡
摄影版权:黑曜石
灯光设计:光合未来 LIGHT FUTURE
客户:白洋咖啡
材料:莱姆石 稻草漆 老杉木 水洗石

AI文本分析中……
AI色彩命名中……

序赞Ai时刻等待着你的命令!~

与Ai对话形式持续执行相关Ai智能体任务。

95qabc2025-11-20 22:30:40
谢谢分享!!!谢谢分享!
syhgdesign2025-11-21 01:20:07
感谢楼主 辛苦分享
aguai102025-11-28 14:31:13
感谢楼主辛苦分享
您需要登录后才可以回帖 登录 | 注册序赞号

快速回复 返回顶部 返回列表