House in the Forest | Vasconcelos Arquitectura | 2025 | 墨西哥
vsszan121172220427421.jpg
vsszan121172220427422.jpg



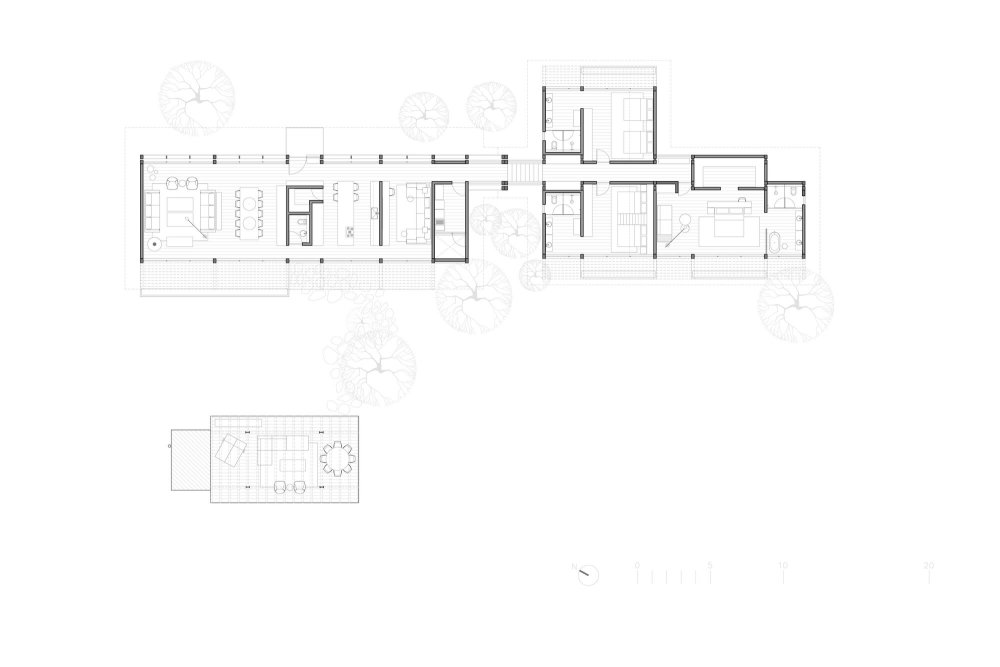
Located in a lush forest of San Simón el Alto, just 2.5 hours from Mexico City, this house redefines the concept of a family retreat in nature. On a 10,000m² plot surrounded by trees reaching 30 meters in height, the project emerges as a reinterpretation of the traditional cabin, designed to disconnect from urban routines and create a deep connection with the natural environment and family.


vsszan121172220427423.jpg
vsszan121172220427424.jpg
vsszan121172220427425.jpg
vsszan121172220427426.jpg
vsszan121172220427427.jpg
vsszan121172220427428.jpg
vsszan121172220427429.jpg
vsszan1211722204274210.jpg
vsszan1211722204274211.jpg
vsszan1211722204274212.jpg
vsszan1211722204274213.jpg
vsszan1211722204274214.jpg
vsszan1211722204274215.jpg
vsszan1211722204274216.jpg
vsszan1211722204274217.jpg
vsszan1211722204274218.jpg
vsszan1211722204274219.jpg
vsszan1211722204274220.jpg
vsszan1211722204274221.jpg
vsszan1211722204274222.jpg
vsszan1211722204274223.jpg
vsszan1211722204274224.jpg
vsszan1211722204274225.jpg
vsszan1211722204274226.jpg
vsszan1211722204274227.jpg
  • 项目设计:Espacio Tangible, Vasconcelos Arquitectura
  • 项目年份:2025
  • 项目摄影:Fabián Martínez, Camila Cossio
  • Category: Houses
  • Team: Andrés Vasconcelos, María Rubio, Tania Arenillas, Jorge Burgos, Fatima Mattar, Elizabeth Merino, Claudia Retana, Ana Karen Torres
  • 景观设计: Taller de Paisaje Entorno
  • 项目成市: San Simón el Alto
  • 项目国家: Mexico
    • 转载自:Archdaily
    • 设计师:Vasconcelos Arquitectura
    • 图片©Vasconcelos Arquitectura
    • 语言:英语
    • 编辑:序赞网
    • 阅读原文
    AI文本分析中……
    AI色彩命名中……

    序赞Ai时刻等待着你的命令!~

    与Ai对话形式持续执行相关Ai智能体任务。

    暂时没有评论,你回一个呗!~

    您需要登录后才可以回帖 登录 | 注册序赞号

    快速回复 返回顶部 返回列表