姬芸堂国医馆 | 汤鑫 | 2025 | 中国陕西
vsszan205436260556051.png


建筑的“元素”不是视觉单元或格式塔,它们是和记忆互动的碰撞与抗衡。

——《肌肤之目》

vsszan205436260556052.png


近几年,中医养生的生活方式慢慢深入人心,受众群体趋于年轻化,中医馆经营模式除了传统的中医问诊、身体理疗之外,可零售的药食同源便携产品也逐渐成为一种贴近日常的刚需。


vsszan205436260556053.png
vsszan205436260556054.png


由H Design Studio 汤鑫设计的姬芸堂国医馆位于西安市高新区木塔寨一栋社区商业的一层,甲方是中医世家,经过长期探索,创立了全新中医馆品牌,定位为新型中医馆,希望区别于传统中医馆的刻板印象,为客人带来全新的空间体验。


vsszan205436260556055.png
vsszan205436260556056.png


在考察了诸多同类型的项目之后,我们发现新型中医馆对设计的需求有着看似冲突的矛盾点,即传统与现代的碰撞,如何用设计师一直秉承的现代设计语言去解这道“中式命题”,同时,在相对有限的预算下,轻量化的适度介入,是项目的核心设计立意。



vsszan205436260556057.png
vsszan205436260556058.png


空间的设计脉络,围绕一个可感知传统意蕴的当代空间而展开,首先,一个自然、质朴的现代“基底”,意味着空间的纯粹与留白,设计在材质的表达上更直观的回应了这个构想,整个墙面选用了白色艺术涂料,并掺杂少量草木,呼应中药的天然选材,产生有质感的肌理,这也是承载流动光影的绝佳介质。


vsszan205436260556059.png
vsszan2054362605560510.png
vsszan2054362605560511.png
vsszan2054362605560512.png


天然洞石接待台,兼具存储药物的功能,洞石材质也延伸至墙面的搁架、抽屉柜,串联起整个动线,形成有节奏的线条、韵律变化。


vsszan2054362605560513.png
vsszan2054362605560514.png


橡木打造的传统中药柜,放置在入户的第一视线点上,作为中医馆的标志性元素,昭示出空间的中医意涵,中药柜的方格子井然有序,排列出秩序感,与空间中的线条、体块相协调,点线面的组合单元构成了平衡、稳定的空间感受。克制的色彩体系,真实的材质触感,营造出自然、本真的场域特质。


vsszan2054362605560515.png
vsszan2054362605560516.png
vsszan2054362605560517.png
vsszan2054362605560518.png
vsszan2054362605560519.png
vsszan2054362605560520.png


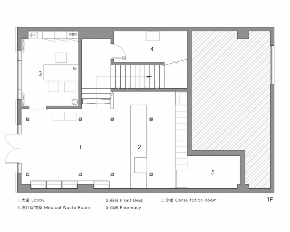
基于场地条件、功能需求、合理动线以及私密性的综合考量,中医馆一层空间主要承载接待、零售功能,将注重隐私的诊疗室和理疗室放置在二层,煮药设备间则位于二层紧邻楼梯的位置,原本部分隔墙被打开,通过嵌入玻璃将自然光和景色引进室内,将煎煮中药的场景释放给客人,传递中医药领域的相关信息。



vsszan2054362605560521.png
vsszan2054362605560522.png
vsszan2054362605560523.png
vsszan2054362605560524.png
vsszan2054362605560525.png
vsszan2054362605560526.png
vsszan2054362605560527.png


木梁、柱是中国传统建筑中的元素,在项目中,我们选用了一种现代空间中常见的建筑构件-镀锌方管,利用榫卯的传统构造方式,在一、二层建构起“梁柱装置”,柱础与地面相同材质,形成统一的“联结”。


vsszan2054362605560528.png
vsszan2054362605560529.png


4公分直径的方管极为轻巧,覆以深红色漆面则更显明快与活力,成为空间中鲜明的记忆点。建构起的梁柱结构,与空间的顶、立面产生多维的层次关系,丰富了观看视角,释放出强烈的秩序感和稳定感,重构了空间的多维感知。


vsszan2054362605560530.png
vsszan2054362605560531.png


这样一来,榫卯结构的“梁柱装置”,将中国传统建筑的意韵抽象化,成为一种文化符号的转译,回应了中医馆传统与现代的碰撞,又作为激发想象的隐喻,完成场所精神的表达。


vsszan2054362605560532.png
vsszan2054362605560533.png
vsszan2054362605560534.png


然而,更为有意义的是,这个项目带给我们一些启发和思考:由4公分镀锌方管单元组件到梁柱结构,再到重塑空间体验,是一次低成本、高效率的尝试,从结果来看,在控制造价的前提下,达到了预期效果,相信在未来,这样的设计策略会多多助益我们对项目的落地和完成度的把控。

vsszan2054362605560535.png

△爆炸图

vsszan2054362605560536.png
vsszan2054362605560537.png


  • 项目名称丨姬芸堂国医馆
  • 项目地址丨中国·西安
  • 项目面积丨300㎡
  • 竣工时间丨2025.11
  • 设计机构丨H Design Studio
  • 主创设计丨汤鑫
  • 设计团队丨董朋号、吴梓畅、赵青
  • 软装设计丨屈苗、方芳
  • 家具陈列丨U⁺家具
  • 项目摄影丨刘南南

vsszan2054362605560538.png

H Design Studio 自2020年创立伊始,汇聚了一批拥有海外工作经验及学术背景的设计团队,主要从事办公空间、商业空间、地产空间、精品酒店空间、公共文化空间、高端私宅等设计项目。团队从多维度深入研习,专注于设计的精炼、打磨与本质回归,在深度钻研自我风格的同时,不断的探索多元化的设计方向,潜心研究空间的设计逻辑思维方式,致力于为客户提供高品质个性化的定制服务。作为新生代的设计力量,凭借超前的设计语言,输出了众多具有标志性的设计作品,并发表于众多专业设计媒体,同时摘取了多项国内外设计大奖。
vsszan2054362605560539.png

汤鑫

H DESIGN STUDIO 创始人(主持设计师)

A NEW DESIGN LAB 主理人


姬芸堂国医馆 | 汤鑫 | 2025 | 中国陕西_vsszan2054362605560543.png
AI文本分析中……
AI色彩命名中……

序赞Ai时刻等待着你的命令!~

与Ai对话形式持续执行相关Ai智能体任务。

95qabc7 天前
谢谢分享!!!谢谢分享!
您需要登录后才可以回帖 登录 | 注册序赞号

快速回复 返回顶部 返回列表