秦皇岛GatherHouse玖山合吉 | 北京山房筑艺术设计有限公司 | 2025 | 中国河北
建筑本身就是一个“发酵”的载体。红砖墙体是“过去”的风味,记录了工业时代的记忆;耐候钢的锈蚀是“现在”的进行时,如同面包在烘烤中持续发生的美拉德反应,随时间推移呈现出不同的色泽与质感;而穿梭其中的人与新鲜出炉的面包,则代表着“未来”的活力与新生。整个空间,就是一个巨大的、缓慢发酵的容器。

▽项目外观© 吴学文

vsszan205488281016211.jpg
vsszan205488281016212.jpg


项目概述

GatherHouse玖山合吉坐落于秦皇岛西港花园的工业遗存区内,前身为一座结构规整的工业厂房。设计从面包的烘制过程中汲取灵感,将标志风味生成的“美拉德反应”转译为空间的核心叙事语言。

▽入口© 吴学文

vsszan205488281016213.jpg

▽室外座椅与遮阳棚设计© 吴学文

vsszan205488281016214.jpg


第一幕:序曲 – 粗犷的暗示

顾客首先触摸到的是粗粝的红砖和冷硬的耐候钢。此时的空间语言是宏大、厚重、静止的。刻意保留部分原建筑的工业印记,如模糊的厂标、斑驳的油漆,作为故事的“扉页”。

▽街角视角© 吴学文

vsszan205488281016215.jpg

若有若无的麦香开始从室内溢出,与旧建筑的气味形成初次对话,勾起探索的欲望。

▽入口大厅© 吴学文

vsszan205488281016216.jpg

步入室内,由木材与发光杜邦纸构筑的圆形明厨装置,以柔和的形态与光感,呼应着面包内里的绵软与温热。西侧增设的大窗,为室内引入充沛光线,并建立起与室外庭院空间的视觉连接。明厨周围的环形流线设计,鼓励顾客环绕、驻足、观看,甚至与面包师进行简短交流,强化“现场感”与“透明感”。

▽吧台售卖区© 吴学文

vsszan205488281016217.jpg

▽明厨周围的环形流线设计© 吴学文

vsszan205488281016218.jpg

▽吧台细节© 吴学文

vsszan205488281016219.jpg


第二幕:高潮 – 温暖的核

这是整个旅程的心脏与舞台。圆形明厨,不仅是功能核心,更是一个“仪式中心”。发光杜邦纸营造出的柔和光晕,如同面包内瓤的温润。顾客可以身临其境地感受到面包师如何将平凡的面团变为金黄的艺术品——这是“美拉德反应”的动态演示。面团入炉的声响、面包师的忙碌身影,共同构成了一场充满生命力的表演。

▽室内木饰展台© 吴学文

vsszan2054882810162110.jpg

烘焙的香气是一种强大的情感触发器。设计可以有意识地引导这种“嗅觉体验”,让麦香、黄油香与旧厂房的“历史气息”(旧木、微潮的矿物质感)混合,发酵出一种独特的、能唤起深层记忆的“场所精神”。顾客在此品尝的不仅是一块面包,更是一段被香气激活的、关于时光的遐想。

▽展台上的面包© 吴学文

vsszan2054882810162111.jpg

面团在面包师的手中变幻成各种造型,经由烤箱烘烤后呈现在展台中售卖。我们想象这次的项目是一间专门制作美味面包的“面包工坊”,将客户置身于制作面包的空间中,让客户在精心营造的氛围中感受面包出炉的瞬间和香气四溢的幸福感。

▽面包师与售卖中的面包© 吴学文

vsszan2054882810162112.jpg


第三幕:沉淀 – 光与景的交融

当顾客手持面包走向东侧大窗,旅程从内部的“聚焦”转向外部的“舒展”。充沛的阳光将面包的色泽渲染得更加诱人。窗框将庭院景色定格成一幅活的画面,随着四季更迭而变换。此时,手中的温热面包与窗外的自然光影产生了共鸣,“内”与“外”的边界被模糊,品尝的体验因景色的融入而变得更加诗意。

▽沙发座位区© 吴学文

vsszan2054882810162113.jpg
vsszan2054882810162114.png


第四幕:回味 – 美好的感受

嵌入原有窗洞的休憩座位,是旅程的休止符和回味空间。它保留了建筑的工业基因,又提供了极具安全感和包裹性的角落。顾客在这里细细品味面包的最后一口余香,回望整个空间,完成从“参观者”到“体验者”的身份转变。

▽室内概览© 吴学文

vsszan2054882810162115.jpg
vsszan2054882810162116.jpg

▽沿窗座位区© 吴学文

vsszan2054882810162117.jpg

▽沿窗座位区近景© 吴学文

vsszan2054882810162118.jpg
vsszan2054882810162119.jpg

▽室内细节© 吴学文

vsszan2054882810162120.jpg
vsszan2054882810162121.jpg

天窗倾泻光影、老砖墙对话新陈设,空气中弥漫着现烤面包的麦香与咖啡醇香,引导顾客穿梭于暖色系陈列台与休闲座区间。

▽街角近景© 吴学文

vsszan2054882810162122.jpg
vsszan2054882810162123.png
vsszan2054882810162124.jpg

外摆区域既是室内活动的延伸与生长,也是对城市界面的激活,我们以高度概括的抽象屏风语言去建构出一个更好走进的场域。

▽开放场域© 吴学文

vsszan2054882810162125.jpg

▽外摆区域© 吴学文

vsszan2054882810162126.jpg

外摆区新建的遮阳棚,采用工业脚手架作为结构支撑,巧妙使用篷布成为受力的组成部分,构建出一个轻巧的装置体,与厚重的历史建筑形成了一种张弛有度的并置对话,极具灵活性,可轻松变身为周末市集、面包工坊、小型音乐沙龙或艺术快闪的场地。耐候钢的硬朗与篷布的柔软,为各种活动提供了丰富的背景。

▽建筑夜景© 吴学文

vsszan2054882810162127.jpg
vsszan2054882810162128.jpg

项目空间成为一本“可阅读的”教科书,向顾客讲述着工业历史、建筑美学与烘焙科学的故事。它连接了城市的过去(工业遗产)与现在(品质生活),成为秦皇岛文化地图上一个独特的坐标。

▽室内+户外平面© 北京山房筑艺术设计有限公司

vsszan2054882810162129.jpg

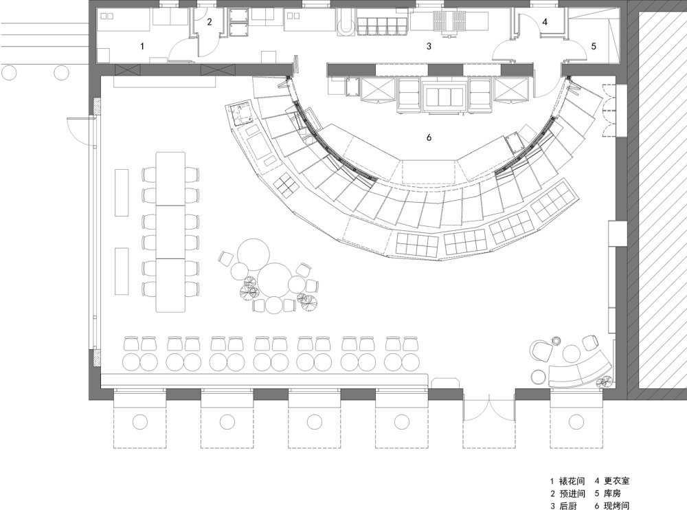
▽室内平面© 北京山房筑艺术设计有限公司

vsszan2054882810162130.jpg

▽立面© 北京山房筑艺术设计有限公司

vsszan2054882810162131.jpg
vsszan2054882810162132.jpg

  • 项目名称:GatherHouse玖山合吉
  • 项目地点:河北秦皇岛西港花园
  • 建筑面积:254平方米
  • 设计时间:2024年11月
  • 完成年份:2025年6月
  • 设计单位:北京山房筑艺术设计有限公司
  • 主创设计:刘宇洁、张鹏
  • 设计总监:钟山风
  • 设计团队:任晓雪、希海红、贺茂华
  • 项目摄影:吴学文
vsszan2054882810162133.jpg
vsszan2054882810162134.jpg
vsszan2054882810162135.jpg
AI文本分析中……
AI色彩命名中……

序赞Ai时刻等待着你的命令!~

与Ai对话形式持续执行相关Ai智能体任务。

暂时没有评论,你回一个呗!~

您需要登录后才可以回帖 登录 | 注册序赞号

快速回复 返回顶部 返回列表