来野山川里 | 偏离设计 | 2025 | 中国浙江



屋内是昏暗的,透过暖色的灯光,散发着慵懒的气息,雨水打在黑色的石子路面,带着些许声响,人穿行于廊下,坐望处,雨渐小,远山泛起了雾。


▽项目鸟瞰© 滑雪涛

vsszan205638051803401.jpg
vsszan205638051803402.jpg

▽建筑远观© 滑雪涛

vsszan205638051803403.jpg

▽项目立面概览© 壹高

vsszan205638051803404.jpg



关于场所的构思
项目地处于浙江安吉县山川乡,漫山的竹林与连绵的山体构成这一区块独特的自然环境。


▽场地区位图© 偏离设计

vsszan205638051803405.jpg

▽场地平面图© 偏离设计

vsszan205638051803406.jpg

▽通往建筑的行车道© 滑雪涛

vsszan205638051803407.jpg



车子驶出隧道,经由山脚下的一个村庄盘山而上,远山随着海拔的上升开始显现,路过半山腰的一个拐弯处,整片竹林置于眼前,风吹竹林带来沙沙声响,场地的选址正处于这一拐弯处的洼地。


▽建筑隐于竹林中© 滑雪涛

vsszan205638051803408.jpg



场地北面为一条穿山而过的行车道,南面为一条通往村里养鸡场的小路,下面为一片农田,像是很久没打理,整个处于一种无序混乱的状态,建设用地刚好为两条路中间的一片竹林地。


▽后院© 滑雪涛

vsszan205638051803409.jpg
vsszan2056380518034010.jpg

▽通往农田的小路© 滑雪涛

vsszan2056380518034011.jpg



从人的视角望去,东面,西面与北面均为山坡,南面有较好的景观面,但现有的竹林遮蔽下面农田的同时,也遮蔽了远山的景观,使视野受到局限。好在地块南北高差近7米,利用高差,在高处平整出基础地块,保留下方竹林,构建以远山近林为主体景观的旅宿度假空间,设计也以此作为依据展开。


▽以远山近林为主体景观的度假空间© 壹高

vsszan2056380518034012.jpg
vsszan2056380518034013.jpg

▽观景露台© 滑雪涛

vsszan2056380518034014.jpg



建筑主体为3栋10米*13米的方形体块,利用场地东西近60米长的条件,建筑横向水平拉开,通过连廊,串起各个功能区块,高度上的错层与一个巨大的倾斜屋面,构筑起建筑的基本视觉形象。空间上,由西往东匀质铺开,通过层层递进的方式,延长整个游进路线。


▽设计草图© 偏离设计

vsszan2056380518034015.jpg

▽巨大的倾斜屋面© 壹高

vsszan2056380518034016.jpg

▽中庭景观© 壹高

vsszan2056380518034017.jpg

▽中庭天井© 壹高

vsszan2056380518034018.jpg
vsszan2056380518034019.jpg



行车道以下3.4米作为建筑基础标高,将接待,书吧,茶室,餐厅这些公共空间置于底层,以半地下室的状态呈现,建筑中庭与南面巨大的开窗消减条形空间带来的冗长感,将景观最大限度的引入建筑内部,3米悬挑长廊作为应对山区多雨气候的同时建立空间内外的模糊性与灵活性,鼓励人们自由穿梭分享自身的感受。


▽接待大堂© 壹高

vsszan2056380518034020.jpg
vsszan2056380518034021.jpg

▽大堂望向庭院© 壹高

vsszan2056380518034022.jpg
vsszan2056380518034023.jpg

▽书吧© 壹高

vsszan2056380518034024.jpg
vsszan2056380518034025.jpg

▽餐厅© 壹高

vsszan2056380518034026.jpg



整个建筑在作为度假产品这一功能属性下,以3.2米的单层高度作为基本标高单元,在一个大体量的建筑空间内,保证尺度是宜人的,舒适的。材料上以木材,石材,灰泥涂料等自然质感材质为主,避免材料的过渡使用,深色调的控制也使整个空间内部呈现一种内敛的状态。压低空间内部的明度目的是将视线更聚焦于外部的风景。


▽大体量的建筑空间内© 壹高

vsszan2056380518034027.jpg
vsszan2056380518034028.jpg

▽室内以深色调为主© 壹高

vsszan2056380518034029.jpg
vsszan2056380518034030.jpg

▽将视线更聚焦于外部的风景© 壹高

vsszan2056380518034031.jpg
vsszan2056380518034032.jpg



外立面深色灰泥的拉毛处理,几何化的建筑形态,明确场所的此时此地,同时强化建筑作为物质这一特性的稳定性。建筑前方预留近11米宽的戏水池,留建筑与景观一个观望的距离,场所在整片竹林中有了一个向心力,也给民宿提供一个巨大的户外活动场地,抵达这个动词有了具象的画面。


▽深色灰泥的拉毛处理© 壹高

vsszan2056380518034033.jpg

▽戏水池© 滑雪涛

vsszan2056380518034034.jpg



将客房置于上部,三栋建筑各自独立,减少房间因密度而带来的干扰。高度的提升使景观有了更好的呈现。应对度假类空间的特性,我们尽量保证内部空间的简洁性,舒适性,同时避免过渡化设计所带来的视觉干扰,设置每个窗户的朝向,给房间提供最佳的观景视野。


▽客房© 壹高

vsszan2056380518034035.jpg
vsszan2056380518034036.jpg

▽泡池© 壹高

vsszan2056380518034037.jpg
vsszan2056380518034038.jpg

▽洗漱台© 壹高

vsszan2056380518034039.jpg
vsszan2056380518034040.jpg



此案是我们尝试将建筑即独立于环境又相互渗透的一次尝试,通过解构建筑的局部,构建一个由物质、氛围、以及使用者空间体验为核心的旅宿度假场所。


▽夜览© 壹高

vsszan2056380518034041.jpg

▽总平面图© 偏离设计

vsszan2056380518034042.jpg

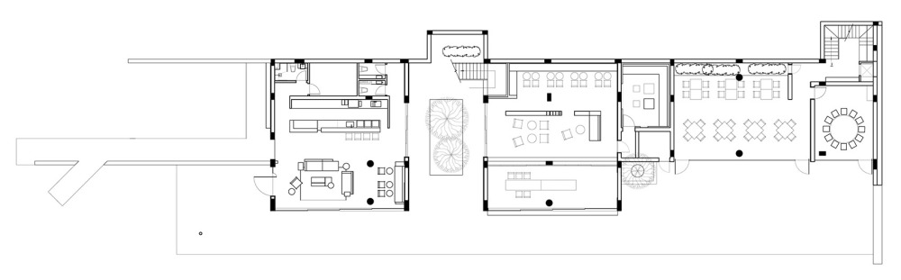
▽首层平面图© 偏离设计

vsszan2056380518034043.jpg

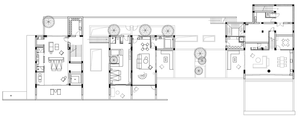
▽二层平面图© 偏离设计

vsszan2056380518034044.jpg

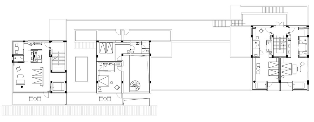
▽三层平面图© 偏离设计

vsszan2056380518034045.jpg

▽地下平面图© 偏离设计

vsszan2056380518034046.jpg

▽剖立面图© 偏离设计

vsszan2056380518034047.jpg

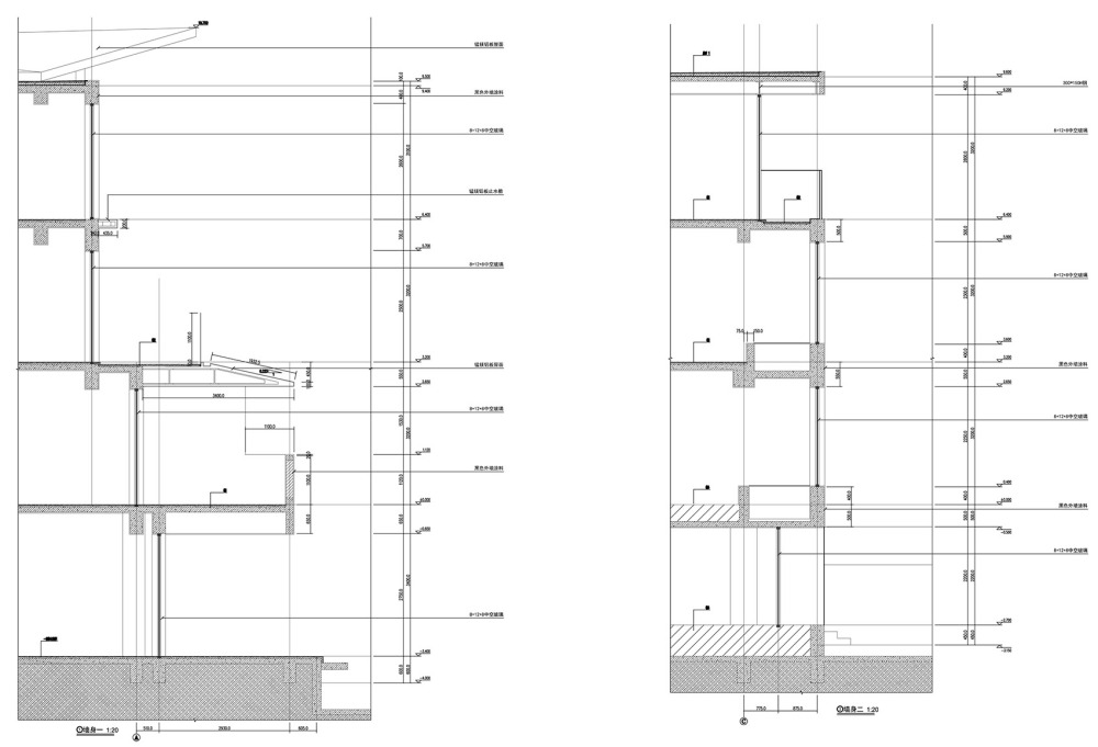
▽细部节点© 偏离设计

vsszan2056380518034048.jpg
vsszan2056380518034049.jpg
vsszan2056380518034050.jpg
vsszan2056380518034051.jpg
vsszan2056380518034052.jpg
vsszan2056380518034053.jpg
vsszan2056380518034054.jpg
vsszan2056380518034055.jpg
vsszan2056380518034056.jpg
vsszan2056380518034057.jpg
vsszan2056380518034058.jpg


项目信息
项目名称 来野 . 山川里
项目业主 湖州来野酒店管理有限公司
设计公司 偏离设计
设计时间 8/2023—12/2023
施工时间 3/2024—9/2025
主持设计 小岛、戚帅奇
设计团队 付冬冬、李明思、赵英凯、郑梦青
软装设计 潘昕欣、熊良洁
景观设计 又见设计
结构设计 飞鱼设计
项目面积 2000sqm
建筑工程 信辉建设工程有限公司
装饰工程 浙江拾叙装饰工程有限公司
景观工程 常春藤景观庭院
灯光设计 科尚照明
项目摄影 壹高(翰墨视觉),滑雪涛(直觉建筑空间摄影)
主要材料 老木板,水洗石,灰泥涂料

AI文本分析中……
AI色彩命名中……

序赞Ai时刻等待着你的命令!~

与Ai对话形式持续执行相关Ai智能体任务。

暂时没有评论,你回一个呗!~

您需要登录后才可以回帖 登录 | 注册序赞号

快速回复 返回顶部 返回列表