“空港云”展示中心 | 中国建筑西南设计研究院有限公司 | 2021 | 中国四川



“空港云”展示中心坐落于成都双流机场旁的运动公园内,是一座融合科普、体验与互动功能的航空主题科技展馆。由于场地南侧距离T1航站楼跑道仅约300米,该展示中心亦成为公众观赏飞机起降壮观场景的绝佳观景平台。建筑概念以“云”为意象灵感,通过对城市空间环境的回应,在“云起”、“云落”的形态意象与工程创新中,塑造具有区域标志性的建筑形体与场所体验。


▽项目鸟瞰© 404NF STUDIO

vsszan205698090857321.jpg

▽项目概览© 404NF STUDIO

vsszan205698090857322.jpg
vsszan205698090857323.jpg



云起
抬升 / 塑地标建筑形态
本项目地处成都市双流区临空商务组团,作为双流国际机场站后片区的核心发展板块与门户形象展示区,具有重要的城市区位价值。在项目启动初期,空港商务区整体建设尚处初步发展阶段,周边建成环境以形态各异的低层建筑为主,空间形态较为零散,景观环境复杂。同时,用地紧邻的城市主干道具有较大尺度,对场地形成较强的空间压迫感。


▽周边建筑形态分析© 西南设计院

vsszan205698090857324.jpg

▽从公园看向展厅© 404NF STUDIO

vsszan205698090857325.jpg



为在有限的用地范围内打造具有标志性的展示空间,使其从周边建成环境中脱颖而出,并进一步强化区域城市发展的核心意象,设计采取了“抬升”的形体策略。通过将展厅主体结构抬高至11米标高,使其凌驾于周边环境之上,形成沿城市中轴线方向上的视觉焦点,有效提升了建筑的空间昭示性与地标感。


▽提升建筑的地标感© 404NF STUDIO

vsszan205698090857326.jpg



消隐 / 造活力地景公园
在“抬升”的形态生成逻辑下,设计通过地景化策略对单层裙房基座进行视觉消隐,将其转化为覆土草坡形态,形成舒缓起伏的开放式市民公园。有机形态的覆土基座在南北两侧围合出市民广场与多处景观庭院,其流畅轮廓与周边绿地系统自然衔接,延续了城市公园的肌理。草坡下部空间整合了主题书店、展廊、轻食餐饮与咖啡休闲等复合功能,共同构建了一处服务于市民的文化休闲聚落。基座的消隐处理进一步强化了主体展厅的视觉表现力,而地景化的草坡屋顶不仅引导观景、休憩与集会等公共行为,更通过承载露天电影、夏日音乐会等城市活动,将建筑的“第五立面”转化为具有社会凝聚力的活力公共节点。


▽场地规划© 西南设计院

vsszan205698090857327.jpg

▽草坪上活动的市民© 404NF STUDIO

vsszan205698090857328.jpg
vsszan205698090857329.jpg



云中漫步 / 沉浸式观展游线
空间动线的核心策略,在于构建内外场景的持续性对话。设计以“云中漫步”作为沉浸式游走路径串联各功能节点,使观展行为与城市景观的体验紧密交织。主展厅由全视野CAVE数字沙盘和开放式展区两大功能构成,不同于常规展厅的“黑盒子”空间,整个展陈设计结合外围城市风光与中央庭院景观,充分融入自然光影,使参观者在观展行进过程中,仿若置身云端。建筑二层及夹层设置的观景平台,作为路径中的重要节点,在观展流线中巧妙植入驻足远眺飞机起落的间歇时刻,强化了场所的独特禀赋。展厅内部借由流动的立体环廊,营造出一个融合展览、交流与表演的沉浸式场所。


▽展厅室内视角© 404NF STUDIO

vsszan2056980908573210.jpg



浮云细雨 / 抽象化形态演绎
如何体现“云朵”的轻柔漂浮之势,是造型设计的关键。外立面设计将二层景观大平台纳入整体考量,运用横向金属百叶系统强化建筑的水平延展性。基于参数化方法,设计对云朵形态进行图像与数据之间的转译,并据此控制百叶板的出挑宽度,使其沿立面呈现细腻的渐变韵律。这种虚实交织的构造处理,以抽象的建筑语言重新诠释了“云”的轻盈与漂浮感。与此同时,横向金属百叶也发挥着积极的遮阳作用,有效降低太阳辐射热,提升建筑的整体节能性能。


▽设计概念© 西南设计院

vsszan2056980908573211.jpg

▽雪山与展厅© 刘伟

vsszan2056980908573212.jpg



为强化二层主展厅的漂浮感,设计对入口架空区的支撑体系进行“化整为零”的视觉处理:将承重钢柱分散布置,并与装饰杆件整合,以此削弱结构体量感。这些零星错落的杆件,最终成为立面构成中的积极要素,隐喻云层之下疏落的雨丝,赋予技术构件以诗意的表达。


▽漂浮感的屋檐© 404NF STUDIO

vsszan2056980908573213.jpg



云落
落地完成度控制
外立面材料的控制核心,在于诠释“云”的洁白与润泽质感,每一种材料的特性都直接决定了建筑整体意象的最终呈现。为强化云层水平延展的漂浮态势,外层金属幕墙采用渐变的横向挑板系统,最大出挑距离达8米。为整合排水功能,多数板材采用双曲面造型,相较于常规铝板,铝复合板在大跨度条件下更能保证板面的平整度。每块挑板的端部收边均以半圆弧截面铝型材处理,进一步强化了“云朵”圆润的形态特质。


▽细部节点© 西南设计院

vsszan2056980908573214.jpg

▽空中观景台© 404NF STUDIO

vsszan2056980908573215.jpg



主展厅玻璃选用彩釉超白玻,使其与白色金属挑板在视觉上融为一体。这些釉点依据立面线条分层,自下而上按5%至40%的梯度,设置八种疏密变化,形成单向的虚实渐变效果。这一策略在保障室内观景视野不受遮挡的同时,营造出细腻而柔和的视觉过渡层次。


▽层层变化的形体© 404NF STUDIO

vsszan2056980908573216.jpg



为最大限度地削弱板材分缝对整体立面的视觉干扰,设计借助参数化方法,对玻璃与铝复合板的分格进行统一规划,确保二者模数对应。此外,在充分考量生产加工、施工周期与造价等实际因素的基础上,通过各标高不同曲率板面的模数化控制,最终实现了建筑效果、构造逻辑与工程经济性之间的平衡。


▽夜景© 404NF STUDIO

vsszan2056980908573217.jpg



“空港云”展示中心超越了传统展陈建筑的范畴,它作为一处融合文化传播与日常生活的城市公共客厅,成功植入了市民的日常图景。项目投入运营后,已成为广受当地居民喜爱的休闲目的地,吸引人们于此观览飞机起降、进行亲子活动与日常散步游玩,焕发出持续的城市活力。与此同时,对于从T1航站楼起飞的旅客而言,当从高空俯瞰,这朵静卧于跑道尽头的“云”,以其柔和的形态为大地景观增添了诗意的一笔,仿若飞行的诗意注脚,用柔和的曲线告诉每个旅人:从此地出发,皆是轻盈的旅程。


▽总平面图© 西南设计院

vsszan2056980908573218.jpg

▽首层平面图© 西南设计院

vsszan2056980908573219.jpg

▽草坪层平面图© 西南设计院

vsszan2056980908573220.jpg

▽二层平面图© 西南设计院

vsszan2056980908573221.jpg

▽二层夹层平面图© 西南设计院

vsszan2056980908573222.jpg

▽立面图© 西南设计院

vsszan2056980908573223.jpg

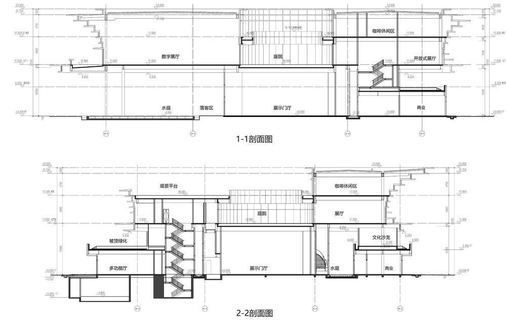
▽剖面图© 西南设计院

vsszan2056980908573224.jpg


项目完整信息
项目名称:”空港云”展示中心
项目类型:建筑
项目地点:四川成都
建成状态:建成
设计时间:2019年6月-2019年11月
建设时间:2019年12月-2021年6月
用地面积:38180平方米
建筑面积:12159平方米
设计单位:中国建筑西南设计研究院有限公司
设计团队:中国建筑西南设计研究院有限公司郑勇工作室、设计九院
设计总负责人:郑勇、肖迪佳
完整名单:
建筑专业:陈艳妍、李国熊、金秋平
结构专业:蒋朝志、王诺思、曾学悠
给排水专业:胡永基
暖通专业:张立文、邱灏
建筑电气专业:梁维坤、张凯力
建筑智能化专业:关怀、罗伟航
幕墙专业:蔡红林、董兴斌、孟晓明
景观专业:刘乔、伍贤强、杨珺涵、周靖涛
建筑技术专业:邱雁玲、罗臣佑
造价专业:郑燕玮、杨婷婷、袁永超
摄影师:404NF STUDIO、刘伟

AI文本分析中……
AI色彩命名中……
95qabc2025-12-9 11:59:11

谢谢分享!!!谢谢分享!
syhgdesign2025-12-10 01:45:12
感谢楼主辛苦分享
您需要登录后才可以回帖 登录 | 注册序赞号

快速回复 返回顶部 返回列表