白的白宅 | 7F设计 | 2025 | 中国陕西



位于西安的三口三层阁楼住宅,以“纯粹“为设计基底,为家庭成员营造一个清爽有趣的共享居所。


▽室内空间概览,Interior space overview @ Leo
vsszan205707091809471.jpg

▽一层从入户看至客厅,Sightline from the entry to the living room @ Leo
vsszan205707091809472.jpg

▽入户首先看到有洞洞板的展示区域,
vsszan205707091809473.jpg

▽中间的廊道用来丰富动线,The corridor is designed to enrich the circulation path @ Leo
vsszan205707091809474.jpg



在纯白色空间中,置入由染色桦木板制作而成的体块,每面都具有有特定的功能,与白色部分搭配形成功能区域划分,即营造了空间的视觉效果,也让日常使用合理有效。


▽西厨区域,Western kitchen area @ Leo
vsszan205707091809475.jpg
vsszan205707091809476.jpg

▽二层望向厨房,Second floor view to kitchen @ Leo
vsszan205707091809477.jpg

▽中厨,Chinese kitchen@ Leo
vsszan205707091809478.jpg
vsszan205707091809479.jpg



建筑本身有一个采光天井,将部分楼板拆除后将天光引入岛台,得到舒服的自然光照。


▽南向的钢琴收纳,Piano alcove @ Leo
vsszan2057070918094710.jpg

▽一楼客餐厅,Ground floor living and dining area @ Leo
vsszan2057070918094711.jpg
vsszan2057070918094712.jpg

▽通往二层的楼梯,Stairs to second floor @ Leo
vsszan2057070918094713.jpg



二楼围绕天井,将双卧室与衣帽间、盥洗室打通,并用移门分隔,在孩子年龄尚小的阶段与主卧联通,培养亲子关系互动,让三口之家没有“实墙“带来的隔阂。


▽小孩房与楼梯,Children’s room & stairs @ Leo
vsszan2057070918094714.jpg
vsszan2057070918094715.jpg

▽盥洗室,bathroom @ Leo
vsszan2057070918094716.jpg
vsszan2057070918094717.jpg



三层阁楼为共享娱乐空间,结合屋主三人兴趣喜好,设计大量开放式收纳。大家在相同的空间内各自做自己的事情,互不打扰,又能同时望向对方,是亲子关系最好的相处模式。


▽三楼阁楼概览,Third-floor loft overview @ Leo
vsszan2057070918094718.jpg
vsszan2057070918094719.jpg

▽书桌,Study table @ Leo
vsszan2057070918094720.jpg
vsszan2057070918094721.jpg

▽楼梯与天井,Staircase and Light well @ Leo
vsszan2057070918094722.jpg
vsszan2057070918094723.jpg



书桌墙面用软木装饰,也能将灵感保留在墙上,线性插座可以随意搭配,方便使用。


▽一层平面图,Ground floor plan @ 7F设计工作室
vsszan2057070918094724.jpg

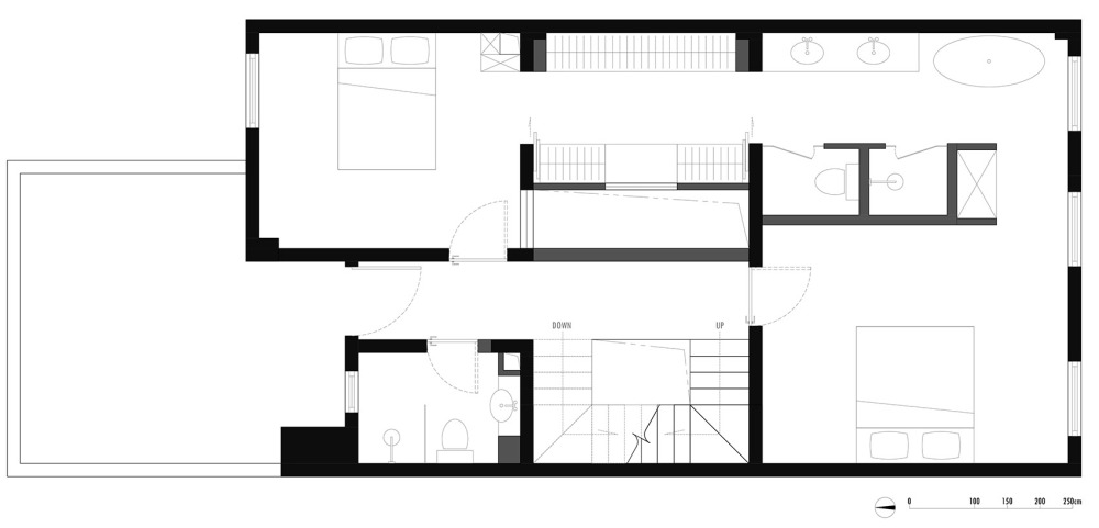
▽二层平面图,Second floor plan @ 7F设计工作室
vsszan2057070918094725.jpg

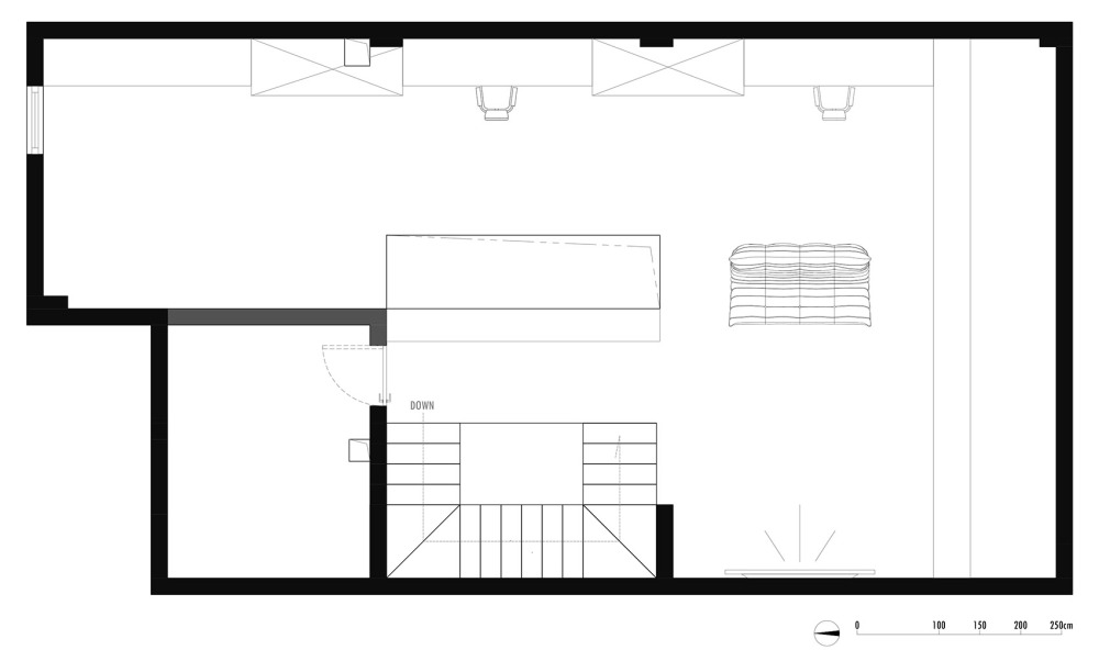
▽三层平面图,Third floor plan @ 7F设计工作室
vsszan2057070918094726.jpg


项目名称:白的白宅
项目地点:陕西西安
设计方:7F设计工作室
联系邮箱:501348608@qq.com
设计师:王烨
摄影师:Leo

AI文本分析中……
AI色彩命名中……

序赞Ai时刻等待着你的命令!~

与Ai对话形式持续执行相关Ai智能体任务。

暂时没有评论,你回一个呗!~

您需要登录后才可以回帖 登录 | 注册序赞号

快速回复 返回顶部 返回列表