3505号公寓 | 基本建筑 | 2022 | 中国四川



3505号公寓位于超高层建筑内,原始户型为办公产权套内面积60平米空间。矩形平面(约8800×6700)十分规整,仅烟道与两根立管不可拆除。空间双向采光,视野开阔,更难得的是附有一个34平米的露台,其混凝土顶板直接暴露混凝土和管线,呈现粗犷的结构质感。


▽ 原始平面图© 基本建筑

vsszan205963221638031.jpg

▽ 从飘窗一侧看向厨房和入口© 李恒

vsszan205963221638032.jpg

▽ 从桌子看向露台© 李恒

vsszan205963221638033.jpg

▽ 从室内看向露台© 李恒

vsszan205963221638034.jpg

▽ 钢制搁板兼做去露台的踏步© 李恒
vsszan205963221638035.jpg

▽ 露台上漂浮的木平台© 李恒

vsszan205963221638036.jpg



设计旨在利用现有物理条件,为独居者打造一个能容纳丰富生活场景的开放住所。核心策略在于:用轻介入的方式将辅助功能集约整合,以释放出一个完整、自由、松弛的公共区域。因此,我们将所有功能区集中布置于景观相对弱的两侧,并尽量贴边设置。仅用少量墙体界定卫生间与睡眠区;将等高的橱柜与洗面台整合为连续台面;等高的餐桌与书桌也合并为一。由此,我们赢得了一个开阔的公区,且最佳景观的北侧与东侧毫无遮挡。东侧露台平台与室内等宽延伸,进一步放大了空间的开阔体验。


▽ 开阔的起居室区域© 李恒

vsszan205963221638037.jpg

▽ 起居室和水平连续窗© 李恒

vsszan205963221638038.jpg

▽ 悬浮大桌子和沙发© 李恒

vsszan205963221638039.gif

▽ 大桌子© 李恒

vsszan2059632216380310.jpg

▽ 起居室的读书角© 李恒

vsszan2059632216380311.jpg

▽ 从桌子望向厨房© 李恒

vsszan2059632216380312.jpg

▽ 桌子背后的衣橱用移动帘子做软移门© 李恒

vsszan2059632216380313.jpg

▽ 桌子背后的走道© 李恒

vsszan2059632216380314.jpg

▽ 飘窗的旧木板通往寝区© 李恒

vsszan2059632216380315.jpg

▽ 寝区© 李恒

vsszan2059632216380316.jpg

▽ 寝区的帘子移门可以关闭寝区© 李恒




公区仅施以少量精细化干预:在封闭卫生间与开放公区之间,嵌入一个凹入的盥洗空间作为过渡;采用吊挂及单斜杆支撑的悬浮桌面增强通透感;入口处悬挂半透纱帘,避免开门见厅,形成轻柔的视觉缓冲。


▽ 玄关的帘子左侧© 李恒

vsszan2059632216380317.jpg

▽ 玄关的帘子右侧© 李恒

vsszan2059632216380318.jpg

▽ 顶部保留了原始混凝土脱模和工人修补的痕迹© 李恒

vsszan2059632216380319.jpg

▽ 起居室一角© 李恒

vsszan2059632216380320.jpg

▽ 卫生间© 李恒

vsszan2059632216380321.jpg

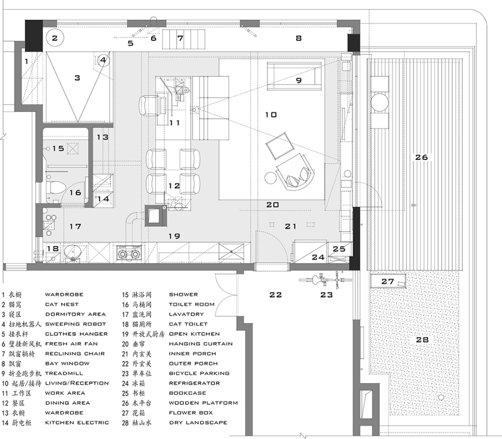
▽ 设计平面图© 基本建筑
vsszan2059632216380322.jpg

▽ 立面图及桌面钢结构轴测图© 基本建筑
vsszan2059632216380323.jpg
vsszan2059632216380324.jpg


项目名称:3505号公寓
项目类型:住宅公寓室内设计
设计方:基本建筑
联系邮箱:2798020@qq.com
项目设计:2021
完成年份:2022
设计团队:李愉,李沐然
项目地址:成都
建筑面积:82㎡
摄影版权:李恒
客户:私人
材料:混凝土,微水泥,旧木地板

AI文本分析中……
AI色彩命名中……
95qabc2025-12-30 19:30:09
谢谢分享!!!谢谢分享!
ppap7772026-2-28 17:53:43
感谢分享!!感谢分享!!
您需要登录后才可以回帖 登录 | 注册序赞号

快速回复 返回顶部 返回列表