东方山佛教协会改造设计 | 反几建筑 | 2025 | 中国湖北



湖北东方山,被誉为“三楚第一山”,致力于打造中国佛教的第五大名山。在弘化禅寺设立的“药师佛道场”,与鄂西的武当山相对应,在湖北形成“问道武当、拜佛东方”的宗教文化旅游格局。


▽弘化禅寺与基地鸟瞰© 此间建筑摄影 赵奕龙

vsszan205979231156351.jpg

▽从自然中来的建筑入口©此间建筑摄影 赵奕龙

vsszan205979231156352.jpg

▽流动的空间序列©此间建筑摄影 赵奕龙

vsszan205979231156353.jpg

▽直面自然的室内空间©此间建筑摄影 赵奕龙

vsszan205979231156354.jpg



东方山佛教协会项目位于湖北黄石市东方山弘化禅寺东南方,隐于一片山林环境之中。项目用地现状为一座年久失修的弥勒宫,拟将其改造成为集佛教文化展览与会议接待为一体的建筑组团。


▽改造后的东方山佛教协会©此间建筑摄影 赵奕龙

vsszan205979231156355.jpg



01 “动”的空间
山在自然中是静态的,但山脉的走势又是运动的。改造方案希望东方山佛教协会以自然流动的空间语法来表达对山的致敬,形成张弛有度、层层递进、步移景异的山地建筑空间体验。


▽宋·燕文贵《溪山楼观图》与空间概念草图©反几建筑 FANAF (右)

vsszan205979231156356.jpg

▽鸟瞰©此间建筑摄影 赵奕龙

vsszan205979231156357.jpg



设计以周边山地环境为起点,置入一套立体的空间体系,利用不同标高的毛石墙体来围合动态的空间。砌筑毛石墙的石块取材于周边山体,它们从自然中来,现在又以全新的方式来表达大自然的生命力。由这些墙体所定义的建筑室内外空间,顺应山的走势形成流动的序列,相互嵌套、层层跌落,诠释了建筑与自然共生、共长的设计初衷。


▽空间轴测分析©反几建筑 FANAF

vsszan205979231156358.gif

▽由毛石墙限定的入口空间©此间建筑摄影 赵奕龙

vsszan205979231156359.jpg

▽室内外空间的融通©此间建筑摄影 赵奕龙

vsszan2059792311563510.jpg

▽流动的空间序列©此间建筑摄影 赵奕龙

vsszan2059792311563511.jpg
vsszan2059792311563512.jpg



场地中原有的弥勒宫,呈现中国传统寺庙中轴对称布局,安静沉稳的嵌入周边山体之中。改造方案充分保留这种秩序感,将空间序列向外延伸,提供更多与自然对话的场所。


▽主庭院视角©此间建筑摄影 赵奕龙

vsszan2059792311563513.jpg

▽冥想空间视角©此间建筑摄影 赵奕龙

vsszan2059792311563514.jpg



设计在东区文化展览组团保留原弥勒宫的中轴线设置,延续佛教建筑应有的庄重特质。同时,将中轴线从一层展厅延伸出来形成静谧的水院入口平台,并转向西侧形成入口空间序列。西区的会议接待组团,则通过层叠错落的院落空间被组织起来。庭院、平台、天井、廊道等,分别以安静谦虚的姿态直面自然,使弥勒宫具有禅意的“静”的场所精神得以传承。


▽庭院与廊道空间©此间建筑摄影 赵奕龙

vsszan2059792311563515.jpg
vsszan2059792311563516.jpg
vsszan2059792311563517.jpg



东方山佛教协会项目具备独特的周边环境要素,其场地隐于东方山之中,自身又具备参禅隐修的功能属性。因此,改造方案提取“隐”的精神内涵,让外在形式尽可能消隐,更使空间与场所本身得以显现。


▽隐于自然的次入口©此间建筑摄影 赵奕龙

vsszan2059792311563518.jpg

▽屋顶平台视角©此间建筑摄影 赵奕龙

vsszan2059792311563519.jpg

▽与自然对话的场景©此间建筑摄影 赵奕龙

vsszan2059792311563520.jpg
vsszan2059792311563521.jpg

▽室内空间细部©此间建筑摄影 赵奕龙

vsszan2059792311563522.jpg
vsszan2059792311563523.jpg



设计采用单坡金属屋面来减轻屋顶的分量感,主体外立面采用以实木与毛石为主的自然材料,充分表达项目的在地性,同时使整组建筑更好的消隐于自然之中。由错动的墙体与屋面共同定义的立体空间体系,被真实的材料与建造方式赋予了自然的生命力。此时,外在的形式语言已悄然隐去,自然流动的空间记忆与禅意静谧的场所感受共同构成了改造方案的精神内涵。


▽模型照片©反几建筑 FANAF

vsszan2059792311563524.jpg
vsszan2059792311563525.jpg
vsszan2059792311563526.jpg

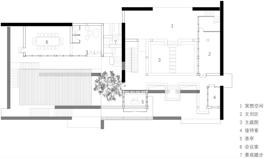
▽一层平面©反几建筑 FANAF

vsszan2059792311563527.jpg

▽二层平面©反几建筑 FANAF

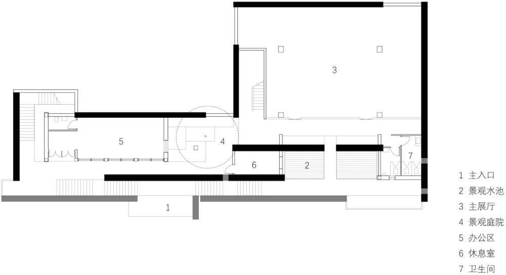
vsszan2059792311563528.jpg

▽三层平面©反几建筑 FANAF

vsszan2059792311563529.jpg

▽剖面©反几建筑 FANAF

vsszan2059792311563530.jpg
vsszan2059792311563531.jpg
vsszan2059792311563532.jpg
vsszan2059792311563533.jpg
vsszan2059792311563534.jpg
vsszan2059792311563535.jpg
vsszan2059792311563536.jpg
vsszan2059792311563537.png
AI文本分析中……
AI色彩命名中……
syhgdesign2025-12-24 01:10:35
感谢楼主辛苦分享
95qabc2025-12-30 19:41:19
谢谢分享!!!谢谢分享!
您需要登录后才可以回帖 登录 | 注册序赞号

快速回复 返回顶部 返回列表