燃画廊 | 屋已设计 | 2025 | 中国北京



燃画廊位于北京市朝阳区,在这个原始面积约280平米的开放空间,业主委托我们打造一处贴近家居氛围的青年艺术家画廊。由于定期会更替不同的展览主题,加上画作的流动性较快,我们就设计了一处以可移动模块为概念的展厅。


▽贴近生活氛围© 方立明

vsszan206131311730301.jpg

▽不同颜色的模块化展墙配合各类作品及展览主题© 方立明

vsszan206131311730302.jpg

▽会客休闲区© 方立明

vsszan206131311730303.jpg

▽灵活的展陈形式© 方立明

vsszan206131311730304.jpg



设计师使用桦木多层板设计出多组工字型的实木结构,将整个空间顶面交织出4条横向木梁和7条纵向木梁,搭建好空间的骨架。再制作出小一号的可移动工字型柱体卡进木梁中,结合与柱体形成嵌套关系的模块化隔断墙,增添了立面维度的趣味。


▽层叠的空间纵深感© 方立明

vsszan206131311730305.jpg

▽颜色多变的模块展墙© 方立明

vsszan206131311730306.jpg

▽家居与艺术相结合© 方立明

vsszan206131311730307.jpg



于是使用者可以通过自行增减隔断墙模块,将这个场地从一块完整开阔的大空间分割成20多块自由的小空间,从大型画作展览到小型的家具、装置或影像展,都能够轻松呈现。


▽艺术品贯穿在空间之中© 方立明

vsszan206131311730308.jpg

▽一桌一椅一画© 方立明

vsszan206131311730309.jpg

▽色卡展墙© 方立明

vsszan2061313117303010.jpg



以线带面,色彩与自然意义相连,蓝色的木质梁柱结构让人想起天空和大海,有深远和退后的效果。棕色的地毯使人联想到土地,稳重且向前。加上墙面跳跃的背景色与丰富题材的艺术作品,共同组合出无限可能性。让画廊空间在发展中得以不断更新和变化,充分激发观者的新鲜感和探索欲。


▽蓝色的木梁木柱相互交错© 方立明

vsszan2061313117303011.jpg

▽撞色组合激发想象力© 方立明

vsszan2061313117303012.jpg

▽结构细部© 方立明

vsszan2061313117303013.jpg

▽材质质感© 方立明

vsszan2061313117303014.jpg

▽原始平面图© 屋已设计工作室

vsszan2061313117303015.jpg

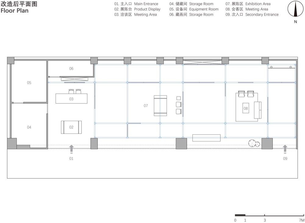
▽改造后平面图©屋已设计工作室

vsszan2061313117303016.jpg
vsszan2061313117303017.jpg
vsszan2061313117303018.jpg
vsszan2061313117303019.jpg


项目名称:燃画廊-灵活的复合型模块化展厅
项目类型:商业空间、画廊、展厅
设计方:屋已设计工作室
联系邮箱:wuedesign@163.com
项目设计:2025年5月
完成年份:2025年8月
设计团队:史英杰、解伟康
项目地址:北京市朝阳区
建筑面积:280㎡
摄影版权:方立明
客户:燃画廊
材料:桦木板、铝型材、地毯、木蜡油、艺术漆

AI文本分析中……
AI色彩命名中……

序赞Ai时刻等待着你的命令!~

与Ai对话形式持续执行相关Ai智能体任务。

暂时没有评论,你回一个呗!~

您需要登录后才可以回帖 登录 | 注册序赞号

快速回复 返回顶部 返回列表